
PowerPact™ H-, J-, or L-Frame Circuit Breaker with Micrologic™ 5/6 Retrofit Instructions
Installation onto an I-Line™ Panelboard Rated 480 Vac Maximum
Class 2110 Instruction Bulletin
80043-801-01 03/2013
Retain for future use.
Hazard Categories and Special Symbols
Read these instructions carefully and look at the equipment to become familiar with the device before trying to install, operate, service, or maintain it. The following special messages may appear throughout this bulletin or on the equipment to warn of hazards or to call attention to information that clarifies or simplifies a procedure.
The addition of either symbol to a “Danger” or “Warning” safety label indicates that an electrical hazard exists which will result in personal injury if the instructions are not followed.
This is the safety alert symbol. It is used to alert you to personal injury hazards. Obey all safety messages that follow this symbol to avoid possible injury or death.
DANGER
DANGER indicates a hazardous situation which, if not avoided, will result in death or serious injury.
WARNING
WARNING indicates a hazardous situation which, if not avoided, can result in death or serious injury.
CAUTION
CAUTION indicates a hazardous situation which, if not avoided, can result in minor or moderate injury.
NOTICE
NOTICE is used to address practices not related to physical injury. The safety alert symbol is not used with this signal word.
NOTE: Provides additional information to clarify or simplify a procedure.
Please Note
Electrical equipment should be installed, operated, serviced, and maintained only by qualified personnel. No responsibility is assumed by Schneider Electric for any consequences arising out of the use of this material.
Introduction
This bulletin contains instructions on how to retrofit a Square D ™ brand
H-, J-, or L- frame (or also known as H/J/L frame) circuit breaker with Micrologic ™ 5/6 trip units onto a Square D brand I-Line ™ panelboard (rated 480 Vac maximum), manufactured by Schneider Electric.
Safety Precautions
NOTE: For technical support contact Schneider Electric Customer Support 1-888-Square D (1-888-778-2733).
NOTE: See the labels on the equipment for rating and safety information.
Additional equipment labels are provided with this document.
DANGER
HAZARD OF ELECTRIC SHOCK, EXPLOSION, OR ARC FLASH
- Apply appropriate personal protective equipment (PPE) and follow safe electrical work practices. See NFPA 70E or CSA Z462.
- This equipment must only be installed and serviced by qualified electrical personnel.
- At least two people should always perform the installation work.
- Turn off all power supplying this equipment before working on or inside the equipment.
- Always use a properly-rated voltage sensing device to confirm all power is off.
- Replace all devices, doors and covers before turning on power to this equipment.
- Read and understand this entire instruction bulletin and the latest edition of the NEMA PB 1.1 standards publication included before installing, operating, or maintaining this equipment.
- Read and understand the entire instruction bulletin 80043-309-XX before installing this retrofit kit.
- Local codes vary, but are adopted and enforced to promote safe electrical installations. A permit may be needed to do electrical work, and some codes may require an inspection of the electrical work.
Circuit Breaker Installation
To install a PowerPact ™ H/J/L frame circuit breaker with Micrologic 5/6 into an I-Line panelboard, and for the blank extensions that are to be used with them, refer to the latest version of the I-Line Circuit Breaker Power Distribution Panelboards, document number 80043-309-xx. Please review all instructions supplied with the circuit breaker before beginning this installation.
NOTE: To have access to the Micrologic display, a new deadfront assembly is required. Contact Schneider Electric Customer Support 1-888-Square D (1-888-778-2733).

Side-Car Installation
A side-car enclosure addition is required to be added to an existing I-Line panelboard installation to house additional components that are used with PowerPact H/J/L frame circuit breakers with Micrologic 5/6. This enclosure is used to contain the power supply assembly (and communications modules, if required).
Table 1: Side-car Enclosure Catalog Numbers
| Catalog Number | Application | Side-Car Box Dimensions | ||
| Height | 1 Width Inches (mm | Depth | ||
| SIDECAR50 | HCP panelboards, 50 in. (1,270 mm) box height m | 50 (1,270) | 14 (356) | 9.5 (241) |
| SIDECAR59 | HCP panelboards,59 in. (1,499 mm) box height m | 59 (1,499) | 14 (356) | 9.5 (241) |
| SIDECAR68 | HCP panelboards, m 68 in. (1,727 mm) box height | 68 (1,727) | 14 (356) | 9.5 (241) |
| SIDECAR86 | FIC.P/FICRUMCPSU panelboards, 86 in. (2,184 mm) box height | 86 (2,184) | 14 (356) | 9.5 (241) |
Tools Needed
- Flat -head screwdriver
- #2 square screwdriver
- Torx ® driver T25
- Drill with 11/64 in. (4.4 mm) drill bit
- Drill with 7/16 in. (11.1 mm) drill bit
- Socket wrench with 9/16 socket
- Socket wrench with 5/16 socket
- 5 in. (127 mm) hole saw
Installation
- Turn off all power supplying the panelboard before working on or inside equipment. Verify power is off, using a properly rated voltage sensing device.
- Identify the side of the panelboard where the side-car will be attached. The PowerPact H-, J-, or L-frame circuit breaker with Micrologic 5/6 trip unit should be installed on the same side of the I-Line stack as the side-car.

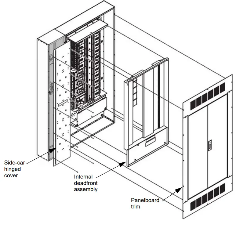
- Remove the panelboard trim and internal deadfront assembly.
- Disconnect and move aside all branch wiring located in the gutter space of the panelboard, where the side-car will be installed.

- If installing a power supply assembly only, mark and drill a 5 inch (127 mm) diameter hole, into the side of the enclosure, 20 inches (508 mm) from the top of the unit for the control power wiring (A).
- If also installing a communications module assembly, drill a second 5 inch (127 mm) diameter hole spaced 20 inches (508 mm) from the center of the first hole (B), drilled in step 5.
- Install the gaskets, provided, around the edge of the drilled 5 inch (127 mm) diameter holes (C).

- Remove the side-car hinged door from side-car enclosure by removing the screws, retain the screws (D).
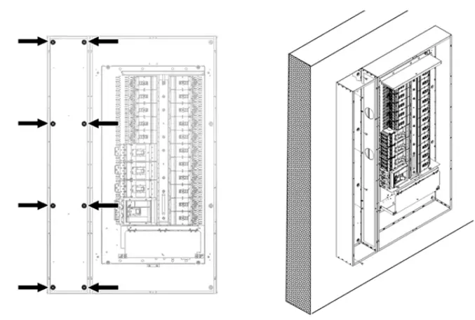
- Remove the four 1/4-20 bolts from the side corners of the existing panelboard enclosure, retain the screws (E).

- Position the side-car enclosure next to the panelboard. Align the four elongated holes, in each corner of the side-car, with the panelboard holes (F).
- Drill four 25/84 inch (9.9 mm) diameter clearance holes into the panelboard enclosure, using the side-car enclosure as a template (G).

- Using the holes drilled in step 11, attach the side-car to the panelboard with four 3/8-16 screws, and secure with nuts, provided (H).
NOTE: If the side-car is not properly attached to the main enclosure (as shown in previous steps), it must be individually grounded. - Reinstall the four screws, removed in step 9, through the side-car and into the panelboard enclosure (J).

- Attach the side-car to the wall, with grade 5 steel bolts, using all the wall mounting holes located in the side-car (use appropriate wall anchor, if required).

- Remove all metal shavings with a vacuum prior to connecting any wiring.
- Install and connect power supply assembly (K), (see the section “Power Supply Assembly Installation”, page 9, for details). If the circuit breaker is ordered with communications, also install and connect the communications module assembly (L) (see Communications Module Assembly Installation, page 12, for details).
Power Supply Assembly Installation
Replacement circuit breaker must be ordered with 24 V harness as a suffix in the circuit breaker part number.
NOTE: This retrofit kit is only for retrofitting PowerPact H/J/L frame circuit breakers with Micrologic.
NOTICE
HAZARD OF EQUIPMENT DAMAGE
Do not wire any P- or R-frame trip unit to any power supply that is also powering H/J/L frame circuit breakers with Micrologic.
Failure to follow these instructions can result in equipment damage.
Table 2: Power Supply Catalog NumbersCatalog Number Application PS208V Power supply for Micrologic H/J/L frame circuit breakers, 208 Vac panels PS480V Power supply for Micrologic H/J/L frame circuit breakers, 480 Vac panels 
- Place power supply assembly into the side-car, 12 inches (305 mm) from the top and centered with the five inch (127 mm) diameter hole, drilled in step 5. If communications module assembly is also being installed, this power supply assembly must be located 32 inches (813 mm) from the top of the side-car and centered on the lower 5 inch hole (127 mm), drilled in step 6.
NOTE: The barrier side should go towards the main panelboard. - Mark the four mounting holes into the back wall of the side-car, and drill four 11/64 inch (4.4 mm) diameter holes into the side-car.
- Mount the power supply assembly into the side-car using the supplied screws.
- Ensure the switch is installed in the proper direction. When installing the switch, make sure it is mounted so the switch handle must be pushed UP, toward the TOP of the panelboard, to turn it ON, and the switch handle must be pushed down, toward the bottom of the panelboard, to turn it OFF.
If the switch handle is not UP, toward the top of the panelboard, in the ON position, with the barrier facing the main panelboard, then the switch should be removed and rotated 180 degrees.
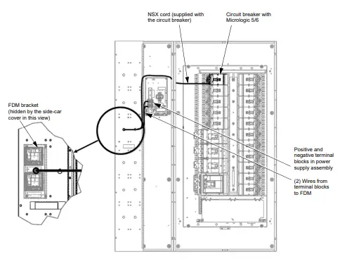
- If installing Micrologic 5/6 trip units only, without communications, wire each trip unit to the terminal blocks.
NOTE:
1. Terminal blocks located in the power supply assembly.
2. Use 16 gauge wire minimum, unless otherwise noted.Communications Module Assembly Installation
Table 3: Communications Components
Catalog Number Application COMASSY Panelboard communications mounting assembly TRV00880 ULP line terminator STRV00210 IFM communications module STRV00211 Isolated Modbus repeater TRV00217 Stacking connectors Replacement circuit breaker must be ordered with communications suffix in part number. Order one COMASSY per panel. Order one STRV00210 (IFM) for each circuit breaker.
NOTE: All circuit breakers that are to be connected to the Modbus ™ Interface Modules (IFMs) should be installed on the same side of the I-Line stack as the side-car to ensure communications cord length is adequate. Up to a maximum of five IFMs with repeater can be installed using this kit.
- Place communications assembly into side-car above the power supply assembly and centered on the upper 5 inch (127 mm) hole, drilled in step 5.
- Mark the 4 mounting holes into the back wall of the side-car and drill four 0.173 inch (4.4 mm) diameter holes into the side-car.
- Mount the communications assembly into the side-car using the supplied screws.
- Install communication components onto DIN rails as shown.
The following arrangements should be followed when installing more than 1 IFM per panel. Up to a maximum of 5 IFMs, with repeater, can be installed using this kit.
- Install wiring for communication components per the wiring diagrams (shown in the next few pages). Connect the first IFM to the power supply terminal blocks as shown. The remaining IFMs are powered through the stacking accessory. See instruction bulletins supplied with the IFM and with the isolated Modbus repeater module for additional installation details.

NOTE:
1. Terminal blocks located in the control power assembly.
2. If Front Display Module (FDM) is not to being installed, then the ULP line terminator must be connected on this terminal (order ULP line terminator separately).
3. Ground 0V terminal at only one point in the Modbus network.
4. All conductors to be 16 AWG (1.5 mm 2 ) gauge, unless otherwise noted.Front Display Module Installation
Table 4: FDM Components
Catalog Number Application STRV00121 Front Display Module (FDM) TRV00880 ULP line terminator TRV00820 ULP cord 79 in. (2 meters) length TRV00830 ULP cord 118 in. (3 meters) length TRV00850 ULP cord 197 in. (5 meters) length FDMSINGLE Single FDM mounting bracket FDMDOUBLE Dual FDM mounting bracket Replacement circuit breaker must be ordered with communications suffix in part number. If installing only one Front Display Module (FDM), order FDMSINGLE kit. For every two FDMs installed, order FDMDOUBLE kit.
NOTE: Circuit breakers that are to be connected to FDMs should be installed on the same side of the I-Line stack as the side-car to ensure communications cord length is adequate.
- Determine appropriate location in side-car cover to mount FDM brackets.
- Knock out the required holes located in the side-car cover for each FDM bracket to be installed.
- Mount each FDM bracket as shown, using hardware supplied with the FDMSINGLE or FDMDOUBLE kits.

- If installing with IFM, connect FDM to IFM using ULP cord of appropriate length (order ULP cord separately). No further power is required. Attach power to IFM per step 26. See instruction bulletins supplied with the IFM, with the isolated Modbus repeater module and with the FDM for more installation details.


- If Installing without IFM, attach power to FDM directly from terminal block assembly and connect circuit breaker NSX cord to FDM.
NOTE:
1. Terminal blocks located in the power supply assembly.
2. Use 16 gauge wire minimum, unless otherwise noted.
3. Order the ULP Line terminator separately.
- Reinstall all branch wiring removed during step 4.

- Insert the blank extensions on the new deadfront assembly. Use the appropriate blank extensions with the corresponding branch circuit breakers. Refer to the latest version of the instruction bulletin I-Line (HCP, HCP-SU, and HCRU) Panelboards and Switchboards—Blank Extension Installation, document number 80030-695-xx.

- Reinstall the panelboard deadfront assembly.
- Reinstall the side-car hinged cover and panelboard trim.
- Turn off all downstream loads fed by this panelboard.
- Re-energize the panelboard.
PowerPact™ H-, J-, or L-Frame Circuit Breaker with Micrologic™ 5/6 Retrofit Instructions Instruction Bulletin
Schneider Electric
1415 S. Roselle Road
Palatine, IL 60067 USA
1-888-778-2733
www.schneider-electric.us
Electrical equipment should be installed, operated, serviced, and maintained only by qualified personnel. No responsibility is assumed by Schneider Electric for any consequences arising out of the use of this material.
© 2013 Schneider Electric All Rights Reserved
Schneider Electric and Square D are trademarks owned by Schneider Electric Industries SAS or its affiliated companies. All other trademarks are the property of their respective owners. 80043-801-01 03/2013
PowerPact™ H-, J-, or L-Frame Circuit Breaker with Micrologic™ 5/6 Retrofit Instructions
Electrical equipment should be installed, operated, serviced, and maintained only by qualified personnel. No responsibility is assumedby Schneider Electric for any consequences arising out of the use of this material. Square D™ are trademarks or registered trademarks of Schneider Electric. Other trademarks used herein are the property of their respective owners. and Schneider Electric™
Schneider Electric USA, Inc.
1415 S. Roselle Road
Palatine, IL 60067 USA
1-888-778-2733
www.schneider-electric.us
80043-801-01 12/2012
© 2013 Schneider Electric
All Rights Reserved
California Proposition 65 Warning—Nickel Compounds and Bisphenol A (BPA)
WARNING: This product can expose you to chemicals including Nickel compounds, which are known to the State of California to cause cancer, and Bisphenol A (BPA), which is known to the State of California to cause birth defects or other reproductive harm. For more information go to www.P65Warnings.ca.gov.
All trademarks are the property of Schneider Electric SE, its subsidiaries, and affiliated companies.

Schneider Electric USA, Inc.
800 Federal Street
Andover, MA 01810 USA
888-778-2733
www.schneider-electric.us







Power Supply Assembly Installation

NOTE:
The following arrangements should be followed when installing more than 1 IFM per panel. Up to a maximum of 5 IFMs, with repeater, can be installed using this kit.

NOTE:


NOTE:


PowerPact™ H-, J-, or L-Frame Circuit Breaker with Micrologic™ 5/6 Retrofit Instructions Instruction Bulletin


















