SIEMENS PM6F160 Molded Case Circuit Breaker

Product Information
The PM Frame Circuit Breaker line includes types PM6 and PMK, available with Thermal Magnetic Trip Units. The PMKT trip units are interchangeable and can be used with circuit breaker types PM6 and PMK, according to their application. Every trip unit has three dials, one for each pole, to adjust the magnetic pickup settings. The bimetal elements in the Thermal Magnetic Trip Units have been calibrated according to the rated continuous current and rated ambient temperature. The PM6 Thermal Magnetic Trip Circuit Breakers are rated for operating voltages up to 600VAC, 50/60Hz, 500VDC, and continuous current from 1400 to 1600 amps. The PMK Thermal Magnetic Trip Circuit Breakers are rated for operating voltages up to 1000VAC, 50/60Hz, 500VDC, and continuous current from 1400 to 1600 amps. PM6 and PMK Circuit Breakers can only be placed into service by mounting to Connect-All Mounting Block MM9301 or MM9302, which are rated for 1000VAC, 50/60Hz, 500VDC, and 1600 amps at 40 C.
Product Usage Instructions
SAFETY INSTRUCTIONS: Turn off and lock out all power supplying this device before removing the cover(s) or device and while cover(s) are removed. Replace all covers and shields before power supplying this device is turned on.
Installation
PM Frame Circuit Breakers are for use in individual enclosures, panelboards, switchboards, or other approved equipment. The installation procedure consists of inspecting, attaching required accessories, installing the Connect-All Mounting Block, mounting the circuit breaker to the Connect-All, and installing the line and load wire connectors. Mounting hardware and unmounted wire connectors (where required) are available as separate catalog items. See Fig. 4 for options on installation.
NOTE: Do not spray or allow any petroleum-based chemicals, solvents, or paints to contact the molded parts or nameplates.
Circuit Breaker Preparation
- Before mounting the breaker onto the connect-all, turn off and lock out all power to prevent incidental or accidental contact during the installation.
- WARNING! Make sure that the circuit breaker/trip unit is suitable for installation by comparing nameplate ratings with system requirements. Inspect the device for completeness and check for any damage before mounting.
- NOTE: Trip Unit and Accessory installation should be completed before the circuit breaker is mounted and connected. (See installation instructions supplied with Trip Unit and Accessory before proceeding.)
- Make sure the device is in the tripped or off position. For circuit breakers, depress the red trip button (see Fig. 1, 2, & 3) or turn the breaker off.
Circuit Breaker Manual Operation
The manual operation of the circuit breaker is controlled by the circuit breaker handle and the Push-To-Trip button. The circuit breaker handle has three indicating positions, two of which are molded into the handle to indicate ON and OFF. The third position indicates a TRIP position and is between the ON and OFF positions. (See Fig. 1)
Circuit Breaker Reset
To reset the circuit breaker, move the handle to the OFF position, then back to the ON position. If the circuit breaker continues to trip, investigate the cause of the trip before resetting the breaker.
DANGER
Hazardous voltage. Will cause death or serious injury. Turn off and lock out all power supplying this device before removing the cover(s) or device and while the cover(s) is removed. Replace all covers and shields before power supplying this device is turned on.
SAFETY INSTRUCTIONS
NOTE: This instruction outlines the recommended installation procedure.
INTRODUCTION
The PM Frame Circuit Breaker line includes types PM6 and PMK, available with Thermal Magnetic Trip Units. The PMKT trip units are interchangeable and can be used with circuit breaker types PM6 and PMK, according to their application. Every trip unit has three dials, one for each pole, to adjust the magnetic pickup settings. The bimetal elements in the Thermal Magnetic Trip Units have been calibrated according to the rated continuous current and rated ambient temperature. The PM6 Thermal Magnetic Trip Circuit Breakers are rated for operating voltages up to 600VAC, 50/60Hz, 500VDC, and continuous current from 1400 to 1600 amps. The PMK Thermal Magnetic Trip Circuit Breakers are rated for operating voltages up to 1000VAC, 50/60Hz, 500VDC, and continuous current from 1400 to 1600 amps. PM6 and PMK Circuit Breakers can only be placed into service by mounting to Connect-All Mounting Block MM9301 or MM9302, which are rated for 1000VAC, 50/ 60Hz, 500VDC, and 1600 amps at 40 C.
INSTALLATION
PM Frame Circuit Breakers are for use in individual enclosures, panelboards, switchboards, or other approved equipment. The installation procedure consists of inspecting, attaching required accessories, installing the Connect-All Mounting Block, mounting the circuit breaker to the Connect- And installing the line and load wire connectors. Mounting hardware and unmounted wire connectors (where required) are available as separate catalog items. See Fig. 4 for options on installation.
NOTE: Do not spray or allow any petroleum-based chemicals, solvents, or paints to contact the molded parts or nameplates.
CIRCUIT BREAKER PREPARATION
- A. Before mounting the breaker onto the connect-all, turn off and lock out all power to prevent incidental or accidental contact during the installation.
- B. WARNING! Make sure that the circuit breaker/trip unit is suitable for installation by comparing nameplate ratings with system requirements. Inspect the device for completeness and check for any damage before mounting.
NOTE: Trip Unit and Accessory installation should be completed before the circuit breaker is mounted and connected. (See installation instructions supplied with Trip Unit and Accessory before proceeding.) - C. Make sure the device is in the tripped or off position. For circuit breakers, depress the red trip button (see Fig. 1, 2, & 3) or turn the breaker off.
CIRCUIT BREAKER MANUAL OPERATION
The manual operation of the circuit breaker is controlled by the circuit breaker handle and the Push-To-Trip button. The circuit breaker handle has three indicating positions, two of which are molded into the handle to indicate ON and OFF. The third position indicates a TRIP position and is between the ON and OFF positions. (See Fig. 1)
- A. Circuit Breaker Reset After tripping, the circuit breaker is reset by moving the circuit breaker handle to the reset position and then moving the handle to the ON position.
NOTE: In the event of a thermal trip, the circuit breaker cannot be reset until the thermal element cools. - B. Push-To-Trip Button The Push-To-Trip button checks the tripping function and is used to manually exercise the operating mechanism.
MOUNTING OF BREAKER ONTO CONNECT-ALL ASSEMBLY
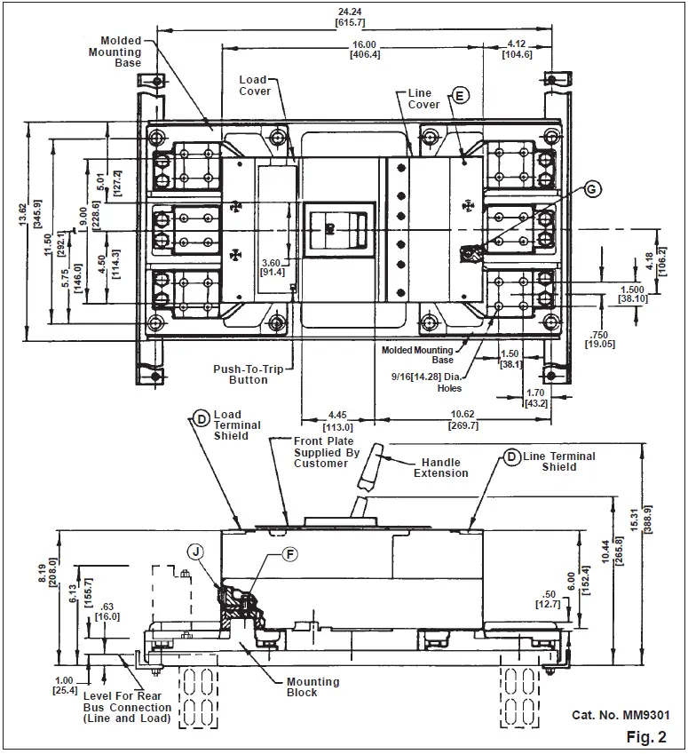
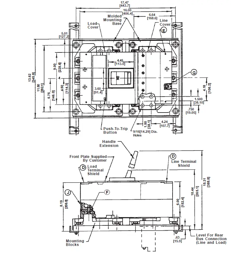
- A. Remove the load and line terminal shields (D, Fig. 2 & 3) by loosening the two terminal shield screws (E, Fig. 2 & 3). Also remove end plates (J, Fig. 2 & 3).
- B. Place the breaker onto protruding connect-all terminals and fasten the breaker to the molded mounting base with four slotted fillister head 3/8-16 x 1-3/4 long screws, washers, and lock washers (G, Fig. 2 & 3). Tighten mounting screws to a torque of 5 to 6 ft-lbs.[6.8-8.13 N-m]
- C. Fasten breaker terminal to connect-all terminals with two hex head 3/8-16 x 1-3/4″ long copper alloy bolts, washers, and lock washers (F, Fig. 2 & 3) per terminal. Tighten these bolts to a torque of 9 to 10 ft-lbs.[12.2-13.6 N-m]
- D. Replace all end plates (J, Fig. 2 & 3) and line and load terminal shields (D, Fig. 2 & 3). Tighten terminal shield screws securely.
- E. After mounting the circuit breaker, line and load terminals, and accessory terminals should be connected. Install wire connectors with correct torque requirements (Refer to Fig. 4). Torque values for line and load connectors are provided on the circuit breaker nameplate and in Table 1, Page 2 of 5. Ensure that wire and wire connectors are fully engaged on terminals and that connectors are flush with the end of the terminal.

TABLE 1
| Catalog Number | Wire Range | Torque | |
| Cable Clamping Screw | Connector Mounting Screw | ||
| TA5P600 | 300-400 kcmil Cu/Al | 600 lb-in. [67.79 N-m] 780 lb-in. [88.13 N-m] 480 lb-in. [54.23 N-m] 600 lb-in. [67.79 N-m] 600 lb-in. [67.79 N-m] | 300 lb-in. [33.89 N-m] |
| 500-600 kcmil Cu/Al | |||
| TA4P750 TA6R600 TC5R600 | 600-750 kcmil Cu/Al
300-600 kcmil Cu/Al
300-600 kcmil Cu ONLY | 300 lb-in. [33.89 N-m] 375 lb-in. [42.37 N-m] 375 lb-in. [42.37 N-m] | |
INSPECTION AND FIELD TESTING
PM Frame Circuit Breakers are designed to provide maintenance-free service. Any inspection and field testing should be conducted in accordance with NEMA AB2: Procedures for Field Inspection and Performance Verification of Molded Case Circuit Breakers; also NEMA AB4: Guidelines for Inspection and Preventive Maintenance of Molded Case Circuit Breakers.
Dimensions


Hazardous voltage. Will cause death or serious injury. Turn off and lock out all power supplying this device before removing the cover(s) or device and while the cover(s) is removed. Replace all covers and shields before power supplying this device is turned on.
Installation Instructions

- Manufactured Under One or More of the Following U.S. Patents: 4,266,209; 4,488,133; 4,513,267.
- Devices: PM Frame Types PM6 and PMK Circuit Breakers.
- Siemens Energy & Automation, Inc.
- Bellefontaine, OH 43311 U.S.A.


















