WATTS W-M115-EN-202005 Pressure Reducing Valve

Size: DN32 – DN200
The Watts W-M115 Non-Watermarked Pressure Reducing Valve is designed to automatically reduce a fluctuating or high inlet pressure to a stable lower outlet pressure. The outlet pressure is adjustable over a broad range and remains stable from maximum to minimum rated flows.
Features
- Stainless steel trim as standard, for greater reliability & service life
- Dual pressure gauges as standard, for ease of setting and confidence in performance
- Factory tested and downstream pressure preset to 500 kPa as standard
Pressure – Temperature
- Operating Pressure: up to 1600kPa Standard, higher pressures on request
- Working Temperature: 0-80℃ for NBR Diaphragm & Seals
- Set Pressure Range: Standard: 70 to 860 kPa(set at 500 kPa)
- Optional: 140 to 120 kPa(set at 500 kPa)
Test Pressures
- Body Test Pressure: 2400 kPa
- Seat Test Pressure: 1760 kPa
- Based on Table E Flange
Material
| Component | Material |
| Body/bonnet | Ductile Iron with Epoxy Resin, NSF Certified Coating |
| Stem/seat | Stainless Steel |
| Diaphragm | Nylon Reinforced NBR |
| Main valve seal | NBR |
| Pressure reducing pilot | Brass |
| Pilot strainer, needle valve & fittings | Brass |
| Pilot tubing | Copper |
Operating Principle
The main valve is controlled by the action of the pressure-reducing pilot valve. If the downstream pressure is below the set pressure then the pilot valve opens, releasing water from the top chamber of the main valve, causing the main valve to open and downstream pressure to rise. As the downstream pressure nears the set point the pilot valve begins to close a little, resulting in more water accumulating in the top chamber of the main valve, causing the main valve to modulate and maintain the downstream pressure. If the downstream pressure increases above the set point, the pilot valve closes completely, resulting in full line pressure gently closing the main valve and creating a drip-tight seal. In this way, the main valve responds precisely to accurately maintain the downstream pressure.
Specification
- Connection Type:
Flanged to AS 2129 Table E as Standard: DN65-DN200 Threaded BSPT: DN32- DN50 - Working Medium: Non-corrosive liquids

- Main Valve
- Pressure Reducing Control
- Fixed Orifice
- Flo-Clean Strainer

Watts reserves the right to change or modify product design, construction, specifications, or materials without prior notice and without incurring any obligation to make such changes and modifications on Watts products previously or subsequently sold.
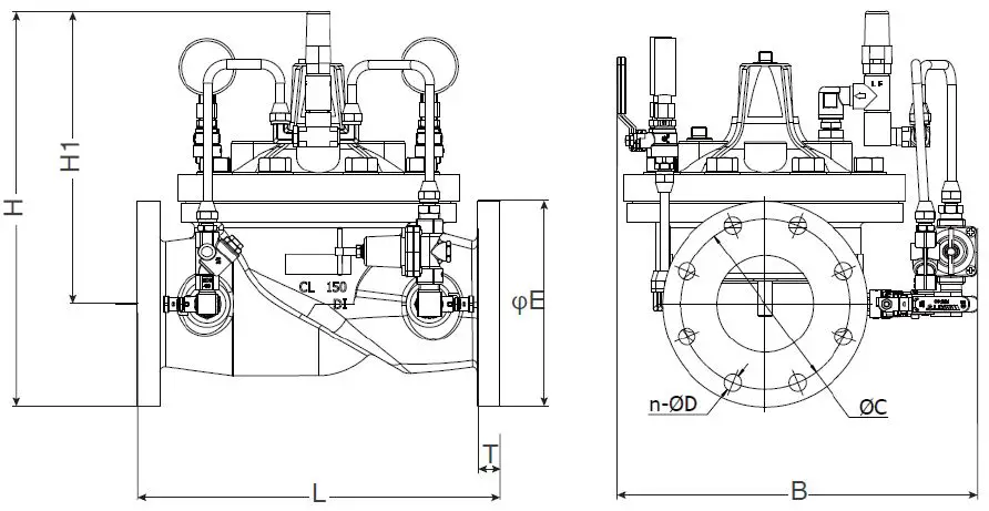
Installation Dimensions
Connection Dimension: Threaded and AS 2129 Table E
| Size DN | Dimensions(mm) | Flange Dimensions(mm) | Weight(Kg) | ||||||
| L | H | H1 | B | φC | n-φD | φE | T | ||
| 32 BSPT | 184 | 305 | 271 | 235 | / | / | / | / | 17.5 |
| 40 BSPT | 184 | 305 | 271 | 235 | / | / | / | / | 17.5 |
| 50 BSPT | 238 | 315 | 268 | 250 | / | / | / | / | 18.2 |
| 65 | 280 | 341 | 258 | 272 | 127 | 4-18 | 165 | 22.4 | 19.2 |
| 80 | 305 | 330 | 238 | 295 | 146 | 4-18 | 185 | 23.9 | 36.5 |
| 100 | 381 | 415 | 308 | 372 | 178 | 8-18 | 215 | 23.9 | 52.3 |
| 150 | 508 | 471 | 331 | 470 | 235 | 8-22 | 280 | 25.4 | 112 |
| 200 | 645 | 570 | 405 | 525 | 292 | 8-22 | 335 | 28.4 | 198 |
Please contact the local salesmen if the size ≥DN200 is needed.
Flow Rates
| Size DN (mm) | 32 | 40 | 50 | 65 | 80 | 100 | 200 | |
| Maximum Continuous (l/s) | 6 | 8 | 13 | 19 | 31 | 50 | 111570 | 196 |
| Maximum Intermittent (l/s) | 8 | 10 | 17 | 25 | 37 | 63 | 145 | 252 |
| Minimum Continuous (l/s) | 0.2 | 0.3 | 0.4 | 0.6 | 0.9 | 1.0 | 1.1 | 1.6 |
General Application

Installation Instructions
- Before installation, the flush line to remove debris.
- Install the valve horizontally “inline” (cover facing UP), so the flow arrow matches the flow through the line. Avoid installing valves 6” and larger vertically. Consult the factory before ordering if installation is other than described.
- Install inlet and outlet isolation valves. NOTE: When using butterfly valves, ensure the disc does not contact the control valve. Damage or improper valve seating may occur.
- Provide adequate clearance for valve servicing and maintenance.
- Install pressure gauges to monitor valve inlet and outlet pressure.
- If the installation is subjected to very low flow or potentially static conditions, it is recommended a pressure relief valve (1/2” minimum) be installed downstream of the Pressure Reducing Valve for additional system protection.
Start-Up
Proper Automatic Control Valve start-up requires bringing the valve into service in a controlled manner. All adjustments to control pilots and speed controls should be made slowly, allowing the valve to respond and the system to stabilize. NOTE: Control Valves should be set up in a dynamic (flowing) condition for a proper startup. Provisions for flow must be made to insure proper settings.
- Close upstream and downstream valves to isolate the valve from line pressure. Release spring tension on Pressure Reducing Control by turning the adjustment screw out (counterclockwise), decreasing the setpoint. Open all Isolation Ball Valves, if so equipped. If the valve is fitted with adjustable speed controls, turn the needle(s) in (clockwise) until seated, and return out (counterclockwise) 1-1/2 to 2-1/2 turns. These are approximate settings and should be fine-tuned to suit system requirements after pressure adjustments have been made.
- Slowly open the upstream isolation valve to allow controlled filling of the valve. Vent entrapped air by carefully loosening the control tubing or pipe plug at the highest point possible. If the valve is equipped with a Position Indicator, open Air Bleed Petcock to vent air. Water will be milky in appearance and will begin to clear as air is vented. Carefully loosen enough cover screws on the control pilot(s) to vent entrapped air. Re-tighten when water vents.
- Setting Reducing Control: Slowly open the downstream isolation valve. Gradually turn the adjustment screw on the Pressure Reducing Control in (clockwise) to raise downstream pressure. Allow the valve and system to stabilize. Observe inlet and outlet pressure gauges. Continue to adjust as needed, pausing approximately every 1-1/2 turns, allowing the valve and system to stabilize. Turning the adjustment screw clockwise raises outlet pressure. Turning the adjustment screw counterclockwise lowers outlet pressure. When the desired downstream pressure is reached, tighten the locknut on the adjustment screw.
- Fine-tune Speed Controls to suit system requirements. Adjust Closing Speed Control (if equipped) clockwise for slower closure, and counterclockwise for faster closure. Adjust Opening Speed Control (if equipped) clockwise for slower opening, and counterclockwise for faster opening.
Watts reserves the right to change or modify product design, construction, specifications, or materials without prior notice and without incurring any obligation to make such changes and modifications on Watts products previously or subsequently sold.





















