EATON XV-102-A0-35TQRB-1E4 198513 PLC Touch Panel

Electric current! Danger to life!
Only skilled or instructed persons may carry out the following operations.
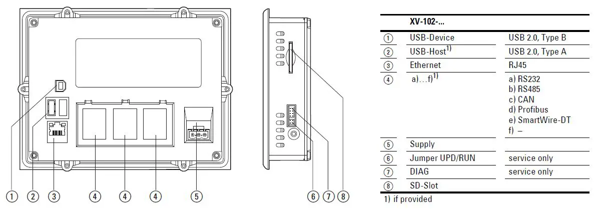
Interface
RS232 (System Port), RS485, CAN, Profibus
Standard connection 
Support
Region North America
- Eaton Corporation
- Electrical Sector
- 1111 Superior Ave.
- Cleveland, OH 44114
- United States
- 877-ETN-CARE (877-386-2273)
- Eaton.com
- Other regions
- Contact your local supplier or ✉
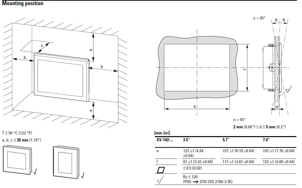
Mounting position


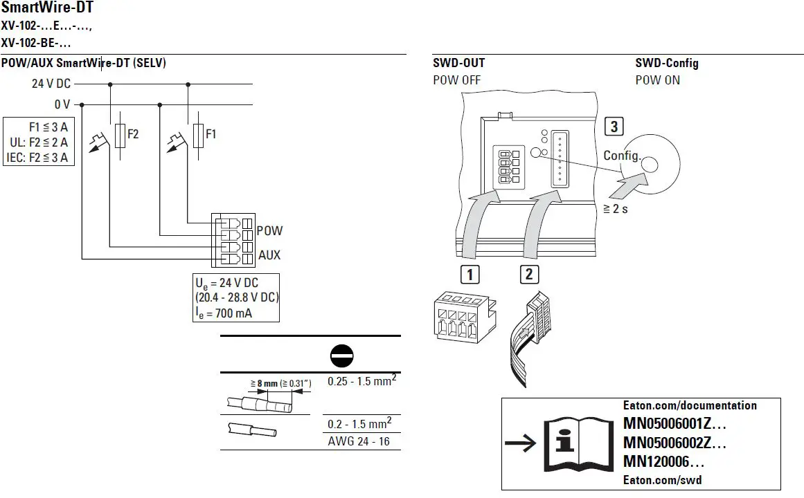
Power supply

SmartWire-DT
XV-102-…E…-…,
XV-102-BE-…
Dimensions


























