
380 comfort
INSTALLATION GUIDE
SCV SERIES
AIR HANDLER
THE REPLACEMENT COMPONENT LIST INCLUDED 
![]()
This unit complies with UL standards
This section must be read carefully by the installer.
The installer must also read the user’s guide since it contains other important information.
WARNING
Before installing and operating this product, the user and/or installer must read, understand and follow these instructions and keep them handy for future reference.
If these instructions are not followed, the warranty will be considered null and void and the manufacturer deems no further responsibility for this product.
This product must be installed by a qualified person and connected by a certified electrician, according to the electrical and building codes effective in
your region.
The following instructions must be adhered to in order to avoid personal injuries or property damages, serious injuries, and potentially fatal electric shocks.
Protect the unit with the appropriate circuit breaker or fuse, in accordance with the local and national electric codes.
Make sure the line voltage (volt) is consistent with that indicated on the unit’s nameplate.
This unit must be grounded.
Switch off the power at the circuit breaker/fuse before installing, repairing and cleaning the unit.
Make sure the unit is appropriate for the intended use (if needed, refer to the product catalog or a representative).
Respect distances and positions indicated in the installation section.
If the installer or user modifies the unit, they will be held responsible for any damage resulting from this modification, and the UL certification will be void.
This unit must not come into contact with a water source and must be protected from splashes (e.g. a wet mop). Do not use if any part has been immersed. Moreover,
do not turn it on or off when standing in water or if your hands are wet.
When cutting a piece of steel for the installation of the return duct, be careful not to damage the electrical wiring of the unit.
Do not insert or allow foreign objects to enter any air vent as this may cause electric shocks, fires, or damage to the unit.
This unit has hot and arcing or sparking parts inside. It is not designed to be used or stored in wet areas or areas containing flammable liquids, combustible materials or orrosive, abrasive, chemical, explosive, and flammable substances such as, but not limited to, gasoline, paint, chlorine, and cleaning products. Some areas are dustier than others. Thus, it is the user’s responsibility to evaluate if the filter must be changed based on the amount of dirt accumulated on
it. Accumulated dirt can lead to a component malfunction or discoloration (yellowing). It may cause a fire hazard if not installed and maintained in accordance with these instructions.
If the unit is damaged or defective, cut off the power supply at the circuit breaker/fuse and call a certified repair center. (Refer to the limited warranty).
Label all wires prior to disconnection when servicing controls. Wiring errors can cause improper and dangerous operations.
Note: When a part of the product specification must be changed to improve operability or other functions, priority is given to the product specification itself. In such
instances, the instruction manual may not entirely match all the functions of the actual product. Therefore, the actual product and packaging, as well as the name and illustration, may differ from the manual.
NOMENCLATURE DESCRIPTION

SPECIFICATIONS
| TYPE | VOLTS | AMPS | HP | CFM | HEIGHT (IN) | WIDTH (IN) | DEPTH (IN) | LB | KG |
| SCV-P-401 | 120 | 4.6 | 1/3 | 400 | 18 | 14 | 20 3/4 | 40 | 18.2 |
| SCV-P-441 | 120 | 4.6 | 1/3 | 400 | 18 | 14 | 20 3/4 | 40 | 18.2 |
| SCV-P-442 | 240/208 | 2.2/2.3 | 1/3 | 400 | 18 | 14 | 20 3/4 | 40 | 18.2 |
| SCV-P-411 | 120 | 4.6 | 1/3 | 400 | 18 | 14 | 20 3/4 | 40 | 18.2 |
| SCV-P-412 | 240/208 | 2.2/2.3 | 1/3 | 400 | 18 | 14 | 20 3/4 | 40 | 18.2 |
| SCV-P-601 | 120 | 4.6 | 1/3 | 600 | 18 | 14 | 20 3/4 | 40 | 18.2 |
| SCV-P-641 | 120 | 4.6 | 1/3 | 600 | 18 | 14 | 20 3/4 | 40 | 18.2 |
| SCV-P-642 | 240/208 | 2.2/2.3 | 1/3 | 600 | 18 | 14 | 20 3/4 | 40 | 18.2 |
| SCV-P-611 | 120 | 4.6 | 1/3 | 600 | 18 | 14 | 20 3/4 | 40 | 18.2 |
| SCV-P-612 | 240/208 | 2.2/2.3 | 1/3 | 600 | 18 | 14 | 20 3/4 | 40 | 18.2 |
| SCV-P-841 | 120 | 4.6 | 1/3 | 800 | 20 | 18 | 22 3/4 | 50 | 22.7 |
| SCV-P-811 | 120 | 4.6 | 1/3 | 800 | 20 | 18 | 22 3/4 | 50 | 22.7 |
| SCV-P-812 | 240/208 | 2.2/2.3 | 1/3 | 800 | 20 | 18 | 22 3/4 | 50 | 22.7 |
| SCV-P-1041 | 120 | 4.6 | 1/3 | 1000 | 20 | 18 | 22 3/4 | 50 | 22.7 |
| SCV-P-1011 | 120 | 4.6 | 1/3 | 1000 | 20 | 18 | 22 3/4 | 50 | 22.7 |
| SCV-P-1012 | 240/208 | 2.2/2.3 | 1/3 | 1000 | 22 | 22 | 24 3/4 | 60 | 27.3 |
| SCV-P-1401 | 120 | 6.2 | 1/2 | 1400 | 22 | 22 | 24 3/4 | 60 | 27.3 |
| SCV-P-1402 | 240/208 | 3.3/3.3 | 1/2 | 1400 | 22 | 22 | 24 3/4 | 60 | 27.3 |
| SCV-P-1411 | 120 | 6.2 | 1/2 | 1400 | 22 | 22 | 24 3/4 | 60 | 27.3 |
| SCV-P-1412 | 240/208 | 3.3/3.3 | 1/2 | 1400 | 22 | 22 | 24 3/4 | 60 | 27.3 |
| SCV-P-2202 | 240/208 | 5.1/5.1 | 1 | 2200 | 26 | 26 | 28 3/4 | 80 | 36.4 |
| SCV-P-2212 | 240/208 | 5.1/5.1 | 1 | 2200 | 26 | 26 | 28 3/4 | 80 | 36.4 |
| SCV-E-611* | 120 | 6.2 | 1/2 | 300 to 600 | 18 | 14 | 20 3/4 | 40 | 18.2 |
| SCV-E-612* | 240/208 | 2.2/2.3 | 1/2 | 300 to 600 | 18 | 14 | 20 3/4 | 40 | 18.2 |
| SCV-E-1011* | 120 | 6.2 | 1/2 | 300 to 1000 | 20 | 18 | 22 3/4 | 50 | 22.7 |
| SCV-E-1012* | 240/208 | 2.2/2.3 | 1/2 | 300 to 1000 | 20 | 18 | 22 3/4 | 50 | 22.7 |
| SCV-E-1411* | 120 | 6.2 | 1/2 | 300 to 1400 | 22 | 22 | 24 3/4 | 60 | 27.3 |
| SCV-E-1412* | 240 | 3.9 | 1/2 | 300 to 1400 | 22 | 22 | 24 3/4 | 60 | 27.3 |
| SCV-E-1421* | 120 | 6.2 | 1/2 | 300 to 1400 | 22 | 22 | 24 3/4 | 60 | 27.3 |
| SCV-E-1422* | 240 | 3.9 | 1/2 | 300 to 1400 | 22 | 22 | 24 3/4 | 60 | 27.3 |
| SCV-E-1431* | 120 | 6.2 | 1/2 | 300 to 1400 | 22 | 22 | 24 3/4 | 60 | 27.3 |
| SCV-E-1432* | 240 | 3.9 | 1/2 | 300 to 1400 | 22 | 22 | 24 3/4 | 60 | 27.3 |
| SCV-E-2211* | 120 | 11.5 | 1 | 400 to 2200 | 26 | 26 | 28 3/4 | 80 | 36.4 |
| SCV-E-2212* | 240 | 6.9 | 1 | 400 to 2200 | 26 | 26 | 28 3/4 | 80 | 36.4 |
| SCV-E-2221* | 120 | 11.5 | 1 | 400 to 2200 | 26 | 26 | 28 3/4 | 80 | 36.4 |
| SCV-E-2222* | 240 | 6.9 | 1 | 400 to 2200 | 26 | 26 | 28 3/4 | 80 | 36.4 |
| SCV-E-2231* | 120 | 11.5 | 1 | 400 to 2200 | 26 | 26 | 28 3/4 | 80 | 36.4 |
| SCV-E-2232* | 240 | 6.9 | 1 | 400 to 2200 | 26 | 26 | 28 3/4 | 80 | 36.4 |
* CFM ADJUSTABLE WITH POTENTIOMETER. MAXIMUM CFM MEASURED AT 0.5’’ H2O OF STATIC PRESSURE
FOR MODEL SCV-E TO 800 CFM, ORDER A SCV-E-10XX
FOR MODEL SCV-E TO 400 CFM, ORDER A SCV-E-6XX.
TECHNICAL DRAWINGS

1400 CFM

PERFORMANCE CHARTS


AIR HANDLER INSTALLATION
N.B. Cut off power supply at circuit breaker/fuse before proceeding with the installation.
Please note that each air handler is factory inspected before shipping in order to ensure that every component is operating efficiently.
The SCV series air handler is available in several models of various capacities (from 400 to 2200 CFM). Since they are multi-position units, all models adapt easily to many applications and are suitable for horizontal, flow and downflow operations as shown in Fig. 5. In all cases, the air inlet can be connected on the left, and right, bottom or back side of the unit. The discharge is always onnected on the top side of the air handler. When installed in vertical downflow position (top side facing down), use only a ‘‘L’’ or ‘‘T’’ shaped plenum, without openings or registers directly below the unit. 
LOCATION
You must install the air handler on a dry and solid base or in a suspended ceiling. The area must be free of flammable liquids or vapors and combustible materials. If you choose to suspend the unit, you must assemble the four (4) ‘’L’’ brackets (M-SCV39Z0) into the matching corner slots as shown in the figure below. You must indicate to the air handler’s user the location of the switches and disconnects. He must be able to quickly identify them in case of an emergency. Moreover, the air handler should be located, as centrally as possible, in the area to ventilate, in order to optimize air distribution in all rooms.
CLEARANCE
The air handler is approved for ‘‘zero-inch’’ clearance. It means that you can install it directly against a wall. Ducts for models of 1400 CFM and less can also be installed with a zero-inch clearance (0 inches). However, ducts for models of 2200 CFM and more must have a 1-inch clearance for the first 36 inches of the duct. Beyond 37 inches, this clearance can be reduced to 0 inches. If you have any questions concerning clearances, please refer to the codes effective in your region Since it is necessary to open the door in the front to perform the air handler maintenance inspection, you must leave at least a 24-inch clearance in front of this door.
DUCTS
Ducts must be designed to deliver airflows to the specified external static pressure. You should insulate the ducts crossing non-heated areas.
Moreover, use flexible return and supply connectors in order to avoid vibrations as much as possible. To make your air handler even quieter, follow these instructions:
- Cover the vertical return and supply ducts with soundproofing material
- Install at most one or two elbows between registers and the return and supply connectors
- Install flexible hangers to suspend the ducts
- Install baffles in elbows with a small radius of curvature
OPTIONAL ACCESSORIES
The air handler is equipped with all devices required for the addition of an air-conditioner or heat pump (except the heat-cool thermostat). The refrigerant and drainage pipes must be installed either in the air handler’s supply or return duct and should not prevent you from removing the front door of the air handler. You can also install a thermostat with an outdoor sensor or a two-stage thermostat to control your air handler. For this type of installation, refer to the instructions supplied with the thermostat as well as the air handler’s wiring diagram.
N.B. Please note that if one of these accessories is installed, you must refer to the appropriate guide.
CONTROL BOX INSTALLATION & ELECTRICAL CONNECTIONS
Note that this product must be connected by a qualified electrician according to the electrical and building codes effective in your region.
This air handler must be connected to a 120 or 240/208-volt power source, depending on the model. For 240V power supply, either copper or aluminum wires can be used, except for 2200 CFM models where only copper wires can be used. If you want to energize the air handler at 208 VAC, you must modify a connection on the transformer’s terminal block: replace the wire connected to L2/N with the wire not connected (isolated). Refer to the local and national electrical codes to know which wire size, fuses and circuit breakers are required. You can also connect a 24 VAC humidifier directly to the 24 VAC power supply of the air handler, e.g. on the R and C terminals of the terminal block.
NO CONTROL
When the air handler is used with no controller (model # SCV-P-xx0x), the power cable must be wired through one of the two Ø7/8’’ KOE (electrical knockouts), located on either side (right and left) of the air handler, and connected to the appropriate wires in the junction box, as shown in Fig. 7. We suggest the operator add an external switch or relay to control the air handler unit:
LOW VOLTAGE CONTROL
When the air handler is used with low voltage control (model # SCV-P-xx4x), the power cable must be wired through one of the two Ø 7/8’’ KOE (electrical knockouts), located on either side (right and left) of the air handler, and connected to the appropriate terminal blocks in the junction box, as shown in Fig. 8. The low voltage control gives the installer the possibility to control the air handler unit with a low voltage contact, e.g. a 24V thermostat. In this case, the installer must use a different knock-out than the one used with the power cable (high voltage) and must connect the external low voltage wires to the appropriate terminal blocks in the junction box, as shown in Fig. 8.
WITH A LOCAL CONTROL BOX
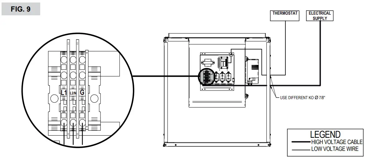
When the air handler is used with a local controller (model # SCV-x-xx1x), the installer can connect the unit by passing through a knock-out Ø7/8’’, located on either side (left and right) of the air handler cabinet, and connect to the terminal block as shown in Fig. 9. When the air handler is properly connected, the installer can connect the controller to the thermostat by passing through a different electrical knock-out Ø7/8’’ than the one used with the power cable (high voltage). The detailed functions of the local control board connections of the thermostat are explained in the following section.
CIR-019 CONTROL BOARD FUNCTIONS
The CIR-019 control board is used with all air handler models using a PSC motor (model # SCV-P-xxxx). The following figure represents the control board:
Input and output descriptions
The terminal block of the control unit fan housing (shown on the right side of Fig. 9) has the following inputs and outputs:
- R: 24Vac output (18VA Max) can supply an external controller or thermostat
- C: Common internal transformer
- 3: High-speed control signal (24Vac)
- 2: Medium speed control signal (24Vac)
- 1: Low-speed control signal (24Vac)
Priority input controls
The highest selected speed is systematically prioritized. For example, if the input of the low speed and medium are activated simultaneously, the medium speed will be prioritized.
TYPICAL THERMOSTAT CONNECTION
The following figure shows a typical connection with a 24Vac thermostat. For more clarity, the air handler cabinet is not shown on this fig. If needed, refer to Fig. 9 to see the entire connection path.
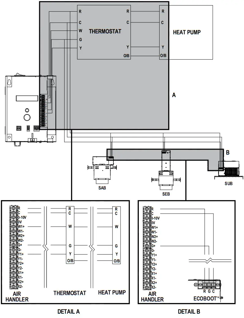
TYPICAL HEAT PUMP CONNECTION
The following fig. 12 shows a typical connection with a 24 Vac thermostat with heat pump. For more clarity, the air handler cabinet is not shown on this fig. If needed, refer to Fig. 9 to see the entire connection path.
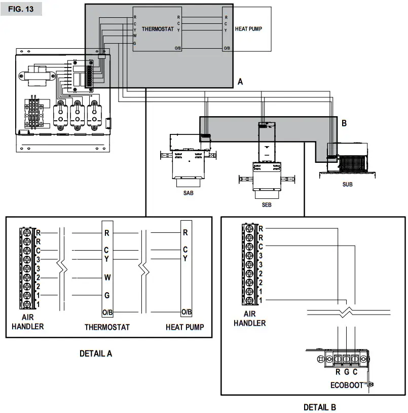
TYPICAL HEAT PUMP AND ECOBOOT™ CONNECTION
The following fig. 13 shows a typical connection with a 24Vac thermostat with heat pump and Ecoboot™ heating system (SAB, SEB & SUB series). For more clarity, the air handler cabinet is not shown in the figure. If needed, refer to Fig. 9 to see the entire connection path.
CIR-028 CONTROL BOARD FUNCTIONS
The CIR-028 control board is used with all air handler models using an ECM motor with a local control box. The following figure represents the control board:
Input and output descriptions
The terminal block of the control unit fan housing (shown on the right side of Fig. 14) has the following inputs and outputs:
- R: 24Vac output (18VA max) can supply an external controller or thermostat
- C: Common internal transformer
- 1: Airflow #1 control signal (24Vac)
- 2: Airflow #2 control signal (24Vac)
- 3: Airflow #3 control signal (24Vac)
Priority input controls
Input controls activate speed airflow prioritizing the highest selected. If the airflow #1 input is adjusted to 500 CFM and airflow #2 is set to 700 CFM, and both are activated simultaneously, airflow #2 set to 700CFM will be prioritized.
Airflow adjustment
The control board has three (3) independently adjustable inputs (see Fig. 13). To adjust the corresponding input to the desired airflow, turn the knob to the desired airflow. Pilot lights indicate which, if any, input is activated. It should be noted that only the highest active airflow will be prioritized.
TYPICAL THERMOSTAT CONNECTION
The following figure shows a typical connection with a 24Vac thermostat. For more clarity, the air handler cabinet is not shown here. If needed, refer to Fig. 9 to see the entire connection path.
TYPICAL HEAT PUMP CONNECTION
The following fig. 16 shows a typical connection with a 24 Vac thermostat with heat pump. For more clarity, the air handler cabinet is not shown on this fig. If needed, refer to Fig. 9 to see the entire connection path.
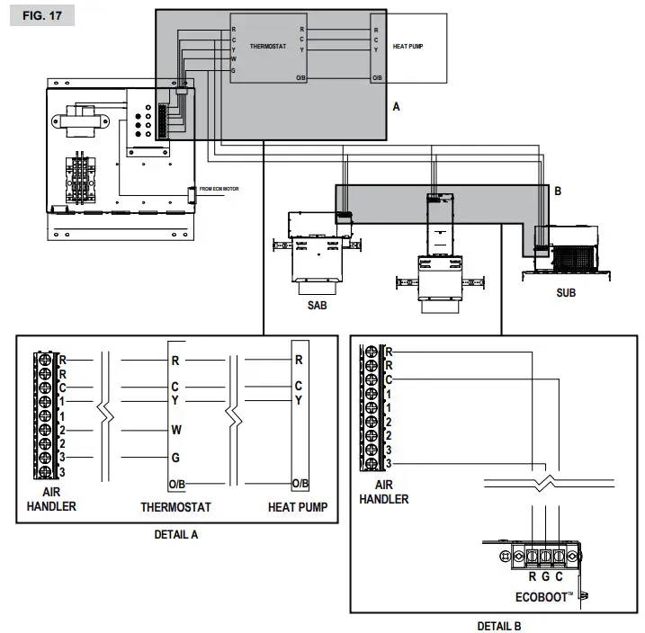
TYPICAL HEATPUMP AND ECOBOOT™ CONNECTION
The following figure shows a typical connection with a 24Vac thermostat with heat pump and Ecoboot™ heating system (SAB, SEB & SUB series).
For more clarity, the air handler cabinet is not shown here. If needed, refer to Fig. 9 to see the entire connection path.
CONTROL BOX REMOTE INSTALLATION
When the air handler is used with a remote control box (model # SCV-E-xx2&3x), both assemblies are installed remotely from one another with a maximum distance in between determined by the length of cable harness linking them both (HAR-091 for 120’’ long and HAR-092 for 48’’ long). This alternate configuration does not require any changes to the unit’s high voltage wiring (refer to Fig. 9). The installer must remove the rectangle knock-out plate located on either side (left and right) of the cabinet and install the plate and connector assembly with two metal screws, as shown in Fig. 18 below.
The installer must determine the location of the remote control box and install it on the wall with four (4) screws, as shown in Fig. 19.
The installer must connect the air handler to the deported control box with the appropriate harness (part # HAR-091 for 120’’ length and HAR-092 for 48’’ length), as shown in Fig. 20.
CIR-020 CONTROL BOARD FEATURES
The CIR-020 is the electronic board used in the remote control box. The following figure represents the control board with the location of its different features:
FIG. 21
Input and output descriptions
The terminal block of the control unit fan housing (shown on the right side of Fig. 21) has the following inputs and outputs:
- R (output): 24Vac (18VA max) can supply an external controller or thermostat
- C: common internal transformer
- 0-10V (input): signal proportional control 0-10V or 4-20 mA (with jumper)
- 0V (input): signal common 0-10V or 4-20 mA (with jumper)
- W1+ (input): signal control 24V (AC or DC)
- W- (input): signal common W1+
- W2+ (input): signal control 24V (AC or DC)
- W2- (input): signal common W2+
- G+ (input): signal control 24V (AC or DC)
- G- (input): signal common G+
- Y1+ (input): signal control 24V (AC or DC)
- Y1- (input): signal common Y1+
- Y2+ (input): signal control 24V (AC or DC)
- Y2- (input): signal common Y2+
- X1+ (input): signal control 24V (AC or DC)
- X1- (input): signal common X1+
- X2+ (input): signal control 24V (AC or DC)
- X2- (input): signal common X2+
Inputs (W1, W2, G, Y1, Y2, X1, and X2) are all inherently identical except for their respective settings which are to be specified by the installer.
Therefore, their respective tags only serve to differentiate them in the settings menu. There is no limitation for use or modification. However, the name can’t be changed in the screen. For example, a control having an output W3 could be connected to the input Y1. Therefore, the input programmed would appear in Y1 menu.
Jumper descriptions
Jumpers are located just beside the terminal block on the control board (refer to Fig.21) with the following descriptions:
- 24Vac jumper conversion 0-10V to 4-20mA (let jumper location J21 empty for 0-10V control or install jumper for 4-20mA control)
- Jumper junction between the input common 0-10V and the common of the air handler’s transformer
- Jumper junction between the input common W1 and the common of the air handler’s transformer
- Jumper junction between the input common W2 and the common of the air handler’s transformer
- Jumper junction between the input common G and the common of the air handler’s transformer
- Jumper junction between the input common Y1 and the common of the air handler’s transformer
- Jumper junction between the input common Y2 and the common of the air handler’s transformer
- Jumper junction between the input common X1 and the common of the air handler’s transformer
- Jumper junction between the input common X2 and the common of the air handler’s transformer

MENU button and adjusting knob
Fan control mode can be selected by pressing and holding the “MENU” button for 16 seconds, located just under the display screen (refer to Fig.
21). The control mode menu will be displayed (see figure below) to allow the operator to choose the appropriate mode, CFM or H2O (“wc) or RPM by using the rotating adjustment knob, located just under the “MENU” button (refer to Fig. 21). After selecting the mode, the operator must press the mode button to validate the selection. When a mode is selected, each input is configured for the selected mode. The active input with the highest value overrides all other inputs.
To access the programming menu entries, the installer must press the “MENU” button. By pressing this button, the installer can browse through all programmable fan control inputs. To change a setting, the installer must turn the adjustment knob to obtain the desired value. When the desired value is obtained, the installer can press the “MENU” button to continue browsing. If the same value is displayed for 8 seconds without being selected, the interface will revert back to the main menu.
FIG. 24
The “0-10v” analog mode requires the selection of the upper limit CFM value which will be associated to 10V. The “0-10v” input can also be converted to accept a 4-20 mA signal.
FIG. 25
Pressure and temperature sensor
The use of a remote pressure sensor is required with the “H2O (“wc)” mode. A temperature probe can also be used as an optional device. For this application, the two probes need to be connected as shown in the figure below. To be properly connected, the installer needs to secure the cable by using a tie-wrap.
USB
For future applications.
Continuous ventilation switch
The fan control may be realized locally with the rocker switch on top of the remote control (refer to Fig. 21). When this selector is in central position, continuous ventilation is deactivated, whereas the “LO” and “HI” positions activate the continuous ventilation. These two positions are programmable in the input menu, as shown in Fig. 27:
FIG. 27
TYPICAL THERMOSTAT CONNECTION
The following figure shows a typical connection with a 24Vac thermostat using the transformer of the air handler. In this example, the input “W1-” is not connected since it is related to the controller with the jumper.
The following figure shows a connection with two (2) 24Vac thermostats, one using the transformer of the air handler and the other one using an external transformer. When wired to an external transformer, the thermostat “C” must to be connected in the input “Y1-”. If a “C” wire from an external system is connected to the control fan, the jumper needs to be removed (see Fig. 29).
TYPICAL HEAT PUMP CONNECTION
The following fig. 30 shows a typical connection with a 24 Vac thermostat with a heat pump. For more clarity, the air handler cabinet is not shown on this fig. If needed, refer to Fig. 20 to see the entire connection path.
FIG. 30
TYPICAL HEAT PUMP AND ECOBOOT™ CONNECTION
The following figure shows a typical connection with a 24Vac thermostat with a heat pump and Ecoboot™ (SAB, SEB & SUB series) heating system.
FIG. 31

ELECTRICAL CONNECTION OF THE THERMOSTAT
The thermostat must be mounted on a connection box, at approximately 1.5 m (5 feet) above floor level, on a section of the wall exempt from pipes or air ducts. Do not install the thermostat in a location with fluctuating temperature measurements.
For example:
- close to a window, on an external wall, or close to a door leading outside
- exposed directly to the light or heat of the sun, a lamp, a fireplace or any other heat source
- close or in front of an air outlet
- close to concealed ducts or a chimney
- in a location with poor airflow (e.g. behind a door), or with frequent air draft conditions (e.g. head of stairs)
Seal wall openings in order to minimize the drafts which can alter temperature measurements. Read the thermostat user guide carefully.
MAINTENANCE 
N.B. In order for the warranty to be valid, the unit must be cleaned regularly.
Cut off power supply at circuit breaker/fuse before cleaning the unit. Use a soft rag for dusting. When cleaning, use only a damp rag and non-abrasive dish soap. Do not use abrasive or chemical cleaners because they may damage the finishing. If the unit is used in a very dusty location, use a vacuum brush to remove dust and other foreign objects.
Do not use cleaning products identified with these symbols: 
N.B.
Note that there is an electrical current linked to the unit even if the thermostat is set off. This means that there is a risk of electric shock as long as the unit is energized.
PREVENTIVE MAINTENANCE
Do not try to repair your air handler yourself. Call a qualified technician.
However, before calling a technician, check the following points.
- Make sure fuses or circuit breakers are activated.
- Adjust the controls to create a demand for ventilation. If ventilation does not start, cut off the power supply and call a technician.
N.B. When calling a technician for maintenance or to order a replacement part, specify the model of your air handler as well as its serial number.
BLOWER
The blower motor is sealed and permanently lubricated, so it is not necessary to lubricate it.
Even if you change the filter frequently, the blower’s blades and motors will become dust laden after a few months. The entire blower assembly should be inspected annually. If needed, vacuum out the dust. If you cannot clean the blower without removing it from the air handler, this service must be performed by a qualified technician.
TROUBLESHOOTING
| PROBLEM | DEFECTIVE PART OR PART TO CHECK |
| The unit does not work | – Open circuit breaker or fuse – Faulty transformer – Faulty blower control switch – Defective thermostat, wrong thermostat setting or positioning – Faulty connections – Faulty relay – Faulty motor or condensator |
| The unit runs continuously | – Blower control switch is defective or in the continuous position – Defective thermostat, wrong thermostat setting or positioning – Thermostat wire incorrectly connected to air handler – Faulty 24 volt relay |
| The unit cycles continuously | – Blower control switch is defective or cycles – Defective thermostat, wrong thermostat setting or positioning – Thermostat wire incorrectly connected to air handler – Faulty 24 volt relay |
| The breaker trips when the motor is turned on | – Voltage different than that indicated on the nameplate – Faulty connections – Faulty motor |
N.B. If you do not solve the problem after checking these points, cut off the power supply at the main electrical panel and contact our customer service (see the “Limited Warranty” section to obtain the phone numbers).
REPLACEMENT COMPONENT LIST
| REF. # | PART # | DESCRIPTION |
| 1 | CAP-001 | CAPACITOR 7,5UF 370V FOR 1/2 HP MOTOR V240/208V, FOR 1/3 HP 120V |
| 1 | CAP-003 | CAPACITOR 10UF 370V FOR 120V 1/2 HP |
| 1 | CAP-002 | CAPACITOR 20UF 370V FOR 1 HP MOTOR 208/240V, FOR 120V 1HP |
| 1 | CAP-010 | CAPACITOR 6UF 370V FOR 208/240V 1/3 HP |
| 1 | CAP-039 | CAPACITOR 15UF 370V FOR ¾ HP 120V, FOR 3/4 HP 208/240V |
| 2 | BLO-006 | BLOWER AND BLOWER WHEEL HOUSING FOR SCV-400 & 600 SERIES |
| 2 | BLO-007 | BLOWER AND BLOWER WHEEL HOUSING FOR SCV-800 & 1000 SERIES |
| 2 | BLO-004 | BLOWER AND BLOWER WHEEL HOUSING (10-8) FOR SCV-1400 SERIES |
| 2 | BLO-005 | BLOWER AND BLOWER WHEEL HOUSING (12-11) FOR SCV-2200 SERIES |
| 3 | MO-049 | PSC MOTOR 1/3 HP – 120V FOR SCV-P-400/600/800/1000 SERIES |
| 3 | MO-073 | PSC MOTOR 115V, 3/4 HP, 9,5A, 60HZ, 1075 RPM |
| 3 | MO-074 | PSC MOTOR 208/230V, 3/4 HP, 4A, 60HZ, 1075 RPM |
| 3 | MO-075 | PSC MOTOR 115V, 1HP 12,1A, 60HZ, 1075 RPM |
| 3 | MO-036-1 | PSC MOTOR 1/3 HP – 240/208V FOR SCV-P-400/600/800/1000 SERIES |
| 3 | MO-071 | PSC MOTOR 1/2 HP – 120V FOR SCV-P-1400 SERIES |
| 3 | MO-072 | PSC MOTOR 1/2 HP – 240/208V FOR SCVP-1400 SERIES |
| 3 | MO-037 | PSC MOTOR 1 HP – 240/208V FOR SCV-P-2200 SERIES |
| 3 | MO-034 | ECM MOTOR 1/2 HP FOR SCV-E-1400 SERIES |
| 3 | MO-035 | ECM MOTOR 1 HP FOR SCV-E-2200 SERIES |
| 4 | 130-25-001 | 120/24/20VA TRANSFORMER |
| 4 | TRF-023 | 240-208/24/20VA TRANSFORMER |
| 5 | REL-004 | 24VAC RELAY 120/208/240/277, FORM X, 1NO/1NC, 18 A RES. |
| 6 | CIR-019 | ELECTRONIC CONTROL FOR SCV WITH PSC MOTOR |
| 6 | CIR-020 | ELECTRONIC CONTROL FOR SCV WITH ECM MOTOR |
| 6 | CIR-028 | ELECTRONIC CONTROL FOR SCV WITH ECM MOTOR – 3 SPEEDS |
LIMITED WARRANTY
This limited warranty is offered by Stelpro Design inc. (“Stelpro”) and applies to the following product made by Stelpro: SCV model. Please read this limited warranty carefully. Subject to the terms of this warranty, Stelpro warrants its products and their components against defects in workmanship and/or materials for the following periods from the date of purchase: 5 years (3 years on electronic components).. This warranty applies only to the original purchaser; it is non-transferable and cannot be extended. LIMITED
If at any time during the warranty period the unit becomes defective, you must cut off the power supply at the main electrical panel and contact 1) your installer or distributor, 2) your service center or 3) Stelpro’s customer service department. In all cases, you must have a copy of the invoice and provide the information written on the product nameplate. Stelpro reserves the right to examine or to ask one of its representatives to examine the product itself or any part of it before honoring the warranty. Stelpro reserves the right to replace the entire unit, refund its purchase price or repair a defective part. Please note that repairs made within the warranty period must be authorized in advance in writing by Stelpro and carried out by persons authorized by Stelpro.
Before returning a product to Stelpro, you must have a Stelpro authorization number (RMA). To obtain it, call the customer service department at: 1400-363-3414 (electricians and distributors – French), 1-800-343-1022 (electricians and distributors – English), or 1-866-766-6020 (consumers). The authorization number must be clearly written on the parcel or it will be refused.
CONDITIONS, EXCLUSIONS AND DISCLAIMER OF LIABILITY
This warranty is exclusive and in lieu of all other representations and warranties (except of title), expressed or implied, and Stelpro expressly disclaims and excludes any implied warranty of merchantability or implied warranty of fitness for a particular purpose. Stelpro’s liability with respect to products is limited as provided above.
Stelpro shall not be subject to any other obligations or liabilities whatsoever, whether based on contract, tort or other theories of law, with respect to goods or services furnished by it, or any undertakings, acts or omissions relating thereto. Without limiting the generality of the foregoing, Stelpro expressly disclaims any liability for property or personal injury damages, penalties, special or punitive damages, damages for lost profits, loss of use of equipment, cost of capital, cost of substitute products, facilities or services, shutdowns, slowdowns, or for other types of economic loss or for claims of a dealer’s customers or any third party for such damages. Stelpro specifically disclaims all consequential, incidental and contingent damages whatsoever.
This warranty does not cover any damages or failures resulting from: 1) a faulty installation or improper storage; 2) an abusive or abnormal use, lack of maintenance, improper maintenance (other than that prescribed by Stelpro) or a use other than that for which the unit was designed; 3) a natural disaster or an event out of Stelpro’s control, including, but not limited to, hurricanes, tornadoes, earthquakes, terrorist attacks, wars, overvoltage, flooding, water damages, etc. This warranty does not cover any accidental or intentional losses or damages, nor does it cover damages caused by negligence of the user or owner of the product. Moreover, it does not cover the cost of disconnection, transport, and installation.
The warranty is limited to the repair or the replacement of the unit or the refund of its purchase price, at the discretion of Stelpro. Any parts replaced or repaired within the warranty period with the written authorization of Stelpro will be warranted for the remainder of the original warranty period. This warranty will be considered null and void and Stelpro will have the right to refuse any claims if products have been altered without the written authorization of Stelpro and if the nameplate numbers have been removed or modified. This warranty does not cover scratches, dents, corrosion or discoloration caused by excessive heat, chemical cleaning products and abrasive agents. It does not cover any damage that occurred during the shipping. Some states and provinces do not allow the exclusion or limitation of incidental or consequential damages and some of them do not allow limitations on how long an implied warranty lasts, so these exclusions or limitations may not apply to you. This warranty gives you specific legal rights and you may have other rights which vary from state to state or from province to province.
STELPRO DESIGN INC.
Saint-Bruno-de-Montarville
Quebec | J3V 6L7
INSSCV0522
LIMITED WARRANTY
















