FLEXIHEAT Thermo-Combi Electric Boiler

WE ARE NOT LIABLE FOR DAMAGES RESULTING FROM NON-OBSERVING THESE INSTRUCTIONS
Safety information and warning
Read this document carefully before manipulation, any installation, setup, or service, and follow the instructions
- Keep these instructions in the vicinity of the boiler!
- The boiler is not allowed to modify.
- Adjusting correctly is important for economical heating.
- At each contact with the manufacturer or authorized service call to the factory-a number that is printed on the identification label on the boiler.
Children in the household!!!
- Please supervise children who are retained in the vicinity of the device. Do not allow children to play with the device.
- User cleaning and maintenance may not work children unattended.
- The boiler is not intended for the installation in the open air.
Technical security!!
- Keep the water pressure in the boiler according to the manufacturer’s recommendations-see section 3.2.
- Do not mount the boiler in the vicinity of sources of heat (open fireplace, wood stove, etc.).
- Improper repairs can cause a serious danger to the safety of the user.
- Defective parts may be replaced only with original or approved by the manufacturer.
- Turn off the main power before opening or any work on the boiler.
- The boiler has a built-in protection against frost damage. If the boiler in winter period does not use mandatory should be left active main power (boiler can be turned off on the control panel) so that the protection was active.
Introduction
Thank you for the confidence you have shown to us by having purchased our boiler for central heating and sanitary water preparation.
For correct and safe and above all economic use of the product, before assembly and connection, read thoroughly these instructions.
Packing contains the following elements: boiler (1), suspension support (3), user’s instructions and letter of guarantee (3), valve for filling and emptying (4), impurities collector (5), plastic pipe for venting the system.
The Thermo-Combo boilers meet any and all national regulations and legal standards. Pursuant to the mentioned before, the certification of the product was done according to the valid EN and HRN standards.
You can take insight into the certificates at the point of sale, authorized service.
About the product
THERMO-Combi is the economic boiler for central heating and sanitary water preparation that may be used as the independent source of heat.
The boiler is operated on the principle of rapid heating smaller water quantities and its energy exploitation is almost 100%
THERMO-Combi is suitable for using in smaller business premises, flats, smaller catering objects etc., where it is important that it takes up small space
Temperature range of operation is for sanitary water from 30oC up to 55 ºC, for central heating from 30oC up to 90 ºC.
Construction
The electric boiler THERMO-Combi is made of quality boiler metal sheet. The boiler itself is upon welding sandblasted and protected with quality reactive fundamental color.
At the bottom side of the boiler there are built in electric heaters. From the upper side there is the blind tube for placing the sounding tube of capillary thermostat, temperature, pressure and thermal fuse indicator. The boiler is insulated with 19 mm self-extinguishing insulating material, which is sufficient to direct all the heat only to the heating and sanitary water preparation system.
Integral parts of the THERMO-Combi Boiler

- Central heating primary flow
- Central heating return flow
- External shell of the boiler
- Boiler
- Thermal insulation
- Electric heaters
- Control panel
- Boots for el. terminals
- Contactors
- Expansion vessel
- Central heating pump
- Safety valve at 3 bar
- Automatic venting valve
- Filling and emptying valve (in packing, it should be built in at installation)
- Valve for boiler venting
- Sounding tube for air appearance control
- Distributor
- Miniature circuit breaker (MCB)
- Temperature sensor of sanitary water outlet line
- Exchanger
- Temperature sensor of sanitary water inlet line
- Non-return valve
- Pump for sanitary water preparation
- Sanitary water intake
- Sanitary water output
- Safety valve at 8 bar
- Automatic venting valve
- Boiler’s temperature sensor
Installation
Important warnings
THE GUARANTEE SHALL NOT BE ACCEPTED IF THE FOLLOWING WAS NOT OBSERVED
- THE BOILER SHOULD BE PUT INTO OPERATION BY THE AUTHORIZED SERVICE,
- THE ENCLOSED IMPURITIES COLLECTOR SHOULD BE BUILT IN ON THE STARTING LINE OF CENTRAL HEATING AND INLET COLD SANITARY WATER,
- PRIOR TO CONNECTING THE BOILER TO THE SANITARY WATER LINE, PIPES SHOULD BE CLEANED IN ORDER TO AVOID THE BLOCKAGE OF THE EXCHANGER.
THE LIST OF AUTHORIZED SERVICES IS ON THE
BACK OF THE LETTER OF GUARANTEE
THE BOILER SHOULD NOT BE INSTALLED ON PLACEC WHERE THERE IS A DANGER OF BEING PORING OVER WITH WATER OR A DANGER OF SINKING.
IN AREAS WITH STRONG CONCENTRATION OF LIME IT IS RECOMMENDED TO BUILD IN A MAGNETIC OR ELECTROMAGNETIC LIME BREAKER ON THE INLET LINE OF SANITARY WATER ON THE BOILER.
Assembly

THERMO-Combi is foreseen for the wall assembly and for the easier assembly, on the backside there is foreseen the suspension support. For the suspension you may use metal wall plugs with the screw M8 or M10 or stronger plastic wall plugs – diana screws.
Precise dimensions of boilers are given in the 7. Technical specification
Filling and emptying valve is delivered together with the boiler and should be assembled at the installation.
If possible, the boiler should be assembled to the lowest point in relation to installation. In this way we are protecting the boiler from air appearance, which may leave heaters without water that could result in their burning through.
Assembly (Continued)

Prior to putting into operation, the system should be vented and that both central heating and sanitary water circle.
Illustration of how to correctly vent the water circle on upper side of Thermo-Combi. Protection cap should be release on automatic venting pots (1 and 2). Plastic pipe should be attached to valve (3) prior venting the water circle.
Thermo-Combi 15-24kW

On the illustration you can see: ground terminal (1), neutral wire terminal (2), operating current trips (3), MCB (miniature circuit breaker) (4), cartridge fuse 6.3A/T for control power (5), cartridge fuse 6.3A/T for safety thermostat (STB) (6) and PCB with power relays and connectors for pumps, room ‘stat and all probes – (REL Board) (7).
Thermo-Combi 28-40kW

On the illustration you can see: ground terminal (1), neutral wire terminal (2), operating current trips (3), MCB (miniature circuit breaker) (4), cartridge fuse 6.3A/T for control power (5), cartridge fuse 6.3A/T for safety thermostat (STB) (6), contactors (quantity of elements depends about nominal rated power of boiler) (7) and plate with connectors for pumps, room ‘stat and all probes (8).
Power supply connection
Note:
Before working on the boiler, turn off the power (e.g. MCB, switches) and secure against accidental switching on. Tightening torque for MCB is 2.0 Nm.
A boiler is rated as a high power appliance and fixed wiring must be used. Please observe chapter 2.4.
about fuse and conductor requirements. When connecting the appliance to the fixing wiring, the means for disconnection (MCB) must be incorporated in fixing wiring in accordance with the local wiring rules.
This device must be earthed.
Power connection (main power terminals):

Connection way to the main power terminal may be vary depending on elements installed inside the boiler.
Note:The power cable of the intersection from Ø6 mm to Ø21 mm must be connected with the bottom of the boiler, with the help of a special introducetor (located on the boiler). All wires inside the electrical connection place must be tighted. Pay attention when connecting the power cable so that the phase conductor is not mistakenly connected to the remote shunt release marked by “-KF11”, to the right of the MCB. |
Connecting temperature sensors, room thermostat or external electrical controls
Accessing connection plate
In order to access connection plate (2) power connection protection cover (1) must be removed by unwinding two M4 screws and pulling protection cover out. After connecting the power cable, protective cover (1) must be put in place and tightened.
Connecting sensors or room thermostat on connection plate

Use of the product
Control panel

- Multipurpose – temperature indicator (temperature of boiler, sanitary water, adjustment of temperature)
- Signalization of operation degree of heaters (1., 2., 3.)
- Signalization of boiler operation (green light
- Adjustment of temperature in boiler
- Push button for central heating switching on and off
- Sanitary water temperature adjustment
- Push button for switching on and off the sanitary water preparation
- Signalization of sanitary water preparation and consumption
- Indicator of pressure in a boiler
- Thermal fuse
Switching on of central heating
By pressing the push button (5), the central heating system is switched on. Upon pressing on the desired water temperature in boiler is displayed for 5 seconds, signalization of central heating operation (3) is twinkling. After 5 seconds the real temperature in the boiler is displayed (1); if the current temperature in the boiler meets the desired one, the signalization lamp of the operation mode (3) is switched off.
Adjustment of desired temperature of central heating
By pressing the push button for temperature adjustment (4) the desired temperature in the boiler appears, the signalization lamp of the boiler operation (3) is twinkling. By repeated pressing upwards or downwards it is possible to increase or decrease the desired water temperature. When the temperature is adjusted it is sufficient to wait for 5 seconds (signalization lamp of the boiler operation (3) does not twinkle) in order for the boiler to memorize new temperature.
Switching on of domestic water heating
By pressing the push button (7), the DHW system is switched on. Upon pressing on the desired water temperature in boiler is displayed for 5 seconds, signalization of DHW operation (8) is twinkling. After 5 seconds the real temperature in the boiler is displayed (1)
Adjustment of desired temperature of central heating
By pressing the push button for temperature adjustment (6) the desired temperature in the boiler appears, the signalization lamp of the boiler operation (8) is twinkling. By repeated pressing upwards or downwards it is possible to increase or decrease the desired water temperature. When the temperature is adjusted it is sufficient to wait for 5 seconds (signalization lamp of the boiler operation (8) does not twinkle) in order for the boiler to memorize new temperature.
Central heating functions

Display of desired temperature in the boiler
If the key (4) is held pressed less than 5 s the LED display will show the desired temperature in the boiler. The value is displayed for 5 seconds, after which the display normally shows the real temperature of water in the boiler.
Setting the desired temperature in the boiler
By pressing the key (4) user can enter the boiler temperature menu.
The desired boiler temperature is blinking.
By pressing the key (4) UP or DOWN, the desired boiler temperature can be set in steps of 1°C.
If the key is held pressed less than 5 s the value from the display becomes the desired boiler temperature.
Possible adjustment is from 20°C up to 90°C for radiator heating.
Possible adjustment is from 15°C up to 45°C for under floor heating.
Reset to factory defaults
By pressing the key (4) longer than 15 seconds, all parameters will return to the factory default values and controller will be reset.
Domestic water functions

Display of desired temperature of domestic water
If the key is held pressed less than 5 s the LED display will show the desired temperature in domestic water storage. The value is displayed for 5 seconds, after which the display normally shows the real temperature of water in the boiler.
Setting the desired temperature in domestic water storage
By pressing the key (6) user can enter the domestic water temperature menu.
The desired water temperature in domestic water storage is blinking.
By pressing the key (6) the value of desired domestic water temperature in domestic water storage is changing in steps of 1°C. If the key is held pressed less than 5 s the value from the display becomes the desired domestic water temperature.
Possible adjustment is from 10°C up to 65°C.
Factory adjustment is 50°C
Displaying software version and factory reset
By pressing the key (6) longer than 15 s, the LED will show the software version and the factory reset of central heating parameters will occur.
Continuation…

Display of current temperature in the domestic water storage
By pressing the key down (6) user can select the display of current temperature in the domestic water storage. The value is displayed for 5 s, after which display returns to indication of the actual temperature of water in the boiler..
Setting additional working time of domestic water pump
By pressing the key (6) user can setup additional working time of domestic water pump.
The time of supplemental operation of circulation pump operation for domestic water conditioning is blinking.
By pressing the key the time is changing from 0,1 min up to 19 min. In increment of 0,1. If the key is depressed for more than 5s, value on the display will be memorized and becomes active.
Factory default: 1 min.
Setting standby boiler temperature
By pressing the key (6) user can setup stand by boiler temperature
Display will show current standby boiler temperature.
Pressing the key (6) will change standby temperature by 1°C. If the key is depressed for more than 5s, value on the display will be memorized and becomes active.
Adjustment range: 10°C – 50°C
Factory default: 15°C
Reset to factory defaults
By pressing the key (6) longer than 15 seconds, all parameters will return to the factory default values and controller will be reset.
Access to special service menu

Access to special service menu
Limiting maximum boiler temperature
By pressing the key (4) user can limit maximum boiler temperature.
Factory defined maximum temperature starts to blink. By pressing up or down user can set new maximum temperature. If the key is depressed for more than 5s, value on the display will be memorized and becomes active.
Adjustment range 60°C-90°C, factory default 80°C
Setting the minimal boiler temperature
By pressing the key (4) user can set minimal boiler temperature.
Minimal boiler temperature starts blinking.
By pressing the key user can select the desired minimal boiler temperature. Temperature changes in steps of 1°C. If the key is depressed for more than 5s, value on the display will be memorized and becomes active.
Adjustment range 20°C-45°C, factory default 45°C Setting the central heating pump delay
By pressing key (4) user can change pump delay time between 0 – 15 min. Factory settings is 2.
Selecting the time delay between steps for power regulation
By pressing the key (4) user can change the time delay between steps for power regulation in the range from 5 to 60seconds. Default value depends on the number of stages for power regulation – each stage will add 5 seconds. For example, 3 stages will have 3*5=15 seconds between successive stages turn-on, 7 stages will have 7*5=35 seconds between sucessive stages turn-on. Turn of delay is fixed to 1 second.
Selecting the number of steps for power regulation
By pressing the key (4) servicer can change the number of steps for power regulation.
By pressing the key it is possible to select 2 to 7 steps for power regulation. Default settings: – 3 power levels. Change in the number of stages will cause time delay parameter to be changed (see below) !
Note:
If boiler power is limited, power of central heating will be reduced as well as power of domestic warm water heating.
In that case boiler may not be able to reach desired domestic warm water temperature.
Use of the boiler
First putting on at the beginning of a season
For the first putting on at the beginning of a central heating season, the first step should be to put on the boiler by means of the switch for central heating (5), temperature in the boiler (1) should be adjusted to 30°C (in this was the heaters are disconnected and only circulation pump is in operation).
Warm water preparation is put on by means of the switch for sanitary water (7)
If upon putting on the boiler there is no noise of water or the central heating if warm water pump does not run (during operation, the pump produces slight vibrations) the pump should be manually started. Circulation pumps lubricate bearings with water flowing through the pump and after stoppage it could occur that the bearings “burn”.
Starting the pump (only for IMP GHN pumps)
For starting the pump it is necessary to turn off the protection plug on its front side (1) below which there is the axis with the groove for screwdriver. With the screwdriver, the pump (2) should be several times turned in direction of the arrow on the pump head and the boiler should be put on again.
When the pump starts, the operation temperature of water in boiler and temperature of sanitary water should be selected. For central heating the optimal temperature is between 60 and 70°C, whereas for sanitary water optimal temperature ranges from 45 to 48°C.
If to the boiler a room thermostat is connected, a desired room temperature should be adjusted according to the instructions of the producer of room thermostat.
Manipulation with automatic equipment
Putting on and of the sanitary water preparation
The boiler is switched on by means of the main switch (7), for switching on, the switch should be put in the position 1. Upon switching on a desired water temperature in boiler is displayed for 5 seconds, signalization of sanitary water preparation is twinkling (8). Upon 5 seconds real temperature of sanitary water outlet is displayed (1); if there is no requirement for sanitary water, the signalization lamp of sanitary water preparation (8) is switched off.
By switching the switch (7) to the position 0, the sanitary water preparation is put off. The entered desired temperature of sanitary water shall be stored.
Adjustment of desired temperature of sanitary water
By pressing the key for temperature adjustment (6) the desired warm water temperature appears, the signalization lamp of sanitary water preparation (8) is twinkling. By repeated pressing upwards or downwards it is possible to increase or decrease the desired sanitary water temperature. When the temperature is adjusted it is sufficient to wait for 5 seconds (signalization lamp of sanitary water preparation (8) does not twinkle) in order that the boiler memorizes a new temperature.
Use of sanitary water
If there is a need for sanitary water, the signalization lamp of sanitary water preparation turns on (8) and the temperature of warm water outlet displays. Signalization of operation degree of heaters (2) displays and by turning on lamps it is shown whether one group of heaters is in operation, two or all three groups.
The boiler automatically controls a heater operation degree
Putting on central heating
By switching the switch (5) to the position 1, the central heating system is switched on. Upon switching on a desired water temperature in boiler is displayed for 5 seconds, signalization of boiler operation is twinkling (3). Upon 5 seconds real temperature in the boiler is displayed (1); if the current temperature in boiler meets the desired one, the signalization lamp of boiler operation (8) is switched off.
Adjustment of desired temperature of central heating
By pressing the key for temperature adjustment (4) the desired temperature in the boiler appears, the signalization lamp of boiler operation (3) is twinkling. By repeated pressing upwards or downwards it is possible to increase or decrease the desired sanitary water temperature. When the temperature is adjusted it is sufficient to wait for 5 seconds (signalization lamp of boiler operation (8) does not twinkle) in order that the boiler memorizes a new temperature.
Parallel operation of central heating and sanitary water
When both modes of operation are active, central heating and sanitary water preparation, the boiler prefers sanitary water.
If there is a requirement for warm water, the boiler starts with preparation of sanitary water, the lamp (8) turns on, whereas the boiler operation signalization turns off (3); temperature indicator (1) displays the current temperature of warm water outlet.
Air in the boiler “LU” (1)
If in the boiler the air appears, the display will signal air in the boiler by showing message “LU”, and the boiler stops the operation. In this way the boiler is protected against blowing because of appearance of air. For continuation of operation, the boiler should be vented. If the boiler is correctly vented, the operation of boiler continues automatically.
Voltage drop “SP” (1)
If the voltage in the network line drops below 175V by phase, the display will signal under voltage protection by showing message “SP”, the boiler automatically switches off in order to protect electronics and contactors inside the boiler. The boiler shall automatically continue the operation when the network voltage reaches values above 185V.
Overheating “OH” (1)
If temperature inside the boiler reaches 110°C, and thermal fuse (10) switch off, boiler stops the operation until thermal fuse is reset. The display will signal overheating protection by showing message “OH”,
Thermal fuse – turning on
By means of thermal fuse (1) the boiler is protected against rapid increase of temperature above 110°C. The fuse turns off the boiler and ejects the MCB (miniature circuit breaker).
For continuation of operation it is necessary to take off the protection cover from the thermal fuse and press the white key, upon which the MCB should be switched on again.
*If the temperature of water inside the boiler exceeds 90°C, the thermal fuse can not be reset. In order to reset the thermal fuse, it is necessary to wait for the water temperature to drop below 90°C.
After resetting the thermal fuse, make sure the MCB iš switched on. The control and power circuits are separated and the boiler control can be active if energy part is disfuncioned.
Recommendations for optimal use

Central heating
For optimal use of the boiler and electric power consumption, we recommend the use of quality room thermostat connected to the boiler.
Daily temperature should be between 20°C i 22°C (for each degree above 22°C the consumed energy is increasing exponentially).
For the night operation we recommend temperature between 15 i 17 °C. In this way energy saving is higher than in case of complete turning off the boiler during the night.
If there is no room thermostat, for night operation the temperature in boiler should be decreased to about 40°C or turned off completely (9. main switch).
In summer period, valves below boiler should not be closed (closing valves disables water circulation in system (10 – 15 seconds) generated by safety thermostat.
Warm water
Optimal temperature of sanitary water, in boiler, is 42°C up to 45°C (above 48°C it comes to increased lime separation that sticks to the exchanger, tubes and pump and may lead to gradual decrease of boiler effect).
Maintenance

We recommend the inspection of a device once a year by the authorized service (before heating season). This service is not included in the guarantee. During the inspection all electric and water connections should be tightened, the system should be vented and – if necessary – filled up, valves and general functionality of the device should be checked.
If you notice a reduced effect of warm water it is necessary to remove lime accumulated within the plate exchanger (1).
Only authorized service engineer can do removing lime.
Prior to the beginning of cleaning, valves (2) separating the boiler from the sanitary water installation, should be closed.
Cleaning tubes should be connected to the foreseen 1/2″ piping (3) (internal thread).
Cleaning solution (5) may be formic acid 2-3%, nitric acid 3- 4% or acetic acid 10%.
The solution should circulate through the system by a pump
(4), as long as there is the sludge in the outlet pipe. Thereupon the direction of a circulation should be changed and the process repeated.
Upon finished cleaning the boiler should be washed in the same way with clear water.
For cleaning the product, it is not permitted to use aggressive media as e.g. gasoline, kerosene or solvent. For the external shell and decorative cover media for cleaning plastics or dish washing media may be used. Control panel should be cleaned with dry or moist cloth (not wet).
Survey of possible defects and irregularities in operation
| DEFECT | CAUSE | ELIMINATION |
|
|
|
|
|
|
|
|
|
|
|
|
|
|
|
|
|
|
|
|
|
|
|
|
|
|
|
|
|
|
|
|
|
|
|
|
|
|
|
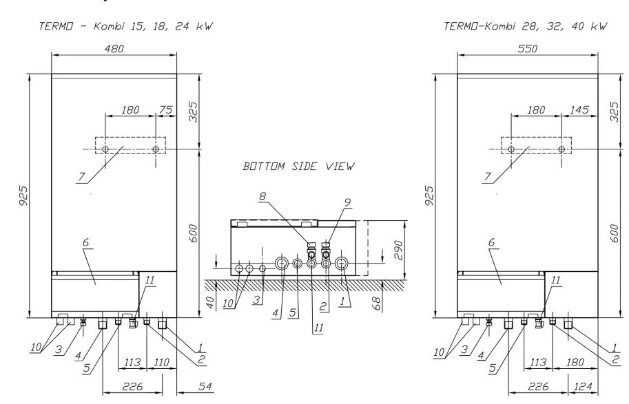
Technical specification
- Central heating return line
- Sanitary water inlet line (cold water)
- Valve for venting the boiler
- Central heating starting line
- Sanitary water outlet line (warm water)
- Control panel
- Wall support for suspension
- Safety valve at 3 bar
- Safety valve at 8 bar
- Power and room thermostat inlet
- Filling valve

| THERMO-Combi Boilers | Type of the device | ||||||
| Characteristics | THERMO Combi 15 | THERMO Combi 18 | THERMO Combi 24 | THERMO Combi 28 | THERMO Combi 32 | THERMO Combi 40 | |
| Central heating heat kW | 15 | 18 | 24 | 28 | 32 | 40 | |
| Warm water heat effect kW | 15 | 18 | 24 | 28 | 32 | 40 | |
| Max. pump supply at 1000 lit/h | m | 4,8 | |||||
| Area of central heating temperature adjustment | oC | 40 – 90 | |||||
| Area of warm water temperature adjustment | oC | 30 – 55 | |||||
| Warm water flow at 2 bar | l/min | 6,1 | 6,8 | 8,5 | 9,3 | 10,2 | 11,50 |
| Warm water flow at 2 bar and 55oC | l/min | 2,85 | 3,10 | 4,00 | 4,62 | 5,10 | 5,8 |
| Specific flow (at ΔT – 30 K) | l/min | 10,2 | 11,2 | 12,80 | 13,30 | 13,96 | 15,6 |
| Permitted overpressure, warm water | bar | 8 | |||||
| Height | mm | 930 | |||||
| Depth | mm | 290 | |||||
| Width | mm | 480 | 550 | ||||
| Weight | kg | 58 | 65 | ||||
TABLE OF RECOMMENDED FLOWS
| Power range [kW] | Minimum flow [l/min] | Optimal flow [l/min] | Maximum flow [l/min] | Recommended work area [l/min] |
| 15 | 8 | 20 | 40 | 10-35 |
| 18 | 13 | 26 | 52 | 15-40 |
| 24 | 15 | 34 | 68 | 15-55 |
| 28 | 20 | 40 | 80 | 25-70 |
| 36 | 20 | 45 | 92 | 25-80 |
| 40 | 25 | 57 | 115 | 30-100 |
SUPPLY CHARACTERISTICS
| POWER | Nominal current | Fuse current | Rated short-circuit breaking capacity Icn (EN 60898) | Rated short circuit breaking capacity Icn (IEC 947-2) | Min. conductor’s cross-section | Fuse type | RCCB switch type |
| 400V 3N ~ 50/60 Hz | |||||||
| 15 kW | 21.73 A | 25 A | 10 kA | 15 kA | 5 x 6 mm2 | B25-3p | 40 / 0.03 A |
| 18 kW | 26.09 A | 32 A | B32-3p | ||||
| 24 kW | 34.78 A | 40 A | B40-3p | ||||
| 28 kW | 40.58 A | 50 A | 5 x 10 mm2 | B50-3p | 63 / 0.03 A | ||
The boiler must be protected by Residual current circuit breaker (RCCB) and appropriate fuse or MCB (miniature circuit breaker). See table “SUPPLY CHARACTERISTICS”.




















