FLEXIHEAT UK 120 ME Standard Electric Boiler User Manual

1.0 INTRODUCTION
1.1 Description
The ME STANDARD electric boiler is suitable for a variety of types of space heating and indirect domestic hot water covering sealed circuits from 0.5BARS to 7.0BARS working pressure.
The ME STANDARD electric boiler electric boiler always requires earthing, under protection index IP21/1K 08.
The ME STANDARD electric boiler electric boiler is designed and manufactured according to the following :-
- EN Decree 95-1081 control of boiler materials and electrical supply voltage used in order to conserve the safety of persons and animals which might be in the vicinity
- European Directive 2006/95/CEE covering low voltage system application
- BS EN 60335-1 class C73800, part 1, general rules
THE STANDARD ELECTRIC BOILER
- Outputs from 90kW to 630kW
- Outputs above 630kW to 980kW by special order
- Maximum working pressure 7BARS, Test pressure 10BARS
- Maximum working temperature 100°C, limit 110°C
- 50mm thick glass silk insulation with MO fire classification cladding
- Hand reset limit thermostat at 110°C
- Resistance to earthing shock not less than 1 megaohm
INCOLLOY IMMERSION HEATERS - 90kW to 180kW boilers
- Individual heater elements 80-200mm diameter
- Individual elements 30kW, 415V, 3phase & earth
- Vertical access requirement 2010mm
INCOLLOY IMMERSION HEATERS - 210kW to 630kW
- Individual heater elements 80-200mm diameter
- Individual elements 35kW, 415V, 3phase & earth
- Vertical access requirement 2050mm
CONTROL PANEL
- Control cabinet fixed to the boiler
- Enabling from remote electronic or hand operation
- Three cartridge fuses per each step control
- Three contactors, one per step
- One transformer for the control circuit
- One main isolator with manual lock
- One `alive’ lamp indicating power on
- One `lock-out’ lamp indicating boiler stopped
- One digital controller
- One set of terminal connections
- The control panel can
(i) be located in any of three positions on the boiler
(ii) have the panel door in either of two hinge positions
(iii) be provided with variable control & output
1.2 Performance

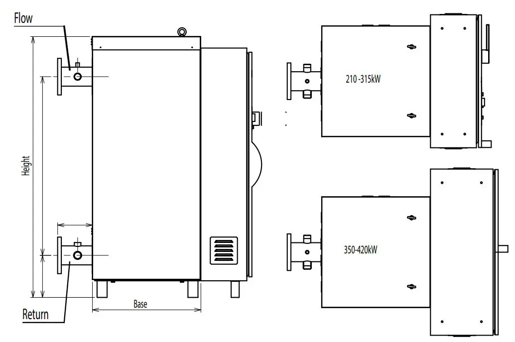
1.3 Dimensions

1.4 Electrical Power Requirements 415 volts, 3 phase, 50Hz

1.5 Drawings


1.6 Orientation

2.0 INSTALLATION
2.1 Procedure
– Position the boiler squarely on the prepared base
– Fit the correct accessories to the boiler connections
– Connect the boiler to the pipework system
– Connect the boiler to the isolated electrical supply
– Fill the boiler with fresh, clean water
– Check that the immersion heaters are electrically isolated from the boiler. If the isolation is less than 2mega-ohms, the bridge must be found and rectified.
– Check the operation of the main control panel isolator, and of the overloads serving the immersion heaters
– Check the operation and the correct direction of rotation of the circulating pump
– Check, with the circulation pump stopped, that the water flow switch over-rides the immersion heaters through their relays and also brings on the relevant alarm light
– Check the setting and operation of the immersion heater step controls
– Switch off the immersion heaters using the main control panel isolator
– Check that all the cartridge fuses are sound
– Double check that all the immersion heaters receive the common voltage.
Repeat the check after several hours run. Any defect in voltage can destroy the heaters and invalidate the guarantee.
2.2 Essential Accessories

2.3 Typical Arrangement

2.4 Precautions
The Multiselect Standard requires an installation conforming to:
- Directive 2009/125/CE (Eco-Design)
- Directive 2010/30/UE (Energy Labelling)
- Directive 2014/35/UE (Low Voltage)
- Directive 2014/30/UE (Electromagnetic compatibility)
- Directive 2014/68/UE (Pressure equipment directive)
- The electric boilers operate at more than 99.5%GCV efficiency
- They require minimal maintenance, are silent & are compact.
- With wind or water electric generation, they use green energy.
To release a large amount of heat to water heating systems:
- A: They need a minimum static water pressure of 1 BAR when cold. When hot, this pressure will rise and must not exceed 6 BARS for the normal boiler (higher pressures available)
- B: They need a minimum water flow rate which is given in the boiler manual. Flexiheat offer a shunt pump set for each boiler which is fitted in the same pipe line as the boiler. The pump will exceed the minimum water flow rate.
- C: They must not exceed maximum water flow rate which is given in the boiler manual.
- D: In case the pump fails or a valve is closed, Flexiheat offer a water flow switch fitted in the same pipeline as the boiler and set to just below maximum flow. If the switch registers maximum flow, the boiler stops
- E: We recommend an automatic pressurisation unit, with low and high pressure limits to safeguard the electric boiler via its control panel. The unit will include a fast-fill loop to initially fill the system.
- F: The system should be isolated, flushed, filled and treated separately from the boiler. Fill the boiler with clean, pure water only.
Detailed water treatment of Multi-elec electric boilers fitted with adjoining balancing * sedimentation vessel
- Filling the outgoing secondary through the BSV pipework, the water can be variable due to its source and it can be aggressive. It may need neutralisation by chemical additives or even the use of Plate Heat Exchanger to divide the system out.
- The secondary water needs to be introduced though the BSV drain point or cold feed point.
- The electric boiler(s) need clean pure water introduced from the boiler drain valves
- The strainers, fitted in the secondary, need to be fitted in returns to the BSV where they capture the most part of the deposits.
- The strainers, fitted in the boiler returns, need to be of fine extended secondary circuits, mesh, to capture any overflow of deposit from the secondary circuits.
2.5 Boiler room arrangements
The Multi-elec Standard must be installed:
- In an adequately-ventilated boiler room with ambient temperature below 30°C and relative humidity maintained between 30% and 80% and where condensation does not occur
- In a non-corrosive atmosphere
- In a non-explosive atmosphere
- Where there is good access to the boiler position for installation and maintenance
- Where there is good access for delivery, off-loading and positioning
- Using similar materials in the in the pipework, and avoiding materials leading to electrolytic action and system deterioration
The Multi-elec Compacted is not suitable for external installation
2.6 Commissioning
- The boiler must be completely full of water before the heating elements are switched on. To ensure 100% filling, manual and automatic vents must be in effective positions where complete air clearance can be guaranteed.
- The boiler can be filled with water by connecting a fill hose to the boiler drain valve and partly opening the valve.
- The boiler safety valve can also be used firstly to vent the boiler at filling and, secondly, ensuring the blow-down facility of the valve is clear in case of use.
- Commissioning is recommended by a suitably qualified engineer
3.0 ELECTRICAL ARRANGEMENTS
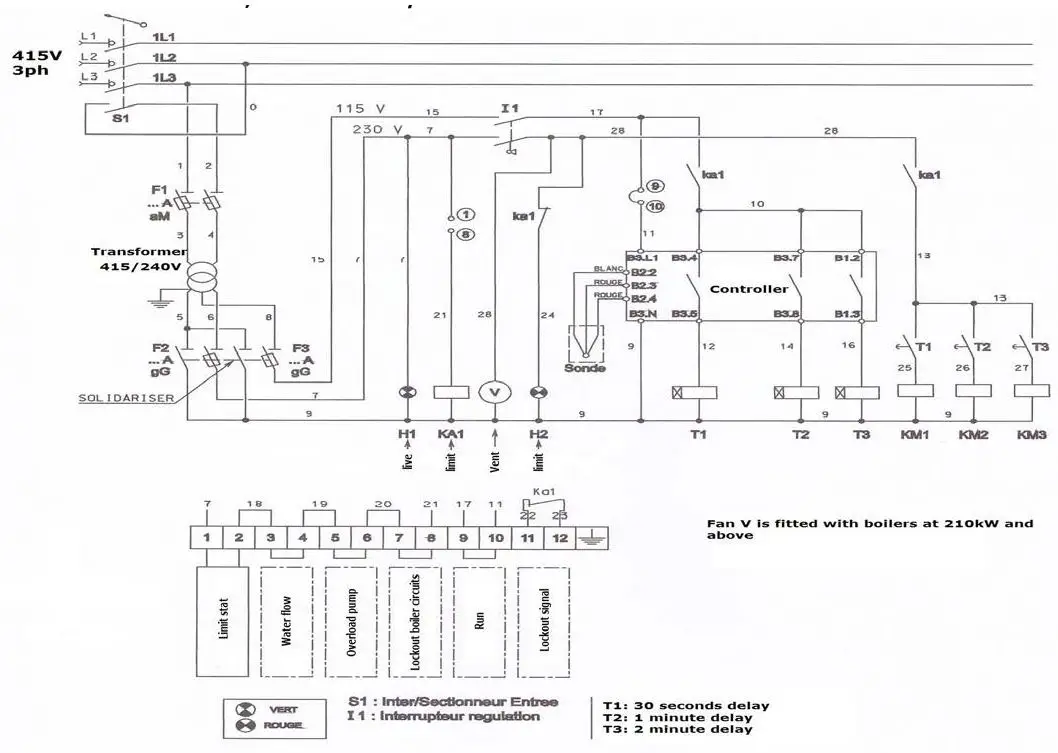
3.1 Control Panel Arrangement

3.2 Control Circuitry


3.3 Electrical power circuitry

3.4 Fuse and overload protection
Fuse ratings and type: – industrial cylindrical cartridge
MODEL 90- 280kW
FUSES F1 1A type aM, F2 – 1A type gG, F3 – 0.5A type gG
MODEL 90- 280kW
FUSES F1 1A type aM, F2 – 1A type gG, F3 – 0.5A type gG
FUSES F4-F6 Type 22 x 58 : 63A type gG
Type 0 : 125A type gG
Type 1 : 160A type gG
Type 2 : 250, 315 & 400A type gG
Amperage requirement insert table from earlier
3.5 Electrical Circuit
Electrical circuit
- The Standard electric boiler must be provided with 415volts and without neutral wiring
- The electrical wiring cables must be sized by a qualified electrician in order to conform to BS C 15100 and satisfying load, length of run and prevention of short circuit.
- The installation must be tested for automatic power failure in the event of emergency power cut, heater lock-out or error in the neutral layout.
- All electrical equipment shall satisfy IP21/IK08 Class 1
- The immersion heaters shall only receive electrical power if they are fully immersed in water; otherwise the guarantee on the heaters will not apply
ALL ELECTRICAL WIRING MUST BE CORRECTLY EARTHED
3.6 Terminal connection drawing

3.7 Operation of the digital controller

Factory settings (primary heating circuit)
Flow temperature – 80degC
Maximum flow temperature setting – 95degC
Minimum flow temperature setting – 20degC
Time delay T1 – 30 seconds
Time delay T2 – 1 minute
Time delay T3 – 2 minutes
digital controller has numbers or message, touch settings
+ – touch raise settings, – touch lower settings
- The Panel has a registration label
- The wiring is capable of a maximum current of 23kA
- Neutral panel wiring is not required
- The Panel is protected by isolators, circuit breakers and fuses.
- Earth wiring is essential
- One week after commissioning, all connectors on immersion heaters and incoming electrical supplies need to be checked. This should be repeated annually.
- Manufacturing tests include heat output and control circuitry
- The boilers should not be installed or operated in corrosive, explosive or humid atmosphere
- Adequate natural ventilation is required. 550mm2 x kW free area at high and low level is recommended
3.8 Alarm Signals
On Alarm, light (7) shows and the following messages appear on (1)
< PFO > Lock-out or power cut
< HA > High temperature lock-out
< LA > Low temperature alarm
4.0 DELIVERY/OFF-LOADING
It is recommended that the STANDARD electric boiler is transported and, if necessary, stored on the pallet on which it is delivered from the factory.
If temporarily stored, the surroundings should be maintained at temperatures below 80°C, and without condensation at relative humidities between 30% and 80%
Manhandling the STANDARD electric boiler into position requires :(a) Qualified, skilled manpower (b) Use of a pallet trolley or a fork lift truck (c) Use of the lifting eyes provided on the boiler and tested of lifting beams

5.0 MAINTENANCE
Effective maintenance must aim at preventing :-
a). a reduction in the movement of water circulation through the boiler – this can result in the formation of sediment or limescale on the boiler immersion heater elements
b). pockets of high temperature water across the boiler immersion heater elements – resulting in their destruction by overheating
c). accumulation of sediment or limescale within the boiler, particularly on or around the boiler immersion heater elements – overcoming these developments by the introduction of fresh, clean water without any inhibitor or de-scaling agent
Minimum maintenance periods
A) Monthly maintenance
i) Check operation of the automatic air vent
ii) Check operation of the water flow switch
iii) Check operation of the safety valve
B) Annual maintenance
i) Carry out the monthly checks
ii) Check all the electric control functions
iii) Check all pipework joints are water-tight
iv) Drain off small amount of boiler water content and check for condition
C). 4-yearly maintenance
i) Carry out the annual maintenance
ii) Isolate the boiler safely from all services
iii) Drain the boiler of water and open up for inspection
iv) Check for all maintenance requirements and remedy as necessary
v) Close and seal the boiler, fill with fresh clear water through drain outlet vi) Pressure test, then repeat annual maintenance procedure
06 SPARES
Controller 790220
Flow sensor 583027
30kW immersion heater 2534
35kW immersion heater 2536
Limit thermostat 581104
Water flow switch 480230
07 FAULT DETECTION
Before making any physical check, switch off the power





















