KICHLER 300325 56 Inch Crescent Ceiling Fan Brushed Nickel Instruction Manual

SAFETY RULES
READ AND SAVE THESE INSTRUCTIONS
WARNING: FOR CANADA, THIS FAN MUST BE SECURED DIRECTLY TO THE BUILDING STRUCTURE / CEILING JOIST. DON’T SECURE THIS FAN TO AN OUTLET BOX.
- CAUTION RISK OF SHOCK Disconnect Power at the main circuit breaker panel or main fuse box before starting and during the installation.
- WARNING: This fixture is intended for installation in accordance with the National Electrical Code (NEC) and all local code specifications. If you are not familiar with code requirements, installation by a certified electrician is recommended.
- WARNING: To reduce the risk of fire or electric shock, use only the control provided with the fan.
- WARNING: To reduce the risk of fire, electric shock, or Personal Injury mount to an outlet box marked “Acceptable For Fan Support of up to 15.9 kg (35 lbs)”. For outlet box mounting, use mounting screws (and lock washers) provided with the outlet box. Most outlet boxes commonly used for the support of light fixtures are not acceptable for fan support and may need to be replaced. Due to the complexity of the installation of this fan, a qualified licensed electrician is strongly recommended.
- ⚠ WARNING: Chemical Burn Hazard. Keep batteries away from children.; and
This product contains a lithium button/coin cell battery. If a new or used lithium button/coin cell battery is swallowed or enters the body, it can cause severe internal burns and can lead to death in as little as 2 hours. Always completely secure the battery compartment. If the battery compartment does not close securely, stop using the product, remove the batteries, and keep it away from children. If you think batteries might have been swallowed or placed inside any part of the body, seek immediate medical attention.
a) The cells shall be disposed of properly, including keeping them away from children; and
b) Even used cells may cause injury. - All wiring must be in accordance with the National Electrical Code ANSI/NFPA 70 and local electrical codes. Electrical installation should be performed by a qualified licensed electrician.
- The outlet box and support structure must be securely mounted and capable of reliably supporting a minimum of 15.9 kg (35 pounds). Use only cULus Listed outlet boxes marked “FOR FAN SUPPORT”.
- WARNING: TO REDUCE THE RISK OF FIRE, ELECTRIC SHOCK OR PERSONAL INJURY, MOUNT FAN TO OUTLET BOX MARKED “ACCEPTABLE FOR FAN SUPPORT”.
- Avoid placing objects in the path of the blades.
- To avoid personal injury or damage to the fan and other items, be cautious when working around or cleaning the fan.
- To operate the reverse function on this fan, press the reverse button while the fan is running.
- Make sure the installation site you choose allows a minimum clearance of 2.1 m (7 feet) from the blades to the floor and at least 30 inches from the ends of the blades to any obstruction.
- WARNING: make sure the power is disconnected before cleaning your fan.
- Do not use water or detergents when cleaning the fan or fan blades. A dry dust cloth or lightly dampened cloth will be suitable for most cleaning.
- After making the electrical connections, spliced conductors should be turned upward and pushed carefully up into outlet box. The wires should be spread apart with the grounded conductor and the equipment grounding conductor on one side of the outlet box and the ungrounded conductor on the other side of the outlet box.
- Electrical diagrams are for reference only. Light kits that are not packed with the fan must be ETL Listed and marked suitable for use with the model fan you are installing. Switches must be ETL General Use Switches. Refer to the Instructions packaged with the light kits and switches for proper assembly.
- All set screws must be checked, and retightened where necessary, before installation.
- The subject fan 300325 weight information is as below: Net Weight : 11.53 kgs / 25.37 lbs; Gross Weight: 12.73 kgs / 28.01 lbs
WARNING
TO REDUCE THE RISK OF PERSONAL INJURY, DO NOT BEND THE BLADE BRACKETS DURING ASSEMBLY OR AFTER INSTALLATION.
DO NOT INSERT OBJECTS IN THE PATH OF THE BLADES.
TOOLS AND MATERIALS REQUIRED
- Phillips Screwdriver
- Blade Screwdriver
- 11 mm Wrench
- Step Ladder
- Wire Cutters

PACKAGE CONTENTS
Unpack your fan and check the contents . You should have the following items:
- A. Mounting Bracket
- B. Ball / Downrod Assembly
- C. Canopy
- D. Canopy Hole Cover
- E. Coupling Cover
- F. Motor Assembly
- G. Fan Blade (5)
- H. Blade Bracket (5)
- I. Blade Cover (5)
- J. Light Plate
- K. Light Kit
- L. Glass Shade
- M. Finial
- N. Wall control Kit: Receiver (1), Control (1), Metal Plate (1), Wire connector (6), Wood Screw (2), Battery (2),Long Screw (2), Short Screw (2), Expansion Anchor (2), Plastic Nut (2)
- O. Package hardware 1.) Mounting hardware : Wire Connector (3) 2.) Blade attachment hardware : Screws (15) , Washers (15) 3.) Safety cable hardware : Wood screw (1) , Spring washer (1), Flat washer (1) 4.)Light Kit Hardware: Screw (3)

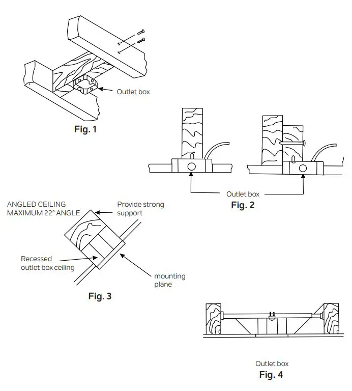
MOUNTING OPTIONS
If there is not an existing UL (cUL for Canadian Installation) listed mounting box, then read the following instructions. Disconnect the power by removing fuses or turning off circuit breakers.
Secure the outlet box directly to the building structure. Use appropriate fasteners and building materials. The outlet box and its support must be able to fully support the full weight of the fan (up to 15.9kg (35 pounds)). Do not use plastic outlet boxes.
Figures 1, 2 and 3 are examples of different ways to mount the outlet box.
NOTE: If you are installing the ceiling fan on a sloped (vaulted) ceiling, you may need a longer downrod to maintain proper clearance between the tip of the blade and the ceiling. A minimum clearance of 12″ is suggested for optimal operation.
NOTE: You must use 12″ or longer downrod for 22° slope (max angle 22°). (Fig. 3)
NOTE: Depending on the location you have selected for installation, you may need to purchase and install a joist hanger for the support of the outlet box. Make sure the joist hanger you purchase has been designed for use with ceiling fans. (Fig. 4)

HANGING THE MOTOR ASSEMBLY
REMEMBER to turn off the power before you begin installation. This is necessary for your safety and also the proper programming of the control system.
To properly install your ceiling fan, follow the steps below.
Step 1. Before attaching fan to outlet box (not included), ensure the outlet box is securely fastened to at least two points to a structural ceiling member (a loose box will cause the fan to wobble). Pass the 120 volt supply wires from the ceiling outlet box through the center of the ceiling mounting bracket. Install mounting bracket to outlet box in ceiling using the screws and washers included with the outlet box. (Fig. 5)
Step 2. Remove the hairpin and clevis pin from the downrod assembly, retain for later use. Remove the hanger ball from the downrod assembly by loosening set screw, removing the cross pin, and sliding ball of the rod. (Fig. 6)
NOTE: Make sure to keep loosened hardware separate to avoid confusion during installation.
Step 3. Loosen the two set screws on the motor coupling. (Fig. 7)

Step 4. Carefully feed fan wires and safety cable up through the downrod. Thread the downrod onto the motor coupling until the clevis pin holes are aligned. Next, replace the clevis pin and hairpin, then tighten both set screws. (Fig. 8)
Step 5. Slip the coupling cover, canopy hole cover and canopy onto the downrod. Carefully reinstall the hanger ball onto the downrod. Make sure the cross pin is in the correct position and the set screw is tight and the wires are not twisted . ( Fig. 9)
CAUTION: Ensure all screws are tight before moving to the next step.

Step 6. Now lift the motor assembly into position and place the hanger ball into the mounting bracket. Rotate until the check tab has dropped into the registration slot and seats firmly. ( Fig. 10) The entire motor body should not rotate if this is done correctly.
WARNING: Failure to properly seat the check tab can damage the ceiling fan during operation.

INSTALLATION OF SAFETY SUPPORT
(required for Canadian installation ONLY)
A safety support cable is provided to help prevent the ceiling fan from failing, please install it as follows.
Step 1. Drive a wood screw and washers into the side of the brace that holds the outlet box. Leave 3mm (1/8″) of space between the support brace and the washer. (Fig. 11)
Step 2. Insert the safety cable through the mounting bracket and one of the holes in the outlet box into the ceiling. Adjust the length of the safety cable to reach the screw and washers by pulling the extra cable through the cable clamp until the overall length is correct, put the end of the cable back through the cable clamp, forming a loop at the end of the cable. Tighten the cable clamp securely. Now, put the loop in the end of the safety cable over the wood screw and under the washer. Tighten the wood screw securely. (Fig. 12)
NOTE: Although the safety support cable is required for Canadian installations only, it’s a good idea to make the attachment with any installation.

ELECTRICAL CONNECTIONS
WARNING: To avoid possible electrical shock, be sure you have turned off the power at the main circuit panel before wiring.
Follow the steps below to connect the fan to your household wiring. Use the wire connectors supplied with your fan. Secure the connectors with electrical tape. Make sure there are no loose wire stands or connections.
WARNING: If your house wires are different colors than referenced in this manual, stop immediately. A professional electrician is recommended to determine proper wiring.
Step 1. Insert the receiver into the mounting bracket, and keep flat in opposition of ceiling. (Fig. 13)
Step 2. Motor to Receiver Electrical Connections: Connect the BLACK wire from the fan to BLACK wire marked “TO MOTOR L” from the receiver. Connect the WHITE wire from the fan to the WHITE wire marked “TO MOTOR N” from the receiver. Connect the BLUE wire from the fan to the BLUE wire marked “FOR LIGHT ” from the receiver. Secure all the wire connections with the plastic wire connectors provided. ( Fig. 14)
Step 3. Remote Receiver to Outlet Box Electrical Connections: Connect the BLACK (hot) wire from the ceiling to the BLACK wire marked “AC IN L” from the receiver. Connect the WHITE (Neutral ) wire from the ceiling to the WHITE wire marked ” AC IN N” from the receiver. Secure all the wire connections with the plastic wire connectors provided. ( Fig. 14)

Step 4. If your outlet box has a ground wire (green or bare copper) connect it to the fan ground wires. Otherwise, connect the fan ground wire to the mounting bracket. Secure the wire connection with a plastic nut provided. After connecting the wires, spread them apart so that the green and white wires are on one side of the outlet box and black and blue wires are on the other side. (Fig. 14)
NOTE: Carefully tuck the wire connections up into the outlet box.
NOTE: Fan must be installed at a maximum distance of 30 feet from the transmitting unit for proper signal transmission between the transmitting unit and the fan’s receiving unit.

COMPLETING THE MOTOR INSTALLATION
Step 1. Remove one of the two shoulder screws in the mounting bracket. Loosen the second shoulder screw without fully removing it. (Fig. 15)
Step 2. Assemble canopy by rotating key slot in canopy over shoulder screw in mounting bracket. Reinstall the shoulder screw that was previously removed, then retighten two shoulder screws securely. (Fig. 16)
Step 3. Securely attach and tighten the canopy hole cover over the shoulder screws in the mounting bracket utilizing the keyslot twist-lock feature.(Fig.17)

ATTACHING THE FAN BLADES
CAUTION: To Reduce The Risk Of Electric Shock, Disconnect The Electrical Supply Circuit To The Fan Before Installing Fan Blades.
Step 1. Position the blade over the blade bracket with the threaded post showing. Make sure the bottom edge of the blade is fully seated against the blade bracket. Place blade cover on top of the blade, positioning the holes over the threaded posts. Tighten with three screws from the hardware pack to secure the blade to the blade bracket. (Fig.18)
Repeat for the remaining blades.
Step 2. Fasten blade assembly to the holes located on the bottom of the flywheel. Tighten the two pre-installed motor screws in the blade bracket. Repeat steps for the remaining blade assemblies. (Fig.19)

INSTALLING THE LIGHT PLATE
Step 1. Remove the screw marked with a brown dot label on the mounting plate and keep for later use. Loosen the other two (do not remove).(Fig.20)

Step 2. Place the two slot holes on the light plate over the 2 screws previously loosened from the mounting plate. Rotate the light plate until it locks in place at the narrow end of the key holes. Secure by tightening the 2 screws previously loosened and the one previously removed. (Fig. 21)

INSTALLING THE LIGHT KIT AND GLASS SHADE
CAUTION: To Reduce The Risk Of Electric Shock, Disconnect The Electrical Supply Circuit To The Fan Before Installing Light Kit.
Step 1. Hold the LED light kit to light plate, then connect the 2 single pin connectors from the light kit to the 2 single pin connectors from the motor assembly. Connect the black wire to black wire, and the white wire to white wire. Attach the light kit to the light plate and securely tighten with three (3) screws from the screw pack (Fig. 22)

Step 2. Remove and retain the manual nut, metal washer and silicone washer from the threaded rod on the light kit. (Fig. 23)
Step 3. Lift the glass shade up to the light kit, allowing the threaded rod to go through the center hole in the bottom of the glass shade. Place the silicon washer and metal washer over the threaded rod, then screw the manual nut onto the threaded rod until tight. DO NOT OVER-TIGHTEN. (Fig.24)
Step 4. Screw the finial to the threaded rod and securely tighten. (Fig.25)

INSTALLING THE COOLTOUCHTM CONTROL SYSTEM WALL PLATE
CAUTION: MAKE SURE THE ELECTRICITY IS TURNED OFF AT THE MAIN JUNCTION BOX OR THE CORRECT FUSE HAS BEEN PULLED OFF AT THE MAIN JUNCTION BOX BEFORE CONTINUING.
WARNING: All wiring must be in accordance with the National Electrical Code local electrical codes. Electrical installation should be performed by a qualified licensed electrician.
Select a location to install your “Cool Touch” Control System Transmitter. You can replace an existing wall switch, or install the transmitter on ANY flat surface.
WARNING: SWITCH INSTALLATION MUST COMPLY WITH ALL LOCAL AND NATIONAL ELECTRIC CODES.
Option 1. Install the control system using an existing wall switch outlet box. Make sure the electrical power is TURNED OFF at the main panel before wiring.
Step 1. Remove the existing wall plate and the old switch from the wall outlet box. Wire the BLACK leads (hot) together with connector and push back inside the outlet box. (Fig. 24)
Step 2. Install the metal plate and “Cool Touch” wall plate to the existing wall outlet box with 4 screws provided. Then place the two plastic plugs into the wall plate. (Fig. 25)
Option 2: Install the control system on ANY flat surface: Select the desired location and use the “Cool Touch” wall plate to make the location for the mounting holes. Plastic wall anchors and screws are provided for this type of installation. After installing the wall anchors, attach the “Cool Touch” wall plate with the mounting screws and then insert the plastic plugs to finish installation.


INSTALLING AND REMOVING THE HANDHELD TRANSMITTER
Step 1. To place the transmitter in the wall plate, put the bottom end in first and then press the top into the wall plate. The transmitter is now held in the wall plate and will function from here. (Fig.26)
Step 2. To remove the transmitter from the wall plate, push the release button and the transmitter will fall into your hand.
OPERATING INSTRUCTIONS
⚠ WARNING: Chemical Burn Hazard. Keep batteries away from children.
Step 1. Using a screwdriver, remove the battery cover from the handset and save the screw for later use. (Fig. 27)
Step 2. To make fan operational, install two 3V CR2032 batteries (included). The batteries should be installed with the positive (+) side up. Replace with CR2032 batteries when necessary. (Fig. 28)
NOTE: If not used for long periods of time, remove batteries to prevent damage to the handset control. Store the control away from excessive heat or humidity.

NOTE: Each handset control carries a unique ID code to facilitate communication between paired devices. The ID code is set by factory and is not user changeable. However, you will be required to perform an ID code learning process manually under these circumstances: · If you have multiple fans installed within a close proximity and want to control all fans using a same handset control.
NOTE: Each fan requires its own receiver. · When your remote control is not responding (make sure battery is not dead). · After you have replaced a faulty transmitter or receiver with a new one. Otherwise the remote control will not work. To perform this process manually, follow steps below: After installing and wiring the unit, restore power to your fan, press and hold the “LEARN” key for 1-3 seconds, and the fan will turn on at medium speed and light (if installed) will turn on. This confirms that the learning process has been completed. This operation must be completed within 30 seconds after restoring power to the fan. (Fig. 29) NOTE: Ensure slide switch in battery compartment marked “D O” is set to “D” position. (Fig. 29) Step 4. Replace the battery cover and tighten with screwdriver. (Fig. 29) Step 5. The buttons control the fan speed and light as follows: (Fig. 30)


REVERSE FUNCTION
To operate the reverse function on this fan, press the “Reverse” button while fan is running. Speed setting for warm or cool weather depends on factors such as the room size, ceiling height, number of fans and so on.
Warm Weather Operation: Forward (counter clockwise).A downward airflow creates a cooling effect (Fig. 31). This allows you to set your air conditioner on a warmer setting without affecting your general comfort.
Cool Weather Operation: Reverse (clockwise). An upward airflow moves warm air off of the ceiling (Fig. 32). This allows you to set your heating unit on a cooler setting without affecting your general comfort.

FCC Information
This device complies with part 15 of the FCC Rules. Operation is subject to the following two conditions: 1.)This device may not cause harmful interference, and 2.)This device must accept any interference received, including interference that may cause undesired operation.
Note: This equipment has been tested and found to comply with the limits for a Class B digital device, pursuant to part 15 of the FCC Rules. These limits are designed to provide reasonable protection against harmful interference in a residential installation. This equipment generates, uses and can radiate radio frequency energy and, if not installed and used in accordance with the instructions, may cause harmful interference to radio communications. However, there is no guarantee that interference will not occur in a particular installation. If this equipment does cause harmful interference to radio or television reception, which can be determined by turning the equipment off and on, the user is encouraged to try to correct the interference by one or more of the following measures:
- Reorient or relocate the receiving antenna.
- Increase the separation between the equipment and receiver.
- Connect the equipment into an outlet on a circuit different from that to which the receiver is connected.
- Consult the dealer or an experienced radio/TV technician or help.
TROUBLESHOOTING
Problem Solution
- Check circuit fuses or breakers.
- Check all electrical connections to ensure proper contact. CAUTION: Make sure the main power is OFF when checking any electrical connection.
- Make sure the transmitter batteries are installed properly. Positive (+) side facing out.
- Ensure the batteries have a good charge.
Fan sounds noisy
- Make sure all motor housing screws are snug.
- Make sure the screws that attach the fan blade brackets to the motor are tight.
- Make sure wire nut connections are not rubbing against each other or the interior wall of the switch housing. CAUTION: Make sure main power is off.
- Allow a 24-hour “breaking-in” period. Most noise associated with a new fan disappears during this time.
- If using an optional light kit, make sure the screws securing the glassware are tight. Make sure the light bulbs are not touching any other component.
- Do not connect this fan to a wall mounted variable speed control(s). They are not compatible with ceiling fan motors or remote controls.
- Make sure the upper canopy has a short distance from the ceiling. It should not touch the ceiling.
Fan wobble.
- Check that all blade and blade arm screws are secure.
- Most fan wobbling problems are caused when blade levels are unequal. Check this level by selecting a point on the ceiling above the tip of one of the blades. Measure this distance. Rotate the fan until the next blade is positioned for measurement. Repeat for each blade. The distance deviation should be equal within 1/8″.
- If the blade wobble is still noticeable, interchanging two adjacent (side by side) blades can redistribute the weight and possibly result in smoother operation.
Remote control malfunction.
- Ceiling Fans with remote control systems CAN NOT be operated in conjunction with any other control system EXCEPT a basic On/off wall switch, if desired.

www.kichler.com
KICHLER LIGHTING LLC 7711 EAST PLEASANT VALLEY ROAD CLEVELAND, OHIO 44131
CUSTOMER SERVICE 866.558.5706 8:00 AM TO 5:00 PM EST, MONDAY – FRIDAY
REV. 04-MAR-2022 © Kichler Lighting LLC. All Rights Reserved.


















