KICHLER 300250SNB Bronze Indoor-Outdoor Ceiling Fan

SAFETY RULES
- To reduce the risk of electric shock, insure electricity has been turned off at the circuit breaker or fuse box before beginning.
- All wiring must be in accordance with the National Electrical Code and local electrical codes. Electrical installation should be performed by a qualified licensed electrician.
- WARNING: To reduce the risk of fire or electric shock, use only the control provided with the fan.
- WARNING: To reduce the risk of personal injury, use only the two steel screws (and lock washers) provided with the outlet box for mounting to the outlet box. Most outlet boxes commonly used for the support of lighting fixtures are not acceptable for fan support and may need to be replaced, consult a qualified electrician if in doubt.
- To operate the reverse function on this fan, slide the reverse switch to the opposite position.
- Avoid placing objects in the path of the blades.
- To avoid personal injury or damage to the fan and other items, be cautious when working around or cleaning the fan.
- Do not use water or detergents when cleaning the fan or fan blades. A dry dust cloth or lightly dampened cloth will be suitable for most cleaning.
- After making the electrical connections, spliced conductors should be turned upward and pushed carefully up into outlet box. The wires should be spread apart with the ground wire and white (common) wire to one side with the black (load) wire to the other side of the outlet box.
- Electrical diagrams are reference only. Light kits that are not packed with the fan must be ETL Listed and marked suitable for use with the model fan you are installing. Switches must be ETL General Use Switches. Refer to the Instructions packaged with the light kits and switches for proper assembly.
WARNING
TO REDUCE THE RISK OF PERSONAL INJURY, DO NOT BEND THE BLADE BRACKETS (ALSO REFERRED TO AS FLANGES) DURING ASSEMBLY OR AFTER INSTALLATION. DO NOT INSERT OBJECTS IN THE PATH OF THE BLADES.
TOOLS REQUIRED
- Phillips screwdriver
- Blade screwdriver
- 11 mm wrench
- Step ladder
- Wire cutters

PACKAGE CONTENTS
Unpack your fan and check the contents . You should have the following items:
- A. Mounting bracket
- B. Downrod
- C. Canopy
- D. Canopy Hole Cover
- E. Coupling Cover
- F. Motor Body
- G. Blade (4)
- H. Blade Holder (4)
- I . Switch Housing
- J. Switch Cover
- K. Fob
- L. Package hardware
- Mounting hardware :
Wood screw (2) ,Flat Washer (2) , Screw (2) , Lock washer (2), Wire Connector (3) - Blade attachment hardware :
Pack AA: Screw (Long) (10), Washer (10)
Pack BB: Screw (Short) (10), Washer (10) - Safety cable hardware :
Wood screw (1) ,Spring washer (1), Flat washer (1) - Balance kit
- Blade Holder Hardware: Screw (2)
- Switch Housing Hardware: Screw (4)
- Mounting hardware :

MOUNTING OPTIONS
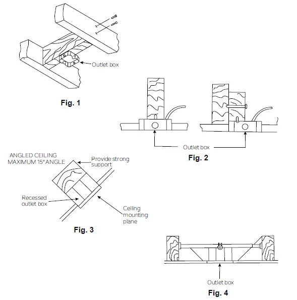
If there isn’t an existing UL (cUL for Canadian Installation) listed mounting box, then read the following instructions. Disconnect the power by removing fuses or turning off circuit breakers
Secure the outlet box directly to the building structure. Use appropriate fasteners and building materials. The outlet box and its support must be able to fully support the moving weight of the
fan (at least 50 lbs). Do not use plastic outlet boxes.
box.
NOTE: If you are installing the ceiling fan on a sloped (vaulted) ceiling, you may need a longer dowered to maintain proper clearance between the tip of the blade and the ceiling. A minimum clearance of 12” is suggested for optimal operation.
NOTE: Depending on the location you have selected for installation, you may need to purchase and install a “Joist Hanger” for the support of the outlet box. Make sure the joist hanger you purchase has been designed for use with ceiling fans. (Fig. 4)

HANGING THE FAN
REMEMBER to turn off the power before you begin installation. This is necessary for your safety and also the proper programming of the control system.To properly install your ceiling fan, follow the steps below.
Step 1 . Before attaching fan to outlet box (not included), ensure the outlet box is securely fastened to at least two points to a structural ceiling member (a loose box will cause the fan to wobble). Pass the 120 volt supply wires from the ceiling outlet box through the center of the ceiling mounting bracket. Install mounting bracket to outlet box in ceiling using the screws and washers included with the outlet box or screws and washers in the hardware bag. (Fig. 5)
Step 2. Remove the hanger ball from downrod assembly by loosening set screws , removing the cross pin, and sliding ball off the rod.( Fig. 6)

Step 3. Loosen the two set screws and remove the cross pin and clip on the top coupling of the motor body. Carefully feed the fan wires and safety cable through
the downrod. Thread the downrod onto the motor coupling until the cross pin holes are aligned. Next, replace the cross pin and clip, and tighten both set screws. (Fig. 7)
Step 4. Slip the coupling cover, canopy hole cover and canopy onto the downrod. Carefully reinstall the hanger ball onto the downrod . Make sure the cross pin is in the correct position and the set screw is tight and the wires are not twisted . ( Fig. 8)
Step 5 . Now lift the motor assembly into position and place the hanger ball into the hanger bracket. Rotate until the “Check Tab” has dropped into the “Registration Slot ” and seats firmly. ( Fig. 9) The entire motor body should not rotate if this is done correctly.
WARNING: Failure to properly seat the “Check Tab” can damage the ceiling fan during operation.
INSTALLATION OF SAFETY SUPPORT
(required for Canadian installation ONLY)
A safety support cable is provided to help prevent the ceiling fan from failing, please install it as follows.
Step 1: Drive a wood screw and washers into the side of the brace that holds the outlet box. Leave 3mm (1/8″) of space between the support brace and the washer. (Fig. 10)
Step 2. Insert the safety cable through the mounting bracket and one of the holes in the outlet box into the ceiling. Adjust the length of the safety cable to reach the screw and washers by pulling the extra cable through the cable clamp until the overall length is correct, put the end of the cable back through the cable clamp, forming a loop at the end of the cable. Tighten the cable clamp securely. Now, put the loop in the end of the safety cable over the wood screw and under the washer. Tighten the wood screw securely. (Fig. 11)
NOTE: Although the safety support cable is required for Canadian installations only.
It’s a good idea to make the attachment with any installation.
ELECTRICAL CONNECTIONS
WARNING: To avoid possible electrical shock, be sure you have turned off the power at the main circuit panel before wiring. Follow the steps below to connect the fan to
your household wiring. Use the wire connecting connectors supplied with your fan. Secure the connector with electrical tape. Make sure there are no loose wire stands or connections.
WARNING: If your house wires are different colors other than referenced in this manual, stop immediately. A professional electrician is recommended to determine proper wiring.
Step 1. Connect the fan supply BLACK wire and fan light supply BLUE wire to the BLACK household supply wire.(Fig.12.)
Step 2. Connect the fan neutral WHITE wire to the household neutral WHITE wire.(Fig.12)
Step 3. Connect GROUND(GREEN) wires from mounting bracket and downrod ball, to GROUND(GREEN) or BARE(COPPER) wire from house.(Fig.12)
HANGING INSTALLATION
NOTE: Before continuing , make sure the power is disconnected by turning off the circuit breaker of removing the fuse at the circuit box.
Step 1. Remove one of the two shoulder screws in the mounting bracket. Loosen the second shoulder screw without fully removing it. (Fig. 13)
Step 2. Assemble canopy by rotating key slot in canopy over shoulder screw in mounting bracket. Reinstall the shoulder screw that was previously removed, then retighten two shoulder screws securely.(Fig.14)

ATTACHING THE FAN BLADES
NOTE: Before continuing , make sure the power is disconnected by turning off the circuit breaker of removing the fuse at the circuit box.
Step 1. Position one blade over one blade arm with threaded posts as shown. Make sure the bottom edge of the blade is fully seated against the blade arm. With a Phillips screwdriver, place (1) blade screw and (1) washer into the blade and blade arm (do not tighten), repeat for remaining blade screws (3) and washers (3). Tighten each screw securely. Make sure the blade installed flat. Repeat steps for remaining blades. (Fig. 15)”
Remind: There are two kinds of blade screws (one is short and the other is long), see Fig. 15 for details and make sure they are not misused.
Step 2. Attach one assembled blade arm to the motor hub by tightening the two “pre-installed” motor screws in the blade arm. Repeat steps for the remaining assembled blade arms. (Fig. 16)
INSTALLING THE SWITCH HOUSING
Step 1. Remove one of the mounting screws preinstalled on mounting plate and keep for later use. Loosen the other two (do not remove). Place the two slot holes on the switch housing over the 2 screws previously loosened from the mounting plate.
Rotate the switch housing until it locks in place at the narrow end of the key holes. Secure by tightening the 2 screws previously loosened and the one previously removed. (Fig. 17)
INSTALLING THE SWITCH COVER
NOTE: Before continuing installation, confirm that the power is still turned off at the main circuit breaker or by removing the circuit fuse. Turning the power off using a wall switch is not sufficient to prevent electrical stock.
Step 1. Hold the switch cover close to the switch housing and connect the 9-pin connectors from switch cover and fan. (Fig. 18)
Note: The two connectors can only fit in one way with colors for identification. Match up the colors on two connectors, then push them together until the snap engages. (Fig. 18)
Step 2. Tuck the connections neatly into the switch cover. Align three round holes on the switch cover and switch housing. Securely tighten with 3 screws found in switch cover hardware pack.(Fig.18)
INSTALLING THE FOB
Step 1. Attach the fob to the pull chain from the switch cover.(Fig.19)
The operation sequence is as follows:
- 1st pull – High
- 2nd pull – Medium
- 3rd pull – Low
- 4th pull – OFF
Your fan is shipped from the factory with the reversing switch positioned to circulate air downward. If airflow is desired in opposite direction, turn the fan off and wait for the blades to stop running. then slide the reversing switch to the opposite position, and turn the fan on again. The fan blades will turn in the opposite direction and reverse the airflow.
Your New Kichler Ceiling Fan is now ready to use. Remember to RESTORE all power.

TROUBLESHOOTING


KICHLER® LIGHTING LLC
7711 EAST PLEASANT VALLEY ROAD P.O. BOX 318010
CLEVELAND, OHIO 44131-8010
CUSTOMER SERVICE 866.558.5706
8:30 AM TO 5:00 PM EST, MONDAY – FRIDAY



















