
52″ Dawn LED
Product images may vary slightly from the actual product.
INSTRUCTION MANUAL
Model#: 300319
SAFETY RULES
READ AND SAVE THESE INSTRUCTIONS
- CAUTION – RISK OF SHOCK –
Disconnect power at the main circuit breaker panel or main fuse box before starting and during the installation. - WARNING: This fixture is intended for installation in accordance with the National Electrical Code (NEC) and all local code specifications. If you are not familiar with code requirements, installation by a certified electrician is recommended.
- WARNING: To reduce the risk of fire or electric shock, use only the control provided with the fan.
- WARNING: To reduce the risk of fire, electric shock, or Personal Injury, mount directly to a structural framing member or to an outlet box marked “Acceptable For Fan Support of 15.9kg(35 lbs) or less”. For outlet box mounting, use mounting screws provided with the outlet box.
- WARNING: Do not operate reversing switch while fan blades are in motion. The fan must be turned off and blades stopped before reversing blade direction.
- Avoid placing objects in the path of the blades.
- To avoid personal injury or damage to the fan and other items, be cautious when working around or cleaning the fan.
- Make sure the installation site you choose allows a minimum clearance of 7 feet from the blades to the floor and at least 30 inches from the ends of the blades to any obstruction.
- Do not use water or detergents when cleaning the fan or fan blades. A dry dust cloth or lightly dampened cloth will be suitable for most cleaning.
- After making the electrical connections, spliced conductors should be turned upward and pushed carefully up into the outlet box. The wires should spread apart with the ground wire and white(common) wire to one side with the black (load) wire to the other side of the outlet box.
- Electrical diagrams are for reference only. Light kits that are not packed with fans must be ETL Listed and marked suitable for use with the model fan you are installing. Switches must be ETL General Use Switches. Refer to the instructions packaged with the light kits and switches for proper assembly.
WARNING
TO REDUCE THE RISK OF PERSONAL INJURY. DO NOT BEND THE BLADES DURING ASSEMBLY OR AFTER INSTALLATION. DO NOT INSERT OBJECTS IN THE PATH OF THE BLADES.
TOOLS REQUIRED
- Phillips screwdriver
- Blade screwdriver
- 11 mm wrench
- Step ladder
- Wire cutters

PACKAGE CONTENTS
Unpack your fan and check the contents. You should have the following items:
| A. Mounting bracket B. Ball/download assembly C. Canopy D. Canopy Hole Cover E. Coupling Cover F. Motor Body G. Fan Blade (5) H. Light Kit Housing I. Light Kit J. Acrylic Shade | K . Remote Control Kit: Remote Control (1) Receiver (1) Battery (1) Wire Connectors (6) Handset Control Holder (1) L . Package hardware 1) Mounting hardware : Wire Connector (3) 2)Blade attachment hardware : Screws(15), Flat washer (15) |

MOUNTING OPTIONS
If there is not an existing UL (cUL for Canadian Installation ) listed mounting box, then read the following instructions. Disconnect the power by removing fuses or turning off circuit breakers.
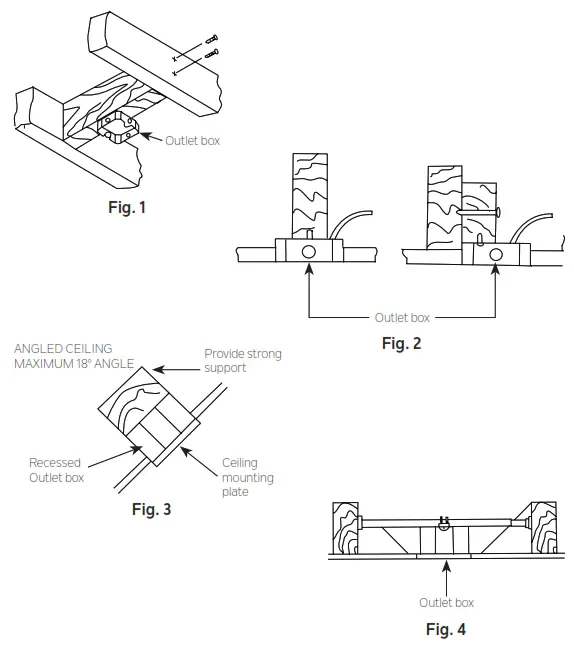
Secure the outlet box directly to the building structure. Use appropriate fasteners and building materials. The outlet box and its support must be able to fully support the full weight of the fan (up to 50 Ibs). Do not use plastic outlet boxes.
Figures 1, 2, and 3 are examples of different ways to mount the outlet box.
NOTE: If you are installing the ceiling fan on a sloped (vaulted) ceiling, you may need a longer downrod to maintain proper clearance between the tip of the blade and the ceiling. A minimum clearance of 12″ is suggested for optimal operation.
NOTE: Depending on the location you have selected for installation, you may need to purchase and install a “Joist Hanger” for the support of the outlet box. Make sure the joist hanger you purchase has been designed for use with ceiling fans. (Fig.4)

HANGING THE MOTOR ASSEMBLY
REMEMBER to turn off the power before you begin the installation. This is necessary for your safety and also the proper programming of the control system. To properly install your ceiling fan, follow the steps below.
Step 1. Before attaching the fan to the outlet box (not included), ensure the outlet box is securely fastened to at least two points to a structural ceiling member (a loose box will cause the fan to wobble). Install the screws and washers included with the outlet box. NOTE: Do not lock the screws completely, just lock half. Pass the 120 volt supply wires from the ceiling outlet box through the center of the ceiling mounting bracket. (Fig. 5)
Step 2. Align the slot holes on the mounting bracket with the screws, push the mounting bracket to the screws, then tighten the screws. (Fig. 6 and 7)

HANGING THE MOTOR ASSEMBLY
Step 3. Remove the hairpin and clevis pin from the downrod assembly, retain them for later use. (Fig.8)
Step 4. Loosen the two set screws on the motor coupling. (Fig. 9)
Step 5. Place the coupling cover, canopy hole cover, and canopy over the coupling found on the top of the motor assembly. Carefully feed fan wires from the motor assembly through the download, then insert the download into the coupling.(Fig.10)

HANGING THE MOTOR ASSEMBLY
Step 6. Pass the clevis pin through the download and coupling found on the motor assembly, and secure with the hairpin. Tighten set screws found on the coupling. (Fig. 11)
Step 7. Now lift the motor body into position and place the hanger ball into the mounting bracket. Rotate until the “Check Tab” has dropped into the “Registration Slot” and seats firmly. (Fig. 12) The entire motor body should not rotate if this is done correctly.
WARNING: Failure to properly seat the “Check Tab” can damage the ceiling fan during operation.

ELECTRICAL CONNECTIONS
]WARNING: To avoid possible electrical shock, be sure you have turned off the power at the main circuit panel before wiring. Follow the steps below to connect the fan to your household wiring. Use the wire connecting nuts supplied with your fan. Secure the connector with electrical tape. Make sure there are no loose wire stands or connections.
WARNING: If your house wires are different colors than referenced in this manual, stop immediately. A professional electrician is recommended to determine proper wiring.
Step 1. Insert the receiver into the mounting bracket, and keep it flat in opposition to the ceiling. Cut off excess fixture wires approximately 6 to 9 inches above the top of the downrod assembly. Strip insulation off 1/2 in. from the end of each fixture wire. (Fig. 13)
Step 2. Motor to Receiver Electrical Connections: Connect the BLACK wire from the fan to the BLACK wire marked “TO MOTOR L” from the receiver. Connect the WHITE wire from the fan to the WHITE wire marked “TO MOTOR N” from the receiver. Connect the BLUE wire from the fan to the BLUE wire marked “FOR LIGHT” from the receiver. Secure all the wire connections with the plastic wire connectors provided. (Fig. 14)
Step 3. Remote Receiver to Outlet Box Electrical Connections: Connect the BLACK (hot) wire from the ceiling to the BLACK wire marked “AC IN L” from the receiver. Connect the WHITE (Neutral) wire from the ceiling to the WHITE wire marked “AC IN N” from the receiver. Secure all the wire connections with the plastic wire connectors provided. (Fig. 14) 
ELECTRICAL CONNECTIONS
Step 4. If your outlet box has a ground wire ( green or bare copper ) connect it to the fan ground wires: otherwise connect the fan ground wire to the mounting bracket. Secure the wire connection with a plastic nut provided. After connecting the wires, spread them apart so that the green and white wires are on one side of the outlet box and black and blue wires are on the other side. (Fig. 14)
NOTE: Carefully tuck the wire connections up Into the outlet box.
NOTE: Fan must be installed at a maximum distance of 30 feet from the transmitting unit for proper signal transmission between the transmitting unit and the fan’s receiving unit.
FINISHING THE MOTOR INSTALLATION
Step 1. Remove one of the two shoulder screws in the mounting bracket. Loosen the second shoulder screw without fully removing it. (Fig. 15)
Step 2. Assemble canopy by rotating key slot in the canopy over shoulder screw-in mounting bracket. Reinstall the shoulder screw that was previously removed, then retighten two shoulder screws securely. (Fig.16)
Step 3. Securely attach and tighten the canopy hole cover over the shoulder screws in the mounting bracket utilizing the key slot twist-lock feature. (Fig.17)

ATTACHING THE FAN BLADES
NOTE: Before continuing, make sure the power is disconnected by turning off the circuit breaker or removing the fuse at the circuit box.
Step 1. Insert the blade through the slot on the motor housing, as shown, security with the screws and washers provided. Repeat the process with the other blades. (Fig. 18)
INSTALLING THE LIGHT KIT HOUSING
Step 1. Remove one of three screws which preinstalled on the mounting plate and keep it for later use. Loosen the other two (do not remove them). (Fig. 19)
Step 2. Place the two slot holes on the light kit housing over the 2 screws previously loosened from the mounting plate. Rotate the light kit housing until it locks in place at the narrow end of the key holes. Securely by tightening the 2 screws previously loosened and the one previously removed. (Fig. 20)

INSTALLING THE LIGHT KIT AND ACRYLIC SHADE
NOTE: Before continuing installation, confirm that the power is still turned off at the main circuit breaker or by removing the circuit fuse. Turning the power off using a wall switch is not sufficient to prevent electrical stock.
Step 1. Remove one of three screws on the light kit housing and keep for later use, loosen the other two (do not remove). (Fig. 21)
Step 2. Hold the light kit close to the light kit housing and connect the WHITE wires from the light kit and fan by pushing the connectors together. Follow the same procedure with the BLACK wires. (Fig. 22)
Step 3. Tuck the connections neatly into the light kit. Place the two slot holes on the light kit over two (2) screws previously loosened from the light kit housing. Rotate the light kit until it locks in place at the narrow end of the keyholes. Securely tighten two(2) screws previously loosened and the one previously removed. (Fig. 22)
Step 4. Secure the acrylic shade to the light kit housing by twisting in a clockwise direction, twist the acrylic shade gradually until it snaps onto the light kit housing. Do not over-tighten. (Fig. 23)
OPERATING INSTRUCTIONS
Restore electrical power to the outlet box by turning the electricity on the main fuse box.
Step 1. Select a location to install your handset control holder, install the holder as shown. (Fig. 24) Step 2. Remove remote battery door, connect 9V battery (included) with plug pressing the battery inside, and replace the battery door. (Fig. 25)
NOTE: If not used for long periods of time, remove the battery to prevent damage to the remote control. Store remote control away from excessive heat and humidity.
NOTE: There are 16 combinations of code for setting up the remote control. If you do not use the dip switch set up by the manufacturer, then you will need to use the setup procedures listed below.(Fig. 26) a.)Set up the code combination you would like to use. b.)After installing the unit and restoring power to the fan, press and hold the “Light” button until the light flashes (on/off) 3 times, then the control and speed setting process is completed. You must press the “Light” button within 30 seconds of restoring power to the fan. c.)If programming is unsuccessful, retry the above instructions.
Step 3. The buttons control the fan speed and light as follows:(Fig. 27)
3 Low speed
2 Medium-speed
1 High speed
0 To turn off the fan
Press the light key quickly to turn the light on or off
OPERATING INSTRUCTIONS
For the DIMMER function: press and hold
the button to dim the light. The light will cycle from bright to dim to bright until the button is released. Light will maintain the last setting if turned off. This remote has a memory function. The remote stores the fan speed and light setting when the fan is turned off. When the fan is turned on again, it starts with the most recent setting. Use the fan reversing switch to optimize your fan for seasonal performance.
Step 4. Use the fan reversing switch to optimize your fan for seasonal performance.
WARNING: do not operate reversing switch while fan blades are in motion. The fan must be turned off and blades stopped before reversing blade direction.
Warm Weather Operation: Forward (counterclockwise). A downward airflow creates a cooling effect (Fig. 29). This allows you to set your air conditioner in a warmer setting without affecting your general comfort.
Cool Weather Operation: Reverse (clockwise). An upward airflow moves warm air off the ceiling areas (Fig. 30). This allows you to set your heating unit in a cooler setting without affecting your general comfort.
TROUBLESHOOTING
Problem Solution
The fan will not start.
- Check circuit fuses or breakers.
- Check all electrical connections to ensure proper contact. CAUTION: Make sure the main power is OFF when checking any electrical connection.
- Make sure the transmitter batteries are installed properly. Positive (+) side facing out.
- Ensure the batteries have a good charge.
Fan sounds noisy.
- Make sure all motor housing screws are snug.
- Make sure the screws that attach the fan blade brackets to the motor are tight.
- Make sure wire nut connections are not rubbing against each other or the interior wall of the switch housing. CAUTION: Make sure the main power is off.
- Allow a 24-hour “breaking-in” period. Most noise associated with a new fan disappears during this time.
- If using an optional light kit, make sure the screws securing the glassware are tight. Make sure the light bulbs are not touching any other component.
- Do not connect this fan to a wall-mounted variable speed control(s). They are not compatible with ceiling fan motors or remote controls.
- Make sure the upper canopy has a short distance from the ceiling. It should not touch the ceiling.
Fan wobble.
- Check that all blade and blade arm screws are secure.
- Most fan wobbling problems are caused when blade levels are unequal. Check this level by selecting a point on the ceiling above the tip of one of the blades. Measure this distance. Rotate the fan until the next blade is positioned for measurement. Repeat for each blade. The distance deviation should be equal to 1/8″. 3. If the blade wobble is still noticeable, interchanging two adjacent (side by side) blades can redistribute the weight and possibly result in a smoother operation.
Remote control
- Ceiling Fans with remote control systems CAN NOT be operated in conjunction with any other control system EXCEPT a malfunction. basic On/off wall switch, if desired.
FCC Information
This device complies with part 15 of the FCC Rules. Operation is subject to the following two conditions:
1.)This device may not cause harmful interference, and
2.)This device must accept any interference received, including interference that may cause undesired operation.
Note: This equipment has been tested and found to comply with the limits for a Class B digital device, pursuant to part 15 of the FCC Rules. These limits are designed to provide reasonable protection against harmful interference in a residential installation. This equipment generates, uses, and can radiate radio frequency energy and, if not installed and used in accordance with the instructions, may cause harmful interference to radio communications. However, there is no guarantee that interference will not occur in a particular installation. If this equipment does cause harmful interference to radio or television reception, which can be determined by turning the equipment off and on, the user is encouraged to try to correct the interference by one or more of the following measures:
- Reorient or relocate the receiving antenna.
- Increase the separation between the equipment and receiver.
- Connect the equipment into an outlet on a circuit different from that to which the receiver is connected.
- Consult the dealer or an experienced radio/TV technician or help.

www.kichler.com
KICHLER LIGHTING
7711 EAST PLEASANT VALLEY ROAD
CLEVELAND, OHIO 44131-8010
CUSTOMER SERVICE 866.558.5706
8:00 AM TO 5:00 PM EST, MONDAY – FRIDAY
© Kichler Lighting LLC. All Rights Reserved.



















