FL-8224D Base Plate Two Post Lift
User Manual
Lifting Capacity 9200LB
Read this entire manual carefully and completely before installation or operation of the lift.
IMPORTANT SAFETY INSTRUCTIONS
1.1 Important notices
FRLEND will offer one-year’s quality warranty for the whole machine, during which any quality problem will be properly solved to the user’s satisfaction. However, we will not take any responsibility for whatever bad consequence resulted from improper installation and operation, overload running or unqualified ground condition.
This 2-posts lift is specially designed for lifting motor vehicles that weighs within its outmost lifting capacity. Users are not allowed to use it for any other purposes. Otherwise, we, as well as our sales agency, will not bear any responsibility for accidents or damages of the lift. Make sure to pay careful attention to the label of the lifting capacity attached on the lift and never try to lift cars with its weight beyond.
Read this manual carefully before operating the machine so as to avoid economic loss or personnel casualty incurred by wrong operation. Without professional advice, users are not permitted to make any modification to the control unit or whatever mechanical unit.
1.2 Qualified personnel
1.2.1 Only these qualified staff, who have been properly trained, can operate the lift.
1.2.2 Electrical connection must be done by a competent electrician.
1.2.3 People who are not concerned are not allowed in the lifting area.
1.3 Danger notices
1.3.1 Do not install the lift on any asphalt surface.
1.3.2 Read and understand all safety warnings before operating the lift.
1.3.3 The lift, if is not specially designed upon customer’s request, is not fit for outdoor use.
1.3.4 Keep hands and feet away from any moving parts. Keep feet clear of the lift when lowering.
1.3.5 Only these qualified people, who have been properly trained, can operate the lift.
1.3.6 Do not wear unfit clothes such as large clothes with flounces, tires, etc, which could be caught by moving parts of the lift.
1.3.7 To prevent evitable incidents, surrounding areas of the lift must be tidy and with nothing unconcerned.
1.3.8 The lift is simply designed to lift the entire body of vehicles, with its maximum weight within the lifting capacity.
1.3.9 Always insure the safety latches are engaged before any attempt to work near or under the vehicle.
1.3.10 Make sure to place the lifting pads to the positions as suggested by vehicle makers and when gradually lift the vehicle to the desired height, operators should be certain that the vehicle will not slant, roll-over or slide in lifting process.
1.3.11 Check at any time the parts the lift to ensure the agility of moving parts and the performance of synchronization. Ensure regular maintenance and if anything abnormal occurs, stop using the lift immediately and contact our dealers for help.
1.3.12 Lower the lift to its lowest position and do remember to cut off the power source when service finishes.
1.3.13 Do not modify any parts of the lift without manufacturer’s advice.
1.3.14 If the lift is going to left used for a long time, users are required to:
a. Disconnect the power source;
b. Empty the oil tank;
c. Lubricate the moving parts with hydraulic oil.
1.4 Training
Only these qualified people, who have been properly trained, can operate the lift. We are quite willing to provide professional training for the users when necessary.
Attention: For environment protection, please dispose the disused oil in a proper way.
1.5 Warning signs
All safety warning signs attached on the machine are for the purpose of drawing the user’s attention to safety operation. The labels must be kept clean and need to be replaced when they are worn-out or have dropped. Read the explanations of the labels carefully and try to memorize them.
![]() | |||
| Remain clear of lift when lowering or lifting vehicle. | Clear area if vehicle is in danger of falling. | Lift vehicle at the manufacturer s points | Always use safety stands when removing/ installing heavy components |
![]() | |||
| Locate the vehicle with center gravity right between two adapters. | Keep feet away from adapter while lift lowering. | Use height extension when necessary to ensure good contact. | Auxiliary adapters may reduce load capacity. |
![]() | ||
| Do not override self – closing lift controls | Do not shake vehicle heavily while on lift | Read the manual before installation or operation of the lift |
WARNING
- Travelling on the load carrying devices is forbidden.
- After raising a short distance, checked to ensure that it is correctly and safely positioned.
- It is forbidden to climb onto the load or load carrying devices when they are raised.
| Lift is only allowed to be used by trained operator. | Only authorized personnel allowed in lift area |
Arms must support the rated load weight as the following diagram.

OVERVIEW OF THE LIFT
2.1 General descriptions
This floor plate two posts lift is composed of posts, carriages, lifting arms, cylinders and motor unit, etc.
It is driven by an electro-hydraulic system. The gear pump delivers hydraulic oil to oil cylinders and pushes upwards its piston. The piston drives the chain to raise the carriage and the lifting arms. During lifting process, the safety latch will automatically and firmly bite with the safety teeth block in the posts. Therefore, no slipping will happen in case the hydraulic system breaks down.
Safety structure

2.2 Technical data
| Model | Lifting capacity | Full rise time | Full rise | Height | Width | Inside columns |
| FL-8224D | 9200LB | 50 Sec | 1930mm | 2824mm | 3436mm | 2850mm |
INSTALLATION INSTRUCTIONS
3.1 Preparations before installation
3.1.1 Tools and equipment’s needed
Appropriate lifting equipment
Anti-abrasion hydraulic oil.
Rotary Hammer Drill with 3/4’’ drill bit.
Chalk and tape measure, magnetic plump, 8 metersФ15 level pipe.
Sockets and open wrenches, a set of inside hex wrenches, cross and straight screw drivers.
Hammer, 4pounds, sharp nose pliers, Ф17,Ф19,Ф22 socket spanners.
3.1.2 List for parts checking —Annex 1(Packing list)
Unfold the package and check if any parts missed as per Annex 1. Do not hesitate to contact us in case any parts missed, but if you do not contact us and insist installing upon the lack of some parts, FRLEND as well as our dealers will not bear any responsibility for this and will charge for any parts subsequently demanded by the buyer.
3.1.3 Ground conditions
The lift should be fixed on a smooth and solid concrete ground with its strength more than 3000psi, tolerance of flatness less than 5mm and minimum thickness of 200mm. In addition, newly built concrete ground must undergo more than 28days’ cure and reinforcement.
3.2 Precautions for installation
3.2.1 Make sure the two posts stand paralleled and are vertical to the ground. No slanting.
3.2.2 Joints of oil hose and steel cable must be firmly connected in order to avoid the looseness of steel cable and leakage of oil hose.
3.2.3 All bolts should be firmly screwed up.
3.2.4 Do not place any vehicle on the lift in the case of trial running.
3.3 Installation

Step 1: Remove the packaging, take out the carton for accessories and cover plate.
Step 2: Firstly, put something supporting between the two posts or suspend one of the posts by a crane and then remove the bolts on the package.
Attention: Please pay special attention not to let the post fall down for it may cause casualty or bring damages to the accessories fixed in the post.
Step3: When the first post has been taken away, place something supporter under the second post and then remove the bolts on the package.
Step 4: Fix the standing position for the two posts. (See Annex 3, floor plan)
- Unfold the package and decide on which post the power unit will be mounted.
- Draw an outline of the base plate on the ground with chalk and ascertain the position for the post.
Step 5: Erect the posts, power side post first and then the other post.
- Drill anchor holes for expansion bolts on the ground with an electrical drill. Make sure to drill vertically.
- After holes have been drilled, remove thoroughly the debris and dust in them and ascertain that the posts stay upon the circle previously drawn by chalk.

Step 6: Fix the slot base plate.
Manually raise two carriages about 800mm from the ground to have them locked by safety locks and then place the slot base plate between two base plates of the post.

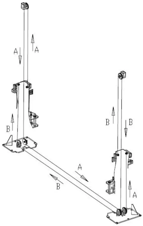
Step7: Connect steel cables.
- Route and fix according to the following diagram of steel cable connection.
- Raise carriages on both sides approximately 800mm above the ground. Carriages must be on the same height from the floor.
- Make sure that the mechanical safety locks in each post are fully engaged before attempting to route cables.
- After the cable being fixed, adjust and make the cable at both sides be with the same tightness which could be judged by the sound emitted during lifting process. Make judge and adjustment after trial running.
- Grease after being fixed. (It is a must.)

Step8: Mount the power unit onto the power side post.

Step9: Connect oil hoses.
Connect the oil hose as per the following diagram.

Step10: Connect wires.
- Mount the control box on to the power side post.

- Fix the limit switch into the power side post.

Step11: Install lifting arms.
Connect the lifting arm and the carriage by shafts.
Install the lifting arms onto the carriages and ensure the arm lock could work.
Step12: Fill with hydraulic oil.
The volume of oil tank is 10L.To insure the lift work normally, the amount of oil in it should at least reach 80% of the tank’s total volume. 32#anti-abrasion hydraulic oil for winter, 46# for summer.
Step13: Trial running.
- Do refer to the operation instructions in advance and keep in mind that no vehicle left on the lift in the process of trial running.
- Check if mechanical locks can be well engaged or released in the running process. Adjust by screwing the hex head screw as showed in the following drawing in case the locks do not work well. (Screw clockwise in case the lock can not release and screw counterclockwise in case the lock can’t be engaged.)
- Check and ensure all the connections are in good condition.
- No vehicle on the lift during trial running.
Step14: Fix feet protection fenders, chain protection clothes, door-opening protections and lifting trays. Fix base cover plate.
3.4 Items to be checked after installation.
| S/N | Check items | YES | NO |
| 1 | Are the posts vertical to the floor? | ||
| 2 | Are the two posts paralleled? | ||
| 3 | Is the oil hose well connected? | ||
| 4 | Is the steel cable well connected? |
| 5 | Are all lifting arms well fixed? | ||
| 6 | Are electrical connections right? | ||
| 7 | Are the rest joints firmly screwed? | ||
| 8 | Are all items need lubricating added with grease? |
OPERATION INSTRUCTIONS
4.1 Precautions
4.1.1 Check all the joints of oil hose. Only when there is no leakage, the lift can start work.
4.1.2 The lift, if its safety device malfunctions, shall not be used.
4.1.3 The machine shall not lift or lower an automobile if its center of gravity is not positioned midway of the swing arms. Otherwise, the FRIEND as well as our dealers will not bear any responsibility for any consequence resulted thereby.
4.1.4 Operators and other personnel concerned should stand in a safety area during lifting and lowering process.
4.1.5 When lifting arms rise to the desired height, switch off the power at once to prevent any mal-operation done by unconcerned people.
4.1.6. Make sure the safety lock of the lift is engaged before start working under the vehicle and no people under the vehicle during lifting and lowering process.
4.2 Flow chart for operation

4.3 Operation instructions

Raise the lift
- Make sure that you have read and understood the operation manual before operation.
- Park the vehicle between two posts.
- Adjust the lifting arms until they reach the supporting positions of the vehicle and make sure the gravity of vehicle located in the center of four lifting arms.
- Connect the power supply as per requirements on the nameplate attached, and switch on.
- Press the ”UP” button on the control box until pads of lifting arms touched the prop-position of vehicle.
- Keep on raising the vehicle to let it have a bit clearance from the ground and check again its stability.
- Raise the vehicle to the desired height, check it is safe or not, press the “unlocking handle” button to have the safety locks engaged, and then perform maintenance or repair work underneath.
Lower the lift
- Press the “UP” button on the control box to raise the lifting arms about 5CM which looses the safety lock.
- Pull the unlocking steel cable at both sides to release the safety locks.
- Press the unloading handle to lower the arms.
- After the lifting arms lower to the lowest position, pull them out from under the vehicle and clear up all the obstacles.
- Drive the vehicle away.
TROUBLE SHOOTING
ATTENTION: If the trouble could not be fixed by yourself, please do not hesitate to contact us for help .We will offer our service at the earliest time we can. By the way, troubles could be judged and solved much faster if more details or pictures could be provided.
| TROUBLES | CAUSE | SOLUTION |
| Abnormal noise | Abrasion exists on insider surface of the posts. | Grease the inside of the post. |
| Trash in the post. | Clear the trash | |
| Motor does not run and will not rise | The wire connection is loose. | Check and make a good connection. |
| The motor is blown. | Replace it. | |
| The limit switch is damaged or the wire connection is loose. | Connect it or adjust or replace the limit switch. | |
| Motor runs but will not raise | The motor run reversely. | Check the wire connection. |
| Overflow valve is loose or jammed. | Clean or adjust it. | |
| The gear pump is damaged. | Replace it. | |
| Oil level is too low. | Add oil. | |
| The oil hose became loose or dropped off. | Tighten it. | |
| The cushion valve became loose or jammed. | Clean or adjusts it. | |
| Carriages go down slowly after being raised | The oil hose leaks. | Check or replace it. |
| The oil cylinder is not tightened. | Replace the seal. | |
| The single valve leaks. | Clean or replace it. | |
| Solenoid valve fails to work well. | Clean or replace it. | |
| Steel cable is loose or not with same tightness. | Check and adjust the tightness. | |
| Raising too slow | The oil filter is jammed. | Clean or replace it. |
| Oil level is too low. | Add oil. | |
| The overflow valve is not adjusted to the right position. | Adjust it. | |
| The hydraulic oil is too hot ( above 45°). | Change the oil. | |
| The seal of the cylinder is abraded. | Replace the seal. | |
| Inside surface of the posts is not well greased. | Add grease. | |
| Lowering too slow | The throttle valve jammed. | Clean or replace. |
| The hydraulic oil is dirty. | Change the oil. | |
| The anti-surge valve jammed. | Clean it. | |
| The oil hose jammed. | Replace it. | |
| The steel cable is abraded | No grease when installation or out of lifetime. | Replace it. |
MAINTENANCE
Easy and low cost routine maintenance can ensure the lift work normally and safely. Following are requirements for routine maintenance. Frequency of routine maintenance is determined by working condition and frequency.
THE FOLLOWING PARTS ARE NEEDED TO BE LUBRICATED
| S/N | Description |
| 1 | Up pulley |
| 2 | Steel cable |
| 3 | Chain wheel |
| 4 | Chain |
| 5 | Sliding block |
| 6 | Pin |
| 7 | Arm block |
| 8 | Lifting arm |
| 9 | Tray |
| 10 | Down pulley |

6.1 Daily checking items before operation
The user must perform daily check. Daily check of safety lock system in very important – the discovery of device failure before action could save time and prevent great loss, injury or casualty.
- Before operation, judge whether the safety locks are engaged by sound.
- Check whether oil hose well connected and whether it leaks or not.
- Check the connections of chain and steel cable and check the power unit.
- Check whether expansion bolts are firmly screwed.
- Check if arm lock works well or not.
6.2 Weekly checking items
- Check the flexibility of moving parts.
- Check the working conditions of safety parts.
- Check the amount of oil left in the oil tank. Oil is enough if the carriage can be raised to highest position. Otherwise, oil is insufficient.
- Check whether expansion bolt s firmly screwed.
6.3 Monthly checking items
- Check whether expansion bolts are firmly screwed.
- Check the tightness of the hydraulic system and screw firm the joints if it leaks.
- Check the lubrication and abrasion circumstance of axial pins, carriages, lifting arms and other related parts and replace in time with new ones if they failed to work well.
- Check the lubrication and abrasion circumstance of steel cable.
6.4 Yearly checking items
- Empty the oil tank and check the quality of hydraulic oil.
- Wash and clean the oil filter.
If users strictly follow the above maintenance requirements, the lift will keep in a good working condition and meanwhile accidents could be avoided to a large extent.
ANNEX
Annex 1, Packing List of the whole lift
| S/N | Name | Drawing# | Property | Qty |
| 1 | Power-side post | FL-8224D-A1 | Assembly | 1 |
| 2 | Post | FL-8224D-A2 | Assembly | 1 |
| 3 | Carriage | FL-8224D-A3 | Assembly | 2 |
| 4 | Long arm | FL-8224-A7 | Assembly | 2 |
| 5 | Short arm | FL-8224-A08 | Assembly | 2 |
| 6 | Oil cylinder | FL-8224-A4-B2 | Assembly | 1 |
| 7 | Drive oil cylinder | FL-8224-A4-B3 | Assembly | 1 |
| 8 | Power unit | Assembly | 1 | |
| 9 | Base cover plate | FL-8224-A10 | Q235A | 1 |
| 10 | Slot base plate | FL-8224-A9 | Welded | 1 |
| 12 | Control box | Assembly | 1 | |
| 13 | Steel cable | FL-8224-A6 L=8820mm | Assembly | 2 |
| 14 | Power unit package | 825*225*312mm | 1 | |
| 15 | The carton includes the following | 850*340*130mm | 1 | |
| 16 | Protection rubber pad | FL-8224-A3-B7 | Rubber | 2 |
| 17 | Rubber oil hose | L=1300 | Assembly | 1 |
| 18 | Rubber oil hose | L=2900 | Assembly | 1 |
| 19 | Rod of the chain protection cloth | FL-8224-A13 | Zinc-plating | 4 |
| 20 | Lifting tray | FL-8224-A7-B3 | Assembly | 4 |
| 21 | Long arm fender | FL-8224-A7-B4 | Powder-coating | 2 |
| 22 | Short arm fender | FL-8224-A8-B3 | Powder-coating | 2 |
| 23 | Height adapter | FL-8224-A15 | Zinc-plating | 4 |
| 24 | Shaft | FL-8224-A12 | Zinc-plating | 4 |
| 25 | Chain protection cloth 2700 | FL-8224-A11 | Assembly | 2 |
| 26 | Bracket for Adapter | FL-8224-A1-B4 | ||
| 27 | Oil pipe cover | FL-8224-A16 | ||
| 28 | Hex head full swivel screw | M6*30 | Standard | 4 |
| 29 | Hex socket button head screw | M6*10 | Standard | 8 |
| 30 | Hex socket button head screw | M8*12 | ||
| 31 | Cross socket flat head screw | M8*20 | Standard | 4 |
| 32 | Cross socket cap head screw | M6*12 | Standard | 4 |
| 33 | Class C flat washer | M6 | Standard | 8 |
| 34 | Hex socket full screw | M8*35 | ||
| 35 | Class C flat washer | M8 | Standard | 4 |
| 36 | Spring washer | M8 | Standard | 4 |
| 37 | Hex nut | M8 | Standard | 4 |
| 38 | Hex nut | M6 | Standard | 8 |
| 39 | Circlip | 38 | Standard | 4 |
| 40 | Expansion bolt |
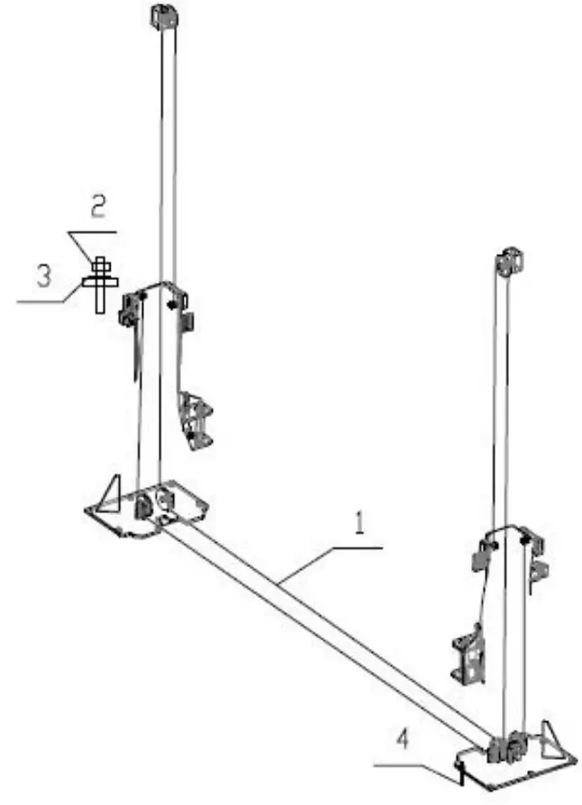
Annex 2, Overall diagram

Annex 3, Floor plan

Annex 4, Hydraulic working system

| 1. Drive oil cylinder 2. Assistant oil cylinder 3. Manual unloading valve 4. Throttle valve 5. Motor 6. Coupling | 7. Gear pump 8. Single –way valve 9. Over-flow valve 10. Anti-surge valve 11. Cushion valve |

| S/N | Name | Qty |
| 1 | Motor | 1 |
| 2 | Hydraulic block | 1 |
| 3 | Overflow valve | 1 |
| 4 | Removable plug | 2 |
| 5 | Cushion valve | 1 |
| 6 | Oil absorbing pipe | 1 |
| 7 | Oil filter | 1 |
| 8 | Throttle valve | 1 |
| 9 | Oil pipe tie-in | 1 |
| 10 | Unloading valve | 1 |
| 11 | One-way valve | 1 |
| 12 | Gear pump | 1 |
| 13 | Plastic oil tank | 1 |
| 14 | Oil tank cover | 1 |
| 15 | Oil back pipe | 1 |
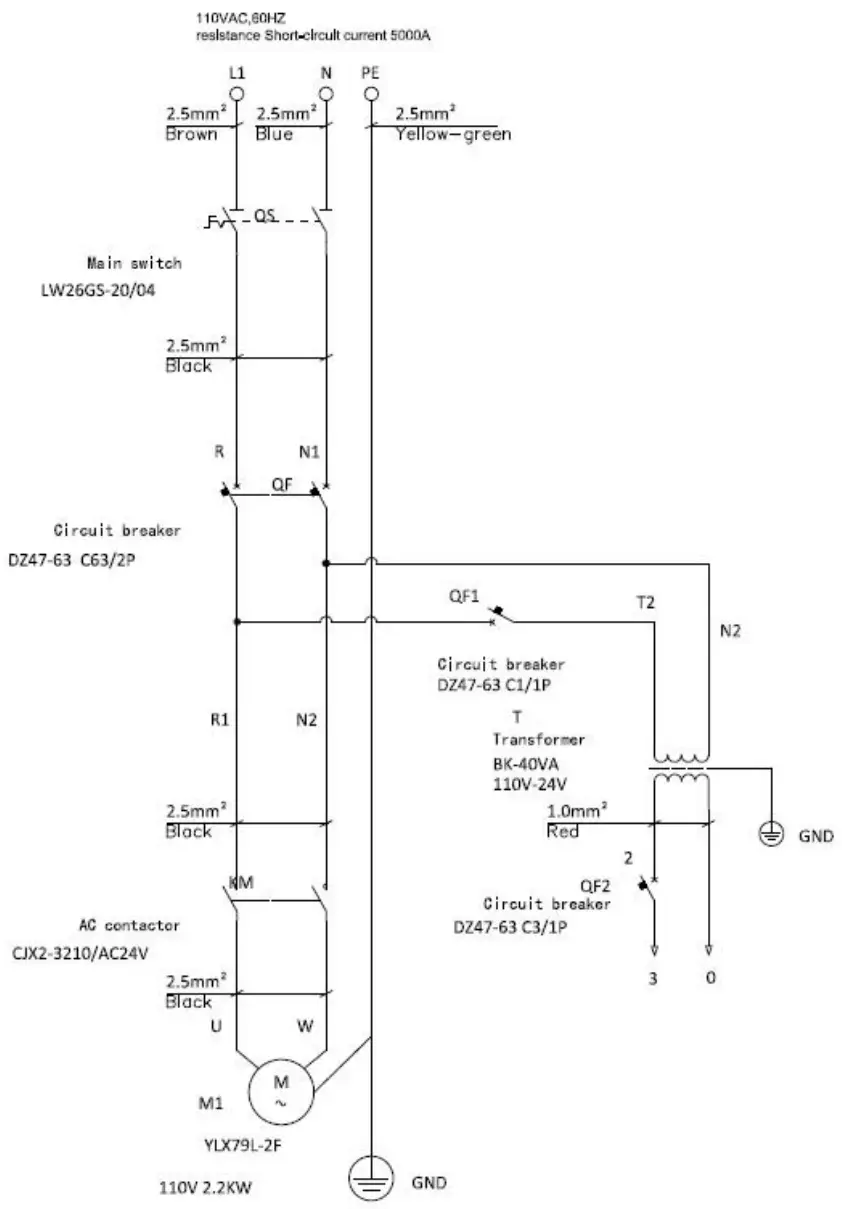
Annex5, Wiring diagram
Single phase
![]() | ![]() | ![]() |
Annex 6, Separated drawings for the lift

| S/N | Name | Drawing# | Qty | Property | Note |
| 1 | Steel cable L=8820mm | FL-8224-A6 | 2 | Assembly | |
| 2 | Hex nut M16 | GB/T6170-2000 | 8 | Standard | |
| 3 | Class C flat washer M16 | GB/T95-1985 | 4 | Standard | |
| 94 | Expansion bolt M18*180 | 10 | Standard |

| S/NN | Name | Drawing# | Qty | Property | Note |
| 4 | Rubber oil hose L=2900 | 1 | Assembly | ||
| 5 | Power unit | 1 | Assembly | ||
| 6 | Rubber oil hose L=1300 | 1 | Assembly | ||
| 7 | Long connector | 2 | Assembly | ||
| 8 | Drive oil cylinder | FL-8224-A4-B2 | 1 | Assembly | |
| 9 | Main connector | 1 | Zinc-plating | ||
| 10 | Short connector | 1 | Zinc-plating | ||
| 11 | Chain wheel bracket | FL-8224-A4-B9 | 2 | Zinc-plating | |
| 12 | Type B circlip 25 | GB/T894.2-1986 | 4 | Standard | |
| 13 | Chain wheel shaft | FL-8224-A4-B11 | 2 | Zinc-plating | |
| 14 | Bearing 2548 | SF-1 | 2 | Standard | |
| 15 | Chain wheel | FL-8224-A4-B10 | 2 | Zinc-plating | |
| 16 | Retaining plate | FL-8224-A4-B12 | 2 | Zinc-plating | |
| 17 | Spring washer M6 | GB/T93-1987 | 4 | Standard | |
| 18 | Hex socket cylinder head screw M6*10 | GB/T70.1-2000 | 4 | Standard | |
| 19 | Chain | LH1234-127LGB/6074-1995 | 2 | Standard | |
| 20 | Oil cylinder | FL-8224-A4-B3 | 1 | Assembly |

| S/N | Material # | Name | Drawing# | Qty | Property | Note |
| 29 | Hex socket button head screw M8*20 | GB/T70.2-2000 | 2 | Standard | ||
| 30 | Spring washer M8 | GB/T93-1987 | 2 | Standard | ||
| 31 | Retaining ring | FL-8224-A1-B3-C2 | 2 | Zinc-plating | ||
| 32 | Washer | GB/T894.2-1986 | 2 | Zinc-plating | ||
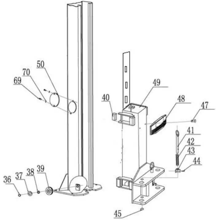
| 33 | UP pulley | FL-8224-A1-B2 | 2 | Zinc-plating | ||
| 34 | Bearing 2518 | SF-1 | 2 | Standard | ||
| 35 | Top cover | FL-8224-A1-B3-C1 | 2 | Welded |

| S/N | Name | Drawing# | Qty | Property | Note |
| 36 | Type B circlip 25 | GB/T894.2-1986 | 4 | Standard | |
| 37 | Washer | Q235A |
| S/N | Name | Drawing# | Qty | Property | Note |
| 38 | Bearing 2512 | SF-1 | 4 | Standard | |
| 39 | Down pulley | FL-8224-A1-B3 | 4 | Q235A | |
| 40 | Slider | FL-8224-A3-B6 | 16 | Nylon 1010 | |
| 41 | Pulling rod | FL-8224-A3-B2 | 4 | Welded | |
| 42 | Pressure spring | FL-8224-A3-B5 | 4 | Zinc-plating | |
| 43 | Teeth block | FL-8224-A3-B4 | 4 | Q235A | |
| 44 | Elastic cylindrical pin 5*35 | GB/T879.1-2000 | 4 | Standard | |
| 45 | Type B circlip 25 | GB/T894.2-1986 | 2 | Standard | |
| 47 | Cross socket sunken head screw M8*16 | GB/T819.1-2000 | 4 | Standard | |
| 48 | Protection rubber pad | FL-8224-A3-B7 | 2 | Rubber | |
| 49 | Carriage | FL-8214D-A3-B1 | 2 | Assembly | |
| 50 | Cover plate | FL-8224-A1-B5 | 2 | Q235A | |
| 69 | Cross socket cap head screw M6*8 | GB/T818-2000 | 4 | Standard | |
| 70 | Class C flat washer M6 | GB/T95-1985 | 4 | Standard |

| S/N | Name | Drawing# | Qty | Property | Note |
| 51 | Top plate | FL-8224-A1-B3 | 2 | Assembly | |
| 52 | Class C flat washer M12 | GB/T95-1985 | 4 | Standard | |
| 53 | Spring washer M12 | GB/T93-1987 | 4 | Standard | |
| 54 | Hex head full swivel screw M12*20 | GB/T5781-2000 | 4 | Standard | |
| 55 | Hex nut M6 | GB/T6170-2000 | 8 | Standard | |
| 56 | Class C flat washer M6 | GB/T95-1985 | 4 | Standard | |
| 57 | Rod of chain protection cloth | FL-8224-A13 | 4 | Standard | |
| 58 | Chain protection | FL-8224-A11 | 2 | Cloth | |
| 59 | Cross socket flat head screw M5*10 | GB/T819.1-2000 | 16 | Standard | |
| 60 | Square lifting pad | FL-8224-A7-B6 | 4 | Rubber | |
| 61 | Cross socket flat head screw M8*10 | GB/T819.1-2000 | 4 | Standard | |
| 62 | Hex socket flat head screw M8*20 | GB/T70.3-2000 | 8 | Standard | |
| 63 | Round lifting pad | FL-8224-A7-B3-C4 | 4 | Rubber | |
| 64 | Lifting tray | FL-8224-A7-B3-C1 | 4 | Welded | |
| 65 | Type B circlip 22 | GB/T894.2-1986 | 4 | Standard | |
| 66 | Swivel sheath | FL-8224-A7-B3-C2 | 4 | Q235A | |
| 67 | Circlip 38*2.5 | GB/T895.2-1986 | 8 | Standard | |
| 68 | Inside swivel sheath | FL-8224-A7-B3-C3 | 4 | Q235A | |
| 69 | Cross socket cap head screw M6*8 | GB/T818-2000 | 4 | Standard | |
| 70 | Class C flat washer M6 | GB/T95-1985 | 4 | Standard | |
| 71 | Hex socket flat head screw M12*20 | GB/T70.3-2000 | 2 | Standard | |
| 72 | Base cover plate | FL-8224-A10 | 1 | Q235A | |
| 73 | Slot base plate | FL-8224-A9 | 1 | Welded | |
| 74 | Long tensile arm | FL-8224-A7-B1 | 2 | Welded | |
| 75 | Long fender | FL-8224-A7-B4 | 2 | Welded | |
| 76 | Long arm | FL-8224-A7-B2 | 2 | Welded | |
| 77 | Teeth block | FL-8224-A7-B5 | 4 | Q235A | |
| 78 | Hex socket cylinder head screwM10*20 | GB/T70.1-2000 | 12 | Standard | |
| 79 | Pin | FL-8224-A12 | 4 | Welded | |
| 80 | Hex nut M10 | GB/T6170-2000 | 4 | Standard | |
| 81 | Spring washer M10 | GB/T93-1987 | 4 | Standard | |
| 82 | Anti-shock pad | FL-8224-A14 | 4 | Rubber | |
| 83 | Class C flat washer M10 | GB/T95-1985 | 4 | Standard | |
| 84 | Hex head full swivel screw M10*35 | GB/T5781-2000 | 4 | Standard | |
| 86 | Control box | 1 | Assembly | ||
| 87 | Cross socket cap head screw M5*10 | GB/T818-2000 | 4 | Standard | |
| 88 | Short arm | FL-8224-A8-B1 | 2 | Welded | |
| 89 | Short tensile arm | FL-8224-A8-B2 | 2 | Welded | |
| 90 | Hex socket button head screw M8*12 | GB/T70.2-2000 | 8 | Standard | |
| 91 | Short fender | FL-8224-A8-B3 | 2 | Welded | |
| 92 | Height adapter | FL-8224-A15 | 4 | Welded |

| S/N | Name | Drawing#/Spec. | Qty | Property | Note |
| 1 | Guide wheel | FL-8214D-A1-B6 | 2 | Assembly | |
| 2 | Inner hexagon screwM6*10 | GB/T70.1-2000 | 4 | ||
| 3 | Guide wheel frame welding part | FL-8214D-A1-B3 | 2 | ||
| 4 | Safety shaft | FL-8214D-A1-B7 | 2 | 45 | |
| 5 | Torsion spring 1 | FL-8214D-A1-B9 | 2 | ||
| 6 | Safey hook welding part | FL-8214D-A1-B4 | 2 | ||
| 7 | Inner hexagon screw M8*35 | GB/T70.1-2000 | 2 | ||
| 8 | Screw M8 | GB/T6170-2000 | 6 | ||
| 9 | Torsion spring 2 | FL-8214D-A1-B10 | 1 | ||
| 10 | Unlock board welding part 1 | FL-8214D-A1-B5 | 1 | ||
| 11 | Screw M10 | GB/T70.1-2000 | 1 | ||
| 12 | Unlock handle | FL-8214D-A1-B8 | 1 | ||
| 13 | Unlock board welding part 2 | FL-8214D-A2-B2 | 1 |
Annex 7, Spare parts list
| S/N | Name | Spec. | Qty | Pic. | Note |
| 1 | Power switch | LW26GS-20/04 | 1 | ![]() | |
| 2 | Button | Y090-11BN | 3 | ![]() | |
| 3 | Power indicator | AD17-22G-AC24 | 1 | ![]() | |
| 4 | Transformer | JBK-40VA220V-24V | 1 | Same as item 7 | |
| 5 | Transformer | JBK-40VA230V-24V | 1 | Same as item 7 | |
| 6 | Transformer | JBK-40VA240V-24V | 1 | Same as item 7 | |
| 7 | Transformer | JBK-40VA380V-24V | 1 | ![]() | |
| 8 | Transformer | JBK-40VA400V-24V | 1 | Same as item 7 | |
| 9 | Transformer | JBK-40VA415V-24V | 1 | Same as item 7 | |
| 10 | AC contactor | CJX2-1210/AC24 | 1 | ![]() | |
| 11 | Circuit breaker | DZ47-63 C16 /3P | 1 | ![]() | |
| 12 | Circuit breaker | DZ47-63 C32 /2P | 1 | ![]() | |
| 13 | Circuit breaker | DZ47-63 C1 /1P | 1 | ![]() | |
| 14 | Circuit breaker | DZ47-63 C3 /1P | 1 | Same as item 13 | |
| 15 | Limit switch | TZ8108 | 1 | ![]() | |
| 16 | Control box | Big | 1 | ![]() |
Spare parts list—mechanical part
| S/N | Name | Drawing# | Qty | Property | Note |
| 1 | Slider | FL-8224-A3-B6 | 16 | Nylon 1010 | |
| 2 | Rubber lifting pad | FL-8224-A7-B3-C4 | 4 | Rubber | |
| 3 | Y-shape seal ring | (内径)23.6*3.55 | 1 | ||
| 4 | O-shape seal ring | KD 63*48*10 | 1 | ||
| 5 | Anti-dust ring | DHS 40*48*5/6.5 | 1 |
Distributed by
www.zg-friend.com
FL-8224D




































