TUX FP12K-K Four Post Lift Owner’s Manual

INSTALLATION / OWNERS MANUAL\
READ THIS MANUAL THOROUGHLY BEFORE INSTALLING, OPERATING, OR MAINTAINING THIS LIFT. WHEN DONE WITH INSTALLATION BE SURE TO RETURN DOCUMENTS TO PACKAGE AND GIVE ALL MATERIALS TO LIFT OWNER/OPERATOR. WHEN INSTALLATION IS COMPLETE BE SURE TO RUN LIFT UP AND DOWN A FEW CYCLES WITH AND WITHOUT “TYPICAL” VEHICLE LOADED ON LIFT.
IMPORTANT INFORMATION
- Always inspect the lift for damage and make note of any damage on the bill of lading.
- In case of freight damage, call the truck line immediately and report the damage as a freight claim.
- Make sure to have extra help or heavy duty lifting equipment when unloading & assembling lift.
- Make sure all operators read the safety procedures and operating instructions in this manual before operating lift. Keep manual near lift at all times.
- A good level floor is recommended for proper installation and operation. Concrete should be a minimum of 4-1/4” thickness with 3,000psi compressive strength, reinforced with steel or fiber mesh.
- The power unit may only be installed on the drivers-side or left front corner.
- Never raise a car until you have double checked all bolts, nuts, and hose fittings are properly secured.
- Always lower the lift onto safety locks before going under the vehicle and/or storing another vehicle underneath lift.
- The lift is intended to lift vehicles only. It is not designed to lift any person or equipment containing people.
- The lift is intended to raise the entire body of the vehicle. Do not attempt to lift only part of the vehicle. Improper use of this equipment could result in damage to the lift, yourself, or other property.
- Never allow anyone to go under the lift when raising or lowering.
OWNER / EMPLOYER RESPONSIBILITY
This is a vehicle lift installation/operation manual and no attempt is made or implied herein to instruct the user in lifting methods particular to an individual application. Rather, the contents of this manual are intended as a basis for operation and maintenance of the unit as it stands alone or as it is intended and anticipated to be used in conjunction with other equipment.
Proper application of the equipment described herein is limited to the parameters detailed in the specifications and the uses set forth in the descriptive passages. Any other proposed application of
this equipment should be documented and submitted in writing to the factory for examination. The user assumes full responsibility for any equipment damage, personal injury, or alteration of the
equipment described in this manual or any subsequent damages.
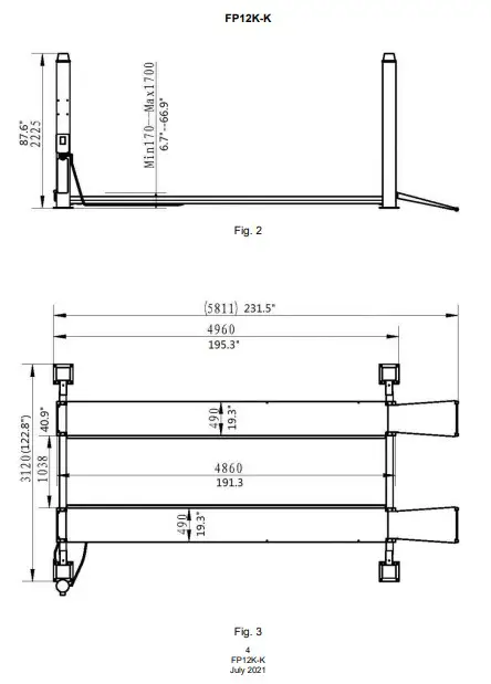
LIFT SPECIFICATIONS
| Lifting Capacity | 12,000 lbs. |
| Lifting Height | 67” |
| Overall Length w/ Ramps | 231.5” |
| Overall Length w/ no Ramps | 195.3” |
| Overall Width | 122.8” |
| Runway Width | 19.3” |
| Runway Length | 191.3” |
| Runway Height | 6.7” |
| Clearance between Columns | 104.7” |
| Clearance between Runways | 40.9” |
| Lifting Speed | 50S |
| Power | 220V-20 Amp / 1PH |
FLOOR PLAN LAYOUT


TOOLS REQUIRED
- Chalk line
- Hammer
- 4’ Level
- Crowbar
- Hex-Key / Allen Wrench Set
- Metric Wrenches and/or Socket Set
- Adjustable Wrench & Locking Pliers
- 25’ Tape Measure
- Step Ladder
- Phillips & Flat Screwdrivers
- Rotary Hammer Drill w/ 3/4″ Masonry Bit
- 3 Gallons of *Hydraulic Oil
- Recommended Oil: *Non-Detergent / Non-Foaming Hydraulic Oil – SAE-10, AW 32 or equivalent
SELECTING SITE
Before installing your new lift, check the following things.
OVERHEAD OBSTRUCTIONS:
The area where the lift will be located should be free of overhead obstructions such as heaters, building supports, electrical lines etc.
APPROCHING DIRECTION:
The main-side runway is always on the left of the approach direction. The motor pump column has the pump mounting position on the side.
Note: The motor pump column can only be located on the far end of the left side.
Fig. 4
FLOOR REQUIREMENTS:
Visually inspect the site where the lift is to be installed and check for cracked or defective concrete. This lift must be installed on a solid level concrete floor with no more than 2 degrees of slope. A level floor is suggested for proper installation and level lifting. If a floor is of questionable slope, consider a survey of the site and/or the possibility of pouring a new level concrete slab. This lift is designed to be installed on a minimum of 4-1/4” thick, 3000psi, with steel reinforced concrete. Do not install this lift on asphalt, wood, or any other surface other than described. This lift is only as strong as the foundation on which it is installed.
DO NOT install this lift outdoors unless special consideration has been made to protect the power unit from weather conditions. The Power unit is not waterproof!
DO NOT install lift close to wall. It is necessary to leave adequate clearance for safely walking. Suggested clearance to be 1 meter (3 feet) minimum to side wall and 1.6 meters (5 feet) in front.
OPERATING CONDITIONS: Lift is not intended for outdoor use and has an operating ambient temperature range of 41º-104ºF (5º-40ºC).
MAIN COMPONENTS IDENTIFICATION

OPTIONAL ACCESSORIES :
· RAJ-6K-L Rolling Scissor Air Jack, 6000 lbs. Cap. – Low Profile
STEP 1: (Installing the Columns to Crossbeams)
- Before proceeding, double check measurements and make certain that the bases of each column are square and aligned with the chalk line.
- Locate the columns at their respective locations according to the chalk line layout (Fig. 3). Pay attention to the power-side column. It has the pump mounting bracket. Also, note the hole positions on the column top (Fig. 5). DO NOT anchor down columns at this time. Use caution to prevent columns from falling
- Unbolt the safety rack at the bottom inside the column (Fig. 6).


- Insert the end of cross beam into every column (Fig. 7). Ensure that the end with lock release handle of front crossbeam is inside the motor pump column. Handle faces out to front. The rear crossbeam should be placed as a mirror image of the power-side one. (The side with a small bar-link ends face each other.)
- Insert the safety rack into the crossbeam end as shown in (Fig. 8).
- Hold down the safety rack, then raise up the all the crossbeam ends to rest on the first (lowest) position (Fig. 9).
- Tighten up the bolt of every safety rack at the bottom of each column. (Fig. 10)

- Connecting the long linkage rod of the manual safety lock release system between cross beams. (Figs. 11 & 12)
- Again, check the positions of the columns according to the drawings. The diagonal distance between the opposite, inside base plate corners of the columns should be within 1/4”. Equal values will ensure the runways will be in parallel and in square.
STEP 2: (Mounting Runways)
- Put the sub runway on the cross beams at the right Be sure that the jack rail for optional rolling jack is positioned to the inside of lift. (Fig. 13)


- Using bolts provided, bolt back-end of the sub runway to cross beam (Fig. 13). The other end remains free.
- Before locating the main-side runway on the crossbeams, pull out the steel cables from underneath and lay them over the pulleys (Fig. 14). Note: The shortest cable is for the power unit column & longest cable is for the opposite side

Note: If Cable(s) comes off the Cable Sheave, it will be required to remove the Cable Sheave assembly to reinstall the Cable, due to welded cable guide brackets. - Remove the stop plate and big pulley shaft on end of crossbeam (Fig. 15). Remove big pulley in order to let the steel cable’s threaded end route around pulley (Fig. 16). Then, reinstall big pulley and reattach the stop plate. Note: Ensure that the cable is properly routed to the inside of the small roller so that the ‘secondary’ Slack- Cable Latch is not engaged into safety ‘ladder’ rack. (Fig. 16)
- Tighten all the bolts on the runways with supplied bolts, nuts, and spring washes to the crossbeams.
- Bolt the threaded end of the cable to top of the column (Fig. 17). Do the same for other cables and column
STEP 3: (Mounting the Power Unit)
- Attach the power unit to the power unit column (w/ bracket) using bolts, nuts & washers supplied (Fig. 18).
- Fill the reservoir with *hydraulic oil. Note: Make sure the funnel used to fill is clean. Suggestion: *Use Non-Detergent / Non-Foaming Hydraulic Oil – SAE-10, AW 32 or equivalent.
- Install the 90 degree hydraulic fitting to the high pressure port on the pump block. Connect the oil hose from the main-side runway to the motor pump (Fig. 19).
- Have a certified electrician to run the 220V/60Hz single phase AC power supply to the motor. Be sure to size the wire for a 25 amp circuit.

STEP 4: (Routing the CABLES)
- Check again that all the cables are properly routed around the pulleys for both the columns and underneath the main-side runway.
- Ensuring the current of the power supply is enough for the power unit, press the start button on the motor to raise the runways a little. Note: Make sure the crossbeam’s safety latches are not engaged into the safety ‘ladder’ racks.
- Using a level, screwing up or down of the nut of the cable on the column top one by one to make the crossbeam level. (Fig. 20) Also ensure the runways are level front to back as well.
STEP 5: (Mounting Wheel Stops, Approach Ramps & Caps)
- Mount wheel stops to front of runways. (Fig. 21)
- Try several times to make sure the safety lock manual release handle is working normally by raising up the runway so that latch not engaged.
- Route & secure hydraulic hose underneath main-side runway.
- Mount on the approaching ramps. (Fig. 22)
- Place plastic column caps on top of columns. (Fig. 23)

STEP 6: (First Cycle Lift Test)
- Do not place any vehicle on the lift at this time!
- Cycle the lift up and down several times to make sure latches are in sync by clicking together, and to also ensure all air is removed from the hydraulic system.
- Ensure columns are at their proper locations and square.
- To lower the lift, remember to release the safety lock manually first and pressure releasing handle of the pump is pressed.
STEP 7: (Anchoring & Leveling Again)
NOTE: Also Refer to ‘FOUNDATION and ANCHORING REQUIREMENTS’ Next Page
- Using the base plate of the column as a guide, drill each anchor hole in the concrete approximately 5-1/2” deep using a rotary hammer drill and 3/4” concrete drill-bit. To assure full holding power, do not ream the hole or allow the drill to wobble. (Fig. 24)
- After drilling, remove dust thoroughly from each hole using compressed air and/or wire brush. Make certain that the column remains aligned with the column remains aligned with the chalk line during this process.
- Assemble the washers and nuts on the anchors then tap into each hole with a block of wood or rubber hammer until the washer rests against the base plate. Be sure that if shimming is required that enough threads are left exposed.
- Using a level, check column plumb for every side (Fig. 25). If shimming is required, use 3/4” washers or shim stock, placing shims as close as possible to the hole locations. This will prevent bending the column base plates.
- With the shims and anchor bolts in place, tighten by securing the nut to the base then turning 2-3 full turns clockwise. Note: DO NOT use an impact wrench for this procedure.

- Using the lever again, check the front & rear crossbeams (Fig. 20) while the safety lock latches engaged in rack. If needed, loosen the bottom bolt of the safety ‘ladder’ rack. Turn the hex nut on the top of the column (Fig. 26) to raise or lower end of the crossbeam. After leveling, tighten all bolts.
NOTE: Ensure to lubricate ALL Cable Sheaves, Bearings and Shafts with grease prior to operating Lift.
FOUNDATION and ANCHORING REQUIREMENTS
- Concrete shall have compression strength of at least 3,000 PSI and a minimum thickness of 4-1/4” in order to achieve a minimum anchor embedment of 3-1/4”. NOTE: When using the standard supplied 3/4” x 5-1/2” long anchors, if the top of the anchor exceeds 2-1/4” above the floor grade, you DO NOT have enough embedment.
- Maintain a 6” minimum distance from any slab edge or seam. Hole to hole spacing should be a minimum 6-1/2” in any direction. Hole depth should be a minimum of 4-1/4”.
- DO NOT install on asphalt or other similar unstable surface. Columns are supported only by anchoring to floor.
- Using the horseshoe shims provided, shim each column base as required until each column is plumb. If one column has to be elevated to match the plane of the other column, full size base shim plates should be used.
Torque anchors to 130 ft-lbs. Shim thickness MUST NOT exceed 1/2” when using the 5-1/2” long anchors provided with the lift. - If anchors do not tighten to 130 ft-lbs. installation torque, replace the concrete under each column base with a 2’ x 2’ x 6” thick 3,000 PSI minimum concrete pad keyed under and flush with the top of existing floor. Allow concrete to cure before installing lifts and anchors (typically 2 to 3 weeks)
ANCHORING TIPS
- Use a concrete hammer drill with a carbide tip, solid drill bit the same diameter as the anchor, 3/4” – (.775 to .787 inches diameter). Do not use excessively worn bits or bits which have been incorrectly sharpened.
- Keep the drill in a perpendicular line while drilling.
- Let the drill do the work. Do not apply excessive pressure. Lift the drill up and down occasionally to remove residue to reduce binding.
- Drill the hole to depth of 2” deeper than the length of anchor. NOTE: Drilling thru concrete (recommended) will allow the anchor to be driven thru the bottom of foundation if the threads are damaged or if the lift will need to be relocated.
- For better holding power blow dust from the hole.
- Place a flat washer and hex nut over threaded end of anchor, leaving the nut almost flush with the top of the anchor bolt. Carefully tap anchor into hole. Do not damage threads. Tap anchor into the concrete until nut and flat washer are against base plate. Do not use an impact wrench to tighten! Tighten the nut, two or three turns on average after the concrete has cured (28-day cure). If the concrete is very hard only one or two turns may be

SAVE THESE INSTRUCTIONS
SAFETY INSTRUCTIONS
When using your garage equipment, basic safety precautions should always be followed, including the following:
- Read all instructions
- Care must be taken as burns can occur from touching hot
- Do not operate equipment with a damaged cord or if the equipment has been dropped or damaged – until it has been examined by a qualified service
- Do not let a cord hang over the edge of the table, bench, or counter or come in contact with hot manifolds or moving fan
- If an extension cord is necessary, a cord with a current rating equal to or more than that of the equipment should be Cords rated for less current than the equipment may overheat.
- Always unplug equipment from electrical outlet when not in use. Never use the cord to pull the plug from the Grasp plug and pull to disconnect.
- Let equipment cool completely before putting Loop cord loosely around equipment when storing.
- To reduce the risk of fire, do not operate equipment in the vicinity of open containers of flammable liquids (gasoline).
- Adequate ventilation should be provided when working on operating internal combustion
- Keep hair, loose clothing, fingers, and all parts of body away from moving
- To reduce the risk of electric shock, do not use on wet surfaces or expose to
- Use only as described in this Use only manufacturer’s recommended attachments.
- ALWAYS WEAR SAFETY Everyday eyeglasses only have impact resistant lenses, they are not safety glasses.
SAFETY PROCEDURES
- Never allow unauthorized persons to operate lift. Thoroughly train new persons/employees in the use, operation, and care of
Ø CAUTION! Motor pump operates at high pressure.
- Remove passengers before raising
- Prohibit unauthorized persons from being in shop area while lift is in
- Total lift capacity is 12,000 (6,000 lbs. per axel). Do not exceed this capacity.
- Prior to lifting vehicle, walk around the lift and check for any objects that might interfere with the operation of lift and safety latches; tools, air hoses, shop
- When approaching the lift with a vehicle, make sure to center the vehicle between the Slowly drive the vehicle up with someone outside the vehicle guiding the driver.
- Prior to lowering vehicle, walk around the lift and check for any objects that might interfere with the operation of lift and safety latches; tools, air hoses, shop
- Slowly drive the vehicle on and off of the Have someone outside the vehicle guide the driver.
CAUTION!
LUBRICATE ALL CABLE SHEAVES, BEARINGS, AND SHAFTS WITH GREASE PRIOR TO OPERATING THE LIFT. LUBRICATE ALL ON AN ANNUAL BASIS.
Motors and all electrical components are not sealed against the weather and moisture. Install this lift in a protected indoor location. Failure by the owner to provide the recommended shelter could result in unsatisfactory lift performance, property damage, or personal injury.
OPERATION INSTRUCTIONS
NOTE: ALWAYS CHOCK WHEELS AND SET PARKING BRAKE BEFORE LIFTING VEHICLE!
Read Safety & Operating Instructions procedures in Manual completely before operating lift.
- Properly maintain and inspect lift in accordance with owner’s
- Do not operate a lift that is damaged or in need of
- Allow only authorized personnel in the lift bay.
- Stay clear of lift when raising or lowering (no riders).
- Keep hands and feet away from pinch points at all
- Never override the lift operating and safety
- If a vehicle is suspected of falling, clear area
- Do not rock vehicle while positioned on
- Always use safety jack stands when removing or installing heavy components.
Vehicle Loading:
- Position vehicle on lift runways by having another person guide you onto the runways. Check for proper weight distribution (center of gravity should be evenly distributed between columns).
- Set vehicle parking brake and chock tires to prevent vehicle
- Use caution before lifting pickup trucks, sport utility and other type vehicles. The individual axle weight capacity should not exceed 1/2 of lift’s
- Make sure vehicle is neither front nor rear
Raising Lift:
- Push up switch to raise lift until runways clear the
- Stop and check for vehicle movement and vehicle weight distribution. If secure, raise to desired
- Always lower the lift to the nearest lock position by pressing the lower lever to relieve the hydraulic pressure and let the latch set tight in a lock
- Never work under a lift that is not in the locked
Lowering Lift:
- Clear all obstacles from under lift and vehicle and ensure only lift operator is in the lift
- Stay clear of lift and raise the lift off the safety
- Pull Safety Latch Release handle and press the Power Unit’s Lower Lever to begin
- Ensure lift is fully lowered, and having another person guide you, carefully unload the lift by driving off of the lift
CAUTION!
PAY ATTENTION TO THE LOWERING SPEED OF ALL FOUR CORNERS. MAKE SURE THEY ARE MOVING DOWN AT THE SAME SPEED. STOP LOWERING THE LIFT BY RELEASING THE LOWERING LEVER ON THE POWER UNIT AND MOVING THE LOCK LEVER TO THE LOCK POSITION IF ANY CORNER STOPS MOVING OR IS SLOWER IN DESCENT. ALWAYS LOCK THE LIFT BEFORE GOING UNDER THE VEHICLE. NEVER ALLOW ANYONE TO GO UNDER THE LIFT WHEN RAISING OR LOWERING.
NOTE: It is normal for an empty lift to lower slowly – it may be necessary to add weight. Read and adhere to all WARNING, CAUTION and SAFETY INSTRUCTIONS labels on lift.
PREVENTIVE MAINTENANCE SCHEDULE
The periodic Preventive Maintenance Schedule given is the suggested minimum requirements & minimum intervals; accumulated hours or monthly period, whichever comes sooner.
Periodic maintenance is to be performed on a daily, weekly, and yearly basis as given in the following paragraphs.
Do not modify the lift in any manner without the prior written consent of the manufacturer.
WARNING!! Failure to perform the daily pre-operational check can result in expensive property damage, lost production time, serious personal injury, and even death. The safety latch system must be checked and working properly before the lift is put to use.
Failure to heed this warning can result in death or serious injury, or damage to equipment. If you hear a noise not associated with normal lift operation or if there are any indications of impending lift failure CEASE OPERATION IMMEDIATELY! Inspect, correct and/or replace parts as required.
Daily Pre-Operation Check (8-Hours)
- Check safety lock audibly and visually while in operation
- Check safety latches for free movement and full engagement with
- Check hydraulic connections, and hoses for
- Check cables connections bends, cracks-and for loose
- Check for frayed cables in both raised and lowered
- Check snap rings at all rollers and
- Check bolts, nuts, and screws and tighten if
- Check wiring & switches for
- Check floor for stress cracks near columns.
- Check Lubrications on cable sheaves and
Weekly Maintenance (every 40-Hours)
- Check anchor bolts torque to 130 ft-lbs. for the 3/4 in. anchor bolts. Do not use an impact wrench to tighten anchor
- Check floor for stress cracks near columns
- Check hydraulic oil
- Check and tighten bolts, nuts, and
- Check all cable sheaves/assembly for free movement or excessive wear on cable sheave
Yearly Maintenance
- Lubricate the cable sheave shafts at least once a year, after the lift is in
- Check for excessive wear of Replace them if necessary.
- Change the hydraulic fluid – operating temperature, type of service, contamination levels, filtration, and chemical composition of fluid should be considered. If operating in dusty environment shorter interval may be
TROUBLESHOOTING
The common problems that may be encountered and their probable causes are covered in the following paragraphs:
Ø Motor Does Not Operate:
- Breaker or fuse blown
- Faulty wiring connections
- Defective up button
WARNING!! Failure to properly relieve pressure in the following steps can cause injury to personnel.
Ø Motor Functions but Lift Will Not Rise:
- Power Unit is not priming (See Power Unit Prime Procedure on next page.)
- A piece of trash is under release ‘down’ valve. Push handle down and push the up button at the same Hold for 10-15 seconds. This should flush trash from valve.
- Remove the check valve cover and clean ball and
- Oil level too low. Oil level should be at the MAX fill line located on the reservoir tank when lift is fully Ensure to lower lift to relieve all hydraulic pressure and add oil as required.
Ø Oil Blows out Breather of Power Unit:
- Oil reservoir Relieve all pressure and siphon out hydraulic fluid until at a proper level.
- Lift lowered too quickly while under a heavy load. Lower the lift slowly under heavy loads.
Ø Motor Hums and Will Not Run:
- Lift Remove excessive weight from lift.
WARNING!! The voltages used in the lift can cause death or injury. In the following steps, make sure that a qualified electrician is used to perform maintenance.
- Faulty wiring
- Bad capacitor
- Low voltage
Ø Lift Jerks Going Up and Down:
- If the lift jerks while going up and down, it is usually a sign of air in the hydraulic system. Raise lift all the way to top and return to floor. Repeat 4-6 times, ensuring not overheat power unit.
Ø Oil Leaks:
- Power Unit: if the power unit leaks hydraulic oil around the tank-mounting flange check the oil level in the tank. The level should be two inches below the flange of the tank. A screwdriver can be used as a “dipstick”.
- Cylinder / Piston Rod: the rod seal of the cylinder is out. Rebuild or replace the
- Cylinder / Vent: the piston seal of the cylinder is Rebuild or replace the cylinder.
Ø Lift makes Excessive Noise / Vibrates:
- Cross beam ends are rubbing the columns. Readjustment
- Cylinder too tight, load lift half capacity and cycle up and down a few times to break in.
- May have excessive wear on cable sheaves or Replace them.
MOTOR PUMP PRIMING PROCEDURE
THE PROBLEM: motor runs fine but will not pump any fluid.
WARNING!! Failure to properly relieve pressure in the following steps can cause injury to personnel.
Step 1 – Locate the check valve, the flush plug to the left of the lowering valve.

Step 2 – Using an Allen wrench and shop towel – with shop towel in place to catch fluid – loosen the check valve plug 2 ½ turns to allow it to leak.
Step 3 – Push the START button for one second, then release for three seconds. Repeat these steps until unit starts pumping fluid.
Step 4 – Tighten the check valve plug.
YOUR POWER UNIT SHOULD BE PRIMED
LATCH & CABLE INSPECTION / ADJUSTMENTS
WARNING!! Failure to perform routine inspections can lead to reduced service life, which could result in property damage and/or personal injury. Check locking latches for proper operation. Inspect for worn or missing parts. Replace worn or damaged parts and adjust as required.
- Latch Mechanism Inspection
Latches and Latch Bar Alignment:
- Check for proper latch operation on all four
- Observe locking latches during lift operation to ensure that all latches line up with slots in latch bar located in all four If not, relocate and/or re-shim columns.
- Check slack cable devices for proper operation. Inspect for worn or missing parts. Replace worn or damaged parts as
- Observe both locking latches and slack cable devices during lift operation to ensure that all latches line up with slots in latch bar located in all four
Ø Leveling – Cable & Lock Ladder Adjustments
- Initial Adjustment
- Adjust cable with lift fully lowered. Loosen jam nut and tighten nut on cable stud on top of column until yoke end is raised 1/4” (6.4 mm) and back off nut one Retighten jam nut.
- Repeat for all four
- Final Adjustment
- Load a typical vehicle on
- Raise lift as high as it will travel (full height). You should hear the locking latches click through all latch slots
- Lower lift onto top latch
- Check clearance, starting with the right front column, use a straight edge to mark the position of the yoke bottom on the
- Raise lift to full height again. Mark second position. If gap between two marks is less than 2”, adjust locking latch bar to reach clearance of 2”. Repeat for the other three
- Adjust locking latch bar adjusting nut so that the bottom of the topmost latch bar slot is at least 2” below locking After adjustment, tighten jam nut underneath column top plate,
- If entire 2” clearance cannot be attained by adjusting the locking latch bar, adjust the cable. Turn cable adjusting nut to raise the locking latch 2” above bottom of latch bar slot. Tighten cable jam nut.
- Lower lift and remove
- Raise the lift to full height. LISTEN and WATCH as the first locking latch clicks into place. Synchronize the other three columns with this column by adjusting their cables so all four latches click at same Tighten jam nuts.\
NOTE: When making changes to adjustment nuts on cable end or latch bar stud, always leave at least two threads showing between nut and stud end. Latches may not click in at the same time when vehicle is being raised but should be close. Be sure all four corners have passed the locking latch bar slot before lowering lift on locking latches.



PARTS LIST
| ITEM | Tux P/N | M-Ref P/N | DESCRIPTION | QTY |
| 1 | FP12K-K-001 | SGM-801-01A-00 | Main Column w/ Bracket | 1 |
| 2 | FP12K-K-002 | SGM-801-01BC-00 | Sub Column A | 2 |
| 3 | FP12K-K-003 | SGM-801-01D-00 | Sub Column B | 1 |
| 4 | FP12K-K-004 | SGM-803-01A-00 (SGM-8041) | Mainside Runway | 1 |
| 5 | FP12K-K-005 | SGM-803-01A-00 (SGM-8041) | Sub Runway | 1 |
| 6 | FP12K-K-006 | SGM-803-02-00 | Ramp | 2 |
| 7 | FP12K-K-007 | SGM-803-03 | Ramp Wheel | 4 |
| 8 | FP12K-K-008 | GB894.1-86 | Circlips, D20 | 4 |
| 9 | FP12K-K-009 | SGM-802-07 | Ramp Shaft | 2 |
| 10 | FP12K-K-010 | GB894.1-86 D18 | Circlips | 4 |
| 11 | FP12K-K-011 | GB5781-86 | Bolt, M10x35 | 12 |
| 12 | FP12K-K-012 | GB41-86 | Nut, M10 | 12 |
| 13 | FP12K-K-013 | GB95-85 | Flat Washer, D10 | 12 |
| 14 | FP12K-K-014 | GB70-85 | Socket Screw, M10x20 | 4 |
| 15 | FP12K-K-015 | GB95-85 | Flat Washer, D10 | 4 |
| 16 | FP12K-K-016 | Anchor Bolt, 3/4”x5.5” | 16 | |
| 17 | FP12K-K-017 | GB95-85 | Flat Washer, D20 | 4 |
| 18 | FP12K-K-018 | GB41-86 | Nut, M20 | 8 |
| 19 | FP12K-K-019 | TT5.5F4-100-05 | Plastic Column Cap | 4 |
| 20 | FP12K-K-020 | SGM-801-02-00 | Lock Ladder | 4 |
| 21 | FP12K-K-021 | 8045-400G | Throttle Valve Fitting | 1 |
| 22 | FP12K-K-022 | 8045-401G | Cylinder Connector | 1 |
| 23 | FP12K-K-023 | Combined Seal, D14 | 1 | |
| 24 | FP12K-K-024 | SGM-805-21 | Hydraulic Hose – 136”L | 1 |
| 25 | FP12K-K-025 | TPF4-500-05 | Elbow Fitting | 1 |
| 26 | FP12K-K-026 | TPF4-500-07 | Fitting, Power Unit | 1 |
| 28 | FP12K-K-028 | GB5781-86 | Bolt, M8x25 | 4 |
| 29 | FP12K-K-029 | GB41-86 | Nut, M8 | 4 |
| 30 | FP12K-K-030 | GB95-85 | Flat Washer, D8 | 4 |
| 31 | FP12K-K-031 | GB93-87 | Spring Washer | 4 |
| 32 | FP12K-K-032 | PU-220V-L-H-X | Power Unit | 1 |
| 33 | FP12K-K-033 | TT5.5F4-600-02 | Front Wheel Stop | 2 |
| 34 | FP12K-K-034 | GB5780-86 | Bolt, M10x20 | 4 |
| 35 | FP12K-K-035 | SGM-802-09 | Crossbeam Cover | 4 |
| 36 | FP12K-K-036 | GB818-85 | Screw, M6x10 | 4 |
| 37 | FP12K-K-037 | GB95-85 | Flat Washer, D6 | 4 |
| 38 | FP12K-K-038 | Round Knob | 1 | |
| 39 | FP12K-K-039 | SGM-804-08 | Safety Release Handle | 1 |
| 40 | FP12K-K-040 | GB818-85 | Screw, M6x12 | 12 |
| 41 | FP12K-K-041 | GB93-87 | Spring Washer, D6 | 12 |
| 42 | FP12K-K-042 | GB823-88 | Screw, M6x12 | 8 |
| 43 | FP12K-K-043 | GB823-88 | Screw, M6x35 | 8 |
| 44 | FP12K-K-044 | GB70-85 | Socket Screw, M6x25 | 4 |
| 45 | FP12K-K-045 | GB93-87 | Spring Washer, D6 | 8 |
| 46 | FP12K-K-046 | GB119-86 | Cotter Pin, D4 | 4 |
| 47 | FP12K-K-047 | SGM-804-01-00 | Long Rod | 1 |
| 48 | FP12K-K-048 | GB70-85 | Socket Screw, M6x20 | 4 |
| 49 | FP12K-K-049 | SGM-804-11 | Connecting Rod | 1 |
| 50 | FP12K-K-050 | SGM-804-09 | Connecting Block | 2 |
| 51 | FP12K-K-051 | SGM-804-10 | Connecting Block 1 | 2 |
| 52 | FP12K-K-052 | SGM-802-08 | Fixing Plate | 6 |
| 53 | FP12K-K-053 | SGM-802-07 | Sliding Block | 8 |
| 54 | FP12K-K-054 | SGM-802-02 | Axle 1 | 8 |
| 55 | FP12K-K-055 | GB894.1-86 | Circlips, D20 | 16 |
| 56 | FP12K-K-056 | SGM-802-03 | Axle 2 | 4 |
| 57 | FP12K-K-057 | GB894.1-86 | Circlips, D24 | 8 |
| 58 | FP12K-K-058 | SGM-802-04 | Crossbeam, Wheel Shaft | 4 |
| 59 | FP12K-K-059 | TT5.5F4-200-01-10 | Spacer 2 | 4 |
| 60 | FP12K-K-060 | TT5.5F4-200-01-07 | Spacer 1 (Thick) | 4 |
| 61 | FP12K-K-061 | SGM-802-10 | Wheel Shaft 3 | 4 |
| 61.1 | FP12K-K-061.1 | GB894.1-86 | Circlips, D16 | 8 |
| 62 | FP12K-K-062 | SGM-804-12-00 | Threaded Pull Rod 1 | 2 |
| 63 | FP12K-K-063 | SGM-804-06B-00 | Lock Block 2 | 2 |
| 64 | FP12K-K-064 | SGM-804-07 | Pull Bar | 4 |
| 65 | FP12K-K-065 | GB41-86 | Nut, M5 | 8 |
| 66 | FP12K-K-066 | SGM-804-02B-00 | Cable Lock Block 2 | 2 |
| 67 | FP12K-K-067 | SGM-804-13-00 | Short Rod 1 | 2 |
| 68 | FP12K-K-068 | SGM-804-06A-00 | Lock Block 1 | 2 |
| 69 | FP12K-K-069 | GB/T2089-94 | Spring, D1.8xD14x65 | 8 |
| 70 | FP12K-K-070 | GB95-85 | Flat Washer, D8 | 8 |
| 70.1 | FP12K-K-070.1 | GB41-86 | Nut, M8 | 16 |
| 71 | FP12K-K-071 | SGM-804-04 | Pull Rod & Spring | 8 |
| 72 | FP12K-K-072 | GB91-86 | Split Pin, D2.5×20 | 8 |
| 73 | FP12K-K-073 | SGM-804-02A-00 | Cable Lock Block 1 | 2 |
| 74 | FP12K-K-074 | TT5.5F4-200-01-19 | Slack Cable Wheel | 4 |
| 75 | FP12K-K-075 | GB894.1-86 | Circlips, D16 | 8 |
| 75.1 | FP12K-K-075.1 | SGM-802-01A-00 | Crossbeam 1 (Front) | 1 |
| 75.2 | FP12K-K-075.2 | SGM-802-01B-00 | Crossbeam 2 (Rear) | 1 |
| 76 | FP12K-K-076 | SGM-805-18 | Runway Slack Cable Bolt | 4 |
| 77.1 | FP12K-K-077.1 | SGM-805-07-01 | Runway Pulley Shaft – Short | 1 |
| 77.2 | FP12K-K-077.2 | SGM-805-07-02 | Runway Pulley Shaft – Long | 1 |
| 77.3 | FP12K-K-077.3 | Grease Zerk | 6 | |
| 78 | FP12K-K-078 | GB41-86 | Nut, M12 | 2 |
| 79 | FP12K-K-079 | SGM-803-A | Cylinder Clamp | 1 |
| 80 | FP12K-K-080 | GB41-86 | Nut, M6 | 2 |
| 81 | FP12K-K-081 | SGM-803-04 | Hook Screw, D6 | 1 |
| 82 | FP12K-K-082 | GB818-85 | Screw, M6x12 | 3 |
| 83 | FP12K-K-083 | GB96-85 | Washer, D6 | 3 |
| 84 | FP12K-K-084 | SGM-803-15 | Hose Fixing Plate | 3 |
| 85 | FP12K-K-085 | SGM-805-19 | Steel Cable – 45.34’ | 2 |
| 86 | FP12K-K-085 | TT5.5F4-200-01-08 | Cable Pulley A | 6 |
| 87 | FP12K-K-087 | FB090 3030 | Bushing A | 6 |
| 88 | FP12K-K-088 | TT5.5F4-300-15 | Cable Pulley B | 2 |
| 89 | FP12K-K-089 | FB090 3021 | Bushing B | 2 |
| 90 | FP12K-K-090 | TT5.5F4-300-16 | Cable Pulley C | 1 |
| 90.1 | FP12K-K-090.1 | FB090 3034 | Bushing C | 1 |
| 91 | FP12K-K-091 | GB6170-86 | Nut, M27 | 1 |
| 92 | FP12K-K-092 | GB95-85 | Flat Washer, D30 | 1 |
| 93 | FP12K-K-093 | GB91-86 | Split Pin, D4x45 | 1 |
| 94 | FP12K-K-094 | SGM-805-05-00 | Cable Block | 1 |
| 95 | FP12K-K-095 | SGM-805-13 | Cable Retainer Plate 2 | 1 |
| 96 | FP12K-K-096 | SGM-805-12 | Cable Retainer Plate 1 | 1 |
| 97 | FP12K-K-097 | GB70-85 | Socket Screw, M8x60 | 10 |
| 98 | FP12K-K-098 | GB95-85 | Flat Washer, D8 | 10 |
| 99 | FP12K-K-099 | GB93-87 | Spring Washer, D8 | 10 |
| 100 | FP12K-K-100 | SGM-805-14 | Cable Retainer Plate 3 | 1 |
| 101 | FP12K-K-101 | SGM-805-15 | Cable Retainer Plate 4 | 1 |
| 102 | FP12K-K-102 | Hydraulic Cylinder | 1 | |
| 103 | FP12K-K-103 | SGM-805-11 | Cable Pulley Spacer | 1 |
| 104 | FP12K-K-104 | SGM-803-B | Nylon Sliding Block | 2 |
| 105 | FP12K-K-105 | GB70-85 M8X30 | Allen Screw, M8x30 | 2 |
| 106 | FP12K-K-106 | GB95-85 | Flat Washer, D20 | 4 |
| 107 | FP12K-K-107 | GB6170-86 | Nut, M20 | 8 |
LIMITED WARRANTY
Structural Warranty:
The following parts and structural components carry a five year warranty:
| Columns | Arms | Uprights | Swivel Pins |
| Legs | Carriages | Overhead Beam | |
| Tracks | Cross Rails | Top Rail Beam |
Limited One-Year Warranty:
Tuxedo Distributors, LLC (Tuxedo) offers a limited one-year warranty to the original purchaser of Lifts and Wheel Service equipment in the United States and Canada. Tuxedo will replace, without charge, any part found defective in materials or workmanship under normal use, for a period of one year after purchase. The purchaser is responsible for all shipping charges. This warranty does not apply to equipment that has been improperly installed or altered or that has not been operated or maintained according to specifications.
Other Limitations:
This warranty does not cover:
- Parts needed for normal maintenance
- Wear parts, including but not limited to cables, slider blocks, chains, rubber pads and pulleys
- Replacement of lift and tire changer cylinders after the first 30 A seal kit and installation instructions will be sent for repairs thereafter.
- On-site labor
Upon receipt, the customer must visually inspect the equipment for any potential freight damage before signing clear on the shipping receipt. Freight damage is not considered a warranty issue and therefore must be noted for any potential recovery with the shipping company.
The customer is required to notify Tuxedo of any missing parts within 72 hours. Timely notification must be received to be covered under warranty.
Tuxedo will replace any defective part under warranty at no charge as soon as such parts become available from the manufacturer. No guarantee is given as to the immediate availability of replacement parts.
Tuxedo reserves the right to make improvements and/or design changes to its lifts without any obligation to previously sold, assembled or fabricated equipment.
There is no other express warranty on the Tuxedo lifts and this warranty is exclusive of and in lieu of all other warranties, expressed or implied, including all warranties of merchantability and fitness for a particular purpose.
To the fullest extent allowed by law, Tuxedo shall not be liable for loss of use, cost of cover, lost profits, inconvenience, lost time, commercial loss or other incidental or consequential damages.
This Limited Warranty is granted to the original purchaser only and is not transferable or assignable.
Some states do not allow exclusion or limitation of consequential damages or how long an implied warranty lasts, so the above limitations and exclusions may not apply. This warranty gives you specific legal rights and you may have other rights, which may vary from state to state.
8320 E Hwy 67, Alvarado, TX 76009
Ph. 817-558-9337 / Fax 817-558-9740




























