![]()
PRODUCT SPECIFICATIONS _WRITTEN
Product Name: multiLift2 Aquatic Lift
Part Number: 580-0000, 580-0000-ST and 580-0000-TP
General Notes:
It shall be battery powered, comply with Americans with Disabilities Act Access Guidelines (ADAAG), and have a lifting capacity of 350 pounds. The multiLift2 is capable of controlled linear actuation into the pool providing steady speed, support and clearance to the user. Symmetrical design in the multiLift2 allows customers to install with a right or left facing chair to accommodate multiple pool geometries. Product shall include battery, charger, battery console cover, waterproof control, armrests, footrest and
seatbelt assembly.
Application:
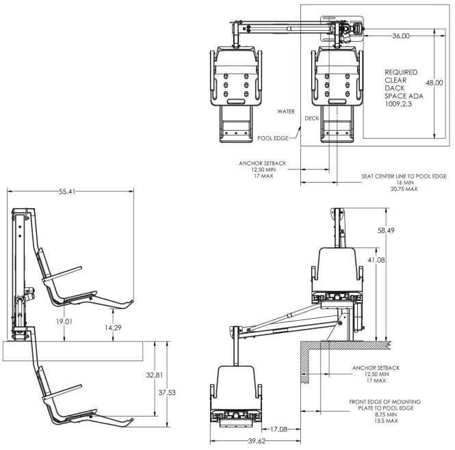
Manufacturer to provide technical support and assistance to confirm pool lift satisfies pool geometry or if another lift model is more appropriate. The lift is configured to facilitate ease in user transfer within clear deck space of 36 inches wide by 48 inches deep starting 12 inches from the from the back end of the seat (Ref. ADAAG).
Seat Loading Position: 16”-19” measured from the deck to the top of the seat surface when the seat is in the raised position.
Submerged Seat Position: The top surface of the seat will submerge a minimum of 18” below the surface of the water, at a deck to water level of 14” maximum.
Specifications:
Actuator: Have a LINAK (approved for medical applications) screw/spline type actuator.
Seat Assembly: The multiLift2 has a seat width of 23 inches (ADAAG requires 16 inches minimum), and a back that extends 24 inches high (ADAAG requires 12 inches minimum).
Structural: Be structurally capable of providing a stable user transfer and pass a static load test equal to 1.5 times the rated load capacity. Metallic Parts: All metallic parts (stainless steel and aluminum) are to be passivated, pretreated, and powder coated using a 5step process. The process is to be validated by samples undergoing a 4,000 hr Salt Fog Test (ASTM D1654), by a recognized independent laboratory, and achieve a rating of 10 (highest possible rating). (Note: The test is the equivalent of 10 years exposure to this harsh environment.)
Manufacturer’s Warranty: For current warranty information go to www.srsmith.com
Optional equipment:
| Part # | Description |
| 970-5000 | Seat Saver Cover |
| 500-5000A | New Construction Anchor Kit |
| 500-5800T | multiLift2 Deck Cover, Tan |
| 500-5800S | muitiLift2 Deck Cover, Slate |
Shipping weight:150 LBS.
| Specification Number: | SRS-1213 | |
| Product Description: | multiLift2 Aquatic Lift | |
| S.R. Smith Part Number: | 580-0000 | |
| Revision: | A | Date: 2/7/2022 |
| Written By: | WJS | Date: 2/7/2022 |
| Approved By: | WJS | Date: 2/7/2022 |
| Page 1 of 2 | Proprietary and confidential: The information contained in this specification is the sole property of S.R. Smith LLC. Any reproduction in part or whole without the written consent of S.R. Smith LLC is prohibited. | |

S.R. Smith
P.O. Box 400, 1017 SW Berg Parkway Canby, Oregon 97013
Tel: (800) 824-4387 (503) 266-2231
Fax: (503) 166-4334
www.srsmith.com

















