BLAUBERG Ventilation KOMFORT EC DBE 300 Heat and Energy Recovery Air Handling Unit

SAFETY REQUIREMENTS
All user’s manual requirements as well as the provisions of all the applicable local and national construction, electrical, and technical norms and standards must be observed when installing and operating the unit. Disconnect the unit from the power supply prior to any connection, servicing, maintenance, and repair operations.
Only qualified electricians with a work permit for electrical units up to 1000 V are allowed for installation. The present user’s manual should be carefully read before beginning works.
Check the unit for any visible damage of the impeller, the casing, and the grille before starting installation. The casing internals must be free of any foreign objects that can damage the impeller blades.
While mounting the unit, avoid compression of the casing! Deformation of the casing may result in motor jam and excessive noise.
Misuse of the unit and any unauthorized modifications are not allowed.
Do not expose the unit to adverse atmospheric agents (rain, sun, etc.).
Transported air must not contain any dust or other solid impurities, sticky substances, or fibrous materials.
Do not use the unit in a hazardous or explosive environment containing spirits, gasoline, insecticides, etc.
Do not close or block the intake or extract vents in order to ensure the efficient air flow.
Do not sit on the unit and do not put objects on it.
The information in this user’s manual was correct at the time of the document’s preparation.
The Company reserves the right to modify the technical characteristics, design, or configuration of its products at any time in order to incorporate the latest technological developments.
Never touch the unit with wet or damp hands.
Never touch the unit when barefoot.
This unit is not intended for use by persons (including children) with reduced physical, sensory or mental capabilities, or lack of experience and knowledge, unless they have been given supervision or instruction concerning use of the unit by a person responsible for their safety. Children should be supervised to ensure that they do not play with the unit. Connection to the mains must be made through a disconnecting device, which is integrated into the fixed wiring system in accordance with the wiring rules for design of electrical units, and has a contact separation in all poles that allows for full disconnection under overvoltage category III conditions.
If the supply cord is damaged, it must be replaced by the manufacturer, its service agent, or similarly qualified persons in order to avoid a safety hazard.
CAUTION: In order to avoid a safety hazard due to inadvertent resetting of the thermal cutout, this unit must not be supplied through an external switching device, such as a timer, or connected to a circuit that is regularly switched on and off by the utility.
Ensure that the unit is switched off from the supply mains before removing the guard.
WARNING: If there are any unusual oscillating movements, immediately stop using the unit and contact the manufacturer, its service agent or suitably qualified persons. The replacement of parts of the safety suspension system device shall be performed by the manufacturer, its service agent or suitably qualified persons.
Fixing means for attachment to the ceiling such as hooks or other devices shall be fixed with a
sufficient strength to withstand 4 times the weight of the appliance. The mounting of the suspension system shall be performed by the manufacturer, its service agent or suitably qualified persons.
The appliance is to be installed so that the blades are more than 2.3m above the floor. Precautions must be taken to avoid the back-flow of gases into the room from the open flue of gas or other fuel-burning appliances.
![]() | THE PRODUCT MUST BE DISPOSED SEPARATELY AT THE END OF ITS SERVICE LIFE. DO NOT DISPOSE THE UNIT AS UNSORTED DOMESTIC WASTE. |
PURPOSE
The unit is designed to ensure continuous mechanical air exchange in houses, offices, hotels, cafes, conference halls, and other utility and public spaces as well as to recover the heat energy contained in the air extracted from the premises to warm up the filtered stream of intake air.
The unit is not intended for organizing ventilation in swimming pools, saunas, greenhouses, summer gardens, and other spaces with high humidity.
Due to the ability to save heating energy by means of energy recovery, the unit is an important element of energy-efficient premises.
The unit is a component part and is not designed for stand-alone operation. It is rated for continuous operation.
Transported air must not contain any flammable or explosive mixtures, evaporation of chemicals, sticky substances, fibrous materials, coarse dust, soot and oil particles or environments favourable for the formation of hazardous substances (toxic substances, dust, pathogenic germs).
![]() | THE UNIT SHOULD NOT BE OPERATED BY CHILDREN OR PERSONS WITH REDUCED PHYSICAL, MENTAL, OR SENSORY CAPACITIES, OR THOSE WITHOUT THE APPROPRIATE TRAINING. THE UNIT MUST BE INSTALLED AND CONNECTED ONLY BY PROPERLY QUALIFIED PERSONNEL AFTER THE APPROPRIATE BRIEFING. THE CHOICE OF UNIT INSTALLATION LOCATION MUST PREVENT UNAUTHORISED ACCESS BY UNATTENDED CHILDREN. |
DELIVERY SET
| Name | Number |
| Unit | 1 pc. |
| User’s manual | 1 pc. |
| Packing box | 1 pc. |
DESIGNATION KEY

TECHNICAL DATA
The unit is designed for indoor application with the ambient temperature ranging from +1 °C up to +40 °C and relative humidity up to 60 % without condensation. In cold, damp rooms, there is a possibility of freezing or condensation inside and outside the casing. In order to prevent condensation on the internal walls of the unit, it is necessary that the surface temperature of the casing is 2-3 °C above the dew point temperature of the transported air.
The unit should be operated continuously, and in cases where ventilation is not necessary, reduce the air flow of the fans to a minimum (20%). This will ensure a favorable indoor climate and reduce the amount of condensation inside the unit, which can damage electronic components. Never use the unit for dehumidification, for example, of new buildings.
The unit is rated as a Class I electrical appliance.
Hazardous parts access and water ingress protection rating:
IP22 for the unit connected to the air ducts
IP44 for the unit motors
The unit design is constantly being improved, thus some models may be slightly different from those described in this manual.
TECHNICAL DATA
| MODEL | KOMFORT EC DBE 300/300-E | KOMFORT EC DBE 550/550-E | KOMFORT EC DBE 900/900-E |
| Voltage [V/50 (60) Hz] | 1~ 230 | ||
| Maximum fan power [W] | 180 | 297 | 442 |
| Power of the integrated electric heater [W] | 1500 | 2000 | 3300 |
| Maximum air flow [W] | 1680 | 2297 | 3742 |
| Maximum unit current without a heater [A] | 1,4 | 2,4 | 3,1 |
| Current of the integrated electric heater [A] | 6,5 | 8,7 | 14,3 |
| Maximum current of the unit with an electric heater [A] | 7,9 | 11,1 | 17,4 |
| Air flow [m3/h] | 340 | 620 | 1030 |
| Rotation speed [min-1] | 3270 | 3100 | 2720 |
| Noise level, 3 m [dBA] | 27 | 30 | 33 |
| Transported air temperature [°C] | -25…+40 | ||
| Casing material | Aluzinc | ||
| Insulation, mineral wool [mm] | 20 | ||
| Filtering class of the extract filter | G4 | ||
| Filtering class of the supply filter | G4 (optional – F7) | ||
| Connecting air duct diameter [mm] | 160 | 200 | 250 |
| Weight [kg] | 44 | 67 | 111 |
| Heat recovery efficiency [%] | 72…90/69…87 | 78…90/69…87 | 75…88/69…85 |
| Heat exchanger type | Counter-flow | ||
| Heat exchanger material | Polystyrene/Enthalpy | ||
| SEC class | A | A | A |
- Energy recovery units are equipped with an enthalpy heat exchanger, which does not require condensate drainage.
KOMFORT EC DBE 300

KOMFORT EC DBE 550

KOMFORT EC DBE 900

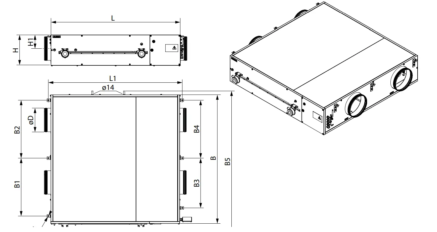
Dimensions [mm]
| Model | Ø D | В | В1 | В2 | ВЗ | В4 | В5 | H | H1 | L | L1 | Ø d |
| KOMFORT EC DBE 300 | 160 | 485 | 415 | 555 | 135 | 214 | 577 | 281 | 129 | 1238 | 1290 | 9 |
| KOMFORT EC DBE 550 | 200 | 827 | 622 | 713 | 188 | 345 | 960 | 280 | 120 | 1238 | 1290 | 9 |
| KOMFORT EC DBE 900 | 250 | 1351 | 607 | 607 | 522 | 607 | 1483 | 318 | 143 | 1349 | 1402 | 9 |
Dimensions [mm]
The unit operates as follows:
Warm stale extract air from the room flows through the air ducts to the unit, where it is filtered, then air flows through the heat exchanger and is exhausted outside by the extract fan through the air ducts.
Clean cold air from outside is moved by the supply fan to the unit, where from it is directed to the supply filter. Then filtered air flows
through the heat exchanger and moves to the room through the air ducts.
Heat energy of warm extract air is transferred to clean intake fresh air from outside and warms it up.
Heat recovery minimizes thermal energy losses, energy demand and operating costs for air heating accordingly.
The unit is equipped with a detachable service panel for repair works and preventive maintenance and a cover enabling access to the control system components.
OPERATING LOGIC

The unit comprises a supply and an extract centrifugal single-inlet fan with forward curved blades and maintenance-free EC motors with external rotor and built-in overheat protection, a plate counter-flow heat exchanger and an electric heater.
The supply G4 filter cleans supply air flow and prevents contamination of the unit parts.
The extract G4 filter prevents contamination of the unit components.
Some condensate may be generated during heat recovery.
The condensed fluid is collected in the drain pan and is removed from the unit through the drain hoses.
UNIT DESIGN

MOUNTING AND SET-UP
While mounting the unit provide enough space for its servicing and maintenance.

| Type | KOMFORT EC DBE 300 | KOMFORT EC DBE 550 | KOMFORT EC DBE 900 |
| min A [mm] | 500 | 850 | 800 |
UNIT MOUNTING
The unit is designed for suspended mounting by means of the threaded rod fixed in the threaded dowel.

To attain the best performance of the unit and to minimize turbulence-induced air pressure losses, while mounting connect a straight air duct section on both sides of the unit.
Minimum straight air duct length:
- equal to 1 air duct diameter on intake side.
- equal to 3 air duct diameters on outlet side.
the spigots with a protecting grille or other protecting device with mesh width not more than 12.5 mm to prevent uncontrollable access to the fans.
![]() | READ THE USER’S MANUAL BEFORE INSTALLING THE UNIT. |
The unit is available with the service side located on the left and on the right of the unit to facilitate mounting and provide minimum service access.

Safety precautions
The unit is designed for mounting on a rigid and stable structure.
The unit is mounted with anchor bolts. Make sure that a mounting construction has sufficient load capacity matching the unit weight. Otherwise reinforce the installation place by beams, etc. If the threaded bolts used for the unit mounting are too short, the unit can generate abnormal noise and resonate with the ceiling. The suspended bolts must be long enough to prevent resonating. If the unit connection place to the spiral seam duct is supposed to be the source of abnormal noise, replace the spiral seam air duct with the flexible one. Optionally the flexible connectors may be used to prevent resonating.
CONDENSATE DRAINAGE
The condensate drain pan in the heat recovery section is equipped with two hoses for extracting the condensed fluid outside the unit. Connect the pipe, U-trap (not included in the delivery set) and sewage collection system with metal, plastic or rubber connecting pipes. The pipe slope downwards must be at least 3°. Fill up the system with water before connecting the unit to power mains!
The U-trap must always be filled with water during the unit operation. Make sure that the water flows freely into the sewage collection system or otherwise condensed water may build up in the unit during the heat exchanger operation and cause equipment failure and condensed water outflow into the premises. The condensate drainage system is designed for normal operation in premises with air temperatures above 0 °C. If the expected ambient air temperatures are below 0 °C, the condensate drainage system must be equipped with heat insulation and pre-heating facilities.
For models with energy recovery, no condensate drainage is required as they are equipped with an enthalpy heat exchanger.

CONNECTION TO POWER MAINS
![]() | DISCONNECT THE UNIT FROM POWER MAINS PRIOR TO ANY OPERATIONS. THE UNIT MUST BE CONNECTED TO POWER MAINS BY A QUALIFIED ELECTRICIAN. THE RATED ELECTRICAL PARAMETERS OF THE UNIT ARE GIVEN ON THE MANUFACTURER’S LABEL. |
![]() | ANY TAMPERING WITH THE INTERNAL CONNECTIONS IS PROHIBITED AND WILL VOID THE WARRANTY. |
The unit is rated for connection to single-phase AC 230 V/50 (60) Hz power mains. For electric installations use insulated durable heat resistant conductors (cables, wires) with the minimum wire cross section 2.5 mm2.
The above conductor cross section value is tentative and in practice must be based on the wire type, maximum permissible heating temperature, insulation, length and installation method.
Connect the unit to power mains through the external automatic circuit breaker with magnetic trip integrated into the fixed wiring system with the rated current not below the rated current consumption.
The terminal block with the prewired control unit is located inside the control unit compartment.
To connect the power and the ground cable, route the cables through the airtight electric lead-in in the unit casing and connect these to the terminal block. The wiring diagram for connection of the air handling unit to power supply is on the back side of the lid.
S21 EXTERNAL WIRING DIAGRAM

| Design | Name | Type | Wire*** | Note |
| SМ1* | Supply air damper actuator | NO | 2 x 0.75 mm2 | 3 A, 30VDC/~250 AC |
| SМ2 * | Extract air damper actuator | NO | 2 x 0.75 mm2 | 3 A, 30VDC/~250 AC |
| РК1* | Contact from fire alarm panel | NC | 2 x 0.75 mm2 | remove jumper |
| CCU* | Cooler control | NO | 2 x 0.75 mm2 | 3 A, 30VDC/~250 AC |
| Р1* | External control panel | 4 x 0.25 mm2 | ||
| Boost* | Boost mode On/Off contacts | NO | 2 x 0.75 mm2 | |
| CO2* | External CO2 sensor | 3 x 0.25 mm2 |
- Is not included in the delivery set.
- The supply voltage U of the SM1, SM2 external dampers is selected depending on the type of dampers.
- Maximum connecting cable length is 20 m.
Output parameters: terminals 12-17 – 3 A, 30VDC/~250VAC (“dry contact”).
— ELECTRIC SHOCK HAZARD!
TECHNICAL MAINTENANCE
![]() | DISCONNECT THE UNIT FROM POWER SUPPLY BEFORE ANY MAINTENANCE OPERATIONS! MAKE SURE THE UNIT IS DISCONNECTED FROM POWER MAINS BEFORE REMOVING THE PROTECTION |
The recommended maintenance periodicity is 3-4 times per year.
The maintenance and servicing routines include regular cleaning and the following operations:
- Filter maintenance (3-4 times per year).
Dirty filters increase air resistance in the system and reduce supply air volume. Clean the filters as these get dirty, but at least 3-4 times a year. The filter can be cleaned with a vacuum cleaner or replaced with a new one. New filters can be purchased from the unit seller.
- Heat exchanger maintenance (once a year).
Even regular filter technical maintenance may not completely prevent dirt accumulation on the heat exchanger.
To maintain high heat recovery efficiency, regular cleaning is required. To clean the heat exchanger, remove it from the unit and clean it with compressed air or a vacuum cleaner. In case of heavy soiling, the heat exchanger can be washed with water. Then install the heat exchanger back to the unit.
- Fan inspection (once a year).
Even regular technical maintenance of the filters and the heat exchanger may not completely prevent dust accumulation in the fans which reduces the fan capacity and impairs supply air volume into the premises. The fans must be cleaned by a service technician. - Condensate drain maintenance (4 times a year).
The drain pipes may get clogged with the extracted particles. Pour some water inside the drain pan and check the pipe for clogging. Clean the U-trap and drain pipe if required. - Air intake maintenance (twice a year).
Leaves and other pollutions can clog the supply air grille and reduce the unit performance and supply air volume. Check the supply grille twice per year and clean it as required. - Duct system maintenance (every 5 years).
Even regular fulfilling of all the prescribed above maintenance operations may not completely prevent dust accumulation in the air ducts which reduces the air quality and the unit performance. The air duct maintenance includes regular cleaning or replacement.
TROUBLESHOOTING
![]() | IF UNIDENTIFIED NOISES OR ODOURS SHOULD ARISE AND IN CASE OF DEFORMATION OF ELEMENTS, VIBRATION, TERMINATION OF AIR SUPPLY/EXTRACTION OR REDUCED SYSTEM PERFORMANCE, IMMEDIATELY DISCONNECT THE UNIT FROM POWER SUPPLY AND CONTACT THE SELLER FOR THE VENTILATION SYSTEM DIAGNOSTICS DIAGNOSTICS MUST BE CARRIED OUT BY QUALIFIED SPECIALISTS |
POSSIBLE FAULTS AND TROUBLESHOOTING
| Problem | Possible reasons | Troubleshooting |
| The fan (-s) does (do) not start up during the unit start-up. | No power supply. | Make sure the unit is properly connected to power mains, otherwise troubleshoot a connection error. |
| The mode is set in which the fans are off. | Change the operating mode using the control panel. | |
|
Low air flow. | Low set fan speed. | Set higher speed. |
| The filters, the fans or the heat exchanger are contaminated. | Clean or replace the filters, clean the fans and the heat exchanger. | |
| The elements of the ventilation system (air ducts, diffusers, louver shutters, grilles) are soiled, damaged or closed. | Clean or replace the ventilation system elements (air ducts, diffusers, louver shutters, grilles). | |
| Low supply air temperature. | The extract filter is soiled. | Clean or replace the extract filter. |
| High noise, vibration. | The fan or casing screw connection is loose. | Tighten the screw connection of the fans or the casing against stop. |
| No anti-vibration dampers on the spigots. | Install anti-vibration rubber mounts. | |
| Water leakage (only in heat recovery units) | The drain line is clogged, damaged or mounted wrong. | Clean the drain line, if necessary. Check the drain line slant, inspect the U-trap and make sure the drain line is equipped with frost protection. |
If the troubleshooting steps are unsuccessful, contact the service department or the seller of the product.
In the event of malfunctions not described in the table, contact the service department or the seller of the product.
STORAGE AND TRANSPORTATION REGULATIONS
- Store the unit in the manufacturer’s original packaging box in a dry closed ventilated premise with temperature range +5 ˚C…+40 ˚C and relative humidity up to 70 %.
- Storage environment must not contain aggressive vapors and chemical mixtures provoking corrosion, insulation, and sealing deformation.
- Use suitable hoist machinery for handling and storage operations to prevent possible damage to the unit.
- Follow the handling requirements applicable for the particular type of cargo.
- The unit can be carried in the original packaging by any mode of transport provided proper protection against precipitation and mechanical damage. The unit must be transported only in the working position.
- Avoid sharp blows, scratches, or rough handling during loading and unloading.
- Prior to the initial power-up after transportation at low temperatures, allow the unit to warm up at operating temperature for at least 3-4 hours.
MANUFACTURER’S WARRANTY
The product is in compliance with EU norms and standards on low voltage guidelines and electromagnetic compatibility. We hereby declare that the product complies with the provisions of Electromagnetic Compatibility (EMC) Directive 2014/30/EU of the European Parliament and of the Council, Low Voltage Directive (LVD) 2014/35/EU of the European Parliament and of the Council and CE-marking Council Directive 93/68/EEC. This certificate is issued following test carried out on samples of the product referred to above.
The manufacturer hereby warrants normal operation of the unit for 24 months after the retail sale date provided the user’s observance of the transportation, storage, installation, and operation regulations. Should any malfunctions occur in the course of the unit operation through the Manufacturer’s fault during the guaranteed period of operation, the user is entitled to get all the faults eliminated by the manufacturer by means of warranty repair at the factory free of charge. The warranty repair includes work specific to elimination of faults in the unit operation to ensure its intended use by the user within the guaranteed period of operation. The faults are eliminated by means of replacement or repair of the unit components or a specific part of such unit component.
The warranty repair does not include:
- routine technical maintenance
- unit installation/dismantling
- unit setup
To benefit from warranty repair, the user must provide the unit, the user’s manual with the purchase date stamp, and the payment paperwork certifying the purchase. The unit model must comply with the one stated in the user’s manual. Contact the Seller for warranty service.
The manufacturer’s warranty does not apply to the following cases:
- User’s failure to submit the unit with the entire delivery package as stated in the user’s manual including submission with missing component parts previously dismounted by the user.
- Mismatch of the unit model and the brand name with the information stated on the unit packaging and in the user’s manual.
- User’s failure to ensure timely technical maintenance of the unit.
- External damage to the unit casing (excluding external modifications as required for installation) and internal components caused by the user.
- Redesign or engineering changes to the unit.
- Replacement and use of any assemblies, parts and components not approved by the manufacturer.
- Unit misuse.
- Violation of the unit installation regulations by the user.
- Violation of the unit control regulations by the user.
- Unit connection to power mains with a voltage different from the one stated in the user’s manual.
- Unit breakdown due to voltage surges in power mains.
- Discretionary repair of the unit by the user.
- Unit repair by any persons without the manufacturer’s authorization.
- Expiration of the unit warranty period.
- Violation of the unit transportation regulations by the user.
- Violation of the unit storage regulations by the user.
- Wrongful actions against the unit committed by third parties.
- Unit breakdown due to circumstances of insuperable force (fire, flood, earthquake, war, hostilities of any kind, blockades).
- Missing seals if provided by the user’s manual.
- Failure to submit the user’s manual with the unit purchase date stamp.
- Missing payment paperwork certifying the unit purchase.
![]() | FOLLOWING THE REGULATIONS STIPULATED HEREIN WILL ENSURE A LONG AND TROUBLE-FREE OPERATION OF THE UNIT.TS |
![]() | USER’S WARRANTY CLAIMS SHALL BE SUBJECT TO REVIEW ONLY UPON PRESENTATION OF THE UNIT, THE PAYMENT DOCUMENT AND THE USER’S MANUAL WITH THE PURCHASE DATE STAMP. |
CERTIFICATE OF ACCEPTANCE
| Unit Type | Heat and energy recovery air handling unit |
| Model | |
| Serial Number | |
| Manufacture Date | |
| Quality Inspector’s Stamp |
SELLER INFORMATION
| Seller | |
| Address | |
| Phone Number | |
| Purchase Date | |
| This is to certify acceptance of the complete unit delivery with the user’s manual. The warranty terms are acknowledged and accepted. | |
| Customer’s Signature | |
INSTALLATION CERTIFICATE
| The unit is installed pursuant to the requirements stated in the present user’s manual. | ||
| Company name | ||
| Address | ||
| Phone Number | ||
| Installation Technician’s Full Name | ||
| Installation Date: | Signature: | |
| The unit has been installed in accordance with the provisions of all the applicable local and national construction, electrical and technical codes and standards. The unit operates normally as intended by the manufacturer. | ||
| Signature: | ||
WARRANTY CARD
| Unit Type | Heat and energy recovery air handling unit |
| Model | |
| Serial Number | |
| Manufacture Date | |
| Purchase Date | |
| Warranty Period | |
| Seller |

CUSTOMER SUPPORT
B217EN-02

























