BLAUBERG KOMFORT Roto EC S2 200 Heat Recovery Air Handling Unit

This user’s manual is a main operating document intended for technical, maintenance, and operating staff.
The manual contains information about the purpose, technical details, operating principle, design, and installation of the KOMFORT Roto EC S2(E)200 unit (-s) and all of its (their) modifications.
Technical and maintenance staff must have theoretical and practical training in the field of ventilation systems and should be able to work in accordance with workplace safety rules as well as construction norms and standards applicable in the territory of the country. The information in this user’s manual is correct at the time of the document’s preparation.
The Company reserves the right to modify the technical characteristics, design, or configuration of its products at any time in order to incorporate the latest technological developments.
No part of this publication may be reproduced, stored in a retrieval system, or transmitted, in any form or by any means in any information search system or translated into any language in any form without the prior written permission of the Company.
SAFETY REQUIREMENTS
- Please read the user’s manual carefully prior to installing and operating the unit.
- All user’s manual requirements as well as the provisions of all the applicable local and national construction, electrical, and technical norms and standards must be observed when installing and operating the unit.
- The warnings contained in the user’s manual must be considered most seriously since they contain vital personal safety information.
- Failure to follow the rules and safety precautions noted in this user’s manual may result in an injury or unit damage.
- After a careful reading of the manual, keep it for the entire service life of the unit.
- While transferring the unit control, the user’s manual must be turned over to the receiving operator.
UNIT INSTALLATION AND OPERATION SAFETY PRECAUTIONS



THE PRODUCT MUST BE DISPOSED SEPARATELY AT THE END OF ITS SERVICE LIFE. DO NOT DISPOSE THE UNIT AS UNSORTED DOMESTIC WASTE.
PURPOSE
The unit is designed to ensure continuous mechanical air exchange in houses, offices, hotels, cafes, conference halls, and other utility and public spaces as well as to recover the heat energy contained in the air extracted from the premises to warm up the filtered stream of intake air.
The unit is not intended for organizing ventilation in swimming pools, saunas, greenhouses, summer gardens, and other spaces with high humidity.
Due to the ability to save heating energy by means of energy recovery, the unit is an important element of energy-efficient premises. The unit is a component part and is not designed for stand-alone operation.
It is rated for continuous operation.
Transported air must not contain any flammable or explosive mixtures, evaporation of chemicals, sticky substances, fibrous materials, coarse dust, soot and oil particles or environments favourable for the formation of hazardous substances (toxic substances, dust, pathogenic germs).
THE UNIT SHOULD NOT BE OPERATED BY CHILDREN OR PERSONS WITH REDUCED PHYSICAL, MENTAL, OR SENSORY CAPACITIES, OR THOSE WITHOUT
THE APPROPRIATE TRAINING.
THE UNIT MUST BE INSTALLED AND CONNECTED ONLY BY PROPERLY QUALIFIED PERSONNEL AFTER THE APPROPRIATE BRIEFING.
THE CHOICE OF UNIT INSTALLATION LOCATION MUST PREVENT UNAUTHORIZED ACCESS BY UNATTENDED CHILDREN.
THE UNIT CAN BE USED IN KITCHEN SPACES ONLY IF THERE IS A GREASE FILTER.
INSTALL A KITCHEN HOOD WITH A GREASE FILTER IF AIR IS EXTRACTED FROM THE COOKING SURFACE.
DELIVERY SET
| Name | Number |
| Air handling unit | 1 pc. |
| User’s manual | 1 pc. |
| Control panel* | 1 pc. |
| Decorative panel | 1 pc. |
| Decorative panel mounting bracket | 4 pcs. |
| Installation kit | 1 pc. |
| Packing box | 1 pc. |
*Control panel is not included in delivery set of units equipped with S21 controller.
DESIGNATION KEY
TECHNICAL DATA
The unit is designed for indoor application with the ambient temperature ranging from +1 °C up to +40 °C and relative humidity up to 80 %. In order to prevent condensation on the internal walls of the units, it is necessary that the surface temperature of the casing is 2-3 °C higher than the dew point temperature of the transported air.
The unit is rated as a Class I electrical appliance.
Hazardous parts access and water ingress protection rating:
- IP22 for the unit connected to the air ducts
- IP44 for the unit motors
The unit design is constantly being improved, thus some models may be slightly different from those described in this manual.
TECHNICAL DATA
| Parameter | KOMFORT Roto EC S2 200 | KOMFORT Roto EC S2E 200 | |
| Unit voltage [V/50 (60) Hz] | 1~ 230 | ||
| Maximum unit power (without a heater) [W] | 118 | ||
| Maximum heater power [W] | – | 700 | |
| Maximum unit power [W] | 118 | 818 | |
| Maximum unit current (without a heater) [A] | 1.0 | ||
| Maximum heater current [A] | – | 3.0 | |
| Maximum unit current [A] | 1.0 | 4.0 | |
| Maximum flow rate [m3/h] | 270 | ||
| RPM [min-1] | 1800 | ||
| Sound pressure level at 3 m distance [dBA] | 28 | ||
| Transported air temperature [°С] | -25…+40 | ||
| Casing material | painted steel | ||
| Insulation | 20 mm mineral wool | ||
| Filter: | extract | G4 | |
| supply | G4, F7 | ||
| Connected air duct diameter [mm] | 125 | ||
| Weight [kg] | 47 | 48 | |
| Heat recovery efficiency [%] | from 75 up to 92 | ||
| Heat exchanger type | rotary | ||
| Heat exchanger material | aluminum | ||
| SEC class | А | ||
OVERALL DIMENSIONS OF UNITS [MM]
DESIGN AND OPERATING PRINCIPLE
The unit has the following operating principle:
Warm stale extract air from the room flows to the unit, where it is filtered. Then the air is moved through the rotary heat exchanger and is exhausted outside with the exhaust fan. Clean cold air from outside is moved to the supply filter. Then filtered air flows through the rotary heat exchanger and the electric heater (for the KOMFORT Roto EC S2(E)200 units) where it is warmed up and is moved to the room with the supply fan.
Heat energy of warm extract air is transferred to clean intake fresh air from outside and warms it up. Heat recovery minimizes heat losses and space heating expenses in cold seasons and cooling expanses in warm seasons.
The unit is equipped with an additional extract spigot for connecting a kitchen hood. The kitchen hood must be equipped with an air damper to shut off the exhaust duct when the kitchen hood is not in use.
Unit design and operation principle (service side view)
The unit is a framework construction made of rigidly fixed panels. The panels are made of aluminum and galvanized sheets, internally filled with a heat- and sound-insulated layer of mineral wool. The air handling unit is equipped with quick-detachable service panels for scheduled repair and maintenance operations. Route power and ground cables through the screwed cable glands to connect those to the terminal block and the grounding bus located in the control unit. The wiring diagram is shown on the control unit cover.
MOUNTING AND SET-UP
READ THE USER’S MANUAL BEFORE INSTALLING THE UNIT.
THE UNIT MUST BE MOUNTED BY A QUALIFIED EXPERT ONLY, PROPERLY TRAINED AND HAVING THE REQUIRED TOOLS AND MATERIALS.
While mounting the unit provide enough access for maintenance or repair work.
The minimum recommended clearances between the unit and the adjoining walls are given in the figure below.
When selecting a mounting location of the unit, provide free opening of the service panel. To get the best performance of the unit and to minimize turbulence-induced air pressure losses, connect the straight air duct section to the spigots on both sides of the unit while installing.
Minimum straight air duct length:
- Equal to 1 air duct diameter on the intake side
- Equal to 3 air duct diameters on outlet side
If the air ducts are too short or not connected, protect the unit parts from ingress of foreign objects.
To prevent uncontrollable access to the fan the spigots may be covered with a protecting grille or other protecting device with mesh width not more than 12.5 mm.
While installing the unit, ensure convenient access for subsequent maintenance and repair. The unit must be mounted on a plane wall.
Installing the unit to an uneven surface could lead to the unit’s casing distortion and operation disturbance.
The unit is designed for mounting on a horizontal plane as well as for wall mounting with a fixing bracket that is fastened with four screws and dowels (not included in the delivery set).
UNIT WALL MOUNTING
Attach the wall mounting bracket to the wall using dowels with screws (not included in the delivery set).
Attach the wall mounting bracket to the wall considering the wall material and the unit weight.
- Install the unit on the mounting bracket.
Suspend it carefully.
Make sure the unit is fastened securely prior to operation..
UNIT FLOOR MOUNTING
Place the unit on a flat, stable surface that has sufficient load capacity matching the unit weight and meets safety requirements. Ensure a stable position of the unit by screwing and unscrewing its feet.
HUMIDITY SENSOR MOUNTING
The humidity sensor is not included in the delivery set and can be ordered separately. The humidity sensor must be installed prior to unit mounting. Remove the service panel and install the humidity sensor into the mounting bracket on the exhaust duct wall. Then connect the humidity sensor connector to the respective contact socket on the control unit. 
SERVICE SIDE CHANGE
- Make sure of the correct unit service side selection.
Unit mounting position should enable free excess to the service panel for maintenance and service operations.
Left-handed installation Right-handed installation
- Remove the decorative panel, and then remove the service panel by unscrewing the 6 screws. Disconnect the ground cable from the service panel. Then remove the back panel of the unit by undoing the 6 screws. It is also necessary to disconnect the ground cable from the back panel.
Install the back panel instead of the service panel and the decorative and service panels instead of the back panel.

EXHAUST KITCHEN HOOD MOUNTING
Unscrew the feet of the unit for floor mounting. Then undo the four self-tapping screws and remove the plug in the bottom panel. Lead the kitchen hood cable into the unit and connect it according to the external connections wiring diagram (page 12). Fix the exhaust kitchen hood on the bottom part of the unit using the four self-tapping screws.
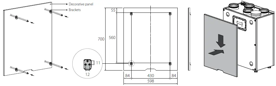
DECORATIVE PANEL MOUNTING
The decorative panel must be installed using the suspension brackets (included in the delivery set). Fix the suspension brackets on the decorative panel according to the drawing. Then install a decorative panel by inserting the brackets in special holes. 
CONNECTION TO POWER MAINS
POWER OFF THE POWER SUPPLY PRIOR TO ANY OPERATIONS WITH THE UNIT.
THE UNIT MUST BE CONNECTED TO POWER SUPPLY BY A QUALIFIED ELECTRICIAN.
THE RATED ELECTRICAL PARAMETERS OF THE UNIT ARE GIVEN ON THE MANUFACTURER’S LABEL.
ANY TAMPERING WITH THE INTERNAL CONNECTIONS IS PROHIBITED AND WILL VOID THE WARRANTY.
- The unit is rated for connection to 1~230 V/50 (60) Hz power mains.
- The unit must be connected to power mains using insulated electric conductors (cables, wires). The actual wire cross section selection must be based on the maximum load current, maximum conductor temperature depending on the wire type, insulation, length and installation method.
- The external power input must be equipped with an automatic circuit breaker built into the stationary wiring to open the electric circuit in case of overload or short-circuit. The circuit breaker installation place must provide quick access for emergency shutdown of the unit. The trip current of the automatic circuit breaker QF must exceed the maximum current consumption of the unit (refer to the technical data table). The recommended trip current of the circuit breaker is the next current in the standard trip current row following the maximum current of the connected unit. The automatic circuit breaker is not included in the delivery set.
ACCESS TO THE CONTROL UNIT
CONNECTION OF THE KITCHEN HOOD 
The connector for the kitchen hood (X4) is located on the side wall of the unit.
It is necessary to lead the cable into the unit and connect it to the connector according to the wiring diagram.
For right hand units the cable should be routed across the bottom of the unit using clamps and grommets.
External connections diagram of the KOMFORT Roto EC S2(E)200 S17/S18
Electric shock hazard!
*The appliances are not supplied with the unit, are available on the separate order.
**Wire cross-section at a cable length of maximum 100 m.
Maximum cable length from the controller to the control panel
Cable type Distance between the controller and the control panel
Phone cable up to 50 m
AWG24 shielded cable up to 200 m
External connections diagram of the KOMFORT Roto EC S2(E)200 S21
Electric shock hazard
| Designation | Name | Contact type | Cable type | Note |
| SМ1* | Supply air damper actuator | NO |
2 x 0,75 mm2 | 3A, 30DC/~250 AC |
| SМ2 * | Extract air damper actuator | NO | 3A, 30DC/~250 AC | |
| РК1* | Contact from fire alarm panel | NC | Remove the jumper | |
| CCU* | CCU control | NO | 3A, 30DC/~250 AC | |
| Р1* | External control panel | 4 x 0,25 mm2 | ||
| Boost* | On/Off contacts of the Boost mode | NO | 2 x 0,75 mm2 | |
| CO2* | Outdoor CO2 sensor | 3 x 0,25 mm2 | ||
| KH1* | Kitchen hood | 5 x 0,75 mm2 |
* Is not included in the delivery set.
* The supply voltage U of the SM1, SM2 external dampers is selected depending on the type of dampers.
Output parameters: terminals 12-17 – 3 A, 30VDC / ~ 250VAC (“dry contact”).
The maximum cable length from external devices to the terminal block should not exceed 100 meters. The recommended cable cross-section is shown in the table.
TECHNICAL MAINTENANCE
DISCONNECT THE UNIT FROM POWER SUPPLY BEFORE ANY MAINTENANCE OPERATIONS.
Maintenance operations of the unit are required 3-4 times per year. They include general cleaning of the unit and the following operations:
- Filter maintenance.
Dirty filters increase air resistance in the system and reduce supply air volume. The filters require cleaning not less than 3-4 times per year. When 3 000 operating hours have elapsed, the unit controller generates the filter replacement or cleaning alert. Clean or replace the filters and reset the hour meter. Vacuum cleaning is allowed. After two consecutive cleanings filters must be replaced. For new filters contact the Seller.
Sequence of filter removal:- Disconnect the unit from power mains.
- Remove the service panel.
- Pull the filters to remove.
- Heat exchanger maintenance (once per year).
Some dust may accumulate on the heat exchanger even in case of regular maintenance of the filters. To maintain the high heatrecovery efficiency, regular cleaning is required. To clean the heat exchanger, remove it from the unit and clean the heat exchanger by using compressed air or a vacuum cleaner. After cleaning, re-install the heat exchanger into the unit.
Sequence of heat exchanger removal:- Disconnect the unit from power mains.
- Unlatch and open the service panel.
- Disconnect the rotary heat exchanger and then pull it to remove.

- Fan maintenance (once per year).
Even in case of regular maintenance of the filters, some dust may accumulate inside the fans and reduce the fan performance and supply air flow.
Clean the fans with a soft cloth or brush.
Do not use water, aggressive solvents, or sharp objects as they may damage the impeller. - Supply air flow control (twice per year).
The supply duct grille may get clogged with leaves and other objects reducing the unit performance and supply air delivery. Check the supply grille twice per year and clean it as required. - Ductwork system maintenance (once in 5 years).
Even regular fulfilling of all the maintenance operations prescribed above may not completely prevent dirt accumulation in the air ducts, which leads to air pollution and reduces the unit capacity. Duct maintenance means regular cleaning or replacement.
POSSIBLE REASONS AND TROUBLESHOOTING
| Problem | Possible reasons | Troubleshooting |
|
The fan(s) do(es) no start. | No power supply. | Make sure the power supply line is connected correctly, otherwise troubleshoot a connection error. |
| The motor is jammed, the impeller blades are soiled. | Turn the unit off. Troubleshoot the motor jam and the impeller clogging. Clean the blades. Restart the unit. | |
| Alarm in the system. System alarms are listed below. | Identify the system failure by entering the active alarms menu and eliminate the alarm. If the system alarm cannot be eliminated by the user contact the Seller. | |
| Automatic circuit breaker trips following the unit turning on. | High current consumption due to short circuit in power line. | Turn the unit off. Contact the Seller. |
|
Low air flow. | Low set fan speed. | Set higher speed. |
| The filters and the fans are clogged, the heat exchanger is clogged. | Clean or replace the filters, clean the fans, and the heat exchanger. | |
| Ventilation system elements (air ducts, diffusers, louver shutters, grilles) are clogged, damaged or closed. | Clean or replace the ventilation system elements, such as air ducts, diffusers, louvre shutters, grilles. | |
| Cold supply air. | The extract filter is soiled. | Clean or replace the extract filter. |
| The unit operates in Cooling mode. | Check the unit operation settings. | |
|
Noise, vibration. | The impeller(s) is soiled. | Clean the impeller(s). |
| The fan or casing screw connection is loose. | Tighten the screw connection of the fans or the casing against stop. | |
| No anti-vibration connectors on air duct pipe flanges. | Install anti-vibration connectors. | |
| SYSTEM ALARMS | ||
| Fire alarm. | Emergency system shutdown on command from the fire alarm board. This alarm interrupts the fan operation. | In case of such alarm follow the emergency instructions and leave the room and the building. |
| Temperature sensor failure. | Interruption or shortening in the temperature sensor circuit. This alarm interrupts the fan operation. | Contact the Seller. |
| Control panel failure. | Control panel communication error. | Check the connection of the control panel to the controller. Contact the Seller. |
| Low supply air temperature. | The supply air temperature is below +14 °C (factory setting). | Clean or replace the extract filter. Check the unit operation settings. |
| Filter replacement required. | Filter replacement interval expiration. | Clean or replace the filters. |
STORAGE AND TRANSPORTATION REGULATIONS
- Store the unit in the manufacturer’s original packaging box in a dry closed ventilated premise with temperature range + 5 ˚С…+40 ˚С and relative humidity up to 70 %.
- Storage environment must not contain aggressive vapors and chemical mixtures provoking corrosion, insulation, and sealing deformation.
- Use suitable hoist machinery for handling and storage operations to prevent possible damage to the unit.
- Follow the handling requirements applicable for the particular type of cargo.
- The unit can be carried in the original packaging by any mode of transport provided proper protection against precipitation and mechanical damage. The unit must be transported only in the working position.
- Avoid sharp blows, scratches, or rough handling during loading and unloading.
- Prior to the initial power-up after transportation at low temperatures, allow the unit to warm up at operating temperature for at least 3-4 hours.
MANUFACTURER’S WARRANTY
The product is in compliance with EU norms and standards on low voltage guidelines and electromagnetic compatibility. We hereby declare that the product complies with the provisions of Electromagnetic Council Directive 2014/30/EU, Low Voltage Directive 2014/35/EU and CE-marking Directive 93/68/EEC. This certificate is issued following test carried out on samples of the product referred to above. The manufacturer hereby warrants normal operation of the unit for 24 months after the retail sale date provided the user’s observance of the transportation, storage, installation, and operation regulations. Should any malfunctions occur in the course of the unit operation through the Manufacturer’s fault during the guaranteed period of operation, the user is entitled to get all the faults eliminated by the manufacturer by means of warranty repair at the factory free of charge.
The warranty repair includes work specific to elimination of faults in the unit operation to ensure its intended use by the user within the guaranteed period of operation. The faults are eliminated by means of replacement or repair of the unit components or a specific part of such unit component.
The warranty repair does not include:
- Routine technical maintenance
- Unit installation/dismantling
- Unit setup
To benefit from warranty repair, the user must provide the unit, the user’s manual with the purchase date stamp, and the payment paperwork certifying the purchase. The unit model must comply with the one stated in the user’s manual. Contact the Seller for warranty service.
The manufacturer’s warranty does not apply to the following cases:
- User’s failure to submit the unit with the entire delivery package as stated in the user’s manual including submission with missing component parts previously dismounted by the user.
- Mismatch of the unit model and the brand name with the information stated on the unit packaging and in the user’s manual.
- User’s failure to ensure timely technical maintenance of the unit.
- External damage to the unit casing (excluding external modifications as required for installation) and internal components caused by the user.
- Redesign or engineering changes to the unit.
- Replacement and use of any assemblies, parts and components not approved by the manufacturer.
- Unit misuse.
- Violation of the unit installation regulations by the user.
- Violation of the unit control regulations by the user.
- Unit connection to power mains with a voltage different from the one stated in the user’s manual.
- Unit breakdown due to voltage surges in power mains.
- Discretionary repair of the unit by the user.
- Unit repair by any persons without the manufacturer’s authorization.
- Expiration of the unit warranty period.
- Violation of the unit transportation regulations by the user.
- Violation of the unit storage regulations by the user.
- Wrongful actions against the unit committed by third parties.
- Unit breakdown due to circumstances of insuperable force (fire, flood, earthquake, war, hostilities of any kind, blockades).
- Missing seals if provided by the user’s manual.
- Failure to submit the user’s manual with the unit purchase date stamp.
- Missing payment paperwork certifying the unit purchase.
FOLLOWING THE REGULATIONS STIPULATED HEREIN WILL ENSURE A LONG AND TROUBLE-FREE OPERATION OF THE UNIT.
USER’S WARRANTY CLAIMS SHALL BE SUBJECT TO REVIEW ONLY UPON PRESENTATION OF THE UNIT, THE PAYMENT DOCUMENT AND THE USER’S MANUAL WITH THE PURCHASE DATE STAMP.
CERTIFICATE OF ACCEPTANCE
| Unit Type | Heat recovery air handling unit |
| Model | KOMFORT Roto EC S2 200 S |
| Serial Number | |
| Manufacture Date | |
| Quality Inspector’s Stamp |
SELLER INFORMATION
| Seller | |
| Address | |
| Phone Number | |
| Purchase Date | |
| This is to certify acceptance of the complete unit delivery with the user’s manual. The warranty terms are acknowledged and accepted. | |
| Customer’s Signature | |
Seller’s Stamp
INSTALLATION CERTIFICATE
| The KOMFORT Roto EC S2 200 S unit is installed pursuant to the requirements stated in the present user’s manual. | ||
| Company name | ||
| Address | ||
| Phone Number | ||
| Installation Technician’s Full Name | ||
| Installation Date: | Signature: | |
| The unit has been installed in accordance with the provisions of all the applicable local and national construction, electrical and technical codes and standards. The unit operates normally as intended by the manufacturer. | ||
| Signature: | ||
Installation Stamp
WARRANTY CARD
| Unit Type | Heat recovery air handling unit |
| Model | KOMFORT Roto EC S2 200 S |
| Serial Number | |
| Manufacture Date | |
| Purchase Date | |
| Warranty Period | |
| Seller |
Seller’s Stamp

www.blaubergventilatoren.de B140-1EN-04

Attach the wall mounting bracket to the wall using dowels with screws (not included in the delivery set).



















