KitchenAid JJW6024HL Built In Steam and Convection Wall Oven

Product Information
The Commercial-Style Ranges come in three sizes – 30 inches, 36 inches, and 48 inches. These ranges are available in both dual-fuel and gas options. The KFDC500J/KFGC500J is the 30-inch model, the KFDC506J/KFGC506J is the 36-inch model, and the KFDC558J/KFGC558J is the 48-inch model. Each unit has a different set of dimensions which include overall width, bullnose height, control panel height, door height, door bottom to handle top, toe-kick height, depth with control panel overhang, depth with handle, depth with door fully open, grates top height, cooking surface top height, door top height, handle top height, toe-kick height, maximum feet extension height, depth to toe-kick with door, depth with door, and gas vent height (applicable only for gas models).
Product Usage Instructions
- Before using the Commercial-Style Ranges, ensure that the unit is installed in accordance with the installation instructions provided in the user manual. Make sure that the range is properly grounded before using it.
- When using the range, use only cookware that is recommended for use on the range. For instance, if you’re using a gas model, use cookware that has a flat bottom and is not too large or small for the burners. For dual-fuel models, make sure that the cookware is oven-safe if you’re using it in the oven.
- The range has various burners and options for cooking – use the appropriate burner for your cooking needs. Do not leave the range unattended while cooking. Always keep an eye on your food while it’s cooking.
- After using the range, allow it to cool down before cleaning it. Use only mild soap and warm water to clean the range. Do not use abrasive cleaners or harsh chemicals on the range as it may damage the finish. For detailed cleaning instructions, refer to the user manual that came with the range.
- Regular maintenance of the range is recommended to ensure that it functions properly. For instance, check the burners regularly for clogs or debris and clean them as required. Also, ensure that the range is properly grounded and that the gas connections (if applicable) are secure. Again, refer to the user manual for detailed maintenance instructions.
- Lastly, if you experience any issues with the range while using it, refer to the troubleshooting section of the user manual for guidance. If you’re still unable to resolve the issue, contact customer support for assistance.
DIMENSIONS
PRODUCT DIMENSIONS

| MODEL # | 30″ (76.2 cm) RANGES DUAL-FUEL/GAS KFDC500J/KFGC500J | 36″ (91.4 cm) RANGES DUAL-FUEL/GAS KFDC506J/KFGC506J | ||
| Unit of Measurement | in | cm | in | cm |
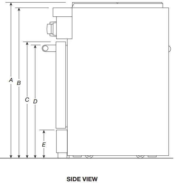
| Overall Width (A) | 297⁄8 | 75.9 | 357⁄8 | 91.1 |
| Bullnose Height (B) | 23⁄16 | 5.6 | 23⁄16 | 5.6 |
| Control Panel Height (C) | 55⁄16 | 13.5 | 55⁄16 | 13.5 |
| Door Height (D) | 2011⁄16 | 52.6 | 2011⁄16 | 52.6 |
| Door Bottom to Handle Top (E) | 20 | 50.8 | 20 | 50.8 |
| Toe-Kick Height (F) | 51⁄2 | 14 | 51⁄2 | 14 |
IMPORTANT: Dimensional specifications are provided for planning purposes only. Do not make any cutouts based on this information. Refer to the Installation Guide before selecting cabinetry, verifying electrical/gas connections, making cutouts or beginning installation. All KitchenAid® appliances are appropriately UL, CUL or CSA approved.

| MODEL # | 48″ (121.9 cm) RANGES DUAL-FUEL/GAS KFDC558J/KFGC558J | |
| Unit of Measurement | in | cm |
| Overall Width (A) | 477⁄8 | 121.6 |
| Bullnose Height (B) | 23⁄16 | 5.6 |
| Control Panel Height (C) | 55⁄16 | 13.5 |
| Door Heights (D) | 2011⁄16 | 52.6 |
| Door Bottoms to Handle Tops (E) | 20 | 50.8 |
| Secondary Oven Door Width (F) | 173⁄4 | 45.1 |
| Main Oven Door Width (G) | 295⁄8 | 75.2 |
| Toe-Kick Height (H) | 51⁄2 | 14 |

| MODEL # | 30″ (76.2 cm) RANGES DUAL-FUEL/GAS KFDC500J/KFGC500J | 36″ (91.4 cm) RANGES DUAL-FUEL/GAS KFDC506J/KFGC506J | ||
| Unit of Measurement | in | cm | in | cm |
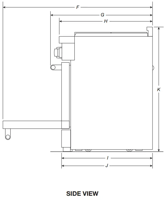
| Depth with Control Panel Overhang (G) | 273⁄4 | 70.5 | 273⁄4 | 70.5 |
| Depth with Handle (H) | 301⁄4 | 76.9 | 301⁄4 | 76.9 |
| Depth with Door Fully Open (I) | 461⁄2 | 118.1 | 461⁄2 | 118.1 |

| MODEL # | 48″ (121.9 cm) RANGES DUAL-FUEL/GAS KFDC558J/KFGC558J | |
| Unit of Measurement | in | cm |
| Depth with Control Panel Overhang (I) | 273⁄4 | 70.5 |
| Depth with Handles (J) | 301/4 | 76.9 |
| Depth with Doors Fully Open (K) | 461/2 | 118.1 |

| MODEL # | 30″ (76.2 cm) RANGES DUAL-FUEL/GAS KFDC500J/KFGC500J | 36″ (91.4 cm) RANGES DUAL-FUEL/GAS KFDC506J/KFGC506J | 48″ (121.9 cm) RANGES DUAL-FUEL/GAS KFDC558J/KFGC558J | |||
| Unit of Measurement | in | cm | in | cm | in | cm |
| Grates Top Height (A) | 373⁄16 | 94.5 | 373⁄16 | 94.5 | 373⁄16 | 94.5 |
| Cooking Surface Top Height (B) | 36 | 91.4 | 36 | 91.4 | 36 | 91.4 |
| Door Top Height (C) | 277⁄8 | 70.8 | 277⁄8 | 70.8 | 277⁄8 | 70.8 |
| Handle Top Height (D) | 271⁄8 | 68.9 | 271⁄8 | 68.9 | 271⁄8 | 68.9 |
| Toe-Kick Height (E) | 65⁄8 | 16.9 | 65⁄8 | 16.9 | 65⁄8 | 16.9 |
| OTHER DIMENSIONS | ||||||
| Maximum Feet Extension Height* | 11⁄2 | 3.8 | 11⁄2 | 3.8 | 11⁄2 | 3.8 |
IMPORTANT: Minimum height dimensions are at the lowest point of the height adjustment range.
When the leveling legs are fully extended, all heights have 11⁄2″ (3.8 cm) of added height.

| MODEL # | 30″ (76.2 cm) RANGES DUAL-FUEL/GAS KFDC500J/KFGC500J | 36″ (91.4 cm) RANGES DUAL-FUEL/GAS KFDC506J/KFGC506J | 48″ (121.9 cm) RANGES DUAL-FUEL/GAS KFDC558J/KFGC558J | |||
| Unit of Measurement | in | cm | in | cm | in | cm |
| Depth with Door Fully Open (F) | 461⁄2 | 118.1 | 461⁄2 | 118.1 | 461⁄2 | 118.1 |
| Depth with Handle (G) | 301⁄4 | 76.9 | 301⁄4 | 76.9 | 301⁄4 | 76.9 |
| Depth with Control Panel Overhang (H) | 273⁄4 | 70.5 | 273⁄4 | 70.5 | 273⁄4 | 70.5 |
| Depth to Toe-Kick with Door (I) | 27 | 68.6 | 27 | 68.6 | 27 | 68.6 |
| Depth with Door (J) | 27 | 68.6 | 27 | 68.6 | 27 | 68.6 |
| OTHER DIMENSIONS | ||||||
| Gas Vent Height (K)* | 39 | 99.1 | 39 | 99.1 | 39 | 99.1 |
*Gas Units only: KFGC500J, KFGC506J and KFGC558J.
OPENING/CLEARANCE DIMENSIONS
| MODEL # | 30″ (76.2 cm) RANGES DUAL-FUEL/GAS KFDC500J/KFGC500J | 36″ (91.4 cm) RANGES DUAL-FUEL/GAS KFDC506J/KFGC506J | 48″ (121.9 cm) RANGES DUAL-FUEL/GAS KFDC558J/KFGC558J | |||
| Unit of Measurement | in | cm | in | cm | in | cm |
| Combustible Area above Cooking Surface Width (min.) (A) | 30 | 76.2 | 36 | 91.4 | 48 | 121.9 |
| Bottom of Cabinet Height above Cooking Surface (min.) (B)* | 42 | 106.7 | 58 | 147.3 | 58 | 147.3 |
| Bottom of Cabinet Height above Countertop (min.) (C) | 18 | 45.7 | 18 | 45.7 | 18 | 45.7 |
| Distance to Fixed Wall or Combustible Material (min.) (D) | 12 | 30.5 | 12 | 30.5 | 12 | 30.5 |
| Opening Width (min.) (E) | 30 | 76.2 | 36 | 91.4 | 48 | 121.9 |
* If installing a hood or hood liner above the range, follow the hood or hood liner instructions for dimensional clearances above the
cooking surface.

| MODEL # | 30″ (76.2 cm) RANGES DUAL-FUEL/GAS KFDC500J/KFGC500J | 36″ (91.4 cm) RANGES DUAL-FUEL/GAS KFDC506J/KFGC506J | 48″ (121.9 cm) RANGES DUAL-FUEL/GAS KFDC558J/KFGC558J | |||
| Unit of Measurement | in | cm | in | cm | in | cm |
| Upper Cabinet Depth (max.) (F) | 13 | 33 | 13 | 33 | 13 | 33 |
| Depth from Wall to Grates (G)* | 11/2 | 3.9 | 11/2 | 3.9 | 11/2 | 3.9 |
| Depth from Wall to back of Unit** | 0 | 0 | 0 | 0 | 0 | 0 |
- If the back wall is constructed of a combustible material and a backsplash is not installed a 71 /2″ (19.1 cm) minimum clearance is required.
- If the back wall is constructed of a combustible material and a backsplash is not installed a 6″ (15.2 cm) minimum clearance is required.
ELECTRICAL REQUIREMENTS
| MODEL # | 30″ (76.2 cm) RANGES DUAL-FUEL/GAS KFDC500J/KFGC500J | 36″ (91.4 cm) RANGES DUAL-FUEL/GAS KFDC506J/KFGC506J | 48″ (121.9 cm) RANGES DUAL-FUEL/GAS KFDC558J/KFGC558J | |||
| Unit of Measurement | in | cm | in | cm | in | cm |
| Electrical Zone Width (A) | 22 | 55.9 | 28 | 71.1 | 40 | 101.6 |
| Electrical Zone Height (B) | 15 | 38.1 | 15 | 38.1 | 15 | 38.1 |
| Electrical Zone Depth (C) | 5 | 12.7 | 5 | 12.7 | 5 | 12.7 |
ELECTRIC REQUIREMENTS CHECKLIST
- For Dual Fuel models, a 208 VAC or 240 VAC, 60 Hz, fused, grounded circuit is required.
- For 30″ (76.2 cm) and 36″ (91.4 cm) ranges, use a 40 A circuit.
- For 48″ (121.9 cm) ranges, use a 50 A circuit.
- For Gas models, a 120 V, 60 Hz, AC only 15 A fused, electrical circuit is required.
- A dedicated circuit is recommended.
NOTE: If you have questions about your electrical supply, call a licenced, qualified electrician.
GAS REQUIREMENTS
| MODEL # | 30″ (76.2 cm) RANGES DUAL-FUEL/GAS KFDC500J/KFGC500J | 36″ (91.4 cm) RANGES DUAL-FUEL/GAS KFDC506J/KFGC506J | 48″ (121.9 cm) RANGES DUAL-FUEL/GAS KFDC558J/KFGC558J | |||
| Unit of Measurement | in | cm | in | cm | in | cm |
| Gas Opening Width (A) | 6 | 15.2 | 14 | 35.6 | 24 | 61 |
| Gas Opening Height (B) | 3 | 7.6 | 3 | 7.6 | 3 | 7.6 |
| Gas Opening Depth (C) | 5 | 12.7 | 5 | 12.7 | 5 | 12.7 |
| Distance from Side Cabinet to Gas Opening (D) | 9 | 22.9 | 9 | 22.9 | 9 | 22.9 |
| Width to Gas Inlet (E) | 123⁄4 | 32.4 | 123⁄4 | 32.4 | 123⁄4 | 32.4 |
®/TM ©2021 KitchenAid. All rights reserved. Used under license in Canada.

















