KitchenAid KODC304ESS 24-Inch Built-In Double Electric Convection Wall Oven

BUILT-IN OVEN SAFETY
Your safety and the safety of others are very important
We have provided many important safety messages in this manual and on your appliance. Always read and obey all safety messages. This is the safety alert symbol. This symbol alerts you to potential hazards that can kill or hurt you and others. All safety messages will follow the safety alert symbol and either the word “DANGER” or “WARNING.” These words mean:
DANGER
You can be killed or seriously injured if you don’t immediately follow instructions.
WARNING
You can be killed or seriously injured if you don’t follow instructions. All safety messages will tell you what the potential hazard is, tell you how to reduce the chance of injury, and tell you what can happen if the instructions are not followed.
IMPORTANT:
Save for local electrical inspector’s use.
INSTALLATION REQUIREMENTS
Tools and Parts
Gather the required tools and parts before starting installation. Read and follow the instructions provided with any tools listed here.
Tools needed
- Phillips screwdriver
- Measuring tape
- Hand or electric drill (for wall cabinet installations)
- 1″ (2.5 cm) drill bit (for wall cabinet installations)
- Level
Parts needed
- UL listed or CSA-approved conduit connector
- UL listed wire connectors
Parts Supplied
Single Oven Parts Supplied
- Two 4 x 25 mm self-tapping screws
- Two brackets (some models only)
- 14 screws 4 x 12 mm (some models only)
- 14 washers 15 mm diameter (some models only)
- 1 aesthetic panel
Double Oven Parts Supplied
- Four 4 x 25 mm self-tapping screws
- Two brackets
- 14 screws 4 x 12 mm
- 14 washers 15 mm diameter
- 1 aesthetic panel
Check local codes. Check existing electrical supply. See “Electrical Requirements.” It is recommended that all electrical connections be made by a licensed, qualified electrical installer.
Location Requirements
IMPORTANT: Observe all governing codes and ordinances.
- Cabinet opening dimensions that are shown must be used. Given dimensions provide minimum clearance with oven.
- Recessed installation area must provide complete enclosure around the recessed portion of the oven.
- Grounded electrical supply is required. See “Electrical Requirements” section.
- Electrical supply junction box should be located 3″ (7.6 cm) maximum below the support surface when the oven is installed in a wall cabinet. A 1″ (2.5 cm) minimum diameter hole should have been drilled in the right rear or left rear corner of the support surface to pass the appliance cable through to the junction box.
NOTE: For undercounter installation, it is recommended that the junction box be located in the adjacent right or left cabinet. If you are installing the junction box on rear wall behind oven, the junction box must be recessed and located in the upper or lower right or left corner of the cabinet to allow the oven to fit into the cabinet opening.
Oven support surface must be solid, level and flush with bottom of cabinet cutout. Floor must be able to support an oven weight of 65 kg (143.3 lbs) or a double oven weight of 114.1 kg (251.5 lbs).
IMPORTANT: To avoid damage to your cabinets, check with your builder or cabinet supplier to make sure that the materials used will not discolor, delaminate or sustain other damage. This oven has been designed in accordance with the requirements of UL and CSA International and complies with the maximum allowable wood cabinet temperatures of 194°F (90°C).
Undercounter Installation (with cooktop installed above):
Ovens approved for this type of installation have an approval label located on the top of the oven. Refer to undercounter installation instructions for cutout dimensions and approved oven cooktop combinations (separate sheet).
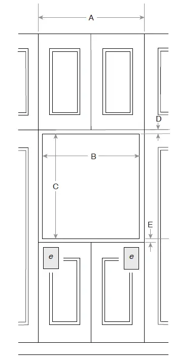
Product Dimensions

- 237/16″ (59.5 cm)
- 237/16″ (59.5 cm)
- 1815/16″ (48.1 cm)
- 183/8″ (46.6 cm)
- 7/8″ (2.2 cm)
- 217/8″ (55.6 cm)
- 221/2″ (57.2 cm)
- 5/8″ (1.6 cm)
Single Oven with Trim Kit

- 237/16″ (59.5 cm) overall width
- 2715/16″ (71 cm) maximum overall height
Single Oven – Traditional Installation
OPENING/CLEARANCE DIMENSIONS
FRONT VIEW

SIDE VIEW

UNDER COUNTER INSTALLATION

BACK VIEW


NOTE: True dimensions are in mm or cm and converted to inches.
Single Oven – Flush Installation
OPENING/CLEARANCE DIMENSIONS
FRONT VIEW

SIDE VIEW

UNDER COUNTER INSTALLATION

TOP VIEW

BACK VIEW


NOTE: True dimensions are in mm or cm and converted to inches.
Double Oven Cabinet Dimensions – Traditional Installation
Double Oven Installed in Cabinet

- 24″ (61 cm) minimum cabinet width
- 1″ (2.5 cm) top of cutout to bottom of upper cabinet door
- 143/4″ (37.5 cm) bottom of cutout to floor
- 225/8″ (57.5 mm) cutout width
- 11/2″ (3.8 cm) minimum bottom of cutout to top of cabinet door
- 493/4″ (126.4 cm) minimum cutout height
Double Oven with Trim Kit

- 237/16″ (59.5 cm)
- 501/4″ (127.7 cm)
- 453/4″ (116.3 cm)
- 453/16″ (114.8 cm)
- 7/8″ (2.2 cm)
- 217/8″ (55.6 cm)
- 221/2″ (57.2 cm)
- 5/8″ (1.6 cm)
Double Oven Cabinet Dimensions – Flush Installation
Double Oven Installed in Cabinet
FRONT VIEW

TOP VIEW

- 251⁄16″ (63.6 cm) minimum cabinet width
- 1″ (2.5 cm) top of cutout to bottom of upper cabinet door
- 143/4″ (37.5 cm) bottom of cutout to floor
- 2311/16″ (60.1 cm) flush insert cutout width
- 225/8″ (57.5 cm) opening width
- 507/16″ (128.1 cm) minimum cutout height
- 501/16″ (127.1 cm)
- 11/2″ (3.8 cm) minimum bottom of cutout to top of cabinet door
- Spacer (entire depth of cutout) Height x Width 3/8″ x 2″ (1 cm x 5.1 cm)
- 231/4″ (59.1 mm) depth of cutout (minimum)
Electrical Requirements
If codes permit and a separate ground wire is used, it is recommended that a qualified electrical installer determine that the ground path and the wire gauge are in accordance with local codes. Check with a qualified electrical installer if you are not sure the oven is properly grounded. This oven must be connected to a grounded metal, permanent wiring system. Be sure that the electrical connection and wire size are adequate and in conformance with the National Electrical Code, ANSI/NFPA 70 — latest edition or CSA Standards C22. 1-94, Canadian Electrical Code, Part 1 and C22.2 No. O-M91 — latest edition, and all local codes and ordinances. A copy of the above code standards can be obtained from: National Fire Protection Association 1 Batterymarch ParkQuincy, MA 02169-7471 CSA International 8501 East Pleasant Valley Road Cleveland, OH 44131-5575
Electrical Connection
To properly install your oven, you must determine the type of electrical connection you will be using and follow the instructions provided for it here.
- Oven/s must be connected to the proper electrical voltage and frequency as per table below –

- The rating information for each oven can also be found on the model/serial number rating plate. The model/serial number rating plate is on the right vertical part of the oven frame. See the following illustration.
Single Oven Double Oven

- Model/serial number rating plate
- Model/serial number rating plate
- Upper Oven
- Lower Oven
NOTE: The rating plate information is applicable for individual oven. For double oven configuration, refer to the information in the table above.
- Models rated 4.2 kW and below at 208/240 V require a separate 15-20 A circuit. Models rated 6.3 kW and above at 208/240 V require a separate 40 A circuit.
- A circuit breaker is recommended.
- Connect directly to the circuit breaker box (or fused disconnect) through flexible, armored or nonmetallic sheathed, copper cable (with grounding wire). See “Make Electrical Connection” section.
- A UL listed or CSA Approved flexible conduit from the oven should be connected directly to the junction box.
- Fuse both sides of the line.
- Do not cut the conduit. The length of conduit provided is for serviceability of the oven.
- A UL listed or CSA approved conduit connector must be provided.
- If the house has aluminum wiring, follow the procedure below:
- Connect the aluminum wiring using special connectors and/or tools designed and UL listed for joining copper to aluminum.
- Follow the electrical connector manufacturer’s recommended procedure. Aluminum/copper connection must conform with local codes and industry accepted wiring practices.
Prepare Built-In Oven
- Decide on the final location for the oven. Avoid drilling or cutting into house wiring during installation.
WARNING
Excessive Weight Hazard Use two or more people to move and install oven. Failure to do so can result in back or other injury. - To avoid floor damage, set the oven onto cardboard prior to installation. Do not use handle or any portion of the front frame for lifting.
- Remove the shipping materials and tape from the oven.
- Remove the hardware package from inside the bag containing literature.
- Remove and set aside racks, oven bottom trim, and other parts from inside the oven.
- Move oven and cardboard close to the oven’s final location.
- Remove oven door.
Remove Oven Door(s)
IMPORTANT: Use both hands to remove oven doors.
- Open oven door all the way.
- Flip up the hinge latch on each side.

- Close the oven door as far as it will shut.
- Lift the oven door while holding both sides. Continue to push the oven door closed and pull it away from the oven door frame.

- Repeat steps for double oven installations.
Make Electrical Connection
WARNING
Electrical Shock Hazard Disconnect power before servicing. nUse 12 gauge copper wire. Electrically ground oven. Failure to follow these instructions can result in death, fire, or electrical shock.
This oven is manufactured with a neutral (white) power supply wire and a cabinet-connected green (or bare) ground wire twisted together.
- Disconnect power.
- Feed the flexible conduit from the oven through the opening in the cabinet.
- Remove junction box cover if it is present.
- Install a UL listed or CSA approved conduit connector to the junction box.

- UL listed or CSA approved conduit connector
- Route the flexile conduit from the oven to the junction box through a UL listed or CSA approved conduit connector.
- Tighten screws on conduit connector.
4-Wire Cable from Home Power Supply
IMPORTANT: Use the 4-wire cable from home power supply in the U.S. where local codes do not allow grounding through neutral, New Branch circuit installations (1996 NEC), mobile homes and recreational vehicles, new construction, and in Canada.
Single Oven

Double Oven

- A. Cable from home power supply
- B. Black wires
- C. Red wires
- D. 4-wire flexible conduit from oven
- E. Junction box
- F. White wires
- G. UL listed wire connectors
- H. Green (or bare) ground wires
- I. UL listed or CSA approved conduit connector
- Connect the 2 black wires (B) together using a UL listed wire connector.
- Connect the 2 red wires (C) together using a UL listed wire connector.
- Untwist white wire from green (or bare) ground wire coming from the oven.
- Connect the 2 white wires (F) together using a UL listed wire connector.
- Connect the green (or bare) ground wire (H) from the oven cable to the green (or bare) ground wire (in the junction box) using a UL listed wire connector.
- Install junction box cover.
Single Oven Installation
Optional Trim Kit Installation
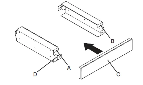
Trim Kit description:

- A. Left bracket
- B. Right bracket
- C. Front aesthetic panel
- D. Front flange of the bracket
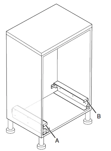
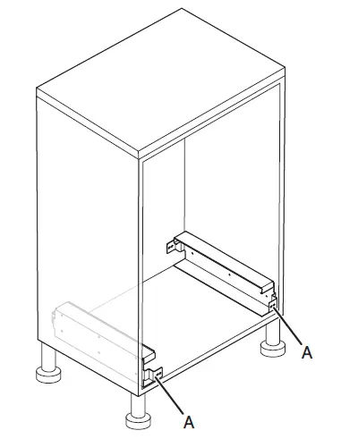
- Place left bracket on the cabinet floor, against the left cabinet wall.
- Place the right bracket on the cabinet floor, against the right cabinet wall.

- Left bracket
- Right bracket
- For standard installation align the front flange of both left and right brackets to the front cabinet, using a flat surface as a tool.

- Front flanges“ of the bracket of Single Oven
For Flush installation: align the front aesthetic panel to the cabinet and place the bracket frontal flange against the rear side of the aesthetic panel.
Front aesthetic panel
- Front flanges“ of the bracket of Single Oven
- Be sure to fix the two brackets in a horizontal position aligned to each other.
- Once the bracket is aligned, screw the bracket to the side wall with twelve of the 4 x 12 mm screws.

- Screw the aesthetic panel to the front bracket flange using the remaining two 4 x 12 mm screws.

Complete Single Oven Installation
WARNING
Excessive Weight Hazard Use two or more people to move and install oven. Failure to do so can result in back or other injury.
- Using two or more people, lift the oven by the side handles located on the right and left side of the oven. Gently insert into the cabinet cutout. If using the trim kit, slide oven on top of the left and right brackets.

- Push against seal area of front frame to push oven into cabinet.

- Securely fasten oven to cabinet using the 4 x 25 mm self- tapping screws provided (1 on each side). Insert the screws through holes in mounting rails. Do not overtighten screws.

- 4 x 25 mm self-tapping screws
- Install the oven racks.
- Replace oven door by inserting both hanger arms into the door.

- Open the oven door. You should hear a “click” as the door is set into place.
- Move the hinge levers back to the locked position.
- Check that the door is free to open and close. If it is not, repeat the oven door removal process and installation procedures. See “Remove Oven Door” section.
- Reconnect power.
- On some models, the display panel will light briefly, and “PF” should appear in the display.
- If display panel does not light, please reference the “Assistance or Service” section of the Use and Care Guide or contact the dealer from whom you purchased your oven.
Double Oven Installation
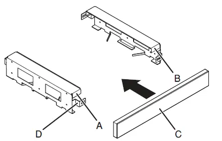
Trim Kit description:

- Left bracket
- Right bracket
- Front aesthetic panel
- Front flange of the bracket
NOTES:
- These instructions refer to “Upper Oven” and “Lower Oven”. The Lower Oven is identified by a label on top of the product.
- Connection will be made for both units to existing bare wire (Red to Red, Black to Black, etc) simultaneously.
- The junction box is not a supplied part. Standard 4″ x 4″ box can be used.
- The products is equipped with an electrical conduit that allows to place the Junction Box in the area measured 1304 mm from the bottom of the cabinet to top of the electrical box, across the entire width of the cabinet
- Electrician may be required to locate junction box out of the defined installation area.

A. Cabinet Opening
WARNING
Excessive Weight Hazard Use two or more people to move and install oven. Failure to do so can result in back or other injury.
- Using two or more people, lift the lower oven by the side handles located on the right and left side of the oven. Gently insert into the cabinet cutout.
- Place left bracket on top of the lower oven and against the left cabinet wall.
- Place right bracket on top of the lower oven and against the right cabinet wall.
IMPORTANT: Make sure there is contact between the lower oven and the lower flanges of the bracket.
NOTE: For bracket installation, the maximum interior cabinet width is 2311/16″ (60.1 cm).

- Left bracket
- Right bracket

A. Front flange of the bracket of Double Oven
For standard installation, align the front flange of both left and right brackets to the front cabinet, using a flat surface.

A. Front aesthetic panel
For Flush installation align the front aesthetic panel to the cabinet and place the bracket frontal flange against the rear side of the aesthetic panel
- Assure to fix the two brackets in an horizontal position and align one each other.
- Once the bracket is aligned, screw the bracket to the side wall with twelve of the 4 x 12 mm screws

- Place the spacer on top surface of the lower oven.
NOTE: Avoid unwanted fall of the parts inside the cabinet.
- Spacer
- Place the aesthetic panel on the spacer and align it horizontally with the lower oven.

- Front aesthetic panel
- Spacer
Spacer allows to have a uniform vertical gap distribution between the aesthetic panel and the lower oven. After fixing the aesthetic panel with screws, spacer can be removed
- Screw the aesthetic panel to the front flanges of the bracket using the remaining two 4 x 12 mm screws

The fixing slots on the front flanges of brackets allow to adjust vertical and horizontal position of the aesthetic panel to match overall alignment - Using two or more people, gently remove the lower oven outside the cabinet using the handles located on the right and left side of the oven.

- Using two or more people, lift the upper oven by the side handles located on the right and left side of the oven. Gently insert into the cabinet cutout, sliding it on top of the left and right brackets

- Push against seal area of front frame to push oven into cabinet.

- Using two or more people, gently move the lower oven by the side handles located on the right and left side of the oven and place on the floor near the cabinet opening.
- Feed conduit from Upper unit into electrical box.
- Feed conduit from Lower unit into electrical box.
- Go to the “Make Electrical Connection” section on page 8 and follow the instructions listed there. Proceed to the “Complete Double Oven Installation” section once electrical connections have been made.

Complete Double Oven Installation
WARNING Excessive Weight HazardUse two or more people to move and install oven.Failure to do so can result in back or other injury
- Using two or more people, lift the lower oven by the side handles located on the right and left side of the oven. Gently insert into the cabinet cutout

- Push against seal area of front frame to push oven into cabinet

- Securely fasten oven to cabinet using the two 4 x 25 mm self-tapping screws provided. Insert the screws through holes in mounting rails. Do not overtighten screws.

- 4 x 25 mm self-tapping screws
- Install the oven racks.
- Replace oven door by inserting both hanger arms into the door.

- Open the oven door. You should hear a “click” as the door is set into place.
- Move the hinge levers back to the locked position.
- Check that the door is free to open and close. If it is not, repeat the oven door removal process and installation procedures. See “Remove Oven Door” section.
- Reconnect power.
- On some models, the display panel will light briefly, and “PF” should appear in the display.
- If display panel does not light, please reference the “Assistance or Service” section of the Use and Care Guide or contact the dealer from whom you purchased your oven.
Final Installation Checklist
- Check that all parts are now installed. If there is an extra part, go back through the steps to see which step was skipped.
- Check that you have all of your tools.
- Dispose of/recycle all packaging materials.
- For oven use and cleaning, read the Use and Care Guide.
Check Operation
NOTE: Refer to the “Control Panel” and “Oven Functions” sections of the Use and Care Guide for steps 1 through 5.
- Press the On/Off keypad to turn the power On.
- When the oven is turned on for the first time, you will have to select the desired language and set the correct time.
- Select “Traditional” and then “Conventional.”
- Set the temperature.
- Press START.
If oven(s) does not operate, check the following:- Household fuse is intact and tight; or circuit breaker has not tripped.
- Electrical supply is connected.
- See “Troubleshooting” section in the Use and Care Guide
- When oven has been on for 5 minutes, feel for heat. If you do not feel heat, turn off the oven and contact a qualified technician.
- To set oven functions, refer to the Use and Care Guide.
If you need Assistance or Service:
Please reference the “Assistance or Service” section of the Use and Care Guide, or contact the dealer from whom you purchased your built-in oven.
®/™ ©2022 KitchenAid. All rights reserved. Used under license in Canada.






Front aesthetic panel


































