Café ™ 30″ Built-In Single Electric
Convection Wall Oven
CTS70DM2NS5
![]()
FEATURES & BENEFITS
Precision is the name of your cooking game
- Confidently try new recipes and perfectly execute your favorites, using a smart system that automatically tracks progress, modifies temperatures and adjusts cook times Brighten up life in the kitchen
- Easily navigate wall oven settings using a stunning full color display that adds an unexpected touch of style to your kitchen The perfect bake is now perfectly easy
- Achieve unrivaled performance with the only system that delivers top-down true convection for consistent results on special occasion favorites like roasts, chicken, turkey and more No preheat, no hassle
- Save time with a variety of precision cooking modes that eliminate the need for preheating Fried taste. Crisp texture. Less oil.
- Make your favorite “fried” foods healthy, thanks to a mode that crisps without using oil for frying Enjoy convenient temperature control from anywhere
- Preheat while running errands or change oven temperatures while doing yard work with the Cafe Appliances Kitchen app The oven rack that handles it all
- Easily remove heavy dishes with a roller rack that is specially designed to glide smoothly and stay in the oven during the selfclean cycle, so you never have to handle cumbersome racks again The perfect fit you’ve always dreamed of
- When you’re updating your kitchen, attention to detail is a priority. That’s why Café wall ovens are guaranteed for an exact fit or Café Appliances will pay up to $300 toward modifications.
APPEARANCE
| Color Appearance | Platinum |
| Oven Door Features | Big View Oven Window |
| Handle | Café Minimal Style Brushed Stainless |
| Installation | Above Warming Drawer Undercounter Under Cooktop Side-by-Side Under Built-In Advantium Under Built-In Microwave |
FEATURES
| Configuration | Single Oven |
| Cooking System | True European Convection with Direct Air |
| Oven Cleaning Type | Self-Clean with Steam Clean Option |
| Cleaning Time | Variable with Delay Clean Option |
| Oven Cooking Modes | Convection Bake Convection bake Multi-Rack Convection Broil Hi/Lo Convection Roast Thermal Bake Thermal Broil Hi/Lo Hot-Air Frying Keep Warm Proof Precision Cooking Modes Scan-to-Cook |
| Self-Clean Oven Door Lock | Automatic |
| Control Type | 7″ Full-Color Touch LCD Screen |
| Oven Features | 10-Pass Bake Element 10-Pass Dual Broil Element Closed Door Broiling |
| Oven Rack Features | 1 Never Scrub Roller Rack 1 Never Scrub Flat Rack 6 Embossed Rack Positions |
| 12-Hour Shut-Off Capability Audible Preheat Signal Auto Recipe Conversion C° or F° Programmable Sabbath Mode Control Lock Capability Cook Time Delay Time Electronic Clock & Kitchen Timer Temperature Probe | |
| WiFi Connect | Built-In |
| Connected Capabilities | Amazon Alexa The Google Assistant IFTTT Nest Drop Innit |
| Cooking Technology | Convection |
| Oven Interior | 2 Halogen Interior Oven Lights Black Gloss Finish Hidden Bake |
| CAPACITY | |
| Total Capacity (cubic feet) | 5.0 cu ft |
POWER / RATINGS
| Amp Rating at 208V | 20 |
| Amp Rating at 240V | 20 |
| Bake Wattage | 2850W |
| Broiler Wattage | 4300W |
| Convection Wattage | 2400W |
| KW Rating at 208V | 3.4 |
| KW Rating at 240V | 4.5 |
WEIGHTS & DIMENSIONS
| Approximate Shipping Weight | 177 lb |
| Net Weight | 161 lb |
| Overall Height | 28-5/8 in |
| Overall Width | 29-3/4 in |
| Overall Depth | 26-3/4 in |
| Cabinet Width | 30 in |
| Cutout Dimensions (W x H x D) (in.)) | 28-5/8 x 27-5/16 x 23-1/2 |
| Oven Interior Dimensions (W x H x D) (in.) | 25 x 17-3/8 x 20-1/4 |
OPTIONAL ACCESSORIES
| 30″ Never Scrub Roller Rack | UXWORXR30 |
| Large Broiler Pan | WB48X10056 |
| 60″ Replacement Electrical Conduit | WB18T10581 |
| 72″ Replacement Electrical Conduit | WB18T10578 |
WARRANTY
| Parts warranty | Limited 1-year entire appliance |
| Labor warranty | Limited 1-year entire appliance |
| Warranty notes | See written warranty for full details |
DIMENSIONS AND INSTALLATION INFORMATION
Single wall ovens are NOT approved for stacking above or below another single wall oven.
Wall coverings, countertops and cabinets surrounding the wall oven must be able to withstand a temperature of up to 200°F (94°C).
If the cabinet in which the wall oven is installed does not have a solid bottom, two braces or runners must be installed to support the weight of the oven. The runners and braces must support up to 220 lbs (99 kg).
Door handle protrudes 3″ from door face. Cabinets and drawers on adjacent 45° and 90° walls should be placed to avoid interference with the handle.
9-1/2″ MAX.
ATTENTION INSTALLER: Electric wall ovens are NOT approved for installation with a plug and receptacle. They must be hard wired into an approved junction box
Cutout depth 23-1/2″ MIN
IMPORTANT: Before installing, consult installation instructions packed with product for current dimensional data. 
| Cabinet | 30″ |
| A- Overlap of oven at top of cutout | 1-1/4″ |
| B – Overlap of oven other side of edge of cutout | 3/4″ |
| C – Overlap of oven at bottom of cutout | 1-1/4″ |
| Oven | |
| D – Install depth | 23-1/2″ |
| E – Overall height with trim | 28-5/8″ |
| F – Overall width | 29-3/4″ |
DIMENSIONS AND INSTALLATION INFORMATION
30″ Single electric wall ovens are approved for installation below a countertop, and below certain gas and electric cooktops. Refer to the Approved Combinations Matrix available at cafeappliances.com for specific information.
30″ Single electric wall ovens are approved for installation above 27″ and 30″warming drawers.
ATTENTION INSTALLER: Electric wall ovens are NOT approved for installation with a plug and receptacle. They must be hard wired into an approved junction box.
IMPORTANT: Before installing, consult installation instructions packed with ALL products for current dimensional and combination data.
SIDE-BY-SIDE INSTALLATION (TWO OVENS IN SEPARATE CUTOUTS)
NOTE: One cooktop may be centered over either oven in the side-by-side installation.
INSTALLATION BELOW A COOKTOP
IMPORTANT:
Maintain a minimum distance of 31 1/4″ from the top surface of the countertop to the wall oven platform to ensurethat the cooktop and wall oven do not interfere with ach
other (see picture).

UNDERCOUNTER INSTALLATION

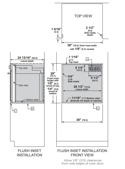
FLUSH INSET DIMENSIONS AND INSTALLATION INFORMATION
NOTES:
A Junction Box location (may also be located in an adjacent cabinet.
B Platform must be able to support 220 lbs (99 kg).
C Cabinet surfaces must be an appearance finished surface for flush installation.
D Cleats may be visible and should be finished to match cabinetry.
ATTENTION INSTALLER: Electric wall ovens are NOT approved for installation with
a plug and receptacle. They must be hard wired into an approved junction box.
IMPORTANT: Before installing, consult installation instructions packed with ALL products for current dimensional and combination data.

Dimension and installation information are shown in inches.
For answers to your Café™ product questions, visit our website at cafeappliances.com.
© 2022 GE Appliances P


















