Café Minimal Series 30″ Smart Built-In
Convection Single Wall Oven in Platinum Glass
CTS90DM2NS5
![]()
This model requires a one-time WiFi connection to download oven features and functionality enabled by software. Follow instructions on your LCD screen on how to connect.
FEATURES & BENEFITS
Built-In WiFi, Powered by SmartHQ App* – Manage all aspects of your kitchen with the help of the SmartHQ ™ App or your voice assistant. Personalized Features + pgrades * – Usher in the latest features by downloading cooking upgrades right to your oven, putting Air Fry and more in your repertoire. Create an easy-to-clean, contemporary look for your kitchen with the striking reflective glass finish.
Simply use your voice * to open the wall oven, so you can keep both hands on heavy dishes.
Monitor your food from your smart device thanks to a heat-resistant in-oven camera * , which syncs to the SmartHQ app.
Simplify the cooking process with precision cooking modes that automatically track progress, and make time and temperature adjustments.
Integrated hot air frying technology gives you crispy results in your oven without using oil.
Make homemade chips, spices and dehydrated fruits more easily than ever with a moisture-removing setting in your oven.
Eliminate the need for preheating and save time with a variety of precision cooking modes.
This oven features True European Convection, an advanced convection system that uses a third heating element and reversing fan for the highest level of heat and air circulation.
A precision temperature probe connects to the oven to ensure your food is properly cooked.
This oven will fit your existing cut-out, or GE Appliances will help pay for modifications up to $300. *Some features require continuous WiFi connection to use.
FEATURES
| Configuration | Single Oven |
| Cooking System | True European Convection with Direct Air |
| Oven Cleaning Type | Self-Clean with Steam Clean Option |
| Cleaning Time | Variable with Delay Clean Option |
| Oven Cooking Modes | Convection Bake Convection Bake Multi-Rack Convection Broil Hi/Lo Convection Roast Hot-Air Frying Precision Cooking Modes Thermal Bake Thermal Broil Hi/Lo |
| Self-Clean Oven Door Lock | Automatic |
| Control Type | 7″ Full-Color Touch LCD Screen |
| Oven Features | 10-Pass Bake Element 10-Pass Dual Broil Element Closed Door Broiling |
| Oven Rack Features | 2 Self-Clean Roller Racks 6 Embossed Rack Positions |
| Oven Control Features | 12-Hour Shut-Off Capability Audible Preheat Signal Auto Recipe Conversion Sabbath Mode Control Lock Capability Cook Time C° or F° Programmable Dehydration Delay Time Electronic Clock & Kitchen Timer Mis-Wire Detection Oven Camera Proof Mode Remote Enabled Scan-to-cook Temperature Probe Warm Mode |
| WiFi Connect | Built-In |
| Connected Capabilities | Amazon Alexa The Google Assistant IFTTT Nest Drop Innit |
| Cooking Technology | Convection |
| Oven Interior | 2 Halogen Interior Oven Lights Black Gloss Finish Hidden Bake |
| CAPACITY | |
| Total Capacity (cubic feet) | 5.0 cu ft |
| POWER / RATINGS | |
| Amp Rating at 208V | 20 |
| Amp Rating at 240V | 20 |
| Bake Wattage | 2,850W |
| Broiler Wattage | 4,300W |
| Convection Wattage | 2,400W |
| KW Rating at 208V | 3.4 |
| KW Rating at 240V | 4.5 |
| WEIGHTS & DIMENSIONS | |
| Approximate Shipping Weight | 177 lb |
| Net Weight | 161 lb |
| Overall Height | 28-5/8 in |
| Overall Width | 29-3/4 in |
| Overall Depth | 24-3/4 in |
| Cabinet Width | 30 in |
| Cutout Dimensions (W x H x D) (in.) | 28-5/8 x 27-5/16 x 23-1/2 |
| Oven Interior Dimensions (W x H x D) (in.) | 25 x 17-3/8 x 20-1/4 |
| APPEARANCE | |
| Color Appearance | Platinum Glass |
| Handle | Push-to-Open, Soft Open Hinges |
| Installation | 9-1/2″ Above Warming Drawer Side-by-Side Under Built-In Advantium Under Built-In MicrowaveFlush Inset |
| WARRANTY | |
| Parts warranty | Limited 1-year entire appliance |
| Labor warranty | Limited 1-year entire appliance |
| Warranty notes | See written warranty for full details |
DIMENSIONS AND INSTALLATION INFORMATION
Single wall ovens are NOT approved for stacking above or below another single wall oven or undercounter installation.
Conduit 48″ Wall coverings, countertops and cabinets surrounding the wall ovenmust be able to withstand a temperature of up to 200°F (94°C).
Conduit 48″ If the cabinet in which the wall oven is installed does not have a solid bottom, two braces or runners must be installed to support the weight of the oven. The runners and braces must support up to220 lbs (99 kg).
ATTENTION INSTALLER: Electric wall ovens are NOT approved for installation with a plug and receptacle. They must be hard wiredinto an approved junction box 22″ minimum door opening allowance 22″ minimum door opening allowance
IMPORTANT: Before installing, consult installation instructions packed with product for current dimensional data.


| Cabinet | 30″ |
| A – Overlap of oven at top of cutout | 1-1/4″ |
| B – Overlap of oven other side of edge of cutout | 3/4″ |
| C – Overlap of oven at bottom of cutout | 1-1/4″ |
| Oven | |
| D – Install depth | 24-3/4″ |
| E – Overall height with trim | 28-5/8″ |
| F – Overall width | 29-3/4″ |
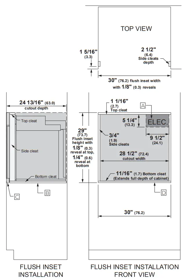
FLUSH INSET DIMENSIONS AND INSTALLATION INFORMATION
NOTES:
A Junction Box location (may also be located in an adjacent cabinet.
B Platform must be able to support 220 lbs (99 kg).
C Cabinet surfaces must be an appearance finished surface for flush installation.
D Cleats may be visible and should be finished to match cabinetry.
ATTENTION INSTALLER: Electric wall ovens are NOT approved for installation with a plug and receptacle. They must be hard wired into an approved junction box.
IMPORTANT: Before installing, consult installation instructions packed with ALL products for current dimensional and combination data.

Allow 1/8″ (0.3) clearances from side edges of oven door.
Dimension and installation information are shown in inches.
For answers to your Cafe™ product questions, visit our website at cafeappliances.com.
© 2022 GE Appliances



















