GE Profile PTS9000BN/SN 30 Inch Smart Built-In Convection Single Wall Oven

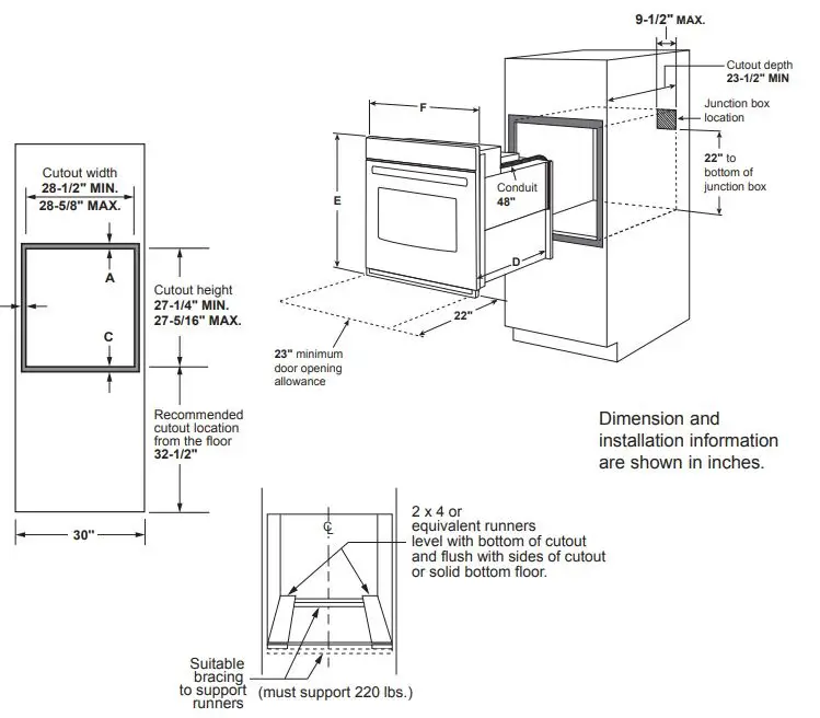
DIMENSIONS AND INSTALLATION INFORMATION

- NOTE: Single wall ovens are NOT approved for stacking above or below another single wall oven.
- NOTE: Wall coverings, countertops and cabinets surrounding the wall oven must be able to withstand a temperature of up to 200°F (94°C).
- NOTE: If the cabinet in which the wall oven is installed does not have a solid bottom, two braces or runners must be installed to support the weight of the oven. The runners and braces must support up to 220 lbs (99 kg).
- NOTE: Door handle protrudes 3″ from door face. Cabinets and drawers on adjacent 45° and 90° walls should be placed to avoid interference with the handle.
- ATTENTION INSTALLER: Electric wall ovens are NOT approved for installation with a plug and receptacle. They must be hard wired into an approved junction box.
- IMPORTANT: Before installing, consult installation instructions packed with product for current dimensional data.
| KW RATING | |
| 240V | 4.5 |
| 208V | 3.4 |
| BREAKER SIZE | |
| 240V | 20 Amps |
| 208V | 20 Amps |
| Cabinet | 30″ |
| A – Overlap of oven at top of cutout | 1″ |
| B – Overlap of oven other side of edge of cutout | 3/4″ |
| C – Overlap of oven at bottom of cutout | 1-1/4″ |
| Oven | |
| D – Install depth | 23-1/2″ |
| E – Overall height with trim | 28-5/8″ |
| F – Overall width | 29-3/4″ |
OPTIONAL UNDER COUNTER DIMENSIONS AND INSTALLATION INFORMATION

- NOTE: 30″ Single electric wall ovens are approved for installation below a countertop, and below certain gas and electric cooktops. Refer to the Approved Combinations Matrix available at geappliances.com for specific information.
- NOTE: 30″ Single electric wall ovens are approved for installation above 27″ and 30″ warming drawers.
- ATTENTION INSTALLER: Electric wall ovens are NOT approved for installation with a plug and receptacle. They must be hard wired into an approved junction box.
- IMPORTANT: Before installing, consult installation instructions packed with ALL products for current dimensional and combination data.
SIDE-BY-SIDE INSTALLATION (TWO OVENS IN SE Install two ovens in separate cutouts.PARATE CUTOUTS)

NOTE: One cooktop may be centered over eith oven in the side-by-side installation.
INSTALLATION BELOW A COOKTOP

IMPORTANT:
Maintain a minimum distance of 31 1/4″ from the top surface of the countertop to the wall oven platform to ensure that the cooktop and Nwall oven do not interfere with each other (see picture).
FEATURES AND BENEFITS
In-Oven CookCam™ – Check status from anywhere without opening the oven door with live streaming video of your food on your smartphone No Preheat Air Fry – Integrated hot air frying technology gives you crispy results in your oven without using oil (upper oven). Temperature Probe – A precision temperature probe connects to the oven to ensure your food is properly cooked. Dehydrate Mode – Make homemade chips, spices and dried fruits with a high-capacity dehydrator within your oven. Precision Cooking Modes* – Simplify the cooking process with precision cooking modes that automatically track progress, and make time and temperature adjustments (upper oven). Built-In WiFi, Powered by SmartHQ App – Connect, control and manage your oven from anywhere with your smartphone or tablet. GE Profile Connect + – Ensure your oven always has the latest features, like new Air Fry modes, with downloadable software updates. True European Convection with Direct Air – This oven features True European Convection, an advanced convection system that uses a third heating element and reversing fan for the highest level of heat and air circulation.
- No Preheat – Eliminate the need for preheating and save time with a variety of precision cooking modes.
- Full-Color Display – Easily navigate wall oven settings thanks to a 7″ touchscreen display.
- Soft-close door – Rest assured your oven door will always close softly, thanks to a special hinge that quietly eases it shut.
- Easy-Glide, Never-Scrub Rack – This smooth-gliding oven rack can be left in the oven during the self-clean cycle so you never have to scrub.
- Self-Clean with Steam Clean – This self-cleaning oven uses optional steam cleaning for light soils to clean the oven cavity with less heat and odor.
- 10-pass hidden bake element – Even baking is assured with heat that covers more surface area.
- 10-pass dual-broil element – Large and small dishes brown evenly with two, full-coverage elements.
- Fit Guarantee – This oven will fit your existing cut-out, or GE Appliances will help pay for modifications up to $300. Model PTS9000BNTS – Black Stainless
- Model PTS9000BNTS – Stainless Steel
GUARANTEED FIT
Replacing a similar wall oven from GE Appliances or another brand? GE wall ovens are guaranteed for an exact fit or GE Appliances will pay up to $300 toward modifications. Visit geappliances.com for more info




















