
General information
These instructions are intended for qualified contractors.
Note
These instructions only apply to the installation, commissioning and operation of a single appliance with a limited range of accessories. Read these instructions carefully before using the appliance and retain them for future reference. Pass on these
instructions to a new user if required.
Relevant documents
Operation VRL-C 300-870
Commissioning VRL-C 300-870
Further documents relating to this product can be found on our website www.stiebel-eltron.com.
Safety
Only a qualified contractor should carry out installation, commissioning, maintenance and repair of the appliance.
Contractors are responsible for adherence to all applicable regulations during installation and commissioning.
General safety instructions
We guarantee trouble-free function and operational reliability only if original accessories and spare parts intended for the appliance are used.
Instructions, standards and regulations
Note
Observe all applicable national and regional regulations and instructions.
WARNING Injury
In connection with the fire prevention regulations concerning the installation of ventilation systems, observe all country-specific regulations and requirements. In Germany, these are particularly the building regulation guideline on fire prevention requirements of ventilation systems in its applicable version.
Test symbols
See type plate on the appliance.
Operation of the appliance in buildings with combustion equipment The term “combustion equipment” used below includes, for example, tiled stoves, fireplaces and equipment with gas combustion.
WARNING Injury
Ventilation units can generate negative pressure in the dwelling. If combustion equipment is operating at the same time, combustion exhaust gases can penetrate the combustion equipment installation room. It is therefore important to observe a number of points for simultaneous operation of a ventilation unit and combustion equipment.
The engineering, installation and operation of the ventilation unit and combustion equipment must be carried out in accordance with national and regional regulations.
Planning safety measures
Together with the relevant authorities, engineers plan the safety measures that are required for simultaneous operation of a ventilation unit and combustion equipment.
Alternate operation
Alternate operation means that, when the combustion equipment is started, the mechanical ventilation system is switched off and/ or cannot be started. Alternate operation must be ensured by appropriate measures, e.g. automatically enforced shutdown of the ventilation unit.
Simultaneous operation
For simultaneous operation of combustion equipment and a mechanical ventilation system, we recommend choosing approved room sealed combustion equipment (in Germany, with DIBt approval). If open flue combustion equipment is operated in the dwelling at the same time as a ventilation unit, combustion exhaust gases must be prevented from penetrating the home as a result of possible negative pressure in the room. The ventilation unit may only be operated in combination with intrinsically safe combustion equipment. This combustion equipment has, for example, a draught hood or an exhaust gas monitor and is permitted to be operated in conjunction with ventilation units. Alternatively, external, tested safety equipment can be connected to monitor the operation of the combustion equipment. For example, you can install differential pressure monitoring to monitor the chimney draught and to switch off the ventilation unit in the event of a fault.
The equipment for differential pressure monitoring must fulfil the following requirements:
- Monitoring of the differential pressure between the connection piece to the chimney and the combustion equipment installation room
- Possibility of matching the shutdown value for the differential pressure to the minimum draught requirement for the combustion equipment
- Floating contact to switch off the ventilation function
- Optional connection of a temperature capturing device so that differential pressure monitoring is only enabled when the combustion equipment is in operation and so that unwanted shutdowns due to environmental influences can be prevented
Note
Differential pressure switches that use the pressure differential between the outdoor air pressure and the pressure in the combustion equipment installation room as a
response criterion are not suitable. We recommend installing and regularly maintaining a carbon monoxide detector in accordance with EN 50291 for operation of any combustion equipment.
Commissioning
When commissioning the ventilation unit, it is important to check and document in the commissioning log that combustion exhaust gases are not penetrating the dwelling in a quantity that is harmful to health.
Commissioning in Germany
Acceptance is carried out by the local flue gas inspector.
Commissioning outside Germany
Acceptance must be carried out by a specialist. In case of doubt, you must involve an independent expert in the acceptance procedure.
Maintenance
Regular maintenance of the combustion equipment is prescribed. Maintenance includes checking the exhaust gas extraction system, the free pipe cross-sections and the safety equipment. The relevant qualified contractor responsible must prove that there is a sufficient flow of combustion air.
Appliance description
Standard delivery
- Ventilation unit with standard plug
- Installation instructions
- Commissioning instructions
- Operating instructions
Required accessories
- Hardwired programming unit for wall mounting on finished walls with 15 m modular control cable
- C or Z profile rail system
Additional accessories
- Frame for wall connection
- CO2 sensor
- VOC sensor
- Motion sensor
- External covers
You can obtain ventilation pipes, extract air and supply air vents and similar accessories from us.
Preparations
Transport
Material losses
- If possible, transport the appliance to the installation location in its original packaging.
- If the appliance is transported without packing and without using a pallet, its outer casing may be damaged.
- Make sure that no objects drill through the outer envelope of the appliance.
- Position the appliance so that it is free from vibrations.
Material losses
Never use the air connections as handles for carrying the appliance.
Storage
Material losses
Never store the appliance in dusty places.
Installation site
Material losses
The appliance is not approved for outdoor installation.
Material losses
Check whether the ceiling can bear the weight of the appliance.
Material losses
The installation room must be free from the risk of frost.
Observe the following conditions:
- Install the appliance horizontally.
- To avoid heat losses, install the appliance close to the ducting running through the thermally insulated building envelope.
- Complete all on-site work before installation, as the ventilation unit cannot be moved again once the pipes are connected.
- Observe the minimum clearances in front of, to the side of and underneath the appliance. The electrical control panel on the appliance must be accessible. Pay attention to the pivoting range of the open appliance cover.
- The appliance is not suitable for the mounting or attachment of other objects.
- In the case of appliance versions with a supply air grille, check that there is no obstruction in front of the supply air grille that could lead to disruptions in the flow.
- If increased sound insulation is required, use suitable fixing materials to insulate the appliance from the wall and ceiling.
- Make the insulation on the outdoor and exhaust air lines vapour diffusion-proof. If insulation is not carried out correctly, this can cause condensation to form, damage the fabric of the building and result in energy losses.
- To prevent condensation forming and avoid increased sound transmission, use the fixing collars with an insulating insert.
- In the case of roof outlets, ensure that no condensate can enter from outside or collect in the roof boards. Observe local installation guidelines regarding snow and rain loads.
- For operational reliability, use our external covers.
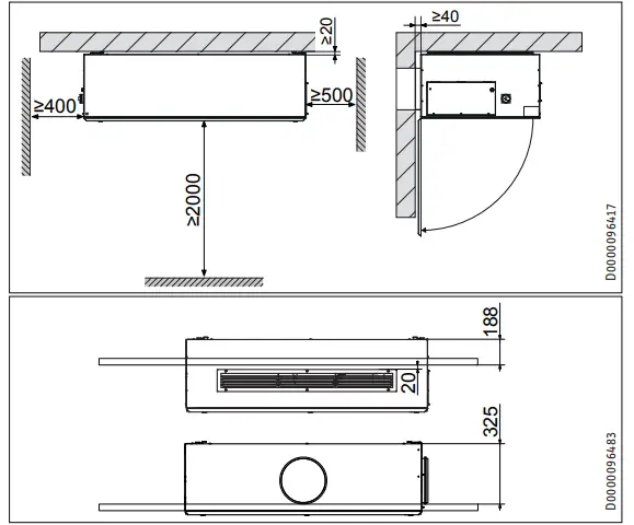
Minimum clearances
Appliance with grille: the suspended ceiling must be above the grille. Appliance with duct connection: the suspended ceiling must be below the connections for extract air and supply air.
Preparing for installation
- Design the cable routing.
- Prepare the condensate drain pipe.
- Prepare the programming unit installation location. Observe the maximum cable length.
Installation
WARNING Electrocution
Do not install the appliance if it is damaged and there is a risk that live components could be touched.
- Check the appliance for external damage.
Material losses
- Check whether the ceiling can bear the weight of the appliance. Observe the maximum load per fixing point.
Material losses
- Always install the appliance horizontally so that any condensate arising can flow into the condensate drain.
Note
Install the appliance before mounting the ceiling panels of the suspended ceiling. When positioning the appliance, ensure there is sufficient space to install the supply and extract air ducts (see chapter “Preparations / Installation site / Minimum clearances”).
Determining the installation position
- Select the mounting system based on the installation position. The distance between the ceiling and the appliance with Z profile rails is 20 mm.


External wall outlets
Install the outdoor air intake into the building at a location where contamination (dust, soot, odours, flue gas, exhaust air) is as low as possible.
Drilling core holes for outdoor air and exhaust air
Material losses
Install wall outlets with a slight slope to the outside. An internal fall can cause damage due to damp in the building. If the appliance is not connected directly to the external wall, the fall is also required for the ducting between the appliance and external wall.
- Drill the core holes.
- Install the pipes as wall outlets.
To enable any condensate to drain to the outside and prevent it from permeating the wall, the pipes must be installed through the entire wall thickness.
Material losses
When warm air meets cold surfaces, condensation can result.
- Insulate the wall outlet.
Installing the appliance
Z profile rail system
- For anti-vibration insulation, place the provided sealing tape between the appliance and the profile rail and between the ceiling and the profile rail.
- Secure two profile rails to the appliance.
- Secure two profile rails below the ceiling. Use suitable fixing materials in all drill holes. The precise positioning can be found in the dimensioned drawing for the appliance.
Material losses
- When the appliance is hooked in on one side, sudden dropping of the appliance on the side that has not yet been hooked in can cause damage to the mounting system, appliance or ceiling structure.
- Lift the appliance below the ceiling. Take note of the weight of the appliance and ensure sufficient personnel are available. Use lifting gear if required.

- Carefully push together the profile rails until the back-facing connectors are inserted into the wall outlets.
Once hooked in, the appliance can still be moved a few millimetres sideways. When properly installed, the tabs on the profile rails prevent sideways slippage.
C profile rail system
- Profile rail
- Threaded rod M8
- Angled bracket
- Secure two profile rails below the ceiling. Use suitable fixing materials in all drill holes. The precise positioning can be found in the dimensioned drawing for the appliance.

- Profile rail
- Threaded pin
- Locking bolt
- Washer
- Nut

If the design includes a suspended ceiling, install the suspended ceiling after installing the profile rails. The openings for the threaded rods must compensate for movements without transferring any stresses or vibrations to the suspended ceiling panels.
- Threaded rod M8
- Angled bracket (Z-shaped)
- Anti-vibration mounts
- Hexagon nut M8 (2 pce)
- Hexagon bolt (M8 x 25)
- Spring washer
- Washer
- Fit the angled brackets on to the appliance with a washer, spring washer and hexagon bolt.
Material losses
- When one threaded rod has been installed, sudden dropping of the appliance on the side that has not yet been installed can cause damage to the mounting system, appliance or ceiling structure.
- Lift the appliance below the ceiling. Take note of the weight of the appliance and ensure sufficient personnel are available. Use lifting gear if required.
- Insert the threaded rods into the angled brackets.
- Screw the angled brackets to the threaded rods and anti-vibration mount and two hexagon nuts.
- Use a spirit level to check whether the appliance is level horizontally.
- Rotate the hexagon nuts to align the appliance horizontally.
- To avoid overloading individual fixing points, ensure that the appliance is evenly supported at all fixing points.
- After alignment, secure the hexagon nuts on the threaded rods with the second hexagon nuts.
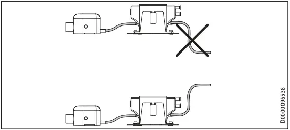
Condensate drain hose
Material losses
The appliance contains a condensate pump. To avoid damage to the appliance or the fabric of the building, a condensate drain hose must be connected. To ensure the condensate drains properly, never kink the condensate drain hose during installation. The appliance must be installed horizontally. Lay the condensate drain hose with a fall of at least 10 %. The condensate must drain away via the domestic sewer system or exhaust air connection.
To prevent any backing-up, the condensate must be able to drain freely at the end of the condensate hose. The open end must discharge above the appliance into an open outlet or be routed into a hose with a larger diameter. If this is not taken into consideration, the float chamber may be completely emptied. Possible consequences are noise development and a shortened condensate pump service life.
Option: routing the condensate drain hose out at the back or through the exhaust air connection
In the delivered condition, a condensate drain hose is installed and routed out of the appliance at the top. If required based on local conditions, you can route the condensate drain hose through the cable entry from the back of the appliance or into the exhaust air duct.
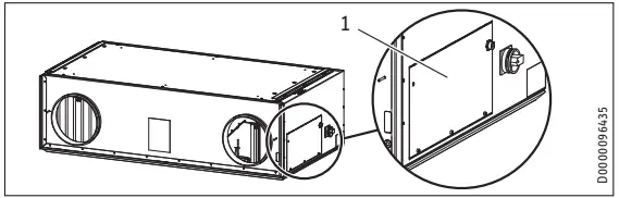
1 Control panel cover
Undo the screws and remove the control panel cover.
- Condensate and cable entry (top)
- Condensate and cable entry (back)
Condensate drain hose in cable entry (back)
- Pull the condensate drain hose back into the control panel.
- Use a screwdriver, for example, to poke a hole in the grommet of the condensate entry.
- Route the condensate drain hose through the grommet.
Condensate drain hose in exhaust air connection
WARNING Injury
Ensure that no risk of slipping due to wet conditions or ice formation occurs on adjacent footpaths and driveways at low temperatures.
Note
If the exhaust air outlet is installed in the roof, the condensate should not be drained through the “Exhaust air” connection.
- Pull the condensate drain hose back into the control panel.
- Reach into the appliance through the exhaust air connection.
- Pull the condensate drain hose into the exhaust air chamber.
- Route the condensate drain hose through the “Exhaust air” connection to the outside of the building.
Material losses
Routing the condensate drain hose to the outside through the exhaust air connection can result in traces of condensate on the external cladding of the building.
Air ducts
Material losses
Never connect cooker hoods or dryers to the ventilation system.
Material losses
During installation, ensure that no metal swarf enters the pipework. However, should this occur, remove this debris, otherwise the fans may be damaged.
Insulation against condensation
Material losses
When warm air meets cold surfaces, condensation can result.
- For outdoor air and exhaust air ducts, use vapour proof thermally insulated pipes.
- If the supply and extract air ducts are routed through unheated rooms, insulate these ducts as well.
Connecting air ducts to the appliance
- Push the air duct onto the air connection.
Overflow apertures
Living rooms and bedrooms are only supplied with air. Air is only extracted from rooms where odours and moisture are generated. Ensure an unimpeded overflow and consequently air balancing. Install ventilation grilles in internal doors or walls, or enlarge the air gap beneath the door to ≥ 8 mm.
Cleaning apertures
Fit cleaning apertures when installing the air ducts, so that the air ducts can be inspected and cleaned at regular intervals.
External cover
- External cover
- Bird guard
- Screw
- Sealing tape
Option: CO2 or VOC sensor
Note
Never position the sensor in the supply air flow or close to windows or external doors.
Option: Motion sensor
- Install the motion sensor in an appropriate place.
Installing the programming unit
1 Wall mounting bracket
2 Flat-head self-tapping screw
3 Electronics module
4 Self-tapping screw
5 Fascia
Wall mounting
- Cable entry
- Remove the cover and the electronics module from the wall mounting bracket.
- Route the programming unit connecting cable through the cable entry in the wall mounting bracket.
- Secure the wall mounting bracket to the wall with two screws.
Material losses
Ensure that the connecting cable is zero volt.
- Connect the connecting cable to the back of the electronics module.
- Press the electronics module into the wall mounting bracket until it clicks into place. Secure the electronics module using the two screws provided.
- Press the cover onto the electronics module until it clicks into place. Safety equipment for stove/fireplace operation
- Install the safety equipment in such a way that it interrupts the appliance power supply when required.
Electrical connection
WARNING Electrocution
- Only qualified contractors may carry out the connection in accordance with these instructions. Carry out all electrical connection and installation work in accordance with
- national and regional regulations.
- Do not install the appliance if it is damaged and there is a risk that live components could be touched.
- Check the appliance for external damage.
- Before any work on the appliance, isolate the connecting cables in the control panel. Secure the power supply against unintentional reconnection.
- Use RCDs of type A or B tripping on residual pulsating direct current.
- The appliance is delivered with a power cable with a standard plug. In the case of a permanent connection, the appliance must be able to be separated from the power supply by an isolator that disconnects all poles with at least 3 mm contact separation.
Material losses
Observe the fuse protection required for the appliance (see chapter “Specification / Data table”).
Material losses
The specified voltage must match the mains voltage. Observe the type plate.
Note
- Observe the wiring diagram. See chapter “Specification”.
- Never make any modifications to the internal equipment electrics or controls.

- Rear
- Condensate and cable entry (top)
- Condensate and cable entry (back)
In the delivered condition, the power cable and cables for external control components are routed out of the appliance through the cable entry at the top.
Option: routing cables out at the back
If required based on local conditions, you can route the electrical cables out through the back of the appliance.
- Control panel cover
- Undo the screws and remove the control panel cover.
- Carefully push the small metal panels out of the cable entry at the back of the appliance casing.
- To avoid damaging the cables, insert the cable protection ring from the cable entry at the top into the cable entry at the back.
- If you are using both cable entries, you must install a second cable protection ring on site.
Connecting cable from the programming unit to the appliance
- Route the connecting cable for the programming unit and the cables for external control components through the prepared cable entry.
- Connect the programming unit to the appliance.
- Distance between programming unit and appliance > 15 m:
- To enable a connection length of up to 200 m, use a screened cable.
- Connect the programming unit with a 6-pole cable (LiYCY) and a type RJ12/6/6 plug in the appliance. See wiring diagram in chapter “Specification”.
- Before closing the control panel, plug the earth connection into the control panel cover.
Appliance with grille
- Plug the connecting cable into the socket in the control panel cover.
Appliance with duct connection
- Route the connecting cable through the opening in the control panel cover or the cable entry at the top or at the back.
- Plug the connecting cable into the socket on the controller PCB. See wiring diagram in chapter “Specification”.
Commissioning
WARNING Injury
- Incorrect commissioning can lead to injury or damage to the system or building.
- If the unit is switched on without the air ducts connected and someone reaches through the air connectors into the unit, there is a risk of injury.
- Do not commission the unit until the air ducts are firmly connected to it.
- Never operate the appliance without filters.
- Never operate the ventilation system if there are high levels of dust inside the building or outside, as this could block the filter.
Initial start-up
We recommend having commissioning carried out by our service department.
- In the case of appliances with grilles for extract and exhaust air, adjust the fins in a way that ensures optimum air distribution.
Appliance handover
- Explain the appliance function to users and familiarise them with how it works.
- Make users aware of potential dangers.
- Hand over these instructions.
Recommissioning
- Check whether filters are fitted in the appliance. Never operate the appliance without filters.
- Check whether the condensate drain hose is damaged or kinked.
Shutting down the system
We recommend running the appliance in fan stage 1, even during prolonged absence.
Material losses
If you interrupt the power supply to the appliance, check that humidity protection is ensured for the building. If the appliance needs to be taken out of use for an extended period, disconnect it from the power supply.
Maintenance
WARNING Electrocution
Disconnect the appliance from the power supply before carrying out work inside the appliance.
Activity Maintenance interval (in years)
- Cleaning the heat exchanger and condensate pan 1
- Condensate drain 1
- Air ducts 3
Cleaning the heat exchanger and condensate pan
- Open the appliance cover. See chapter “Opening the appliance cover” in the operating instructions. VRL-C 300:

- Heat exchanger
- Reheating coil (not installed in some appliances)
- Fixing screws for heat exchanger retainer
- Condensate pan fixing screws
- Condensate pan
- Condensate pan fixing screws
- Mounting bracket for heat exchanger
VRL-C 625, VRL-C 870:
- Heat exchanger
- Reheating coil (not installed in some appliances)
- Fixing screws for heat exchanger retainer
- Condensate pan fixing screws
- Condensate pan
- Mounting bracket for heat exchanger
- Undo the fixing screws for the heat exchanger retainer.
- Pull the heat exchanger retainer down and out.
- Undo the fixing screws of the condensate pan.
Material losses
- Remove the condensate pan from the appliance carefully as it may still contain water.
- VRL-C 300: Undo the fixing screws at the end of the condensate pan.
- VRL-C 625, VRL-C 870: The condensate pan is pushed horizontally on to a bolt on the exhaust air fan side. Carefully pull the condensate pan towards the heat exchanger.
- Carefully tilt the condensate pan down and pull the condensate pan towards the heat exchanger.
- Remove the condensate pump float from its retainer in the condensate pan.
- Remove the condensate pan from the appliance.
- Carefully clean the condensate pan with lukewarm water.
- The heat exchanger weighs approx. 20 kg.
- During removal, take the weight of the heat exchanger into consideration.
- Use suitable load-handling equipment.
- When removing and cleaning the heat exchanger, take care not to damage the heat exchanger fins.
- Undo the fixing screws for the reheating coil.
- Never expose the reheating coil wiring to any tensile load.
- Never allow the reheating coil to hang by the wiring.
- VRL-C 300: Undo the screws on the heat exchanger mounting brackets.
- VRL-C 625, VRL-C 870: Undo the screws on the heat exchanger mounting bracket.
- To install the heat exchanger with the same orientation at a later time, mark the installation position of the heat exchanger before removing it.
- Carefully remove the heat exchanger from the unit. Do not let it fall.
- Use a commercially available vacuum cleaner to remove dust and other loose dirt particles from the intake and discharge surfaces.
- If required, clean the heat exchanger with warm water (max. 55 °C) and a commercially available detergent. Do not use solvents.
- Flush the heat exchanger with water.
- Allow the heat exchanger to dry completely
Condensate drain
Material losses
A blocked condensate drain can cause appliance faults. If the condensate drain is blocked, condensate can escape from the appliance in an uncontrolled manner and cause water damage.
Air ducts
Air ducts must be checked at regular intervals and cleaned if necessary. Disconnect the air ducts from the appliance or carry out inspection and cleaning through the extract air and supply air vents.
Disposal
Removal
WARNING Electrocution
Disconnect the appliance from the power supply. The following tools are required for disassembly and material separation prior to disposal:
- Personal protective equipment
- Set of screwdrivers
- Set of spanners
- Combi pliers
- Stanley knife
Specification
Dimensions and connections
Extract air and supply air with grille
VRL-C 300 G Premium, VRL-C 300 G Trend

VRL-C 625 G Premium, VRL-C 870 G Premium, VRL-C 625 G Trend, VRL-C 870 G Trend

Extract air and supply air with duct connection
VRL-C 300 D Premium, VRL-C 300 D Trend

VRL-C 625 D Premium, VRL-C 870 D Premium, VRL-C 625 D Trend, VRL-C 870 D Trend


Wiring diagram for external connections
- A1 Controllers
- A9 Programming unit
- X1 Terminal strip
- M6 Hydraulic reheating coil
- S1 Door contact switch
- S2 ON/OFF switch
- B1 C02 sensor
- B2 Motion sensor (PIR)
- B3 Humidity sensor
Data table
Appliance with grille
Appliance with duct connection



























