EO9060XL9M Built In Oven
User Manual
Welcome
| Residential Group | Congratulations on purchasing your new Built-in Oven. The Esatto brand is proudly distributed within Australia by Residentia Group Pty Ltd. |
| Head Office 165 Barkly Avenue Burnley, Victoria Australia 3121 | Please refer to the warranty card at the rear of this manual for information regarding your product’s parts and labour warranty, or visit us online at: www.residentia.group |
| ACN 600 546 656 | At Residentia Group, we are customer obsessed and our Support Team are there to ensure you get the most out of your appliance. Should you want to learn more about your new oven, it’s features or importantly taking care of the appliance, our Support Team are here to help. |
| Online residentia.group www.esatto.house | You can use our online Support Centre at anytime by visiting: http://support.residentiagroup.com.au Or you can contact us via phone by dialing: 1300 11 HELP (4357). |
| Postage PO Box 5177 Burnley, Victoria Australia 3121 | It is important that you read through the following use and care manual thoroughly to familiarise yourself with the installation and operation requirements of your appliance to ensure optimum performance. |
| Telephone 1300 11 4357 | Again, thank you for choosing an Esatto appliance and we look forward to being of service to you. |
Kind Regards,
The Residentia Team
Safety Instructions
IMPORTANT SAFETY INSTRUCTIONS
READ CAREFULLY AND KEEP FOR FUTURE REFERENCE
Read this manual thoroughly before first use, even if you are familiar with this type of product. The safety precautions enclosed herein reduce the risk of fire, electric shock and injury when correctly adhered to. Make sure you understand all instructions and warnings.
Keep the manual in a safe place for future reference, along with the completed warranty card and purchase receipt. If you sell or transfer ownership of this product, pass on these instructions to the new owner.
Always follow basic safety precautions and accident prevention measures when using an electrical appliance. The following statements you will see in this booklet have these meanings:
WARNING: Indicating information concerning your personal safety.
CAUTION: Indicating information on how to avoid damaging the appliance or cabinetry.
IMPORTANT: Indicating tips and information about use of the appliance.
USAGE CONDITIONS AND RESTRICTIONS
- Domestic use only: This appliance is intended for indoor household use only. It is not intended for commercial, industrial or outdoor use. It is not intended for use in a recreational vehicle.
- Purpose: Do not use this appliance for anything other than its intended purpose. Other uses are not recommended and may cause fire, electric shock or personal injury.
- Attachments: The use of attachments is not recommended by the appliance manufacturer and distributor as they may be hazardous.
- Improper use: Damage due to improper use, or repairs made by unqualified personnel will void your warranty. We assume no liability for any eventual damages caused by misuse of the product or noncompliance with these instructions.
BEFORE USING YOUR APPLIANCE
This manual explains the proper use of your new Esatto oven. Please read this manual carefully before using the product. This manual should be kept in a safe place for handy reference.
This oven is a domestic appliance which has been manufactured and tested to comply with Australian and New Zealand Standards.
This oven must only be installed in accordance with the instructions provided. Incorrect installation may cause harm to persons, damage property and void the product’s warranty.
Read the following carefully to avoid damage or injury.
IMPORTANT: Check for any damage or marks. If you find the appliance is damaged or marked, you must report it within 7 days if you wish to claim for damage/marks under the manufacturer’s warranty. This does not affect your statutory rights.
SAFETY INSTRUCTIONS
- Before the installation and use of the appliance, carefully read the supplied instructions.
- The manufacturer is not responsible if an incorrect installation and use causes injuries and damages.
- Always keep the instructions with your appliance for future reference.
- Do not use the oven unless you are wearing something on your feet. Do not touch the oven with wet or damp hands or feet.
- Some parts of appliance may keep its heat for a long time; it is required to wait for it to cool down before touching onto the points that are exposed to the heat directly.
- If you will not use the appliance for a long time, it is advised to turn the plug off.
WARNING: To prevent any damages to your and others’ life or property, you have to follow the safety notes.
WARNING: Caution, risk of fire! - Do not store items on the cooking surfaces.
- This appliance is intended for cooking. It should not be used for other purposes like heating a room.
- Ensure that the oven door is completely closed after putting food inside the oven.
CHILDREN & VULNERABLE PEOPLE SAFETY
WARNING: Risk of suffocation, injury or permanent disability.
- This appliance can be used by children aged from 8 years and above and persons with reduced physical, sensory or mental capabilities or lack of experience and knowledge if they have been given supervision or instruction for the operation of the appliance by a person who is responsible for their safety.
- The accessible parts may be hot during use.
- Do not let children play with the appliance.
- Keep all packaging away from children.
- Keep all detergents away from children.
- Keep children and pets away from the appliance door when it is open.
- Do not allow children to go near the oven when it is operating, especially when the grill is on.
- Cleaning and user maintenance shall not be made by children without supervision.
BEFORE INSTALLATION
- Remove all the packaging.
- Do not install or use a damaged appliance.
- Always move the appliance cautiously. Do not use the machine door or the handle of oven, to lift the appliance.
- When the oven is first switched on, it may give off an unpleasant smell. This is due to the bonding agent used for the insulating panels within the oven. Please run the new empty oven with the conventional cooking function, 240 °C for 45 minutes to clean oil impurities inside the cavity.
- During the first time use, it is completely normal that the oven will show slight signs of smoke and unpleasant odours. Please wait for the smell to clear before putting food into the oven.
- Please use this product under the open environment.
- The appliance and its accessible parts become hot during use. Care should be taken to avoid touching heating elements.
- If the surface is cracked, switch off the appliance to avoid the possibility of electric shock.
- During use, the appliance becomes very hot. Care should be taken to avoid touching heating elements inside the oven.
- Ensure that the appliance is switched off before replacing the oven lamp to avoid the possibility of electric shock.
- The means for disconnection must be incorporated in the fixed wiring in accordance with the wiring specifications.
- Accessible parts may become hot during use.
- An all-pole disconnection means must be incorporated in the fixed wiring in accordance with the wiring rules.
- Cable fixing point shall be protected.
- The appliance must be installed by an authorised technician and put into use. The manufacturer is not responsible for any damage that might be caused by defective placement, and installation by unauthorised personnel. Please contact 1300 11 HELP (4357) to arrange an authorised technician.
ELECTRICAL CONNECTION
CAUTION: Risk of fire and electrical shock!
- This oven must be installed and connected to its place correctly according to manufacturer instructions and by an authorised service.
- In the case of a fire, NEVER try to put out the fire with water. Only shut down the device circuit and then cover the flame with a cover or a fire blanket.
- Appliance must be installed in an oven enclosure providing high ventilation.
- Electrical connections of the appliance must be made only via sockets having earth system furnished in compliance with rules. Contact an authorised electrician if there is no socket complying with the earthed system at where appliance will be placed. Manufacturing company is by no means responsible for damage resulting from connection of non-earthed sockets to appliance.
- Plug of your oven must be earthed; ensure that socket for the plug is earthed. Plug must be located in a place that can be accessed after installation.
- Your oven has been manufactured as 220-240 V 50/60 Hz. AC power supply compliant and requires a 16 Amp fuse. If your power network is different that these indicated values, refer to an electrician or your authorised service.
- When you need to replace the electrical fuse, please ensure that electrical connection is made as follows:
• Phase (to live terminal) brown cable
• Blue cable to neutral terminal
• Yellow-green cable to earth terminal - Oven disconnecting switches must be in an accessible place for final user while oven is in its place.
- Power supply cable (plug in cable) mustn’t touch hot parts of the appliance.
- If supply cord (plug in cable) is damaged, this cord must be replaced by the importer or its service agent or an equally competent personnel to prevent a hazardous situation.
WARNING: If the supply cord is damaged, it must be replaced by the manufacturer or its service agent or similarly qualified person in order to avoid a hazard.
WARNING: All electrical work must be done in accordance with local and national electrical codes as applicable and should be undertaken by licenced and qualified persons only. Failure to follow these instructions can result in death, fire or electrical shock.
APPLIANCE USE
WARNING: Risk of fire, explosion, electric shock or damage to the appliance.
- Use this appliance in a household only.
- Do not change the specification of this oven.
- Do not sit or stand on the open door.
- Please do not close the machine door with excessive force
- When the door or drawer of oven is open do not leave anything on it, you may unbalance your appliance or break the door.
- The appliances are not intended to be operated by means of an external timer or separate remote control system.
- The instructions for ovens that have shelves shall include details indicating the correct installations of the shelves.
CARE & CLEANING
CAUTION: Risk of injury or damage to the oven.
- Before maintenance, deactivate the appliance and disconnect the mains plug.
- Do not use a steam cleaner on the appliance.
- Clean the appliance with a moist soft cloth. Only use neutral detergents. Do not use abrasive products, abrasive cleaning pads, solvents or metal objects.
- Do not use harsh abrasive cleaners or sharp metal scrapers to clean the oven door glass since they can scratch the surface, which may result in shattering of the glass.
UNPACKING
During transportation, protective packaging was used to protect the appliance against any damage. After unpacking, please dispose of all elements of packaging in a way that will not cause damage to the environment.
All materials used for packaging the appliance are environmentally friendly; they are 100% recyclable and are marked with the appropriate symbol.
CAUTION: During unpacking, the packaging materials (polythene bags, polystyrene pieces, etc.) should be kept out of reach of children.
HANDLING & TRANSPORTATION
- Do not use the door and/or handle to carry or move the appliance.
- Carry out the movement and transportation in the original packaging if possible.
- Pay maximum attention to the appliance while loading/unloading and handling.
- Make sure that the packaging is securely closed during handling and transportation.
- Protect from external factors (such as humidity, water, etc.) that may damage the packaging.
- Be careful not to damage the appliance due to bumps, crashes, drops, etc. while handling and transporting and not to break or deform it during operation.
DISPOSAL OF THE APPLIANCE
- Disconnect the appliance from the mains supply.
- Cut off the mains cable and discard it.
- Remove the door catch to prevent children and pets to get closed in the appliance.
Old appliances should not simply be disposed of with normal household waste and should be delivered to a collection and recycling centre for electric and electronic equipment. A symbol shown on the product, the instruction manual or the packaging shows that it is suitable for recycling.
Materials used inside the appliance are recyclable and are labelled with information concerning this. By recycling materials or other parts from used devices you are making a significant contribution to the protection of our environment.
Information on appropriate disposal centres for used devices can be provided by your local authority.![]()
DECLARATION OF COMPLIANCE
When you have unpacked the oven, make sure that it has not been damaged in any way. If you have any doubts at all, do not use it: contact a professionally qualified person. Keep packing materials such as plastic bags, polystyrene, or nails out of the reach of children because these are dangerous to children.
Installation Instructions
INSTALLATION WARNINGS
Ensure that electrical installation is suitable for the operation the appliance. If not, call an electrician and plumber to make necessary arrangements. Manufacturing firm can’t be hold responsible for damages to arise due to operations by unauthorised people and product warranty becomes void.
WARNING: It is customer’s responsibility to prepare the location the product shall be placed on and also have power utility prepared.
WARNING: The rules about electrical local standards must be adhered to during product installation.
WARNING: Check for any damage on the product before installing it. Do not have product installed if it’s damaged. Damaged products pose danger for your safety.
INSTALLATION CONSIDERATIONS:
- Cooling fan shall take extra steam out and prevent outer surfaces of appliance from overheating during operation of oven.
This is a necessary condition for better appliance operation and better cooking. - Cooling fan shall continue operation after cooking is finished. Fan shall automatically stop after cooling is completed.
- A clearance must be left behind the enclosure where you’ll place the appliance for efficient and good operation.
- This clearance shouldn’t be ignored as it’s required for ventilation system of the appliance to operate.
INSTALLATION LOCATION
- Product has been designed to be mounted to worktops procured from market. A safe distance must be left between the product and kitchen walls or furniture. See the diagrams on the following pages for proper distances (values in mm).
- Used surfaces, synthetic laminates and adhesives must be heat resistant. (minimum 100°C)
- Kitchen cupboards must be level with product and secured.
- If there is a drawer below the oven, a rack must be placed between oven and drawer.
WARNING: Do not install the product next to refrigerators or coolers. The heat emitted by the product increases the energy consumption of cooling devices.
WARNING: Do not use door and/or handle to carry or move the product.

INSTALLATION AND MOUNTING
- Place of use for product must be located before starting installation.
- Product mustn’t be installed in places which are under the effect of strong air flow.
- Carry the product with minimum two people. Do not drag the product so that floor isn’t damaged.
- Remove all transportation materials inside and outside the product.
- Remove all materials and documents from within the product.
INSTALLATION REQUIREMENTS
- Product dimensions are provided in the Figure 2.
- Cabinetry surfaces for mounting and mounting materials to be used must have a minimum temperature resistance of 100 °C.
- Mounting cabin must be secured and its floor must be plane for product not to tilt over.
- Cabin floor must have a minimum strength that would handle a load of 60 kg.

PLACING AND SECURING THE OVEN
- Place the oven into the cabin with two or more people.
- Ensure that oven’s frame and front edge of the cabinetry match uniformly.
- Supply cord must not be under the oven, squeezed in between oven and cabinetry or bent.
- Fix the oven to the furniture by using the screws provided with the product. Screws must be mounted as shown in Figure 3 by passing them through plastics attached to frame of the product. Screws must not be overtightened. Otherwise, screw sockets might be worn.
- Check that oven doesn’t move after mounting. If oven isn’t mounted in accordance with instructions, there is a risk of tilt over during operation.

ELECTRICAL CONNECTION
- Mounting place of the product must have appropriate electrical installation.
- Network voltage must be compatible with the values provided on type label of product.
- Product connection must be made in accordance with local and national electrical requirements.
- Before starting the mounting disconnect network power. Do not connect the product to network until its mounting is completed.
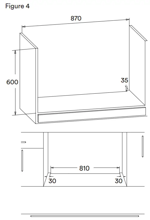
INSTALLATION UNDER COUNTER
- Cabin must match the dimensions provided in Figure 4
- A clearance must be provided at the rear part of the cabin as indicated in Figure 4 so that necessary ventilation can be achieved.
- After mounting, the clearance between lower and upper part of the counter is indicated in Figure 3 with “A”. It’s for ventilation and shouldn’t be covered.

MOUNTING UNDER COUNTER

INSTALLATION IN AN ELEVATED CABINET
- Cabin must match the dimensions provided in Figure 5.
- The clearances with the dimensions indicated in the figure must be provided at the rear part of cabin, upper and lower sections so that necessary ventilation can be achieved.

MOUNTING IN AN ELEVATED CABINET

Your Built-in Oven

EO9060XL9M
- Control panel
- Baking tray
- Wire shelf
- Oven Door
- Handle
CONTROL PANEL
A. Function Knob
B. Timer Knob
C. Temperature Knob
ACCESSORIES
Your Esatto Built-in Oven is supplied with:
- 1 × Baking Tray
For cooking food such as roasts, cakes, pastries, frozen food etc, or for collecting fat/spillage and meat juices. - 1 × Wire Shelf
For roasting, grilling and baking. - 1 × Inner Tray Wire Shelf
Prevents food such as steak from sticking to the Baking Tray.
Note: The images in this user manual are for reference only. Your appliance may appear differently.
Technical Specifications
| Model | EO9060XL9M |
| Volume: | 129L |
| Product Dimensions (W × D × H): | 896 × 565 × 595mm |
| Weight (Net/Gross): | 50.8kg / 52.5kg |
| Supply Voltage | 220-240V AC 50/60 Hz |
| Rated Power | 3.6kW |
| No. of Functions | 9 |
| Lamp Power | 15 W |
| Thermostat | 40-240 / Max °C |
| Lower Heating Element | 2000 W |
| Upper Heating Element | 1500 W |
| Fan Forced | 1 × 2200 W / 2 × 1250 W / 2 × 1800 W |
| Grill Heating Element | 3250 W |
- Technical specifications can be changed without prior notice to improve product quality.
- The values provided with the appliance or its accompanying documents are laboratory readings in accordance with the respective standards.
- These values may differ depending on the use and ambient conditions.
- Figures in this guide are schematic and may not be exactly match your product.
Operating Instructions
OVEN FUNCTIONS
| SYMBOL | FUNCTION DESCRIPTION |
| Oven Light: Enables the user to observe the progress of cooking without opening the door. | |
| Bake (Conventional): Ideal for cakes, pizza & cookies. | |
| Steam Cleaning: Loosen dirt & grease with steam before cleaning your oven. Please read the instructions on page 15 before using this function. | |
| Upper Heat: Ideal for heating pre-baked pastries and small amounts of food, or if you want to gratinate your dish. | |
| Grill: This cooking method is normal grilling, utilising the grill element only. | |
| Grill & Fan: Suitable for grilling large amount of meat on a lower rack within the oven. | |
| Fan Bake: Evenly distributes heat within the cavity for baking & roasting on a single tray. | |
| Fan Forced: Evenly distributes heat within the cavity for cooking on multiple shelves. Suitable for baking & roasting at temperatures lower than the Bake (Conventional) function. | |
| Fan Assist: Circulates the air within the oven cavity. |
BEFORE FIRST USE
- Before using the oven for the first time, read this manual thoroughly, even if you are familiar with this type of appliance. Pay particular attention to the safety instructions, installation instructions and operating instructions.
- Remove labels or accessories attached inside the oven. If any, take out the protective film on front side of the appliance.
- Remove dust and packaging residues by wiping inside of the oven with a damp cloth. Inside of oven must be empty.
- After the appliance has been properly installed, and before first use, you should burn off any dust, oil or other remnants that may have been left inside the cavity from the manufacturing process or transportation. Please run the new empty oven with the conventional cooking function at 240º C for at least 45 minutes. If possible, open a few nearby windows as smoke and smell may occur (which is normal). If the smell persists after the cycle, repeat the process once more.
- Wipe inside of the oven with a slightly warm water with detergent after it cooled followed by a dry clean cloth. Now you can use your oven is ready for use.
- Prior to placing food in your oven, we recommend preheating your oven for best results.
MANUAL COOKING MODE
In manual cooking mode, the cooking duration is controlled by the user without a timer.
- Rotate the Timer Knob counter clockwise to the “ M ” position to engage Manual Cooking mode. This will stop the oven from automatically powering off while in the “ M ” position.
- Then turn the Temperature Knob and the Function Knob to your required settings.
- Once you have finished cooking, turn all knobs back to their original “ ● ” off positions.
MINUTE MINDER MODE
Use the timer control knob to set the oven to power off after your set number of minutes.
Follow these steps to operate the oven in timer mode:
- Rotate the Timer Knob clockwise to set your desired number of minutes (between 10 and 90 minutes).
- Then turn the Temperature Knob and the Function Knob to your desired settings.
- At the completion of the set duration, an alarm will sound to indicate that cooking is complete and the oven will automatically power off.
USING THE GRILL
- When you place the grill on the top rack, the food on the grill shall not touch the grill.
- You can preheat for 5 minutes while grilling. If necessary, you may turn the food upside down.
- Food shall be in the center of the grill to provide maximum air flow through the oven.
To turn on the grill:
- Place the function button over the grill symbol.
- Then, set it to the desired grill temperature.
To turn off the grill:
- Set the function button to the off position.
WARNING: Keep the oven door closed while grilling
RECOMMENDATIONS FOR ENERGY SAVING
Following details will help you use your product ecologically and economically.
- Use dark coloured and enamel containers that conduct the heat better in the oven.
- As you cook your food, if the recipe or the user manual indicates that pre-heating is required, pre-heat the oven.
- Do not open the oven door frequently while cooking to maintain temperature.
- Try not to cook multiple dishes simultaneously in the oven. You may cook at the same time by placing two pots on the wire shelf.
- Cook multiple dishes successively. The oven will not lose heat.
- Turn off the oven a few minutes before the expiration time of cooking. Do not open the door.
- Defrost the frozen food before cooking.
Maintenance & Cleaning
PRIOR TO CLEANING YOUR OVEN
WARNING:
- Before any maintenance and cleaning, turn off the appliance and disconnect the power.
- Set all controls in the OFF position.
- Wait until the inside of the unit is not hot but only slightly warm—cleaning is easier than when warm.
- Clean the surface of the unit with a damp cloth, soft brush or fine sponge and then wipe dry.
- In case of heavy soiling, use hot water with non-abrasive cleaning product.
- For cleaning the oven door glass, do not use abrasive cleaners or sharp metal scrapers, as these can scratch the surface or lead to the glass being damaged.
- Never leave acidic substances (lemon juice, vinegar) on stainless steel parts.
- Do not use a high pressure cleaner for cleaning the unit.
- The baking tray and wire shelving may be washed in mild detergent.
USING THE STEAM CLEANING FUNCTION
This function will assist with loosening dirt & grease with steam before cleaning your oven.
- Remove all the accessories in the oven.
- Pour a half litre of water into the tray and Place the tray at the bottom of the cavity.
- Set the switch to the Steam Cleaning function.
- Set the thermostat to 70 °C degrees and operate the oven for 30 minutes.
- After operating the oven for 30 minutes, open the oven door and wipe the inner surfaces with a wet cloth.
- Use dish-washing liquid, warm water and a soft cloth for stubborn dirt, then dry off the area you have just cleaned with a dry cloth.

REMOVING THE OVEN DOOR
The removable door allows for full access to the entire interior of the oven for easier and quicker maintenance. Follow these instructions carefully if you wish to remove the oven door.

- To remove the door, open the door fully towards yourself. Then perform the unlock operation by pulling the hinge lock upwards with the aid of screwdriver as shown below.

- Set the hinge lock to the widest angle shown below and adjust both hinges connecting oven door to the oven to the same position.

- Close the opened oven door so that it will be in a position to make contact with hinge lock shown below.

- For easier removal of oven door, when it comes close to closed position, hold the cover with two hands shown below. Lift up and slowly pull the door upwards out from the oven.
REMOVING THE INNER GLASS - Place the glass door flat on a soft surface (eg. cardboard or a blanket) with door top cover towards yourself.
- Lift by pressing on plastic latches on left and right side as shown below.

- Then pulling the profile toward yourself shown below.

- The glass is released after profile is removed. Remove the released glass by pulling toward yourself carefully. Outer glass is fixed to oven door profile. You can perform glass cleaning easily after glasses are released.

- When cleaning is completed, reverse the above procedures to return the door to its original position. Ensure that profile is seated properly in place.
WARNING:
- Do not forcefully pull out the door to prevent the glass from breaking during the dismantling process.
- The hinge springs could come loose and cause personal injury.
- Do not lift or carry the oven door by the door handle.
RACK POSITIONS
It is important to place the wire grill into the oven properly. Do not allow wire rack to touch rear wall of the oven. Rack positions are shown in the next figure. You may place a deep tray or a standard tray in the lower and upper wire racks.
Installing and removing wire racks
- To remove wire racks, press the clips shown with arrows in the figure, first remove the lower, and than the upper side from installation location.
- To install wire racks; reverse the procedure for removing wire rack.

BULB REPLACEMENT
WARNING: To avoid electric shock, disconnect power from the mains outlet or switch off the circuit breaker of the unit’s mains outlet.
For replacement, follow the below process:
- First disconnect the power of appliance and ensure that appliance is cooled.
- Remove the glass protection by turning as indicated in the figure below. If you have difficulty in turning, then using gloves will help you in turning.
- Then remove the lamp by turning, install the new lamp with same specifications.
- Reinstall glass protection, plug the power cable of appliance into electrical socket and complete replacement. Now you can use your oven.

WARNING: This product contains a light source of energy efficiency class G.
Troubleshooting
OPERATION IN CASE OF EMERGENCY
In the event of an emergency you should:
- Set all controls in the OFF position and disconnect the power.
- Call After Sales Support on 1300 11 4357 or email [email protected]
Some minor faults can be fixed by referring to the instructions given in the table below.
IMPORTANT: If your appliance appears to be operating incorrectly, then you should disconnect it from your electrical supply and then contact After Sales Support.
WARNING: Do not attempt to repair the oven yourself.
Please note that if an service agent is asked to attend whilst the product is under warranty and finds that the problem is not the result of an appliance fault, then you may be liable for the cost of the call out charge.
The appliance must be accessible for the service agent to perform any necessary repair.
If your appliance is installed in such a way that a service agent is concerned that damage will be caused to the appliance or your kitchen, then they will not complete a repair.
Please refer to the conditions of that appear on the warranty section at the rear of this user manual.
| ISSUE | POSSIBLE CAUSE | COMMON RESOLUTIONS |
| The oven is not turning on. | Break in power supply. | Check the household fuse box for any blown fuses and replace as necessary. Also ensure that a safety switch hasn’t tripped. |
| The oven light is dim or is not working. | The light globe is loose or has blown. | When the oven has cooled and is switched off, remove the globe cover and ensure that the globe is tightly secured. If blown, refer to the Cleaning & Maintenance section under Bulb Replacement. |
| A foreign object is covering the globe. | When the oven has cooled and is switched off, ensure that the globe cover is clean. | |
| The oven turns off during operation. | Too long continuous operation. | Let the oven cool down after long cooking cycles. |
| Cooling fan not operating. | Listen for sound coming from the cooling fan. | |
| Oven not installed in a location with good ventilation. | Make sure clearances specified in operating instructions are maintained. | |
| More than one plugs in a wall socket. | Use only one plug for each wall socket. | |
| Outer surface of the oven gets very hot during operation. | Oven not installed in a location with good ventilation. | Make sure clearances specified in operating instructions are maintained. |
| Oven door is not opening properly. | Food residues may be jammed between the door and internal cavity. | Clean the oven well and try to re-open the door. |
| ISSUE | POSSIBLE CAUSE | COMMON RESOLUTIONS |
| Electric shock when touching the oven. | No proper grounding. | Make sure power supply is grounded properly. |
| Underground wall socket is used. | ||
| Water dripping. | Water or steam may generate under certain conditions depending on the food being cooked. This is not a fault of the appliance. | Let the oven cool down and than wipe dry with a cloth. |
| Steam coming out from a gap on oven door. | ||
| Water remaining inside the oven. | ||
| The cooling fan continues to operate after cooking is finished. | The fan operates for a certain period for ventilation of internal cavity of the oven. | This is not a fault of the appliance. |
| Oven does not heat. | Oven door is open. | Close the door and restart. |
| Oven controls not correctly adjusted. | Read the Operating Instructions section regarding operation of the oven and reset the oven. | |
| Fuse tripped or circuit breaker turned off. | Replace the fuse or reset the circuit breaker. If this is repeating frequently, arrange for an electrician. | |
| Smoke coming out during operation. | When operating the oven for the first time. | A burn-off is required. See ‘Before First Use’ instructions on page 13. |
| Food is on a heating element. | Let the oven to cool down and clean food residues from the base of the oven and surface of upper heating element. | |
| When operating the oven burnt or plastic odour coming out. | Plastic or other non-heat resistant accessories are being used inside the oven. | At high temperatures, use suitable cookware. |
| The oven is burning the top of my dish whilst the underside is under-done. | Not enough heat from the bottom of the oven. | Try using the Conventional cooking functions. Try lowering the temperature. Try using a lower shelf position. |
| The oven is burning the underside of my dish whilst the top is under cooked. | Excessive heat from the bottom of the oven. | Try using the Conventional cooking functions. Try lowering the temperature. Try using a higher shelf position. |
| The oven is burning the outside of my dish whilst the inside is under-done. | Temperature is set too high. | Lower the oven temperature and increase the cooking duration. |
| The outside of my dish is too dry even though it looks cooked. | Temperature is set too low. | Increase the oven temperature and decrease the cooking duration. |
If you need assistance, please contact our After Sales support centre on 1300 11 43 57 or email [email protected]
Attach your receipt to this page![]()
Purchase Details
For your records, please record details of your purchase below and staple your receipt on the opposite page. Your serial number can be found on the rating plate of your Built-in Oven.
STORE DETAILS
STORE NAME: ——————-
ADDRESS: ————————-
TELEPHONE: ——————–
PURCHASE DATE: ————-
PRODUCT DETAILS
MODEL NO.: ————————–
SERIAL NO.*: ————————–
Warranty
WARRANTY TERMS AND CONDITIONS BUILT-IN OVENS
This document sets out the terms and conditions of the product warranties for Residentia Group Appliances. It is an important document. Please keep it with your proof of purchase documents in a safe place for future reference should you require service for your Appliance.
- IN THIS WARRANTY
(a) ‘acceptable quality’ as referred to in clause 10 of this warranty has the same meaning referred to in the ACL;
(b) ‘ACL’ means Trade Practices Amendment (Australian Consumer Law) Act (No.2) 2010;
(c) ‘Appliance’ means any Residentia Group product purchased by you accompanied by this document;
(d) ‘ASR’ means Residentia Group authorised service representative;
(e) ‘Residentia Group’ means Residentia Group Pty Ltd of 165 Barkly Ave, Burnley VIC 3121, ACN 600 546 656 in respect of Appliances purchased in Australia;
(f ) ‘major failure’ as referred to in clause 10 of this warranty has the same meaning referred to in the ACL and includes a situation when an Appliance cannot be repaired or it is uneconomic for Residentia Group, at its discretion, to repair an Appliance during the Warranty Period;
(g) ‘Warranty Period’ means:
(i) where the Appliance is used for personal, domestic or household use (i.e. normal single family use) as set out in the instruction manual, the Appliance is warranted against manufacturing defects for 24 months, following the date of original purchase of the Appliance;
(h) ‘you’ means the purchaser of the Appliance not having purchased the Appliance for re-sale, and ‘your’ has a corresponding meaning. - This warranty only applies to Appliances purchased and used in Australia and is in addition to (and does not exclude, restrict, or modify in any way) any non-excusable statutory warranties in Australia.
- During the Warranty Period Residentia Group or its ASR will, at no extra charge if your Appliance is readily accessible for service, without special equipment and subject to these terms and conditions, repair or replace any parts which it considers to be defective. Residentia Group or its ASR may use remanufactured parts to repair your Appliance. You agree that any replaced Appliances or parts become the property of Residentia Group. This warranty does not apply to light globes, batteries, filters, seals or similar perishable parts.
- Parts and Appliances not supplied by Residentia Group are not covered by this warranty.
- You will bear the cost of transportation, travel and delivery of the Appliance to and from Residentia Group or its ASR. If you reside outside of the service area, you will bear the cost of:
(a) travel of an authorised representative;
(b) transportation and delivery of the Appliance to and from Residentia Group or its ASR, in all instances, unless the Appliance is transported by Residentia Group or its ASR, the Appliance is transported at the owner’s cost and risk while in transit to and from Residentia Group or its ASR. - Proof of purchase is required before you can make a claim under this warranty.
- You may not make a claim under this warranty unless the defect claimed is due to faulty or defective parts or workmanship. Residentia Group is not liable in the following situations (which are not exhaustive):
(a) the Appliance is damaged by:
(i) accident
(ii) misuse or abuse, including failure to properly maintain or service
(iii) normal wear and tear
(iv) power surges, electrical storm damage or incorrect power supply
(v) incomplete or improper installation
(vi) incorrect, improper or inappropriate operation
(vii) insect or vermin infestation
(viii) failure to comply with any additional instructions supplied with the Appliance;
(b) the Appliance is modified without authority from Residentia Group in writing;
(c) the Appliance’s serial number or warranty seal has been removed or defaced;
(d) the Appliance was serviced or repaired by anyone other than Residentia Group, an authorised repairer or ASR. - This warranty, the contract to which it relates and the relationship between you and Residentia Group are governed by the law applicable where the Appliance was purchased.
- To the extent permitted by law, Residentia Group excludes all warranties and liabilities (other than as contained in this document) including liability for any loss or damage whether direct or indirect arising from your purchase, use or non use of the Appliance.
- For Appliances and services provided by Residentia Group in Australia, the Appliances come with a guarantee by Residentia Group that cannot be excluded under the Australian Consumer Law. You are entitled to a replacement or refund for a major failure and for compensation for any other reasonably foreseeable loss or damage. You are also entitled to have the Appliance repaired or replaced if the Appliance fails to be of acceptable quality and the failure does not amount to a major failure. The benefits to you given by this warranty are in addition to your other rights and remedies under a law in relation to the Appliances or services to which the warranty relates.
- At all times during the Warranty Period, Residentia Group shall, at its discretion, determine whether repair, replacement or refund will apply if an Appliance has a valid warranty claim applicable to it.
- Missing parts are not covered by warranty. Residentia Group reserves the right to assess each request for missing parts in a case by case basis. Any parts that are not reported missing in the first week after purchase will not provide free of charge.
- To enquirer about claiming under this warranty, please follow these steps:
(a) carefully check the operating instructions, user manual and the terms of this warranty;
(b) have the model and serial number of the Appliance available;
(c) have the proof of purchase (e.g. an invoice) available;
(d) telephone the numbers shown below. - You accept that if you make a warranty claim, Residentia Group and its ASR may exchange information in relation to you to enable Residentia Group to meet its obligations under this warranty.
IMPORTANT
Before calling for service, please ensure that the steps in point 13 have been followed.
CONTACT SERVICE
→ Service: 1300 11 HELP (4357)
The Australian Consumer Law requires the inclusion of the following statement with this warranty:
Our goods come with guarantees that cannot be excluded under the Australian Consumer Law. You are entitled to a replacement or refund for a major failure and for compensation for any other reasonably foreseeable loss or damage. You are also entitled to have the goods repaired or replaced if the goods fail to be of acceptable quality and the failure does not amount to a major failure.
— THIS WARRANTY IS VALID IN AUSTRALIA ONLY —
Warranty (NZ)
NEW ZEALAND WARRANTY TERMS & CONDITIONS BUILT-IN OVENS
To help care for your investment, be sure to register your appliance online. Registration will help you if you need to arrange service in the future, and serves as a record of your purchase—including critical information like model number and serial number – that you can refer to at any time. Simply visit the below website, or ask your retailer for help: www.esatto.house/nz/registration
WARRANTY
These products are covered by a warranty for a period of 24 months from the date of purchase, subject to the following conditions*. The warranty covers rectification free of charge of any fault arising from defective materials or components, or faulty workmanship or assembly.
* The conditions above mentioned are:
- That the purchaser carefully follows all instructions packed with the product;
- That the purchaser and/or installer carefully follows the installation instructions provided and complies with electrical wiring regulations, gas and/or plumbing codes;
- That the purchaser carefully follows instructions provided in the owner’s handbook relating to the proper use and care of the product and does not use the product for any purpose other than the domestic use for which it has been designed;
- Commercial use of the product for professional or industrial purposes will void this warranty.;
- That the product was purchased and installed in New Zealand;
- That this warranty does not extend to:
a) optional glass lids for hobs apart from claims which relate to mechanical or physical damage thereof at the date of purchase;
b) ‘consumable’ parts such as light bulbs or filters;
c) damage to ceramic glass caused by liquid or solid spill-overs, lack of maintenance, or impact;
d) damage to surface coatings caused by cleaning or maintenance using products not recommended by the owner’s handbook;
e) defects caused by normal wear and tear, accident, negligence, alteration, misuse or incorrect installations;
f) a product dismantled, repaired or serviced by any serviceman other than an authorised service agent;
g) a product not in possession of the original purchaser;
h) damage caused by power outages or surges
i) damage caused by pests (eg. rats, cockroaches etc.) - That if the product is a freestanding microwave oven or small appliance it must be returned to the dealer/retailer for servicing. These products, unless stated otherwise, have a 12 month warranty from original date of purchase with 24 months on the microwave magnetron; Waste disposers have a 12 month warranty.
- The provision of service under this warranty is limited by a 25km boundary from the retailer where the product was purchased except for microwaves. Such travelling outside of these limits will incur commercial cost to be paid by you, regulated by the number of kilometres travelled beyond the 25km limit (50km return trip). Microwaves are to be delivered to the nearest authorised service agent by the customer.
Please refer to your user manual for any further conditions that may apply to your specific model.
Nothing herein contained shall be construed in any way as excluding or limiting your rights under the Consumer Guarantees Acts 1993.
For Service please visit www.applico.co.nz/service or contact the dealer/retailer from whom you purchased the product from or call the 0800 number listed below. If you are unable to establish the date of purchase, or the fault is not covered by this warranty, or if the product is found to be in working order, you will be required to bear all service call charges.
Registration of this warranty constitutes acceptance of the terms and conditions of this warranty.
Should you require any assistance, please call Customer Services on 0800 763 448.
Distributed by Applico Ltd. www.applico.co.nz July 2019 After registering your appliance online, we recommend you fill out the below information for your reference and keep this warranty card in a safe place.
— THIS WARRANTY IS VALID IN NEW ZEALAND ONLY —
This page is intentionally blank.
But if you want to draw something, make notes or even write a recipe, it’s all yours!
www.esatto.house
Version
V1.2 1022








REMOVING THE INNER GLASS






















