ICBSO3050PE 76 CM E Series Professional Built-In Single Oven

FEATURES
- Wolf’s dual convection system provides reliably even heat, reduces hot and cold spots, and enables consistent multi-rack cooking
- Ten cooking modes, including Bake, Broil, Convection, Convection Roast, Dehydrate, Gourmet, Proof, Roast, Stone, and Warm, were developed by Wolf chefs to maximize the performance of your oven
- Gourmet Mode offers nearly 50 presets to automatically cook a delicious set of impressive dishes
- The large full-color touch screen and stainless touch controls are intuitive and easy-to-read
- The temperature probe alerts you when your dish has reached the desired temperature
- The oven offers self-clean, delayed start, timed cook, and Sabbath features
- Coordinates with other Sub-Zero and Wolf appliances
ACCESSORIES
- 30″ (762 mm) Broiler Pan
- Bake Stone Kit
- Baking Sheet
- Dehydration Rack Set
- Full-Extension Ball-Bearing Rack
- Multifunction Pan
- Standard Oven Rack
- Temperature Probe
- Accessories available through an authorized dealer.
PRODUCT SPECIFICATIONS
- Model ICBSO3050PE/S/P
- Dimensions 759mmW x 723mmH x 584mmD
- Oven 1 Interior 635mmW x 419mmH x 483mmD
- Overall Capacity 131 L
- Usable Capacity 113 L
- Door Clearance 543mm
- Weight 124 kg
- Electrical Supply 220-240 VAC; 50/60 Hz
- Electrical Service 3.8-4.8 kW
ELECTRICAL
NOTE: Dimensions in parenthesis are in millimeters unless otherwise specified
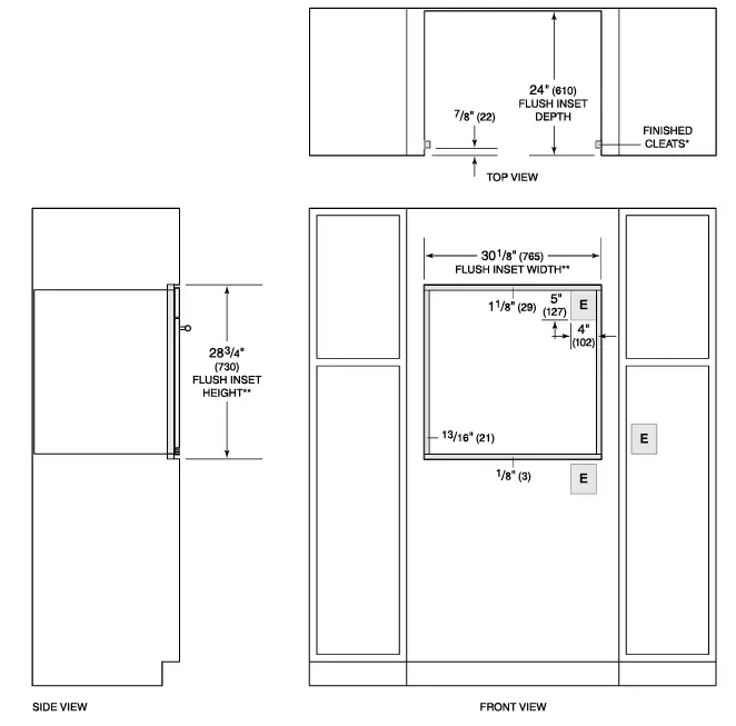
DIMENSIONS
FLUSH INSTALLATION
THESE SPECIFICATIONS ARE A GUIDE ONLY. Not suitable for cabinetry, installation or services location.
SUB-ZERO AND WOLF OFFER A CUSTOMISED DESIGN CHECK SERVICE to ensure your new appliances are installed perfectly. Please contact our
Customer Care team for further information regarding our Design Check Service, or for detailed product specification and installation advice.
Phone: 1300 808 859 Email: [email protected]
Sub-Zero and Wolf Design Guides are also available via our website: www.subzero-wolf.com.au
Specifications are subject to change without notice. This information was generated on July 25, 2022. Verify specifications prior to finalizing your cabinetry/enclosures.















