ferroli H 800 1B Ecounit H 1b-2b Bollitori Tanks Speicher Ballons

Product Information
The ECOUNIT H 1B-2B is a hot water heater that comes in two models – ECOUNIT H 800 1B and ECOUNIT H 1000 1B. It also has two other models with larger capacities – ECOUNIT H 800 2B and ECOUNIT H 1000 2B. The product has an electric heater and a water exchanger coil. It has connections for cold water inlet, hot water outlet, upper and lower pipes for the water exchanger coil, and a blind connection for fasting. The maximum working pressure for the hot water outlet is 6 bar for SMALVER-INOX and 8-10 bar for SMALGLASS while the maximum working pressure for heating is 10 bar.
Product Usage Instructions
Before installation and commissioning, ensure that the dimensioning of the expansion vessels is carried out by a qualified installer or designer. For connection to a condensing or traditional boiler, refer to the equipment scheme provided in the user manual. To use the product, follow these steps:
- Connect the cold water inlet to the water supply.
- Connect the hot water outlet to the point of use.
- Connect the upper and lower pipes of the water exchanger coil to the recirculation system.
- Connect the blind connection for fasting to the corresponding pipe.
- Turn on the electric heater to heat the water.
Regular maintenance is required to ensure the product’s optimal performance. Refer to the user manual for maintenance instructions.
This manual is an integral part of the tank and must be delivered to the installer / user together with it. The manual must be kept in a safe place near the tank. In case of transfer or sale of the tank, this user and installation manual must be transferred together with it. The user and the installer are required to read this manual carefully in order to comply with the technical instructions for safety and correct operation of the appliance. Failure to comply with the instructions below will invalidate all legal and contractual warranty rights. The installation, commissioning, maintenance and deactivation of the equipment must be performed by a qualified technician qualified for the profession. Correct installation and periodic maintenance interventions guarantee a long life for the storage tank.
ECOUNIT H 800 1B
ECOUNIT H 1000 1B
ECOUNIT H 800 2B
ECOUNIT H 1000 2B
| N° | N° TIPO DI ATTACCO / ANSCHLUßTYP / 800 ÷ 1000 | |
| CONNECTOR TYPE | litri | |
| 1 | Domestic hot water inlet | 1” 1/4 |
| 2 | Anode | 1” 1/2 |
| 3 | Thermometer – Feeler | 1/2” |
| 4 | Electric heater
| 1” 1/2 |
| 5 | Blind connection for fasting | — |
| 6 | Cold water inlet | 1” 1/4 |
| 7 | Water exchanger outlet | 1” 1/4 |
| 8 | Feeler | 1/2” |
| 9 | Water exchanger inlet | 1” 1/4 |
| 10 | Re-circulation | 1” |
| 11 | upper pipe coil outlet
| 1″1/4 |
| 12 | upper pipe coil inlet | 1″1/4 |
INSTALLATION INSTRUCTIONS AND MAINTENANCE
INSTALLATION INSTRUCTIONS, COMMISSIONING AND MAINTENANCE
What follows is determinant for the warranty validity.
- The installation and commissioning must:
- Be executed by a qualified installer.
- Be provided, where necessary, with a pressure water reducing in entrance.
- Be provided with a safety valve according to the technical datas of the boiler.
- Provide expansion vessels connected at a maximum distance of one meter from the tank (see the measuring board of the expansion vessel) proportioned to the boiler’s dimensions (the size shall be checked by an expert).
- Provide washing of the lines before commissioning, any impurities or processing chips present in the hydraulic system can cause corrosion and permanently contaminate the tank.
- Be provided with filters upstream of the tank to avoid the deposit of heavy particles or processing residues inside the tank.
- Before starting, check the hydraulic seal of the connections and hatches. Apply a torque of 20 Nm for handhole hatches and 40 Nm for manhole to the hatch screws. If some leakage occurs check the assembly of the expansion vessels.
- Install the boiler in a technical room providing suitable drainage in case of possible liquid leaks from the tank.
- Do not switch on any heat source connected to the tank until it is guaranteed to fill it completely.
- In case of use on the system of materials other than those of the tank, provide for the dielectrical insulation of the different parts. The equipotential ground connection must be made both for the tank and for the pipes connected to it and must be suitably checked in compliance with the regulations in force.
- Make sure and arrange that, for the purpose of preventing contamination of the domestic water and altering the anti-freezing mixture of the solar circuits, the pressure of the exchanger is always lower than the pressure of the accumulation, also through automatic control of the differential pressure between the circuits primary and secondary.
- In case of danger of freezing, the tank and the exchanger must be heated or completely emptied. Even if the tank is not used for a long time, empty the tank, in fact the prolonged stagnation of water in the tank favors internal corrosion and the proliferation of bacteria and microorganisms.
- The temperature of the boiler inside must always be under 95°C (70°/80°C for the SMALVER/SMALTECH models).
- In order to avoid corrosion, the anodes must be inspected after each 12 months. However, where the water is particularly aggressive, the inspections must be done each 6 months; if the anode diameter in any section is less than 22 mm, it must be replaced, if covered with limestone is to be cleaned.
- The water Langelier Index at the operating temperature, must range from “0” to “+0,4”, hardness within 10°F and 20°F, maximum concentration of chlorides 70 mg/l, minimum conductivity 150 microS/cm.
DIMENSIONING OF THE EXPANSION TANK:
Provide an expansion vessel commensurate with the size of the boiler and to the volume of water present in the pipes. It is advisable to divide the expansion volume in more vessels. The dimensioning of expansion vessels must be carried out by a qualified installer or designer.
MAXIMUM WORKING PRESSURE
MAXIMUM WORKING PRESSURE HEAT EXCHANGER
MAXIMUM WORKING PRESSURE HEATING
The tanks are produced according to the basic EEC Directives 2014/68/UE (P.E.D.) for the pressure equipments, as in the art.
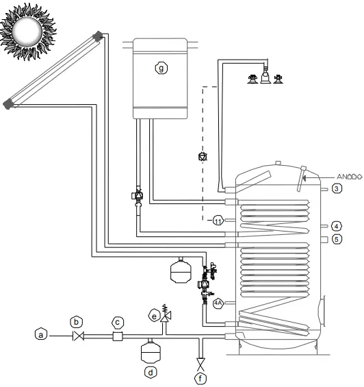
ECOUNIT H 1B-2B
- a ) Aqueduct
- b ) Check valve
- c ) Pressure reduction
- e ) Safety valve
- f ) Drai n cock
- g ) Boiler
Example of connection or traditional and solar panels : equipment scheme with condensing boiler
- (a) Aqueduct
- b) Check valve
- (c) Pressure reduction
- (d) Expansion tank
- (e) Safety valve
- f) Drain cock
- g) Boiler
Example of connection or traditional and solar panels :equipment scheme with condensing boiler
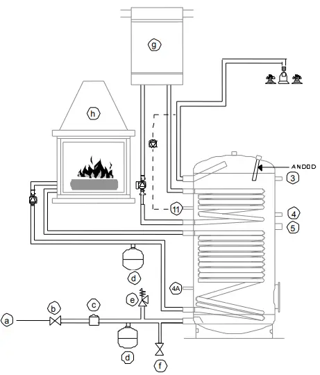
- (a) Aqueduct
- b) Check valve
- (c) Pressure reduction
- d) Expansion tank
- (e) Safety valve
- f) Drain cock
- (g) Boiler
- h) Thermo fireplace
Example of connection or traditional and thermo fireplace : equipment scheme with condensing boiler
The costruction’s company guarantees his own products which are supplied with identification code. Claims for faults must happen in 8 days in writing or through the guarantee-card, with the approval by our point of sale. In case of contestations, after our examination of the defect and their causes, the guarantee consists in the repairing by loco or in the substitution of the product, free of freight-charge, upon restitution of the item with manufacturing defect. The installation costs are excluded, except specific agreements.
The guarantee is subjected to the following conditions:
- Claims must happen before the manufacture to complement or assignment to a third party.
- Installation of water-heating must be made from qualified firm/installer, furthermore the plant has to be equipped with safety valve and suitable expansion-vessel. The points listed in the Installation, Commissioning and Maintenance Instructions must be observed.
- Water-heaters by Smalglass or Smalver are subjected to use and maintenance as normally required, temperature and pressure working must be strictly observed, examination and replacement of magnesium anode (best every 6 months), Langelier water index between 0 and +0,4, hardness within 10°F and 20°F, maximum concentration of chlorides 70 mg/l, minimum conductivity 150 microS / cm.
From the guarantee are excluded damages due through:
- Faulty montage, making ready for use out of specification or improper use of water-heater.
- Defects caused from no force majeure (impact in case of montage or in building site or by conveyance).
- Intake of parcels, that are rest of material of montage, or damages caused from no controlled and no closed gaskets.
- The carbon steel tanks are supplied externally painted for aesthetic purposes only, any irregularities, cracks or detachment of parts of the paint are not to be attributed to processing defects but are caused by surface alterations due to the high temperature processing of the tanks themselves (enamelling in the oven, pickling, welding, etc.). These superficial aspects in no way affect the duration and functionality of the tank which remains fully guaranteed by the manufacturer. Therefore, requests for replacement or compensation relating to this aspect are not accepted.
- Insulation damage detected after boiler installation.
- Rust or humidity on the threads of the connections are natural phenomena that do not alter the functionality of the same, it will be the installer who, if he deems it appropriate, will be able to clean the threads before making the joints.
- The complaints don’t entitle deduction of purchase price or a part of it or for compensation with other requires.
We exercise the right to reject requires of guarantees if buyer doesn’t respect the obligation of current payments. Further requires of compensation, in special way for directs and indirect damages to people or things, can’t be acknowledged.
APPENDI X
ELECTRONIC ANODE: connection scheme
DI RECTI VE PARAMETERS 2009/125/CE , Reg . UE 2017-1369 – EN 1289
| SIZE (INSUL.)
| CAPACITY ( L ) | NON SOLAR VOLUME
| STANDING LOSS
| DISP . SPEC SPECIFIC LOSS
| ENERGY CLASS
|
| 80 0 ( 1 0 0 mm S O F T ) | 73 8 | 30 0 | 13 0 | 2 , 8 9 | – |
| 100 0 ( 1 00 m m S O F T ) | 85 5 | 33 0 | 14 2 | 3 , 1 6 | – |
FERROLI S.p.A. – Via Ritonda 78/a – 37047 San Bonifacio (Verona) Italy – tel. +39.045.6139411 – fax. +39.045.6100933 – www.ferroli.com


















