best ICB3I Series Range Hoods

INSTALLER: LEAVE THIS MANUAL WITH HOMEOWNER.
HOMEOWNER: USE AND CARE INFORMATION ON PAGES 12 TO 14.
BEST; Hartford, Wisconsin www.BestRangeHoods.com 800-558-1711
BEST; Drummondville, QC, Canada www.BestRangeHoods.ca 866-737-7770
WARNING AND CAUTION
WARNING
TO REDUCE THE RISK OF FIRE, ELECTRIC SHOCK OR INJURY TO PERSONS, OBSERVE THE FOLLOWING:
- Use this unit only in the manner intended by the manufacturer. If you have questions, contact the manufacturer at the address or telephone number listed in the warranty.
- Before servicing or cleaning unit, switch power off at service panel and lock service disconnecting means to prevent power from being switched on accidentally. When the service disconnecting means cannot be locked, securely fasten a prominent warning device, such as a tag, to the service panel.
- Installation work and electrical wiring must be done by qualified personnel in accordance with all applicable codes and standards, including fire-rated construction codes and standards.
- Sufficient air is needed for proper combustion and exhausting of gases through the flue (chimney) of fuel burning equipment to prevent backdrafting. Follow the heating equipment manufacturer’s guidelines and safety standards such as those published by the National Fire Protection Association (NFPA) and the American Society for Heating, Refrigeration and Air Conditioning Engineers (ASHRAE) and the local code authorities.
- When cutting or drilling into wall or ceiling, do not damage electrical wiring and other hidden utilities.
- Ducted fans must always be vented outdoors.
- Do not use this unit with any additional solid-state speed control device.
- To reduce the risk of fire, use only metal ductwork.
- This unit must be grounded.
- All tempered glass can experience spontaneous breakage. If broken, tempered glass falls out of its opening in interlocking clumps. Tempered glass can, on occasion, break into large shards rather than the classic tiny piece pattern.
- When applicable, local regulations comprise more restrictive installation and/or certification requirements, the aforementioned requirements prevail on those of this document and the installer agrees to conform to these at his own expense.
TO REDUCE THE RISK OF A RANGE TOP GREASE FIRE:
- a) Never leave surface units unattended at high settings. Boilovers cause smoking and greasy spillovers that may ignite. Heat oils slowly on low or medium settings.
- b) Always turn hood ON when cooking at high heat or when flambeing food (i.e.: Crêpes Suzette, Cherries Jubilee, Peppercorn Beef Flambé).
- c) Clean ventilating fans frequently. Grease should not be allowed to accumulate on fan, filters or in exhaust ducts.
- d) Use proper pan size. Always use cookware appropriate for the size of the surface element.
WARNING
TO REDUCE THE RISK OF INJURY TO PERSONS IN THE EVENT OF A RANGE TOP GREASE FIRE, OBSERVE THE FOLLOWING*:
- SMOTHER FLAMES with a close-fitting lid, cookie sheet or metal tray, then turn off the burner. BE CAREFUL TO PREVENT BURNS. IF THE FLAMES DO NOT GO OUT IMMEDIATELY, EVACUATE AND CALL THE FIRE DEPARTMENT.
- NEVER PICK UP A FLAMING PAN — You may be burned.
- DO NOT USE WATER, including wet dishcloths or towels —This could cause a violent steam explosion.
- Use an extinguisher ONLY if:
- A. You own a Class ABC extinguisher and you know how to operate it.
- B. The fire is small and contained in the area where it started.
- C. The fire department has been called.
- D. You can fight the fire with your back to an exit.
* Based on “Kitchen Fire Safety Tips” published by NFPA.
CAUTION
- For indoor use only.
- For general ventilating use only. Do not use to exhaust hazardous or explosive materials and vapors.
- To avoid motor bearing damage and noisy and/or unbalanced impellers, keep drywall spray, construction dust, etc. off power unit.
- Your hood motor has a thermal overload which will automatically shut off the motor if it overheats. The motor will restart when it cools down. If the motor continues to shut off and restart, have the hood serviced.
- The hood distance above cooktop must not be less than 30”. A maximum of 36” above cooktop is highly recommended for best capture of cooking impurities.
- Two installers are recommended because of the large size and weight of this unit.
- To reduce the risk of fire and to properly exhaust air, be sure to duct air outside — Do not exhaust air into spaces within walls or ceiling or into attics, crawl space or garage.
- Because of the high exhausting capacity of this unit, you should make sure enough air is entering the house. Open a window close to or in the kitchen.
- To reduce the risk of fire and electrical shock, the Best ICB3I Series models should only be installed with their own built-in blower.
- Please read specification label on product for further information and requirements.
- This hood is equipped with an RF receiver. See next page for related warning.
WARNING
This hood is equipped with a RF receiver (optional remote control sold separately). Changes or modifications not expressly approved by the party responsible for compliance could void the user’s authority to operate this product. The remote control has been tested and found to comply with the limits for a Class B digital device, pursuant to part 15 of the FCC Rules and the Canadian ICES-003. These limits are designed to provide reasonable protection against harmful interference in a residential installation. The remote control generates, uses and can radiate radio frequency energy and, if not installed and used in accordance with the instructions, may cause harmful interference to radio communications. However, there is no guarantee that interference will not occur in a particular installation. If this equipment does cause harmful interference to radio or television reception, which can be determined by turning the equipment off and on, the user is encouraged to try to correct the interference by one or more of the following measures:
- Reorient or relocate the receiving antenna
- Increase the separation between the equipment and receiver
- Connect the equipment into an outlet on a circuit different from that to which the receiver is connected
INSTALL DUCTWORK
Plan where and how the ductwork will be installed.
A straight, short duct run will allow the hood to perform most efficiently.
Install proper-sized ductwork, elbows and roof cap. Connect metal ductwork to cap and work back towards the hood location. Use 2” metal foil duct tape to seal the joints.
Run 3-wire power supply cable to installation location.
We recommend to install the hood at a minimum distance of 30” above cooking surface. A maximum of 36” above cooktop is highly recommended for best capture of cooking impurities.
| CEILING HEIGHT | 8 FEET | 9 FEET | 10 FEET* |
| MINIMUM DISTANCE RECOMMENDED ABOVE COOKTOP | 30 IN. | 30 IN. | 30 IN. |
| MAXIMUM RECOMMENDED HEIGHT | 34 IN. | 36 IN. | 36 IN. |
Distances over 36” are at the installer and users discretion.
* 10-ft. ceilings require 10-ft flue extension, part no. AEICB3SB (stainless steel) or no. AEICB3BLS (black stainless steel) (sold separately).
PREPARE INSTALLATION
WARNING
When performing installation, servicing or cleaning the unit, it is recommended to wear safety glasses and gloves.
NOTE: Before proceeding to the installation, check the contents of the box. If items are missing or damaged, contact the manufacturer. Make sure that the following items are included:
- Hood
- Accessories
- Decorative flue assembly (lower and upper flues)
- 2 Hybrid filters
- 1 Ceiling mounting bracket (screwed on top of the hood)
- 8 Angle brackets
- 8” Round adapter/damper (in a separate box)
- Bag of parts (taped on the blower box) including: 2 wire connectors, 1 wire clamp, 8 no. 10 x 1½” wood screws,
8 steel washers, 10 no. 8 x 3/8” quadrex screws, 17 no. 10-32 flanged locknuts, 50 x 10-32 x 1/2” quadrex hex head screws, 2 no. 8 x 1/2” low profile Phillips screws, 2 no. 8 x 1/2” quadrex black screws.
Parts sold separately:
- Ducts, elbows, wall and roof caps.
- Optional flue extension for 10-ft. ceilings model no. AEICB3SB (stainless steel) or no. AEICB3BLS (black stainless steel).
- Optional remote control (model no. ACR3).
- Glass panels for ICB3I36SBN model (see replacement parts list).
NOTE: During installation, protect countertop and/or cooktop.
MEASURE INSTALLATION
Determine the required distance between the ceiling and the top of the blower box (C) based upon ceiling height (B) and desired height of hood above cooktop (A).
NOTE: C = B – A – 12 3/16”
INSTALL MOUNTING BRACKET
WARNING
When building framework, always follow all applicable construction codes and standards.
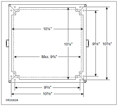
- Modify ceiling structure over hood location. Install 2″ x 4″ cross framing between ceiling joists using ceiling mounting bracket dimensions shown at right. The framework must be sized to support the total weight of the hood and should not be larger than 9¾” x 9¾”.

- Finish ceiling surface, making sure the ceiling is level in all direction. Be sure to mark the location of the ceiling joists and cross framing. Bring house wiring through finished ceiling.

- Remove both screws retaining the ceiling mounting bracket to the top of the hood. Discard screws. Position the mounting bracket in such a way that one of the sides without a “T” will be facing the front of the hood. Secure mounting bracket to the ceiling using 8 no. 10 x 1½” wood screws (2 on each corner). Make sure screws are driven into the center of the framing for maximum strength.

ASSEMBLE ANGLE BRACKETS
- Assemble 4 angle brackets to the ceiling mounting bracket using 16 no.10-32 x 1/2″ quadrex screws (4 per angle bracket).

- Determine angle brackets length based upon ceiling height and desired height of hood above cooktop. If required, assemble a second set of 4 angle brackets to the upper angle bracket set according to the length needed. Use 16 no. 10-32 x 1/2″ quadrex screws and 16 no. 10-32 lock nuts (4 at each angle bracket connection).
FOR 10-FT. CEILINGS
Both lower and upper flues are included with the hood, but for a 10-ft. ceiling, discard the provided upper flue and use the optional extension flue, part AEICB3SB (stainless steel) or AEICB3BLS (black stainless steel) (sold separately). Four additional angle brackets and additional mounting hardware are included with the optional flue extension.
If need be, assemble a third set of 4 angle brackets to the second angle bracket set according to the length needed. Use 16 no. 10-32 x 1/2″ quadrex screws and 16 no. 10-32 lock nuts (4 at each angle bracket connection).
REMOVE HYBRID FILTERS
Rest the range hood on a table. Protect the table to avoid damaging it. Remove tape on filters. Lift filters by pushing them towards the back of the hood (opposite to control side) and flip, then set filters aside.
INSTALL GLASS PANELS (SBN MODEL ONLY)
The SBN hood model decorative glass panels are sold separately and have to be installed before completing the hood installation.
- Carefully remove glass panel from its packaging. Remove glass panel nuts (factory installed) from both studs and set aside.
- Insert glass panel studs in appropriate hood holes.
NOTE: Install the glass panel with the control pictograms on - While holding glass panel, pre-tighten the previously removed nuts by hand. Ensure glass panel is centered. Then, using a 3/8” socket, tighten nuts completely.
- Repeat the same steps for the second glass panel installation.

PREPARE HOOD (ALL MODELS)
- From inside the hood, disconnect the blower.
- Remove the electrical box cover retaining screw. Set cover and screw aside.

- Turn the hood over and remove blower box 8 retaining screws (only 4 out of 8 screws illustrated at right). Set hood and screws aside.

- Lift flap located on top right hand corner of blower box (1) to ease wire clamp installation (included). Install wire clamp and push flap back in place. Secure flap to blower box (2) using 1 no. 8 x 3/8″ quadrex screw.
NOTE: Install wire clamp diagonally (as illustrated in image 2), otherwise it will be difficult to tighten its screws once the blower box is attached to the angle brackets.
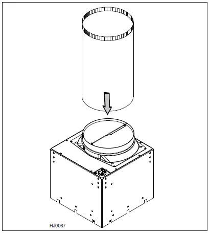
- Attach the adapter/damper to the blower box using 4 no. 8 x 3/8″ quadrex screws (included). Remove tape on damper.

- Measure the required length of 8″ round metal duct from the adapter/damper to the ductwork rough-in in the ceiling. Connect this section of duct to the adapter/damper and seal joint with metal foil duct tape.

INSTALL HOOD
WARNING
BE CAREFUL when installing the decorative flue and hood, they may have sharp edges.
CAUTION
DO NOT REMOVE the protective plastic film covering the decorative flue (upper and lower) and the hood yet.
- Attach blower box assembly to lower angle brackets using 16 no. 10-32 x 1/2″ quadrex screws (4 per angle brackets). Connect hood duct to ceiling duct and seal joint with metal foil duct tape.
NOTE: Ensure electrical channel is facing where the front of the hood will be positioned.
- Run house wiring through wire clamp into blower box electrical channel. Tighten wire clamp to secure house wiring cable to blower box.
NOTE: The length between the top of the blower box and the bottom of the hood is 12 3⁄16″. - Slide the upper flue up to the ceiling and secure it to the mounting plate using 2 no. 8 x 1/2″ quadrex screws for stainless steel model or 2 no. 8 x 1/2” quadrex black screws for black stainless steel model (1).
NOTE: Ensure flue seam is on the opposite side of the hood controls.
Carefully slide the lower flue over the upper flue up to the ceiling and have the second person hold it to the ceiling (2) while performing step 4, or secure it up using appropriate tape.
- Attach the hood to the blower box using the 8 screws previously removed at step 8.3 (only 4 out of 8 screws are illustrated at right). Make sure that the house wiring goes into the electrical compartment.

- Slide the lower flue down on top of the hood and secure from inside the hood using 4 no. 8 x 3/8″ quadrex screws (included).

- Remove protective plastic film from hood and flues.
CONNECT WIRING
WARNING
Risk of electric shock. Electrical wiring must be done by qualified personnel in accordance with all applicable codes and standards. Before connecting wires, switch power off at service panel and lock service disconnecting means to prevent power to be switched on accidentally.
- Connect hood power cable to house wiring using provided wire connectors: BLACK to BLACK, WHITE to WHITE and GREEN or BARE wire to GREEN ground screw. DO NOT FORGET TO CONNECT THE GROUND.
Reinstall electrical box cover ensuring its 3 tabs are tucked inside the electrical channel.
- Connect blower.

REINSTALL HYBRID FILTERS
CAUTION
Remove protective plastic film covering filters before reinstalling them.
Rest rear filters edge on filter springs in the range hood. Tilt up the filters into position. Make sure filter tabs are securely engaged in range hood front edge slots after installation.
LED LIGHTING
The lighting of this hood is produced by two LED modules (included).
WARNING
Do not touch lamps during or soon after operation. Burns may occur. Cannot be replaced by any other type of light bulb or LED module.
CARE
WARNING
Before servicing or cleaning the unit, switch power off at service panel and lock service panel to prevent power from being switched on accidentally. When the service disconnecting means cannot be locked, securely fasten a prominent warning device, such as a tag, to the service panel.
HYBRID FILTERS
Hybrid filters should be cleaned monthly. Remove hybrid filters by pushing them towards the back of the hood and rotating them downward. Use a warm detergent solution to clean the filters. Let them dry and reinstall them. Hybrid filters are dishwasher safe. Clean all-metal filters in the dishwasher using a non-phosphate detergent. Discoloration of the filter may occur if using phosphate detergent or as a result of local water conditions — but this will not affect filter performance. This discoloration is not covered by the warranty.
STAINLESS STEEL
Do:
- Regularly wash with clean cloth or rag soaked with warm water and mild soap or liquid dish detergent.
- Always clean in the direction of original polish lines.
- Always rinse well with clear water (2 or 3 times) after cleaning. Wipe dry completely.
- You may also use a specialized household stainless steel cleaner.
Don’t:
- Use any steel or stainless steel wool or any other scrapers to remove stubborn dirt.
- Use any harsh or abrasive cleansers.
- Allow dirt to accumulate.
- Let plaster dust or any other construction residues reach the hood. During construction/renovation, cover the hood to make sure no dust sticks to stainless steel surfaces.
GLASS PANEL
Hot water with mild soap or glass cleaner is all that is usually needed.
When using mild soap, rinse with clear water. Wipe dry with a clean, soft cloth to avoid water marks.
Avoid when choosing a detergent:
- Any cleaners that contain bleach. They will attack stainless steel.
- Any products containing chloride, fluoride, iodide, bromide. They will deteriorate surfaces rapidly.
- Any combustible products used for cleaning such as acetone, alcohol, ether, benzol, etc. They are highly explosive and should never be used close to a range.
OPERATION
Always turn your hood on before you begin cooking to establish an air flow in the kitchen. Let the blower run for a few minutes to clear the air after you turn off the range.
CAUTION
After a power failure or during the range hood power up, a 5-second booting sequence is executed. Wait for the control backlighting to turn off before use.
A. DELAY BUTTON/CONTROL LOCK (DOUBLE FUNCTION BUTTON):
- When a blower speed is selected, press this button to activate the delay function. The delay button will light to its high intensity, then to its mid intensity to indicate this function is activated; the selected blower speed button will alternate every 2 seconds between its high intensity and its mid intensity. The blower will continue to operate for 5 minutes and will stop automatically. Selecting another speed while the delay function is activated will not deactivate the function or reset the timer. To cancel the delay function, press the delay button once again, or press the selected speed button which will also turn the blower off.
- When the blower is off, it is possible to lock the control interface in order to clean the glass panel.
To lock the control interface: Press and hold this button for 2 seconds. The button will light to its high intensity and flash three times, it will then stay on its mid intensity to indicate that the control interface is locked.
To unlock the control interface: Press and hold this button for 2 seconds. The button will light to its high intensity and flash 3 times, it will then fade out to its low intensity to indicate that the control interface is unlocked.
B. SPEED SELECTION BUTTONS:
Press the button corresponding to the desired blower speed (from 1 for low speed to 4 for high speed). The chosen speed button will light to its high intensity then fade to its mid intensity. To turn off the blower, press once more on the corresponding blower speed button; the button light will fade to its low intensity.
NOTE: When blower is off, pressing on blower speed 1 button will cause the blower to start on second speed for a very short lapse of time,
and then resume to speed 1.
NOTE: To decrease the maximum airflow from 600 CFM to 300 CFM, follow the instructions of the 300 CFM CRT kit (included with the
unit, envelope no. 23894, or order SV23894 part).
HEAT SENTRY™: The hood is equipped with a HEAT SENTRY thermostat. If blower is ON at a lower speed setting and excessive heat is detected above the cooking surface, it turns the blower up to third speed. When the temperature level drops to normal, the blower will return to its original setting.
NOTE: When Heat Sentry is activated, the “DELAY OFF” function is inactivated.
WARNING
The Heat Sentry can change the blower speed when excessive heat is detected above the cooking surface. If this situation occurs and you must stop the blower, press on the third speed button or on the master ON/OFF button.
C. MASTER ON/OFF:
When the blower and lights are off, press this button to turn the hood on to the last memorized speed level and light intensity. If there are no memorized speed level and light intensity, speed will be set at level 1 and light intensity at 3. To turn off the blower and the light simultaneously, press this button once.
D. LIGHT BUTTON/BACKLIGHTING COLOR (DOUBLE FUNCTION BUTTON):
- This button allows three different lighting levels according to your needs. Press once for full intensity, twice for intensity level 2, and once more for nightlight. To turn off the lights, press once more.
If desired, when the lights are on, press and maintain the light button for 1 second; lights will be turned off.
NOTE: When only the lights are ON to any intensity and no interaction with the hood is detected for a 10-second period, the 7 buttons backlighting will fade to its low intensity, acting as a night light feature. - When lights are off, pressing and holding this button for 1 second will switch the backlighting color from white to blue or from blue to white (default backlighting color is white) and memorize it. The button will flash three times to indicate that the color change has been made.
NOTE: Due to the particular sensitivity of the control interface, keep the glass panel clean as dirt and condensation may cause erratic operation of the hood blower and/or lighting. If this situation occurs, wipe the glass panel and wait 90 seconds. Then, adjust the blower and/or lighting at your convenience.
REMOTE CONTROL:
This hood can also be operated using the optional ACR3 remote control (purchase separately). NOTE: For more information, refer to the instructions included with the remote control.
WIRING DIAGRAM
WARNING
Risk of electric shock. Electrical wiring must be done by qualified personnel in accordance with all applicable codes and standards. Before connecting wires, switch power off at service panel and lock service disconnecting means to prevent power from being switched on accidentally.
SERVICE PARTS

| KEY NO. | PART NO. | DESCRIPTION | QTY. |
| 1 | SV09956XX* | FRONT GLASS PANEL | 1 |
| 2 | SV22427 | ELECTRONIC CONTROL | 1 |
| 3 | SV21221 | POWER UNIT | 1 |
| 4 | SV20816 | PCB FOR REMOTE CONTROL | 1 |
| 5 | SV09022 | TRANSFORMER | 1 |
| 6 | SV08582 | INTERNAL BLOWER | 1 |
| 7 | 62248 | LED DRIVER AND CONNECTION HARNESS | 1 |
| 8 | 62612 | LED MODULE (1) | 2 |
| 9 | SV62053 | HYBRID FILTER 15.875” X 14” x 0.5” (1) | 2 |
| 10 | SV09957XX* | BACK GLASS PANEL | 1 |
| 11 | SV08543 | 8” ROUND ADAPTER/DAMPER | 1 |
| 12 | SV09518 | ANGLE BRACKET KIT (4) | 2 |
| 13 | SV19232 | INSTALLATION BRACKET | 1 |
| 14 | SV19231 | UPPER FLUE COVER, STAINLESS STEEL | 1 |
| SV66427 | UPPER FLUE COVER, BLACK STAINLESS STEEL | 1 | |
| 15 | SV19230 | LOWER FLUE COVER, STAINLESS STEEL | 1 |
| SV66428 | LOWER FLUE COVER, BLACK STAINLESS STEEL | 1 | |
| ** | SV23894 | CRT KIT 300 CFM (OPTIONAL) | 1 |
| ** | SV23866 | INSTALLATION MANUAL | 1 |
| ** | SV09871 | PARTS BAG | 1 |
| ** | SV05869 | BEST LOGO | 1 |
*PART NUMBER ACCORDING TO GLASS PANEL COLOR, PLEASE CONTACT CUSTOMER SERVICE OR REFER TO WEB SITE. **ITEM NOT SHOWN.
REPLACEMENT PARTS AND REPAIRS
In order to ensure your unit remains in good working condition, you must use Broan-NuTone genuine replacement parts only. Broan-NuTone genuine replacement parts are specially designed for each unit and are manufactured to comply with all the applicable certification standards and maintain a high standard of safety. Any third party replacement part used may cause serious damage and drastically reduce the performance level of your unit, which will result in premature failing. Broan-NuTone recommends to contact a certified service depot for all replacement parts and repairs.
WARRANTY
FIVE-YEAR LIMITED WARRANTY FOR BEST® PRODUCTS
Warranty Period and Exclusions: Broan-NuTone, LLC (the “Company”) warrants to the consumer purchaser of its product (“you”) that the product (the “Product”) will be free from material defects in the materials or its workmanship for a period of five (5) years from the date of original purchase (or such longer period as may be required by applicable law) or a period of two (2) years from the date of service for any labor provided on the Product.
The limited warranty period for any replacement parts provided by the Company and for any Products repaired or replaced under this limited warranty shall be the remainder of the original warranty period (or such longer period as may be required by applicable law).
THIS WARRANTY DOES NOT EXTEND TO FLUORESCENT LAMP STARTERS, TUBES AND BULBS, FUSES, FILTERS, DUCTS, ROOF CAPS, WALL CAPS AND OTHER ACCESSORIES FOR DUCTING. This warranty does not cover (a) normal maintenance and service, (b) normal wear and tear, (c) any Products or parts which have been subject to misuse, abuse, abnormal usage, negligence, accident, improper or insufficient maintenance, storage or repair (other than repair by the Company), (d) damage caused by faulty installation, or installation or use contrary to recommendations or instructions, (f) damage caused by exposure to salt air, (g) damage in transit, (h) natural wear of finish, (i) Products in commercial or nonresidential use, (j) damage caused by fire, flood or other act of God, or (k) Products with altered, defaced or removed serial numbers. This warranty covers only Products sold to consumers in North America. This warranty supersedes all prior warranties and, subject to applicable law, is not transferable from the original consumer purchaser.
No Other Warranties: This Limited Warranty contains the Company’s sole obligation and your sole remedy for defective Products. The foregoing warranties are exclusive and in lieu of any other warranties and conditions, express or implied.
TO THE MAXIMUM EXTENT PERMITTED BY APPLICABLE LAW, THE COMPANY DISCLAIMS AND EXCLUDES ALL OTHER EXPRESS WARRANTIES AND CONDITIONS, AND DISCLAIMS AND EXCLUDES ALL WARRANTIES AND CONDITIONS IMPLIED BY LAW, INCLUDING WITHOUT LIMITATION THOSE OF MERCHANTABILITY AND FITNESS FOR A PARTICULAR PURPOSE. To the extent that applicable law prohibits the exclusion of implied warranties or conditions, the duration of any applicable implied warranty or condition is limited to the period specified for the express warranty above. Some jurisdictions (which may include the Province of Quebec or specific US states) do not allow limitations on how long an implied warranty lasts, so the above limitation may not apply to you. Any oral or written description of the Product is for the sole purpose of identifying it and shall not be construed as an express warranty.
Whenever possible, each provision of this Limited Warranty shall be interpreted in such manner as to be effective and valid under applicable law, but if any provision is held to be prohibited or invalid, such provision shall be ineffective only to the extent of such prohibition or invalidity, without invalidating the remainder of such provision or the other remaining provisions of the Limited Warranty.
Remedy: During the applicable limited warranty period, the Company will, at its option, provide replacement parts for, or repair or replace, without charge, any Product or part thereof, to the extent the Company finds it to be covered by and in breach of this limited warranty under normal use and service. The Company will ship the repaired or replaced Product or replacement parts to you at no charge. You are responsible for all costs for removal, reinstallation and shipping, insurance or other freight charges incurred in the shipment of the Product or part to the Company. If you must send the Product or part to the Company, as instructed by the Company, you must properly pack the Product or part—the Company is not responsible for damage in transit. The Company reserves the right to utilize reconditioned, refurbished, repaired or remanufactured Products or parts in the warranty repair or replacement process. Such Products and parts will be comparable in function and performance to an original Product or part and warranted for the remainder of the original warranty period (or such longer period as may be required by applicable law).
Company reserves the right, in its sole discretion, to refund the money actually paid by you for the Product. If the Product or component is no longer available, replacement may be made with a similar product of equal or greater value, at Company’s sole discretion. This is your sole and exclusive remedy for breach of this limited warranty.
Exclusion of Damages: THE COMPANY’S OBLIGATION TO PROVIDE REPLACEMENT PARTS, OR REPAIR OR REPLACE, AT THE COMPANY’S OPTION, SHALL BE YOUR SOLE AND EXCLUSIVE REMEDY UNDER THIS LIMITED WARRANTY AND THE COMPANY’S SOLE AND EXCLUSIVE OBLIGATION. THE COMPANY SHALL NOT BE LIABLE FOR INCIDENTAL, INDIRECT, CONSEQUENTIAL OR SPECIAL DAMAGES ARISING OUT OF OR IN CONNECTION WITH THE PRODUCT, ITS USE OR PERFORMANCE.
Some jurisdictions do not allow the exclusion or limitation of incidental or consequential damages, so the above limitation or exclusion may not apply to you. This warranty gives you specific legal rights, and you may also have other rights, which vary from jurisdiction to jurisdiction. The disclaimers, exclusions, and limitations of liability under this warranty will not apply to the extent prohibited by applicable law.
This warranty covers only replacement or repair of defective Products or parts thereof at the Company’s main facility and does not include the cost of field service travel and living expenses.
Any assistance the Company provides to or procures for you outside the terms, limitations or exclusions of this limited warranty will not constitute a waiver of such terms, limitations or exclusions, nor will such assistance extend or revive the warranty. The Company will not reimburse you for any expenses incurred by you in repairing or replacing any defective Product, except for those incurred with the Company’s prior written permission.
How to Obtain Warranty Service: To qualify for warranty service, you must (a) notify the Company at the address or telephone number stated below within seven (7) days of discovering the covered defect, (b) give the model number and part identification and (c) describe the nature of any defect in the Product or part. At the time of requesting warranty service, you must present evidence of the original purchase date. If you cannot provide a copy of the original written limited warranty, then the terms of the Company’s most current written limited warranty for your particular product will control.
PRODUCT SPECIFICATIONS
All illustrations and specifications in this catalog are based on the latest product information available at time of production. Broan-NuTone, LLC and BEST® reserves the right to make changes at any time, without notice, in prices, colors, materials, equipment, specifications and models, place of manufacture and to discontinue models or equipment.
Best
Broan-NuTone, LLC- 926 W. State Street, Hartford, WI 53207 1-800-637-1453
Best®, 550 Lemire Blvd., Drummondville, QC, Canada (1-866-737-7770) www.bestrangehoods.com



































