FISHER PAYKEL HP60ICSX3 Built-In Integrated Rangehood

HP60ICSX3 and HP90ICSX3 models
IMPORTANT!
SAVE THESE INSTRUCTIONS
The models shown in this user guide may not be available in all markets and are subject to change at any time. For current details about model and specification availability in your country, please go to our website fisherpaykel.com or contact your local Fisher & Paykel dealer.
Registration
Register your product with us so we can provide you with the best service possible.
To register your product visit our website: fisherpaykel.com
SAFETY AND WARNINGS
WARNING!
- Weight Hazard
The appliance is heavy. Please ensure adequate care is taken when installing the appliance to prevent personal injury. The appliance must be installed onto a solid wall, stud, beam or truss. Weight of the product is 8.5 kg (HP60) / 9.5 kg (HP90). - Electric Shock Hazard
Always disconnect the appliance from the mains power supply before carrying out any maintenance or repairs. Alterations to the domestic wiring system must only be made by a qualified electrician.
Failure to follow this advice may result in electrical shock or death.
IMPORTANT SAFETY INSTRUCTIONS
WARNING!
When using this appliance always exercise basic safety precautions including the following:
- Read the entire set of instructions before installing or using this appliance.
- Please make this information available to the person installing the appliance –doing so could reduce your installation costs.
- Always switch the power off prior to installation, servicing or cleaning of the rangehood.
- This appliance must be installed and connected to the mains power supply only by a suitably qualified person according to these installation instructions and in compliance with any applicable local building and electricity regulations. Failure to install the appliance correctly could invalidate any warranty or liability claims.
- To comply with electrical safety regulations, the rangehood must be plugged into a socket near the appliance. The socket must be accessible, or have an accessible isolating switch, to enable the end user to isolate the rangehood from the power for the purpose of internal cleaning or maintenance.
- A power outlet should be within 750 mm of the motor assembly and can either be on the wall, behind the chimney or in the ceiling.
- If the supply cord of this equipment is damaged, it must only be replaced by the manufacturer, its service agent or similarly qualified person in order to avoid a hazard.
- Ducting accessories are not supplied. All ducting must comply with local requirements and building codes.
- Attention should be given to ensure that any applicable regulations concerning the discharge of exhaust air are fulfilled.
- Before connecting any pipes, consult municipal ordinances to ensure that any applicable regulations concerning the discharge of exhaust air are adhered to and request permission from the person in charge of the building.
- Exhaust air must not be discharged into an existing flue that is used for exhausting fumes from appliances burning gas or other fuels.
- There shall be adequate ventilation of the room when the rangehood is used at the same time as appliances burning gas or other fuels.
- The minimum distance between the supporting surface for cooking vessels on the cooktop and the lowest part of the rangehood shall be 600 mm or 650 mm if installed over a gas cooktop.
- Stainless steel is very easily damaged during installation if abraded or knocked by tools. It is recommended to protect the top of the rangehood with cardboard or polystyrene during the installation to minimise the risk of damage occurring.
- To reduce the risk of damage occurring to the cooktop, it is recommended that the surface of the cooktop is protected with cardboard or a similar object during installation of the rangehood.
- This appliance is not intended for use by persons (including children) with reduced physical, sensory or mental capabilities, or lack of experience and knowledge, unless they have been given supervision or instruction concerning the use of the appliance by a person responsible for their safety.
- Children should be supervised to ensure they do not play with the appliance. Cleaning and user maintenance shall not be made by children without supervision.
- Never leave frying food unattended since grease can overheat and catch fire. The risk of fire is even greater in the case of used oil.
- During an electrostatic discharge (ESD) it is possible that the device will stop working. By switching the device off and on the device will again work as intended.
- CAUTION: accessible parts may become hot when used with cooking appliances.
- Remove all packaging, including protective wrappings, before use.
INSTALLATION INSTRUCTIONS
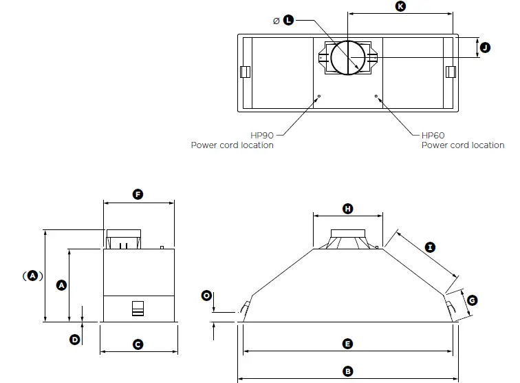
Product and cabinetry cutout dimensions 

| HP60ICSX3 | HP90ICSX3 | |||
| PRODUCT DIMENSIONS | mm | mm | ||
| A Overall height of product | 325 | 260 | ||
| (with ducting adapter) | (404) | (330) | ||
| B Overall width of product | 492 | 792 | ||
| C Overall depth of product | 277 | 277 | ||
| D Thickness of flange | 1 | 1 | ||
| E Width of chassis | 450 | 750 | ||
| F Depth of chassis | 255 | 255 | ||
| G Height of side of chassis | n/a | 100 | ||
| H Width of top surface of chassis | 265 | 250 | ||
| I Length of angled surface of chassis | 335 | 273 | ||

| L Diameter of ducting outlet | 125 | 125 | ||
| M Distance between centre of lights | 340 | 385 | ||
CABINETRY CUTOUT DIMENSIONS
| Overall width of cutout | 460 | 760 | ||
| Overall depth of cutout | 260 | 260 | ||
| O Base of brackets/clips to bottom of chassis | min. 15 – max. 35 | min. 15 – max. 35 |
IMPORTANT!
Actual product dimensions may vary by ± 2 mm.
Please read the entire instructions before installing the rangehood.
Height of rangehood
MINIMUM CLEARANCES
- Height top of cooktop to base of product Electric cooktop Gas cooktop
min. 600 – max. recommended 750 min. 650 – max. recommended 750
This rangehood must be installed no lower than the minimum height indicated in the table above. Minimum installation height may be greater if required by the cooktop manufacturer or safety and warnings section on this user guide. Installation at the minimum height will improve efficiency of capturing cooking odours, grease and smoke. Installation at the maximum height improves ergonomics by offering increased head room.
Induction cooking considerations
- Induction cooktops use energy efficient technology that only heats the contents of a cooking pot.
- Unlike gas or traditional electric cooktops, the surrounding air does not get heated when using an induction cooktop. As a result, rangehood filters, splashbacks and surrounding cabinetry do not get warmed up, increasing the likelihood of condensation on these cooler surfaces.
- Other factors like ambient temperature, humidity, natural ventilation of the room, size of the cookware and how the induction cooktop is being used also influence condensation. For example, aggressive boiling on high cooktop heat settings like PowerBoost increases the rate at which water is evaporated, increasing the likelihood of condensation.
- It is important to understand that neither the rangehood nor the induction cooktop are faulty as a result of this phenomenon.
Condensation can be minimised by:
Installing the rangehood at the maximum height above the cooktop as specified in this user guide.
Using the rangehood on a lower speed setting when boiling.
Using the induction cooktop on a lower heat setting when boiling.
Switching the rangehood on 5 minutes before cooking and letting it run for at least 5 minutes after cooking.
Venting options
Attention should be given to ensure that any applicable regulations concerning the discharge of exhaust air are fulfilled.
The rangehood can be installed to operate with the exhaust air ducted externally from the kitchen, or installed to operate with the exhaust air recirculating within the kitchen.
Ducted
For ducted installation it is recommended that 125 mm diameter, rigid or semi-rigid ducting is used. This will require a 135 mm (min) round hole in the ceiling or wall. Care should be taken to position the hole correctly.
For optimal efficiency use the shortest and straightest duct route possible and use rigid or semi-rigid ducting for reduced noise and increased airflow. Flexible metal ducting should only be used as a last resort (ie in difficult installations) and if used ensure that it is straight and smooth and extended as much as possible.
Recirculating
Where ducting outside is not a practical option, this rangehood can be installed to operate with the air recirculating. Carbon filters are required to remove odours from the air before it is channelled back into the room or overhead bulkhead (refer to ‘Cleaning and Maintenance’ section). Ensure that the ducting outlet is not obstructed, even a partial obstruction will restrict the efficiency of the rangehood.
WARNING!
- This appliance is heavy and requires two persons for unpacking and installation
- Installation work and electrical wiring must be done by qualified person(s) in accordance with all applicable codes and standards.
- Failure to install the screws or fixing device in accordance with these instructions may result in electrical hazards
IMPORTANT!
Wear gloves to protect against sharp edges.
The manufacturer is not liable for any damage caused by not following these instructions.
Installation
Prepare for installation.
Before installing your rangehood:
- Please read the instructions carefully.
- Unpack the rangehood and check that all functions are working.
- Ensure that the voltage (V) and the frequency (Hz) indicated on the serial plate match the voltage and frequency at the installation site.
- The stainless steel and glass surfaces of the rangehood are very easily damaged during installation if grazed or knocked by tools. Please take care to protect the surfaces during installation.
- Protect the cooktop surface below with cardboard, or the like, to prevent damage occurring whilst the rangehood is being installed above.
Fit the 125 mm ducting adapter with non return flap to the rangehood using the screws supplied.
Provide an opening on the underside of the cupboard (see product and cabinetry cutout dimensions)
Remove the filter from the rangehood.
Connect duct and plug rangehood in.
Lift the rangehood and fit through the opening of the cupboard till the spring loaded brackets / clips hold the product in place.
Secure rangehood while tightening the 2 brackets / clips. 
Control panel

CLEANING AND MAINTENANCE
WARNING!
- Unplug or disconnect the appliance from the power supply before servicing or cleaning.
- When replacing the bulb, let the bulb cool, and assure that power to the rangehood has been turned off. Use new bulbs according to that indicated on the rangehood nameplate.
IMPORTANT! - Never use abrasive or oil based cleaners.
- Wear gloves to protect against sharp edges.
Maintenance
The rangehood should be cleaned regularly using a mild, liquid detergent and a clean soft cloth to avoid a build-up of grease occurring. Avoid the use of corrosive chemicals, abrasive cleaning products, hard brushes and steel wool pads. Grease deposits are corrosive which can cause damage to your rangehood.
Note: in areas of high humidity or coastal environments, cleaning should be carried out more frequently.
Aluminium filters
- Depending on use, and at least once a month, the aluminium grease filters should be removed and cleaned with hot soapy water or in a dishwasher.
- If washed in a dishwasher, the filters should be placed in an upright position to prevent food from falling on them.
- After rinsing and drying, replace the filters.
Note: some discolouration of the frames may occur.
Removing the aluminium filters:
- Pull the relative filter catch, tilting it downwards until it disengages from the supports.
- Reverse these instructions when refitting the filters.
Carbon filters – for use in recirculation mode
Active carbon filters are disposable items designed to remove grease and odours from cooking vapours before the air is channelled back into the kitchen. The active carbon filters must be replaced periodically to work properly, at least once every three months, depending on the frequency with which the rangehood is used.
IMPORTANT!
- Carbon filters are disposable items and must be replaced at least every three months.
Saturated carbon filters can become a barrier to air movement, therefore limiting your range hoods performance.
In the event of a fire, grease laden filters could be flammable.
Fitting the carbon filters:
- Ensure the range hood is switched off.
- Remove the aluminum grease filters from the range hood.
- Place a carbon filter on each side of the blower inlet using the keyhole slots for alignment (refer to A), turn the filter until it clips into place (refer to B).
Note: The direction will be clockwise on one side of the blower and counterclockwise on the other side of the blower. - Refit aluminium grease filters.

Light bulb replacement
ILCOS D Code: DRR-3.5-220/240-GU10-50/50
- To replace a light bulb, first disconnect the rangehood from its power supply.
- Apply finger pressure to the face of the light bulb and twist one quarter turn anti-clockwise—the light bulb will now be free to drop out.
- Remove the faulty bulb and fit replacement bulb into the lamp holder.
- Refit the light bulb by applying finger pressure and twist one quarter turn clockwise.
Note: replacement bulbs are not covered by Manufacturer’s Warranty.

PARTS AND ACCESSORIES
| ITEM | REFERENCE NUMBER | |
| LED bulb | 792603 | |
| Aluminium filter (HP60) | 792459 | |
| Aluminium filter (HP90) | 792427 | |
| Recirculation carbon filter x2 | 791772 | |
| 150 mm ducting adapter with non return flap | 792454 |
SERVICE & WARRANTY
For details of your Manufacturer’s Warranty and contacts for servicing, please refer to your separate service and warranty book provided with your range hood.
- Complete and keep for safe reference:
- Model
- Serial No.
- Purchase Date
- Purchaser
- Dealer
- Suburb
- Town
- Country
© Fisher & Paykel Appliances 2019. All rights reserved.
The product specifications in this document apply to the specific products and models described at the date of issue. Under our policy of continuous product improvement, these specifications may change at any time. You should therefore check with your Dealer to ensure this document correctly describes the product currently available.




















