iLiving ILG8SF18VC Smart Remote Shutter Exhaust Fan with Thermostat
Introduction
Reduce your home’s high cooling costs. Our wall-mounted automatic shutter vent fan is ready to be installed and is intended to help keep your living area cooler and more pleasant all year round. Any room in your house, including the attic, garage, shed, and more, may be perfectly cooled and ventilated. The fully enclosed motor is thermally shielded, corrosion-resistant, permanently lubricated, and requires minimal maintenance. Make your comfort unique. When used in conjunction with the iLIVINGILG8SFSC speed controller, the iLIVING exhaust fan provides adjustable speed functionality (sold separately).
These shutters are made of sturdy, high-grade aluminum and can endure heat and moisture longer than those of rivals’ products, extending the life of the fan. You’ll appreciate the strength and effectiveness of iLiving’s Shutter Exhaust Fan, which is small yet formidable. The 18-inch cools and ventilates a space at a rate of 1736 cubic feet per minute while using standard 120 volts at 1/15 HP, 0.85 amps, and 1060 rotations per minute!
GENERAL SAFETY INSTRUCTIONS
Fans are UL/CUL Listed, Standard 705.
- Do not depend on any switch as the sole means of disconnecting power when installing or servicing the fan.
- Always disconnect, lock out, and tag-out power source before installing or servicing. Failure to disconnect the power source can result in fire, shock, or serious injury.
- The motor will restart without warning after thermal protector trips. Do not touch operating motor; it may be hot enough to cause injury.
- Do not place body parts or objects in fan or motor openings while motor is connected to the power source.
- All electrical connections should be made by a qualified electrician.
- These utility exhaust fans are for general-purpose exhaust applications only. Do not use these exhaust fans in an area where corrosive or explosive materials may be found.
- Follow all local and state/provincial electrical and safety codes in the United States and Canada, as well as the National Electrical Code (NEC) and the Occupational Safety and Health Act (OSHA) in the United States, and the Canadian Electric Code (CEC) in Canada.
- Always disconnect power source before working on or near a motor or its connected load.
- Protect the power cable from coming in contact with sharp objects.
- Do not kink or create tight bends in the power cable and never allow the cable to come in contact with oil, grease, hot surfaces, or chemicals.
- Make certain that the power source conforms to the requirements of your specific exhaust fan model. The fan frame and motor must be electrically grounded to a suitable electrical ground, such as a grounded water pipe or ground wire system.
- To reduce the risk of injury to persons, please observe the following: In the United States, OSHA compliant guards are required when fan is installed within 7 feet of the floor or working level. In Canada, CSA compliant guards are required when fan is installed below 2.5 meters (8.2 feet) above the floor or grade level.
- Questions? Please contact our service center by calling 1-800-317- 1688.
INSTALLATION INSTRUCTIONS
- The unit should be securely mounted in a rigid framework.
NOTE: Allowing the fan frame to flex or move will result in excess vibrations, which may cause possible premature motor, propeller, or shutter failure. - Install any auxiliary components such as thermostats, switches, or speed controls.
- Connect power to the motor using an approved wiring method. Refer to the following wiring diagrams: Figure 1 & Figure 2.
Fan frame and motor must be securely and adequately grounded to a suitable electrical ground, such as a groundwater pipe or ground wiring system.


GENERAL SPECIFICATIONS
| Power source | 115V, 60Hz |
| Mounting Position | Vertical |
| Frame Material | Galvanized Steel |
| Shutter Blade Material | Aluminum Alloy |
| Propeller Material | Aluminum Alloy and Galvanized Steel |
| Agency Compliance | UL/CUL 705 |
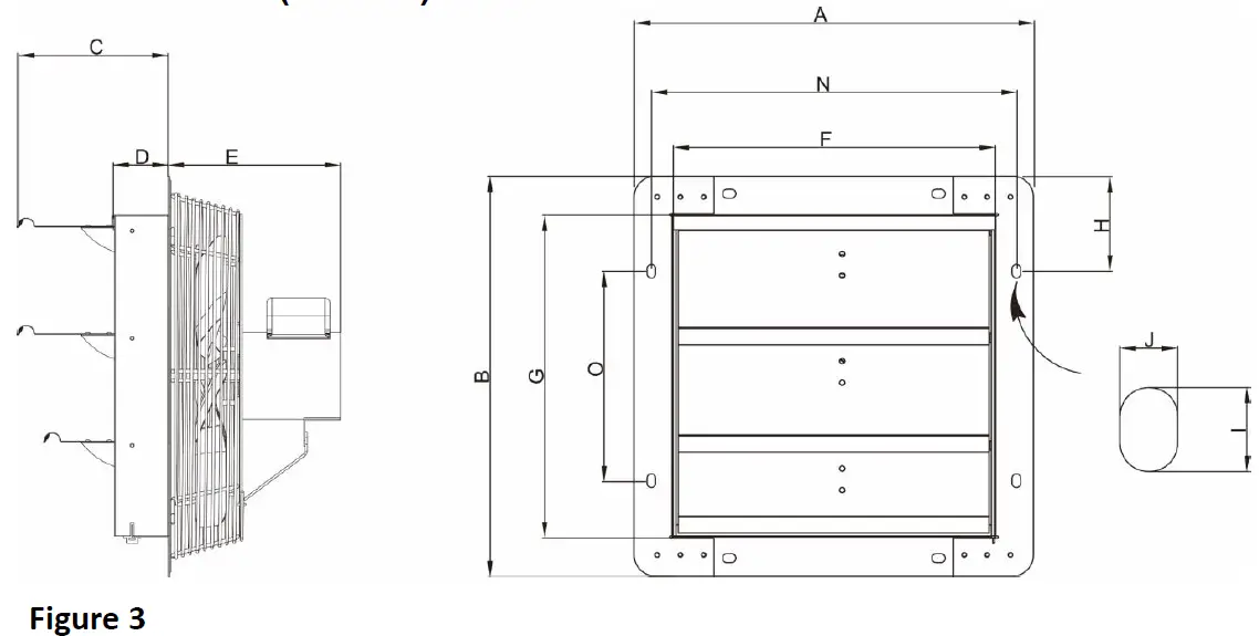
DIMENSIONS (INCHES)

|
MODEL |
Prop. Dia. |
A |
B |
C |
D |
E |
N |
G |
F |
O |
H |
J |
I |
Suggested wall opening (Sq) |
| ILG8SF7V | 7″ | 11″ | 11″ | 5 3/4″ | 2″ | 5 7/8″ | 9 21/32″ | 8 1/8″ | 8 1/8″ | 4 1/16″ | 3 17/32″ | 9/32″ | 1/2″ | 8 1/2″ |
| ILG8SF10V | 10″ | 13″ | 13″ | 4 17/32″ | 2″ | 5 7/8″ | 11 21/32″ | 10 1/8″ | 10 1/8″ | 6″ | 3 17/32″ | 9/32″ | 1/2″ | 10 1/2″ |
| ILG8SF12V | 12″ | 15″ | 15″ | 5 3/4″ | 2″ | 6 5/32″ | 13 5/8″ | 12 1/8″ | 12 1/8″ | 8″ | 3 1/2″ | 9/32″ | 1/2″ | 13″ |
| ILG8SF16V | 16″ | 18 29/32″ | 18 29/32″ | 5 3/4″ | 2″ | 7 7/8″ | 17 3/4″ | 16″ | 16″ | 11 29/32″ | 3 17/32″ | 9/32″ | 1/2″ | 17″ |
| ILG8SF18V | 18″ | 21″ | 21″ | 5 3/4″ | 2″ | 8 3/4″ | 19 11/16″ | 18″ | 18″ | 14″ | 3 17/32″ | 9/32″ | 1/2″ | 19″ |
| ILG8SF18S | 18″ | 21″ | 21″ | 5 3/4″ | 2″ | 10 13/16″ | 19 11/16″ | 18″ | 18″ | 14″ | 3 17/32″ | 9/32″ | 1/2″ | 19″ |
| ILG8SF20V | 20″ | 23″ | 23″ | 5 3/4″ | 2″ | 11″ | 21 25/32″ | 20″ | 20″ | 16″ | 3 17/32″ | 9/32″ | 1/2″ | 21″ |
| ILG8SF24V | 24″ | 27″ | 27″ | 5 3/4″ | 2″ | 11″ | 25 21/32″ | 24 1/8″ | 24 1/8″ | 20 1/32″ | 3 17/32″ | 9/32″ | 1/2″ | 25″ |
| ILG8SF30S | 30″ | 33″ | 33″ | 5 3/4″ | 3″ | 13 3/32″ | 31 5/8″ | 30 1/8″ | 30 1/8″ | 26″ | 3 17/32″ | 9/32″ | 1/2″ | 31″ |
| ILG8SF36S | 36″ | 39″ | 39″ | 5 3/4″ | 3″ | 13 11/16″ | 37 21/32″ | 36 5/32″ | 36 5/32″ | 32″ | 3 17/32″ | 9/32″ | 1/2″ | 37″ |
PERFORMANCE
|
Sones @ 0.0″ SP @ 5′ | CFM Air Delivery @ Static Pressure Shown | ||||||||
|
MODEL | Prop. Dia. | Nom. HP |
Amps | Nom. RPM | Bearing Type |
0.00″ |
0.125″ |
0.25″ | |
| ILG8SF7V | 7″ | 1/25 | 0.40 | 1550 | Sleeve | 5.37 | 242 | N/A | N/A |
| ILG8SF10V | 10″ | 1/25 | 0.55 | 1550 | Sleeve | 6.19 | 600 | 354 | N/A |
| ILG8SF12V | 12″ | 1/20 | 0.60 | 1625 | Sleeve | 5.9 | 772 | 418 | N/A |
| ILG8SF16V | 16″ | 1/20 | 0.85 | 1550 | Ball | 6.39 | 1200 | 416 | 180 |
| ILG8SF18V | 18″ | 1/15 | 0.85 | 1075 | Ball | 7.4 | 1736 | 1108 | N/A |
| ILG8SF18S | 18″ | 1/4 | 3.50 | 1725 | Ball | 7.28 | 3852 | 2836 | 2172 |
| ILG8SF20V | 20″ | 1/4 | 2.75 | 1075 | Ball | 6.67 | 3368 | 2312 | 1868 |
| ILG8SF24V | 24″ | 1/4 | 2.75 | 1075 | Ball | 7 | 4244 | 2676 | 2220 |
| ILG8SF30S | 30″ | 1/3 | 3.30 | 825 | Ball | 7.01 | 5088 | 3432 | 1552 |
| ILG8SF36S | 36″ | 1/2 | 6.00 | 825 | Ball | 8.24 | 6128 | 4380 | 2620 |
OPERATING INSTRUCTIONS
- Keep the area free of objects that could impede air flow on both the intake and exhaust side of fan.
- For proper exhaust operation, a window, door, or louver should be opened for fresh air intake on the opposite side of the area to be ventilated.
- Turn the fan ON; the shutter will open automatically. When the unit is turned OFF, the shutter will close.
- Speed controllable units are designed to operate at a minimum of fifty percent line voltage.
MAINTAINANCE
- Disconnect power source before servicing.
- Periodically clean off accumulated dirt from the propeller, guard, motor, and shutter.
- Do not depend on any switch as the sole means of disconnecting power when installing or servicing. If power disconnect is not visible, utilize OSHA Lock out/Tag out procedure.
- Failure to do so may result in fatal electrical shock. Employ proper lock-out/tag-out procedures when performing maintenance.
TROUBLESHOOTING
| Symptom | Possible Cause(s) | Solution |
|
Excessive noise | Dry motor bearings | Re-lubricate motor
bearings as per instructions or replace motor. |
| Loose propeller | Tighten set screws on propeller hub. | |
| Bent or damaged propeller | Replace propeller | |
| Loose guard assembly or motor fasteners. | Tighten as required to 15- 20 lbs. per inch. | |
| Fan inoperative | Blown fuse or open circuit breaker | Replace fuse or reset circuit breaker |
| Defective motor | Replace motor | |
| Switch in OFF position | Turn switch ON | |
|
Insufficient air flow | Blocked intake or exhaust opening | Clear intake and exhaust openings of any obstructions.
Clean motor, guard, propeller, and shutter assembly. Increase the opening of the fresh air intake. |
| Low voltage | Check electrical wiring. | |
| Speed control set too low | Increase speed with controller |
FAQs
Mine came with remote control. I would think they all would. It works great. Put it in my attic. I Crack open the pull-down steps and open a couple of windows and it draws a nice breeze through the house.
This fan can be placed in a window.
We do. You can look up the instructions on YouTube.
Yes, this fan should work in your crawl space as well.
It is not silent. I have mine in the attic and I can work and hear the radio easily. The unit has a slight aluminum clatter and dull fan hum.
It’s pretty secure. The wind won’t open it. It’s actually good that the shutters are not powered – less things to have issues.
Variable Speed and Thermostat yes, you can adjust to the temperature to go on and off. Great Fan (18”) It does control the humidity, but you must have the fan come on with your pre-determined temp settings.
This shutter fan can be installed horizontally.
Remote has speed control features,(L.M.L), you don’t need a separate speed controller.
The remote control does show the temperature.
Please contact the manufacturer.
The humidistat is on the receiver.
It’s galvanized sheet metal, you could take it apart and paint it.
12 inches.
Seems to close nice enough to keep out bugs.



















