
Limit Controls
L4029E,F

INSTALL ATION INSTRUCTIONS
APPLICATION
The L4029E and F manual reset limit controls open a line or low voltage circuit if the air temperature reaches a critical level at the limit control location. The limit control may be used as a fire stat in the ductwork of air conditioning and ventilating systems. If the circulated air reaches a temperature indicative of fire, the limit control shuts off the fan. The L4029 limit control will prevent the fan from contributing to the spread of a fire.
FEATURES
- The L4029E and F are also suitable for use with any warm air furnace to provide positive lockout of the burner in theevent of fan failure.
- An internal snap switch actuated by a bimetal strip inserted directly into the air stream responds rapidly to temperature changes.
- Switch breaks and locks out to stop burner or fan operation when the temperature rises to the cutout point.
- When the temperature falls approximately 25 degrees below the cutout point, the switch may be reset by pushing the button and releasing.
SPECIFICATIONS
Model:
L4029E Manual Reset Limit Control with case and cover. L4029F Manual Reset Limit Control less case and cover.
Cutout Setting (fixed):
To break the circuit at 125,135, 165, 200, or 240 F.
Electrical Ratings (in amperes):
| 30 VAC | 120 VAC | 240 VAC | |
| Full Load | 2 | 10 | 5 |
| Locked Rotor | — | 60 | 30 |
0.25 amp full load at 0.25 to 12V dc
Switch Action:
Normally closed SPST switch opens on temperature rise to the set point. The switch must be manually reset to operate.
Maximum Ambient Temperature:
At switch 190 F, at bimetal 350 F.
Manual Reset:
Button-through the front cover. Must be pressed and released to remake switch after the temperature falls approximately 25 degrees below the cutout point.
Differential:
Manual reset only, after approximately 25 F drop in temperature.
Dimensions(in inches; excluding element):
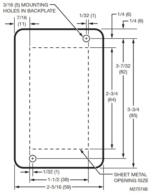
L4029E-3-3/4 high, 2-5/16 wide, 2 deep (see Fig. 1).
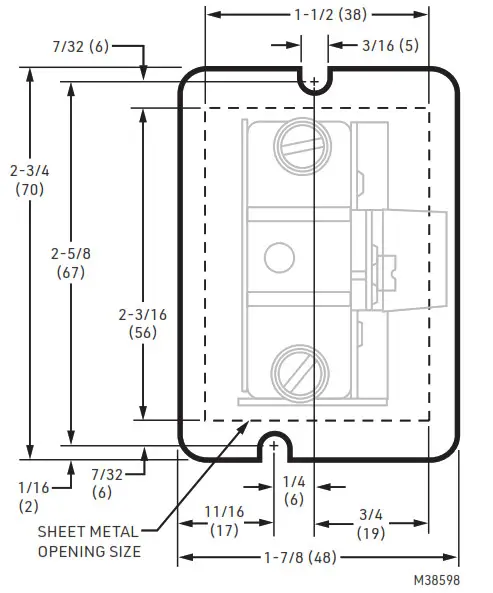
L4029F-2-3/4 high, 1-7/8 wide, 1-15/32 deep (see Fig. 2).
Element Insertion Length (in inches): 3 or 7 inches.
Mounting Means:
L4029E-two screw holes are provided through the back of the case (see Fig. 1).
L4029F-two screw notches are provided through the backplate (seeFig.2).
Wiring Knockouts (L4029E): Bottom-for 1/2-inch conduit.
Finish: Smooth gray.
Underwriters’ Laboratories, Inc. Listed:
L4029E, File No. MP465 Guide No. 167E7.
Underwriters’ Laboratories, Inc. Component Recognized:
L4029F, File No. MP466, Guide No. 167E7.

LIMIT CONTROLS

Fig. 1. Mounting and case dimensions in inches for L4029E.

Fig. 2. Mounting and backplate dimensions in inches for L4029F.
INSTALLATION
CAUTION
- The installer must be a trained, experienced serviceman.
- Disconnect power supply before making wiring connections to prevent electrical shock and equipment damage.
- Always conduct a thorough checkout when installation is complete.
Location
L4029E or F should be mounted where the element can respond quickly to air temperature changes in the system. In a ventilating or air-conditioning installation, the safety control is normally installed with elements just upstream of fan. Where there is no intake duct, the L4029E or F may be mounted on a suitable bracket so the air entering the fan is drawn across the element. In a downflow furnace installation, locate the L4029E or F between filter(s) and blower where the circulation of air is not restricted by baffles. Do not permit the element guard to touch the filter or other internal parts.
Mounting
At the selected location, cut a hole in the sheet metal to clear the element guard, and drill holes for mounting screws (see Fig. 1). Remove cover (L4029E), insert an element into the hole, and fasten control securely with screws.
Wiring
CAUTION
All wiring must agree with local codes and ordinances.
In all installations follow the equipment manufacturer’s instructions. If not available, the typical circuits in Figs. 3-5 can be used.

POWER SUPPLY. PROVIDE DISCONNECT MEANS AND OVERLOAD
PROTECTION AS REQUIRED.
M38428
Fig. 3. Typical diagram of L4029E or F in ventilating fan circuit.

POWER SUPPLY. PROVIDE DISCONNECT MEANS AND OVERLOAD
PROTECTION AS REQUIRED.
M38596
Fig. 4. Typical diagram of L4029E or F in gas-fired downflow furnace circuit.

POWER SUPPLY. PROVIDE DISCONNECT MEANS AND OVERLOAD
PROTECTION AS REQUIRED.
M38597
Fig. 5. Typical diagram of L4029E or F in oil-fired downflow furnace circuit.
CHECKOUT
There are no field adjustments to make on the L4029E or F.
To Reset
When the temperature has dropped approximately 25 degrees (F) below the cutout point, push and release the button protruding through the cover.
- If the limit control should require servicing or replacement, be sure to order by model number.
- Never use a lighted match to heat the bimetal element for checking the operation.
- Limit controls do not require lubrication.
Before leaving the job, check the installation as follows:
- Disconnect the fan from its power supply.
- Turn on the burner by operating the thermostat.
- The L4029 will shut off the burner when the plenum temperature reaches the limit set of the control.
- If the L4029 fails to shut the burner off, check the installation and wiring carefully. Retest. If control still fails to shut off the burner, replace control.
Resideo Technologies, Inc.
1985 Douglas Drive North, Golden Valley, MN 55422
1-800-468-1502
www.resideo.com 60-2263—01 M.S. Rev. 04-21 | Printed in the United States
© 2021 Resideo Technologies, Inc. All rights reserved.
This product is manufactured by Resideo Technologies, Inc. and its affiliates.



















