ANDREWS WATER HEATERS BUFFER-SS300 Cylinders and Buffers Stainless Steel

Product specification
Introduction
Congratulations on your purchase of an Andrews buffer vessel. The Andrews products are manufactured from top quality materials and meet all the latest relevant safety and constructional standards. These buffers are designed to work along side Andrews Sapelo EVO gas water heaters, and when installed in an unvented system, with an unvented system kit appropriately sized to the Sapelo EVO output, due to their rated maximum pressure and temperature and the large 2.5” diameter water connection ports.
General Requirements
IMPORTANT: Please read and understand this product guide before installing the Andrews buffer vessel. Incorrect installation may invalidate the warranty*.
- The Andrews buffer vessel must be Installed, Commissioned and Maintained by a competent installer in accordance with Building Regulation G3 (England and Wales), Technical Standard P3 (Scotland) or Building Regulation P5 (Northern Ireland) and the Water Fitting Regulations (England and Wales) or Water Byelaws (Scotland).
- When installed with an approved unvented kit the Andrews buffer vessels are approved as meeting current water regulations and building regulations (G3). To satisfy these regulations when the kit is not supplied it will be required that the installer ensures that all of the system components meet the required standards.
- THIS APPLIANCE CAN BE USED BY CHILDREN AGED FROM 8 YEARS AND ABOVE AND PERSONS WITH REDUCED PHYSICAL, SENSORY OR MENTAL CAPABILITIES OR LACK OF EXPERIENCE AND KNOWLEDGE IF THEY HAVE BEEN GIVEN SUPERVISION OR INSTRUCTION CONCERNING USE OF THE APPLIANCE IN A SAFE WAY AND UNDERSTAND THE HAZARDS INVOLVED. CHILDREN SHALL NOT PLAY WITH THE APPLIANCE. CLEANING AND USER MAINTENANCE SHALL NOT BE MADE BY CHILDREN WITHOUT SUPERVISION
WARNING:
Do not use if there is a possibility that the water in the buffer vessel is frozen.
Standards:
- BS 6700 : Design, Installation, Testing and Maintenance for Domestic use within Buildings and their Curtilages
- BS 7206 : Specification for Unvented Hot Water Storage Units and Packages.
- BS EN 806 : Specifications for Installations inside Buildings Conveying Water for Human Consumption
- BS EN 12897 : Specification for Indirectly Heated Unvented Storage
- EU Directive 2011/65/EU Restriction of use of certain Hazardous Substances in electrical and electronic equipment
- EU Directive 98/83/EC quality of water intended for human consumption
Storage and Handling
Please take care when handling a packaged Andrews buffer vessel. The unit is heavy and must only be moved manually within safe working practices. If the unit is to be stored before installation, it must be placed on a secure, level surface and in a dry, frost free environment.
Precautions to be carried out prior to commencement of work:
- Tidy area ensuring there is safe access and egress to installation place, free from trip hazards.
- Be aware of other people who may be in the area
- Operate any machinery in accordance with training and operating instructions
- Visually inspect the equipment prior to use, do not use damaged equipment.
- Safe working practices are adopted for manual handling of appliances/parts
- Correct PPE to be worn.
The Andrews buffer vessel unit must be vertically floor mounted. Areas that are subject to freezing must be avoided. Ensure that the floor is level and of sufficient strength to support the “full” weight of the unit when filled with water. Pipe runs should be kept as short as possible for maximum economy. Access to associated controls and indirect controls should be possible for servicing and maintenance of the system.
Energy Related Products Data Information
ErP Data Table
Technical parameters in accordance with European Commission regulations 814/2013 and 812/2013. Testing carried out to EN12897.
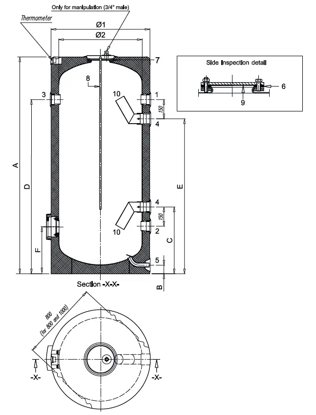
Drawing

- D.H.W. outlet 2-1/2″ female AISI 316
- Cold water inlet 2-1/2″ female AISI 316
- P&T valve connection 2-1/2″ female AISI 316
- Side connection 2-1/2″ female AISI 316
- Drain ( 300 and 500 )1″ male AISI 316
Drain ( 800 and 1000 )1-1/4″ male AISI 316 - Side inspection hatch gasket EPDM
- Top gasket EPDM
- Probe tube for sensor AISI 316
- Side stainless steel inspection hatch cover AISI 316
- Sparse pipe AISI 316
- D. H.W. tank :
- Material : AISI 316 chemically descaled and passivated
- Max. working pressure : 10 bar
- Max. working temperature : 90°G
- Thermally insulated :
- Polyurethane foam (C.F.C. free)
- Density 45 Kg/m³
- Equipments :
- Externa! lining (RAL 9016)
- Top cover (RAL 7021)
- Thermometer
- Lateral inspection hole


Product Description
Domestic Hot Water tank:
- Material: AISI 316, chemically descaled and passivated
- Max. working pressure: 10 bar
- Max. working temperature: 90degC
Thermally Insulated:
- Polyurethane foam, C.F.C. free
- Density: 45 kg/m3
- Insulation thickness: 60mm on 300 and 500 litre tanks, 80mm on 800 and 1000 litre tanks
Other:
- External lining colour: RAL 9016
- Plastic top cover colour: RAL 7021
- Thermometer
- Lateral inspection hole
Notes:
- EPDM gaskets are WRAS approved
- Manipulation bolts supplied with 800 and 1000 litre tanks only
- External lining can be removed via zip
- Part of the insulation can be removed and replaced on the 800 and 1000 litre tanks for increased manoeuvrability

Dimensions and Packaging
Packaging description and what’s in the box
Buffers are wrapped in plastic bag inside cardboard sleeve, with cardboard lid. This is strapped on top of a wooden pallet.
Inside the packaging is the document pack with the ErP Energy Labels and manuals. A lifting bolt is provided with the 800 and 1000 litre buffers.
Tanks include red plastic embellishers on the threaded connections in order to prevent dirt from entering.
Packaging label
On the outside of the box gives:
- Andrews Water Heaters name and logo
- Part number and name, 13 digit EAN code
- Capacity, weight, handling and storage guidelines
Limitations
The Andrews buffer vessel should not be used in any of the following instances:
- Solid fuel boilers or any other boiler in which the energy input is not under effective thermostatic control unless additional and appropriate safety measures are installed.
- Gravity circulation primaries.
- Steam heating plant unless additional and appropriate safety devices are installed.
- Ascending spray type bidets or any other Class 5 back syphon age risk requiring that a Type AA, AB, AD or AG air gap be employed.
- Water supplies that have either inadequate pressure or where the supply may be intermittent.
- Situations where it is not possible to safely pipe away any discharge from the safety valves.
- Areas where the water consistently contains a high proportion of solids, eg. suspended matter that could block the strainer, unless adequate filtration can be ensured.
- The installation must be carried out in accordance with the relevant requirements of the appropriate Building Regulations: either The Building Regulations (England), The Building Regulations (Scotland) or Building Regulations (Northern Ireland), The Water Fittings Regulations (England and Wales) or Water Byelaws (Scotland).
Installation & Commissioning
General installation
The water supply must be of wholesome water quality (Fluid Category 1 as defined by the Water Supply Regulations 1999).
Flush supply pipe work before connection to remove all flux and debris prior to fitting the inlet controls. Failure to do this may result in irreparable damage to the buffer and will invalidate the warranty.
Secondary Circulation
When a secondary circulation system is required the secondary return pipe should be at a minimum diameter 28mm pipe and incorporate a check valve to prevent back flow, smaller pipe diameters can be used but may have a reduced flow. A suitable WRAS and ErP approved circulation pump will be required. On large systems, due to the increase in system water content, it may be necessary to fit additional expansion volume to the secondary system by fitting an external expansion vessel to the circuit. This should be done if the capacity of the secondary circuit exceeds 10 litres.
Unvented systems
If the buffer is being used for storage of domestic hot water on an unvented system, additional Temperature and Pressure relief valve must be fitted to the appropriately labelled T&P valve connection port on the buffer, ensuring the probe from the Temperature and Pressure relief valve is fully immersed in water. Unvented systems kits that include T&P valves are available from Andrews Water Heaters. These are sized to the Sapelo EVO water heaters.
Pipe fittings and capacities
All pipe connections to the Andrews buffer are made via BSP threaded pipe connection directly to the unit.
Pipe capacities (copper)
- 22mm o/d = 0.38 litres per metre run (10 litres = 26m)
- 28mm o/d = 0.55 litres per metre run (10 litres = 18m)
- 35mm o/d = 0.83 litres per metre run (10 litres = 12m)
- 42mm o/d = 1.23 litres per meter run (10 litres = 8m)
The following extract is taken from G3 Regulations
It is the installers responsibility to check the latest regulations Discharge pipes from safety
Devices Discharge pipe D1
- Safety devices such as temperature relief valves or combined temperature and pres- sure relief valves (see paragraphs 3.13 or 3.18) should discharge either directly or by way of a manifold via a short length of metal pipe (D1) to a tundish.
- The diameter of discharge pipe (D1) should be not less than the nominal outlet size of the safety device, e.g. temperature relief valve.
- Where a manifold is used it should be sized to accept and discharge the total discharge from the discharge pipes connected to it.
- Where valves other than a temperature and pressure relief valve from a single unvented hot water system discharge by way of the same manifold that is used by the safety devices, the manifold should be factory fitted as part of the hot water storage system unit or package.
Tundish - The tundish should be vertical, located in the same space as the unvented hot water stor- age system and be fitted as close as possible to, and lower than, the safety device, with no more than 600mm of pipe between the valve outlet and the tundish.
Note: To comply with the Water Supply (Water Fittings) Regulations, the tundish should incorporate a suitable air gap. - Any discharge should be visible at the tundish. In addition, where discharges from safety devices may not be apparent, e.g. in dwellings occupied by people with impaired vision or mobility, consideration should be given to the installation of a suitable safety device to warn when discharge takes place, e.g. electronically operated.
Discharge pipe D2 - The discharge pipe (D2) from the tundish should:
- Have a vertical section of pipe at least 300mm long below the tundish before any elbows or bends in the pipework; and
- be installed with a continuous fall thereafter of at least 1 in 200.
- The discharge pipe (D2) should be made of:
- Metal; or
- other material that has been demonstrated to be capable of safely withstanding temperatures of the water discharged and is clearly and permanently marked to identify the product and performance standard (e.g. as specified in the relevant part of BS 7291-1:2006 Thermostatic pipes and fittings for hot and cold water for domestic purposes and heating installations in buildings. General requirements).
- The discharge pipe D2 should be at least one pipe size larger than the nominal outlet size of the safety device unless its total equivalent hydraulic resistance exceeds that of a straight pipe 9m long, i.e. for discharge pipes between 9m and 18m the equivalent resistance length should be at least two sizes larger than the nominal outlet size of the safety device; between 18 and 27m at least 3 sizes larger, and so on; bends must be taken into account in calculating the flow resistance. See Diagram 1, Table 3.1 and the worked example.
Note: An alternative approach for sizing discharge pipes would be to follow Annex D, section D.2 of BS 6700:2006 + A1:2009 Specification for design, installation, testing and maintenance of services supplying water for domestic use within buildings and their curtilages. - Where a single common discharge pipe serves more than one system, it should be at least one pipe size larger than the largest individual discharge pipe (D2) to be connected.
- The discharge pipe should not be connected to a soil discharge stack unless it can be demonstrated that the soil discharge stack is capable of safely withstanding temperatures of the water discharged, in which case, it should:
- contain a mechanical seal, not incorporating a water trap, which allows water into the branch pipe without allowing foul air from the drain to be ventilated through the tundish;
- be a separate branch pipe with no sanitary appliances connected to it;
- if plastic pipes are used as branch pipes carrying discharge from a safety device, they should be either polybutylene (PB) or crosslinked polyethylene (PE-X) complying with national stand- ards such as Class S of BS 7291-2:2006 or Class S of BS 7291-3:2006 respectively; and
- be continuously marked with a warning that no sanitary appliances should be connected to the pipe.
- Notes:
- contain a mechanical seal, not incorporating a water trap, which allows water into the branch pipe without allowing foul air from the drain to be ventilated through the tundish;
- be a separate branch pipe with no sanitary appliances connected to it;
- if plastic pipes are used as branch pipes carrying discharge from a safety device, they should be either polybutalene (PB) or crosslinked polyethylene (PE-X) complying with national standards such as Class S of BS 7291-2:2006 or Class S of BS 7291-3:2006 respectively; and
- be continuously marked with a warning that no sanitary appliances should be connected to the pipe.
Termination of discharge pipe
- The discharge pipe (D2) from the tundish should terminate in a safe place where there is no risk to persons in the vicinity of the discharge.
- Examples of acceptable discharge arrangements are:
- to a trapped gully with the end of the pipe below a fixed grating and above the water seal;
- downward discharges at low level; i.e. up to 100mm above external surfaces such as car parks, hard standings, grassed areas etc. are acceptable providing that a wire cage or similar guard is positioned to prevent contact, whilst maintaining visibility; and,
- discharges at high level: e.g. into a metal hopper and metal downpipe with the end of the dis- charge pipe clearly visible or onto a roof capable of withstanding high temperature discharges of water and 3 m from any plastic guttering system that would collect such discharges.
- The discharge would consist of high temperature water and steam. Asphalt, roofing felt and Non-metallic rainwater goods may be damaged by such discharges.
Discharge Pipe work
- It is a requirement of Building Regulations that any discharge from an unvented system is conveyed to where it is visible, but will not cause danger to persons in or about the building. The tundish and discharge pipes should be fitted in accordance with the requirements and guidance notes of Building Regulations. Building Regulation G3
- Requirements and Guidance section 2 are reproduced in the previous sections.
- For discharge pipe arrangements not covered by G3 Guidance advice should be sought from your local Building Control Officer. Any discharge pipe connected to the pressure relief devices (Expansion Valve and Temperature / Pressure Relief Valve) must be installed in a continuously downward direction and in a frost free environment.
- The water may drip from the discharge pipe of the pressure relief device and that this pipe must be left open to the atmosphere. The pressure relief device is to be operated regularly to remove lime deposits and to verify that it is not blocked.
G3 Requirement
“…there shall be precautions…to ensure that the hot water discharged from safety devices is safely conveyed to where it is visible but will not cause danger to persons in or about the building”.
Worked example of discharge pipe sizing (Taken from Building Regulations 2000, G3, 2010 edition)
- The example below is for a G1” temperature relief valve with a discharge pipe (D2) having 4 No. elbows and length of 7m from the tundish to the point of discharge.
- Maximum resistance allowed for a straight length of 35mm copper discharge pipe (D2) from a G1” temperature relief valve is 9m.
- Subtract the resistance for 4 No. 35mm elbows at 1.4m each = 5.6m
- Therefore the permitted length equates to: 3.4m
3.4m is less than the actual length of 7m therefore calculate the next largest size. - Maximum resistance allowed for a straight length of 42mm pipe (D2) from a G1” temperature relief valve equates to 18m.
- Subtract the resistance of 4 No. 42mm elbows at 1.7m each = 6.8m
- Therefore the maximum permitted length equates to: 11.2m
- As the actual length is 7m, a 42mm (D2) copper pipe will be satisfactory.
Notes:
- Discharge pipe-work D2 can now be a plastic pipe but only pipes that have been tested to a minimum 110°C must be used.
- Discharge pipe D2 can now be plumbed in the soil stack but only soil stacks that can handle temperatures of 99°C or greater should be used.


Servicing
Primary Heat source
Connect up primary heat source as per manufacturers instructions. The Andrews range of buffers do not have an internal heat exchanger. Take care that the Primary Heat source can handle the working pressure of the cylinder
Servicing requirements
To ensure the continued optimum performance of the Andrews buffer it should be regularly serviced. This is of particular importance in hard water areas or where the water supply contains particulate matter and we would recommend that a water treatment specialist is consulted. Maintenance should be carried out by a competent person and any replacement parts used should be authorised Andrews buffer spare parts. It is recommended that service is carried out every 12 months.
- Servicing should only be carried by an authorised Engineer, Agents or by installers competent in the installation and maintenance of heating and hot water systems.
- Only original parts from the manufacturer may be used. Using non-approved parts may compromise the safety and invalidate any warranty.
- NEVER bypass any thermal controls or operate system without the necessary safety valves.
- Water contained in the Andrews buffer unit may be very hot, especially following a thermal control failure. Caution must be taken when drawing water from the unit.
Note: The water discharged may be very hot.
Draining the buffer
- Switch off the electrical supply to the primary heat source.
- Turn off the water supply to the unit.
- Attach a hosepipe to the drain valve having sufficient length to take water to a suitable discharge point below the level of the unit, at least one metre below the unit is recommended.
- Open drain valve.
- If water fails to drain from the Andrews buffer, vent the unit by a suitable point on the system.
Refilling the system and removal of air
DO NOT switch on electrical supply from primary heat source until the system has been completely refilled.
In order to ensure safe removal of air from the hot water system, please perform the following actions:
- Check that the tank drain valve is closed.
- Open the isolation valve immediately before the connection point to the tank.
- Turn on all hot water outlets.
- Turn on the cold water supply and fill the buffer tank.
- Close each hot water outlet after water has been discharged after a short while to allow any disturbed particles to be flushed through.
- After initial filling, open each hot water outlet in succession and check that all the air is vented from the system.
- Check for leaks
- The electrical supply to the system can now be switched on.
Spares
Authorised spares are available from Baxi Genuine Parts and through a nationwide network of approved stockists. Contact your area sales manager or the helpline at andrewswaterheaters.co.uk for details.
Warranty
Full terms and conditions of warranty can be found at andrewswaterheaters.co.uk
The Environment
This product is made from many recyclable materials, therefore at the end of its useful should be disposed of at a local authority recycling centre in order to realize the full. Environmental benefits. Insulation is by means of an approved: Rigid mouldinjected. PU (CFC/HCFC-free, 0.025 W/mK).



















