CROWN ECX-2-10 Electric Cabinet Base Convection Steamer Instruction Manual

SAFETY PRECAUTIONS
Before installing and operating this equipment, be sure everyone involved in its operation is fully trained and aware of precautions. Accidents and problems can be caused by failure to follow fundamental rules and precautions. The following symbols, found throughout this manual, alert you to potentially dangerous conditions to the operator, service personnel, or to the equipment.
⚠ DANGER This symbol warns of immediate hazards that will result in severe injury or death.
⚠ WARNING This symbol refers to a potential hazard or unsafe practice that could result in injury or death.
⚠ CAUTION This symbol refers to a potential hazard or unsafe practice that could result in injury, product damage, or property damage.
NOTICE This symbol refers to information that needs special attention or must be fully understood, even though not dangerous.
IMPORTANT NOTES FOR INSTALLATION AND OPERATION
⚠ WARNING
This is the safety alert symbol. It is used to alert you to potential personal injury hazards. Obey all safety messages that follow this symbol to avoid possible injury or death.
⚠ WARNING
Improper installation, operation, adjustment, alteration, service or maintenance can cause property damage, injury or death. Read the installation, operating and maintenance instructions thoroughly before installing, operating or servicing this equipment.
⚠ CAUTION
Operating, testing, and servicing should only be performed by qualified personnel.
NOTICE
Contact the factory, the factory representative or local service company to perform maintenance and repairs.
NOTICE
This product is intended for commercial use only. NOT FOR HOUSEHOLD USE.
NOTICE
This manual should be retained for future reference. It is recommended that this manual be read thoroughly and that all instructions be followed carefully.
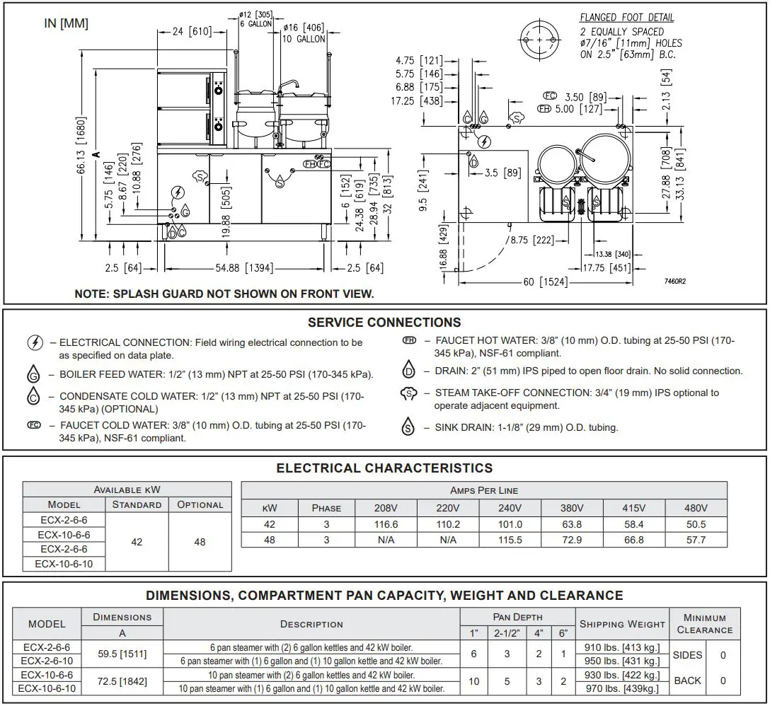
Service Connections

WATER QUALITY STATEMENT
Water is the essential ingredient in steam equipment, water quality is the major factor affecting the performance of your appliance. Crown Steam Group offers a Comprehensive Water Treatment System which exceeds our minimum water requirements. Proof of installation and proper cartridges replacement is required for warranty coverage. Water supply to Crown Steam Group steamers must be within these guidelines.
Total dissolved solids…………………..Less than 60 PPM
Chlorine ……………………….Less than 1.5 PPM
Silica………………………………………………. Less than 13 PPM
Total alkalinity …………………………………. Less than 20 PPM
pH Factor …………………….6.8 – 7.3
Water which does not meet these standards should be treated with the installation of Middleby’s Water Treatment System. Call 919-762-1000 if you have questions concerning your water meeting these parameters. *Failure or malfunction of this appliance due to poor water quality is not covered under warranty. Reference www.crownsteamgroup.com for complete warranty details and instructions.
DISCLAIMER
Terry System Cartridge Changes / Installation “2-3 gallons of water MUST be purged at each cartridge change or new installation prior to water supply being fed to the steamer. Failure to do so can result in component damage within the steamer which is not covered under warranty. For additional guidance on proper installation, refer to install documentation provided with each Terry System and Replacement Cartridge Set.”

WATER QUALITY STATEMENT
Water is the essential ingredient in steam equipment, water quality is the major factor affecting the performance of your appliance. Crown Steam Group offers a Comprehensive Water Treatment System which exceeds our minimum water requirements. Proof of installation and proper cartridges replacement is required for warranty coverage. Water supply to Crown Steam Group steamers must be within these guidelines.
Total dissolved solids…………………..Less than 60 PPM
Total alkalinity …………………………………. Less than 20 PPM
Silica………………………………………………. Less than 13 PPM
Chlorine ……………………….Less than 1.5 PPM
pH Factor …………………….6.8 – 7.3
Water which does not meet these standards should be treated with the installation of Middleby’s Water Treatment System. Call 919-762-1000 if you have questions concerning your water meeting these parameters. *Failure or malfunction of this appliance due to poor water quality is not covered under warranty. Reference www.crownsteamgroup.com for complete warranty details and instructions.
DISCLAIMER
Terry System Cartridge Changes / Installation “2-3 gallons of water MUST be purged at each cartridge change or new installation prior to water supply being fed to the steamer. Failure to do so can result in component damage within the steamer which is not covered under warranty. For additional guidance on proper installation, refer to install documentation provided with each Terry System and Replacement Cartridge Set.”
As continued product improvement is a policy of Crown, specifications are subject to change without notice.
Installation
Description
Models ECX-2-6, ECX-2-10, ECX-2-6-6 and ECX-2-6-10, convection steamers with direct steam kettle(s) mounted on cabinet base electric boiler. Each steamer has a pan capacity of 6 (2-1/2″) pans. Kettle(s) is/are conveniently mounted beside the compartment cooker complete with mounted steam control valve located in the kettle leg. Kettle(s) is/are direct connected to boiler and all piping, steam traps and relief valves are connected to system. Kettle(s) is/are suffixed with either -6 or -10 to indicate the capacity of that kettle in U.S. gallons.
Unpacking
IMMEDIATELY INSPECT FOR SHIPPING DAMAGE
Immediately after unpacking, check for possible shipping damage. If the appliance is found to be damaged, save the packaging material and contact the carrier within 15 days of delivery.
We cannot assume responsibility for damage or loss incurred in transit.
Before installing, verify the electrical rating agrees with the specification on the rating plate.
Location
Position the appliance in its installation location. Check that there are sufficient clearances to service the controls, door swing, etc. Also adequate clearance must be left for making the required supply and drain connections.
Allow enough space between any other piece of equipment or wall for service access. Service to the controls may be required on the left and/or right side panels of the cabinet.
Installation Codes and Standards
The appliance must be installed in accordance with:
In Canada: Provincial and local codes, or in the absence of local codes, with the Canadian Electric Code, CSA C22.1 (latest edition). Copies may be obtained from the Canadian Standard Association, 178 Rexdale Blvd., Etobicoke, Ontario, Canada, M9W 1R3. In the U.S.A.: State and local codes, or in the absence of local codes, with the National Electrical Code, ANSI/NFPA70 (latest edition). Copies may be obtained from The National Fire Protection Association, Battery march Park, Quincy, MA, 02269.
Leveling And Anchoring The Cabinet
- Place appliance in the installation position.
- Place a carpenter’s level on top of the appliance and turn the adjustable feet to level side-to-side and front-to-back.
- Mark hole locations on the floor through the anchoring holes provided in the rear flanged adjustable feet.
- Remove appliance from installation position and drill holes in locations marked on the floor. (See Installation Diagram on page 4.) Insert proper anchoring devices (not supplied).
- Place appliance back in the installation position.
- Place carpenter’s level on top appliance and re-level side-to-side and front-to-back.
- Bolt and anchor appliance securely to the floor.
- Seal bolts and flanged feet with clastic or equivalent compound.
Electrical Connections
⚠ WARNING
Electrical and grounding connections must comply with the applicable portions of the National Electrical Code and/or other local electrical codes.
⚠ WARNING
Disconnect electrical power supply and place a tag on the disconnect switch to indicate that you are working on the circuit.
⚠ IMPORTANT
Use copper wire suitable for at least 200 degrees Fahrenheit (90 degrees Celsius). The steamer must be grounded. The wiring diagram is located on the inside right hand panel as you face the steamer.
Exhaust Hood
An exhaust system should be located directly above the appliance to exhaust steam and heat generated by the appliance.
Plumbing Connections
⚠ WARNING
Plumbing connections must comply with applicable sanitary, safety, and plumbing codes.
Water Supply Connection
The incoming cold water supply connection, at the rear of the boiler cabinet, requires 3/8″ tubing and water pressure of 25 – 50 psig.A manual shut-off valve must be provided convenient to the boiler, this valve should be open when the boiler is in operation.
⚠ IMPORTANT
Failure or malfunction of this appliance due to poor water quality is not covered under warranty. See Water Quality Statement (Page 4).
Drain Connection
The appliance drain (2″ IPS) should be piped to a floor drain near the boiler (not directly under). There should be no solid drain connection, an “open gap” between the drain pipe and the floor drain is required.
⚠ IMPORTANT
If your equipment was supplied with split water lines and a filter, connect the filter system to the connection marked “BOILER FEED” only. Make a second connection to the “CONDENSER FEED” from a cold and unfiltered water supply.
OPERATION
For CSD-1 equipped boilers, see this section for Operation Instructions for CSD-1 Equipped Boilers.
Boiler Controls (Inside Cabinet)
Main Power Switch
– ON fills the boiler tank and turns the boiler heaters on. You should allow 20 minutes to fill the tank and generate steam.
– OFF shuts off the boiler heaters and opens the Automatic Blowdown Valve, emptying the boiler tank and releasing water and steam to the drain. This should be done daily to remove sediment, lime, or scale.
Pilot Light
– Indicates main power is ON.
Boiler Pressure Gauge – Should read 9 -11 psi during operation; 0 psi during shutdown.
Water Level Sight Glass – Observe level of water and water quality in the boiler. Murkiness in the water indicates
inadequate water quality; the owner must supply proper water to the boiler (see Water Quality Statement on page 4).
Water Level Control
– While boiler is ON, briefly open the water level control daily to remove any sediment that might accumulate. (See Maintenance Section for detailed instructions.)
Safety Valve
– This valve will release (pop off) if the boiler has too much pressure. Once a week, this valve should be tripped during operation to make sure it functions properly.
Operation of the Boiler
Turn on water and power supply to appliance.
Open cabinet door and turn main power switch ON. Pilot light ignites and water begins to fill boiler – observe water gauge sight glass to verify that proper water level is reached.
Once the proper water level is reached, the heaters begin to heat the water. Heaters require about 15 minutes to begin steam generation. The boiler pressure gauge in the cabinet should indicate steam pressure in a range of 9 to 11 psig.
Shut Down
Turn the Main Power Switch OFF. Open manual drain valve. If unit is supplied with Automatic Blowdown Valve, it will open, draining the boiler and releasing hot water and steam to the drain.
CSD-1 Optional Feature
Start-Up Procedure
- Close the manual blowdown valve.
- Open cabinet door and turn “ON” power switch.
The green pilot light will come “ON.” Water will begin to enter the boiler. When enough water has entered the boiler, the (amber) “STANDBY” pilot light will come on. - Press the “RESET” switch to begin boiler operation. The “STANDBY” pilot light will go off and the boiler will begin operation.
Normal Boiler Operating Cycle
Water Fill Cycle
On the initial filling of the boiler, the reset switch must be activated to initialize the safety lockout circuit. Once the water in the boiler has reached the proper level, the level control will stop the flow of water to the boiler. As water is consumed in the production of steam, the level control will supply additional water to the boiler.
Firing Cycle
The elements are operated by pressure sensing devices. On initial operation, the boiler should reach 14 psi in approximately 15 minutes. At this point, the operating pressure switch will open, de-energizing the elements. Thereafter the operating pressure switch will cycle the elements between 9 and 11 psi boiler pressure.
Condensing Drain
A thermostat is located in the drain assembly and is activated by the temperature of steam. The thermostat operates the cooling solenoid, supplying water to the drain to condense the steam.
Automatic Blowdown Valve
If the unit has an automatic blowdown valve, it is activated when the main power switch is activated. The boiler will be drained should the main power switch be turned “OFF.”
Safety Lockout Conditions
High Temperature Condition
A high temperature safety device is installed on the boiler. Should the temperature exceed the limit of this device, the boiler will be shut down and put in a state of lockout. The “TEMPERATURE” pilot light (red), and the “STANDBY” pilot light (amber), will come on.
High Pressure Condition
A high pressure safety switch is installed on the boiler. Should the pressure exceed the limit of this device, the boiler will be shut down and put into a state of lockout. The “PRESSURE” pilot light (red), and the “STANDBY” pilot light (amber), will come on. Should this device fail to operate, the safety relief valve will open.
Low Water Condition
A second low water safety cut off is supplied with the boiler. Should the water level fall below normal operating levels, the boiler will be shut down and put into a state of lockout. The “LOW WATER” pilot light (red), and the “STANDBY” pilot light (amber) will come on.
⚠ CAUTION
Live steam and accumulated hot water in the compartment may be released when the door is opened.
Start-up procedures for your steamer must be completed once daily prior to operation (see instruction plate or boiler start up procedures). With ready pilot light on, preheat steamer compartment for one minute when the steamer is to be first used for the day or whenever the compartment is cold.
- Close compartment doors and set timer to “1 minute”.
- When buzzer sounds, set timer to the “OFF” position.
- Steamer is now ready for cooking.
- With cooking compartment preheated and ready pilot light on, place pans of food to be cooked into compartment and shut door.
- Set timer to cooking time desired. Cooking cycle may be interrupted at any time by opening door and resumed again by closing door.
- When buzzer sounds, it indicates the end of the cooking cycle and that no more steam is entering the compartment. Cooking pilot light will go off and ready pilot light will come on. Buzzer must be shut off by turning the timer to its off position.
⚠ CAUTION
An obstructed drain can cause personal injury or property damage.
Frequently check that the compartment drain and plumbing is free of all obstructions. Never place food containers, food or food portion bags in the cooking compartment in such a way that the compartment drain becomes obstructed.
⚠ IMPORTANT
Each compartment is equipped with a removable drain screen. Frequently check the drain screen for accumulation of food particles. Should food particles accumulate against, or clog the drain screen, remove it, clean it thoroughly and then replace it in its original position.
Shut Down
- To shut down cooking compartment, set timers to their OFF position and leave doors slightly open.
- At the end of the day, the steam supply must be shut off. Open the door of cabinet base and turn off power switch.
Open manual drain valve. If unit is equipped with automatic blowdown valve, it will open and drain the boiler.
Direct Steam Kettles
Direct connected steam jacketed kettles constructed to ASME CODE, consist of a stainless steel bowl and stainless steel jacket which envelopes two thirds of the lower surface of the bowl thus forming a sealed pressure vessel (chamber) into which steam is introduced by means of a manual control valve.
The kettle bowl is the container for the food product which ideally should be of a liquid or semi-liquid consistency to achieve complete contact with the bowl surface and thus fully absorb the heat transmitted through the surface.
The temperature required for the cooking process to function adequately must be greater than the boiling point of the liquid food product. Further, the greater the steam pressure used, the higher the temperature and consequently the quicker the cooking process. For example steam pressurized at 30 psi attains a temperature of 274 degrees Fahrenheit (135 degrees Celsius).
In the initial stages of the cooking process when the steam comes in contact with the cold kettle bowl surface it condenses and forms a considerable amount of water. A thermostatic steam trap is plumbed to the exit end of the kettle jacket. This trap is a mechanical device that closes on high temperatures and opens when the temperature drops thus allowing the water formed from condensate to exhaust but retain steam under pressure.
The suffix of the Model indicates the capacity of the kettle in U.S. gallons (DC-6 is 6 U.S. gallons).
Operating Procedure
- Fill kettle with product to desired level.
- Slowly turn on steam control valve to full open position.
- The product should boil in three to four minutes per gallon.
- Regulate steam depending on type of product being prepared.
- When product is cooked, turn off steam supply to kettle.
- Remove cooked product into holding pan by tilting kettle forward slowly to avoid injury from splashing hot food.
- Clean kettle immediately to prevent residue from drying in kettle bowl.
Cleaning
⚠ WARNING
Disconnect the unit from the power supply before cleaning or servicing appliance.
⚠ WARNING
Never spray water into electric controls.
⚠ CAUTION
Do not use cleaning agents that are corrosive.
⚠ CAUTION
Live steam and accumulated hot water in the compartment may be released when the door is opened.
Steamer
- Keep exposed cleanable areas of unit clean at all times.
- Thoroughly wash oven cavities, door liners, and pan racks at the end of each day or as required with a mild detergent and water to prevent bacterial growth and odours.
- Remove drain screens from inside compartment drains. Using a plastic bottle brush and mild detergent, clean inside the drain opening ensuring there is no food residue or blockage. Clean the drain screen and replace in its original position.
- Wash gasket sealing surface with mild detergent to remove harmful food acids and rinse.
- Water level control should be opened daily to blow down sediment and sealant.
- Observe that the water in gauge glass is clean and clear. Extreme murkiness in water indicates inadequate water quality.
- Safety valve should be tripped during operation once a week to assure that it functions properly.
- Keep all exposed cleanable areas of unit clean at all times. DO NOT GET WATER IN ELECTRICAL BOX OR ANY ELECTRICAL COMPONENTS.
Kettles
- Turn steam supply “OFF”.
- Pre-rinse inside of kettles thoroughly and tilt kettles to remove any food particles.
- Use a nylon brush. Clean kettle with a mild detergent and warm water rinse. NEVER use steel wool or scouring powder as it will mark the stainless steel.
- Tilt kettles and thoroughly rinse the inside draining out detergent solution.
- Wipe the exterior of kettles with a clean, damp cloth. 6. Dry the entire kettles with a clean dry cloth.
What To Do If Surface Rust Appears
Metal utensils should never be used as they will scratch the surface of the equipment and rust may begin to form. To remove surface accumulation of rust from the inadvertent use of such utensils, the following may be used.
⚠ CAUTION
Improper use of this procedure may damage your appliance.
- Use undiluted white vinegar with a non abrasive scouring pad (plastic) or cloth on the affected area to remove the rust stains. The appliance should not be heated and remain at room temperature during the entire cleaning process.
- If the stain resists removal, additional exposure time with vinegar may be required, to a maximum of one hour.
- Thoroughly wash all the vinegar away with fresh water. Dry the surface completely and allow one hour before using the appliance to cook.
Following daily and period maintenance procedures will prolong the life of your equipment. Climatic conditions – salt air may require more thorough and frequent cleaning or the life of the equipment could be adversely affected.
USE OF CLEANING AGENTS THAT CONTAIN CHLORIDE, ACIDS OR SALTS ARE CORROSIVE AND MAY CAUSE PITTING AND CORROSION WHEN USED OVER A PERIOD OF TIME. THIS WILL REDUCE THE LIFE OF THE APPLIANCE.
SHOULD PITTING OR CORROSION OCCUR THIS IS NOT COVERED BY WARRANTY.
Maintenance
⚠ WARNING
Disconnect the unit from the power supply before cleaning or servicing appliance.
⚠ CAUTION
SCALD HAZZARD. Protect yourself. When flushing control, hot water and steam will flow out of the drain.
NOTICE
Contact the factory, the factory representative or local service company to perform maintenance and repairs. Refer to warranty terms.
IMPORTANT INSTRUCTIONS
Be sure to flush your boiler water level control daily. Failure to follow this procedure can cause the control to malfunction resulting in serious boiler damage.
The Boiler Water Level Control installed on your boiler requires periodic maintenance. As boiler water circulates into the float chamber, sand, scale and other sediment may be deposited in the float chamber. While the chamber has been designed with a large accumulation bowl, it is necessary to flush the sediment from the chamber by blowing down the control so that the accumulation of sediment does not interfere with the movement of the float in the control. Control must be flushed at least once a day.
⚠ CAUTION
Protect yourself. When flushing control, hot water and steam will flow out of the drain.
When flushing control, note water level in gauge glass, allow the boiler to fill if necessary, and also to come up to temperature.
Before flushing control, note that water level in gauge glass is within operating range and the boiler pressure is at least 6 psi. While the boiler is being fired, open blowdown valve at bottom of control by rotating the handle counterclokwise about 1/4 turn to fully open the valve. Opening the blowdown valve also checks the cut-off operation. Float should drop shutting burners off, hot water and steam will flow out the drain flushing away sediment.
Continue draining water for about fifteen (15) seconds, from control until water is clean. Manually close valve. Recheck gauge glass. If water level has dropped significantly, wait for the boiler to restore water level and pressure and repeat if necessary.
- Safety relief valve should be tripped during operation periodically to assure that it functions properly.
⚠ CAUTION
Live steam will escape during this operation and may cause personal injury. - If appliance is equipped with a pressure regulator, twice a year the hex plug located at the bottom of the regulator should be removed and the strainer cleaned.
- Burners should be cleaned on a regular basis to eliminate the accumulation of lint on burner ventures and burner orifices.
Descaling Boiler
It is recommended that the boiler be checked every 90 to 120 days for scale build up. Regular maintenance should be carried out at this time.
- With boiler empty, close manual blowdown valve. If appliance is equipped with automatic blowdown, turn water supply OFF to appliance. Turn power switch ON. This will energize and close the blowdown valve.
- Remove 3/4″ pipe plug from fitting on left front of boiler.
- Insert appropriate hose or tube through fitting and pour in (1/2) half gallon (US) of CLR Descaling Solution or use the Optional Delimbing Assembly DPA-1 available from your dealer.
- Replace 3/4″ pipe plug securely.
- Open water supply to appliance allowing water to fill boiler to required level.
- Let appliance cycle. Allow two hours for descaling and cleaning. DO NOT TURN ON STEAM to the compartments.
- Open both the blowdown and low water level control valves for complete drainage and then close both valves.
- Turn appliance switch ON. When boiler is completely filled turn power switch OFF. This will rinse and drain boiler. Appliance with manual blowdown valve must be opened to drain.
- Complete Step 8 twice to assure boiler is completely rinsed.
- Appliance is now ready for use.
Adjustments
⚠ IMPORTANT
At least twice a year have an authorized service person clean and adjust the unit for maximum performance.
To Calibrate Pressure Switches
NOTICE
Pressure switches are factory set. Calibration is only required if pressure switches are replaced or if adjustment is required. Pressure switch range is from 1 to 15 psi.
Adjust all settings to maximum on high signal adjustment screw on pressure switches. Adjust in the following sequence:
– High limit pressure switch.
– Override pressure switch.
– Operating pressure switch.
– Turning screw clockwise to increase, counterclokwise to decrease pressure. – Use relief valve to release pressure from boiler for setting adjustments.
- HIGH LIMIT PRESSURE SWITCHES Allow pressure to build until unit shuts off. This should occur at 15 psi. Set the high signal to switch at 14.5 psi on the gauge and the low signal to 13.0 psi.
- OVERRIDE PRESSURE SWITCHES Allow pressure to increase to 13 psi. Set the high signal to switch at 13 psi on the gauge and the low signal to 11 psi.
- OPERATING PRESSURE SWITCHES Set the high signal to switch at 11 psi on the gauge and the low signal to 9 psi.
- Release pressure in boiler to below 9 psi. Elements will come on. Once pressure has reached 11 psi, elements will shut off. Repeat this process several times to make sure elements come on at 9 psi and shut off at 11 psi.
Once completed, pressure switches have been calibrated. Should your unit not have the High Limit pressure switch, start procedure at Override pressure switch.
Service
Contact your local authorized service office for any repairs or adjustments needed on this equipment.
Troubleshooting
NOTICE
Contact the factory, the factory representative or local service company to perform maintenance and repairs. Refer to warranty terms.
NOTICE
At least twice a year have an authorized service person clean and adjust the unit for maximum performance.
Door Leaks
1. Check for damage to door gasket.
Water Accumulates In The Compartment
1. Compartment drain screen clogged. Remove and clean thoroughly and then replace.
Water Not Being Supplied To Boiler
- Water supply is “OFF”.
- Defective water fill solenoid.
- Water level control clogged or defective, unable to operate fill valve.
- Check drain valve is closed. Also check that water level control valve is closed.
- Supply water pressure too low.
Automatic Blowdown Valve Does Not Drain
- Defective Blowdown valve.
- Heat exchanger build up of scalant clogging drain lines and valve.
Boiler Achieves Pressure Slower Than Normal
- Heavy build up of lime on elements.
- Loose element connections.
Safety Valve Blows
- Defective safety valve.
- Pressure too high. Pressure switch requires adjustment (lower) or may be defective.
Kettle Does Not Heat
- Steam control valve not turned on.
- Steam trap not closing.
- Steam trap not opening to release condensate water.
- Boiler not producing enough steam pressure.
Kettle Leaks Steam
- “O” rings are worn. Replace.
- Steam valve seat worn. Replace seat.
COOKING CHART
The following table lists suggested cooking times and weights. These times, which will vary depending on initial product temperature, size, shape, etc., are approximate and should be adjusted to suit your operation.
PRODUCTS TO BE COOKED IN SOLID PANS




ECX-2-(6, 10), ECX-2-6-6, ECX-10-(6, 10) & ECX-10-6-6 Electric Cabinet Base Convection Steamer With Direct Steam Kettle(s)
A product with the Crown name incorporates the best in durability and low maintenance. We all recognize, however, that replacement parts and occasional professional service may be necessary to extend the useful life of this appliance. When service is needed, contact a Crown Authorized Service Agency, or your dealer. To avoid confusion, always refer to the model number, serial number, and type of your appliance.
CROWN FOOD SERVICE EQUIPMENT
A Middleby Company
70 Oakdale Road, Downsview (Toronto) Ontario, Canada, M3N 1V9
Telephone: 919-762-1000
www.crownsteamgroup.com



















