CROWN DCX Series Direct Steam Cabinet Base Convection Steamer
Product Information
The Direct Steam Cabinet Base Convection Steamer is commercial-grade kitchen equipment manufactured by Crown Food Service Equipment, a Middleby Company. It is available in four different models: DCX-2-24, DCX-2-36, DCX-10-24, and DCX-10-36. This manual section CO pertains to model DCX-10-24. The equipment requires proper installation, operation, adjustment, alteration, service, and maintenance to avoid property damage, injury, or death. The manual includes safety precautions and symbols to alert the operator, service personnel, or equipment of potentially dangerous conditions. The equipment is intended for commercial use only.
Product Usage Instructions
Before installing and operating the Direct Steam Cabinet Base Convection Steamer, ensure that everyone involved in its operation is fully trained and aware of the precautions. Follow the fundamental rules and precautions mentioned in the manual to avoid accidents and problems.
Product Installation
Read the installation instructions thoroughly before installing the equipment. Improper installation can cause property damage, injury, or death. Complete the information on the manual cover and retain it for future reference. The equipment requires a pressure-reducing valve if the incoming pressure exceeds 50 PSI (345 kPa). Contact the factory representative or local service company to perform maintenance and repairs.
Product Operation
Only qualified personnel should operate, test, and service the equipment. Follow the operating instructions carefully to avoid injury, product damage, or property damage. The equipment is ready for cooking once it is installed correctly.
WARNING: Improper installation, adjustment, alteration, service or maintenance can cause property damage, injury or death. Read the installation, operating and maintenance instructions thoroughly before installing or servicing this equipment.
SAFETY PRECAUTIONS
Before installing and operating this equipment, be sure everyone involved in its operation is fully trained and aware of precautions. Accidents and problems can be caused by failure to follow fundamental rules and precautions. The following symbols, found throughout this manual, alert you to potentially dangerous conditions to the operator, service personnel, or to the equipment.
- DANGER: This symbol warns of immediate hazards that will result in severe injury or death.
- WARNING: This symbol refers to a potential hazard or unsafe practice that could result in injury or death.
- CAUTION: This symbol refers to a potential hazard or unsafe practice that could result in injury, product damage, or property damage.
- NOTICE: This symbol refers to information that needs special attention or must be fully understood, even though not dangerous.
IMPORTANT NOTES FOR INSTALLATION AND OPERATION
WARNING
- This is the safety alert symbol. It is used to alert you to potential personal injury hazards. Obey all safety messages that follow this symbol to avoid possible injury or death.
- Improper installation, operation, adjustment, alteration, service or maintenance can cause property damage, injury or death. Read the installation, operating and maintenance instructions thoroughly before installing, operating or servicing this equipment.
CAUTION: Operating, testing, and servicing should only be performed by qualified personnel.
NOTICE
- Contact the factory, the factory representative or local service company to perform maintenance and repairs.
- This product is intended for commercial use only. NOT FOR HOUSEHOLD USE.
- This manual should be retained for future reference.
It is recommended that this manual be read thoroughly and that all instructions be followed carefully.
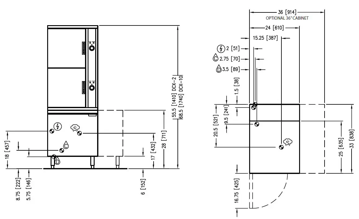
SERVICE CONNECTIONS

REAR FLANGED FOOT DETAIL

- 2 EQUALLY SPACED
- ø7/16″ [limm] HOLES
- ON 2.5″ [63mm] B.C.
SERVICE CONNECTIONS
![]()
- COLD WATER: 3/8” O.D. tubing at 25-50 PSI (170-345 kPa).
- DRAIN: 2” (51 mm) IPS piped to open floor drain. No solid connection.
- ELECTRICAL CONNECTION: 1/2” (13 mm) conduit connection to controls. Max 2 Amps per compartment, 120VAC-60-1 Phase.
- STEAM SUPPLY: 3/4” IPS at for incoming steam at 80 lbs/hr @ 15 psi (36kg/hr @ 103 kPa) min.
- Pressure reducing valve is required if incoming pressure exceeds 50 PSI (345 kPa)
COMPARTMENT PAN CAPACITY, WEIGHT AND CLEARANCE
| MODEL | Pan Depth | SHIPPING WEIGHT | MINIMUM CLEARANCE | |||||
| 1” | 2-1/2” | 4” | 6” | (24” Cabinet) | (36” Cabinet) | |||
| DCX-2-[24,36] | 6 | 3 | 2 | 1 | 450 lbs. [204 kg] | 550 lbs. [249 kg] | SIDES | 0 |
| DCX-10-[24,36] | 10 | 5 | 3 | 2 | 550 lbs. [250 kg] | 625 lbs. [284 kg] | BACK | 0 |
DISCLAIMER
Terry System Cartridge Changes / Installation – “2-3 gallons of water MUST be purged at each cartridge change or new installation prior to water supply being fed to the steamer. Failure to do so can result in component damage within the steamer which is not covered under warranty. For additional guidance on proper installation, refer to install documentation provided with each Terry System and Replacement Cartridge Set.”
INSTALLATION INSTRUCTIONS
Unpacking
IMMEDIATELY INSPECT FOR SHIPPING DAMAGE
- Immediately after unpacking, check for possible shipping damage. If the appliance is found to be damaged, save the packaging material and contact the carrier within 15 days of delivery.
- We cannot assume responsibility for damage or loss incurred in transit.
- Before installing, verify the electrical rating agrees with the specification on the rating plate.
Installation Instructions
Ideally an exhaust system should be located directly above the appliance to exhaust steam and heat generated by the appliance.
- Set the unit in place and level using a spirit level.
- Ascertain that a floor drain (open gap) is convenient to the appliance drain.
- Mark hole locations on floor through anchoring holes provided in flanged adjustable feet.
- Remove appliance and drill holes in locations marked on floor and insert proper anchoring devices.
- Set unit back in position and re-level left to right and front to back.
- Bolt and anchor appliance securely to the floor.
- Seal bolts and flanged feet with Silastic or equivalent compound.
- Make service connections as indicated.
WARNING
- Electrical and grounding connections must comply with the applicable portions of the National Electrical Code and/or other local electrical codes.
- Disconnect electrical power supply and place a tag on the disconnect switch to indicate that you are working on the circuit.
Use copper wire suitable for at least 90 degrees Celsius. The steamer must be grounded. The wiring diagram is located on the inside right-hand panel as you face the steamer.
Information to Steam Fitter
- Each cooking compartment requires approximately 1 BHP (50 lbs. of steam per hour minimum) to operate satisfactorily.
- Assuming availability of 30 psi supply steam pressure immediately to the appliance, then pipe sizes of 1/2” or 3/4” or 1” will deliver respectively 90, 165, or 385 lbs. of steam per hour to the appliance. From the foregoing to use 1/2” pipe line would most likely prove inadequate.
- An extremely important consideration is the pressure drop that will occur through the steam supply line from its point of origin to the appliance. The greater the length of piping and number of valves and elbows, the greater the pressure losses.
Installation

Consider a pressure drop of 1 (one) psi for each straight length of pipe equivalent to 120 diameters of that pipe. Thus, a 1” pipe having a straight length of 120” (10 feet) is equival ent to 120 diameters of that pipe and will have a pressure loss of 1 psi through that pipe.
Installation And Service Connections
WARNING: Plumbing connections must comply with applicable sanitary, safety, and plumbing codes.
NOTICE: In 3/4” pipe size, that a Standard 90 Elbow, an Angle Valve and a Globe Valve are equivalent to 1.8 feet, 10 feet and 18 feet respectively of straight pipe.
Similarly, in 1” pipe size, a standard 90 elbow, and Angle Valve and a Globe Valve are equivalent to 2.2 feet, 12 feet and 23 feet respectively of straight pipe.

Total of above = 20 + 2.2 + 3 + 2.2 + 17 + 23 + 10 + 2.2 + 79.6 feet. Since each 10 foot is equivalent to 1 psi pressure loss, 79.6 feet is equivalent to approximately 32 psi from an original boiler supply of 40 psi.

It is suggested that, wherever possible, the steam supply line to the appliance be a separate line from the steam source. If the appliance must be supplied from a line supplying other appliances, the pipe sizes and pressure will have to be verified. Further, during idle periods, when the steam in the supply line is not in use, water will form from condensed steam in the supply line and it is advisable to prevent water pockets from forming in the steam line and impeding the steam flow when it is required. Therefore, contrive to have the steam supply line level or run slightly downwards towards the appliance. Install a Ball Float Trap near the appliance to drain out water (condensed steam) from the line to assure clean dry steam to the appliance.
OPERATION
CAUTION: Live steam and accumulated hot water in the compartment may be released when the door is opened.
Start-Up
Start-up procedures for your steamer must be completed once daily prior to operation.
- Turn on the water and steam supply to the appliance.
- Open the cabinet door and turn the power switch to ON. A pilot light comes on indicating the appliance is ready to begin operation. With the READY pilot light on, preheat steamer compartment for one minute when the steamer is to be first used for the day or whenever the compartment is cold.
Operation
- With cooking compartment preheated and ready pilot light on, place pans of food to be cooked into compartment and shut door.
- Set timer to cooking time desired. Cooking cycle may be interrupted at any time by opening door and resumed again by closing door.
- When buzzer sounds, it indicates the end of the cooking cycle and that no more steam is entering the compartment. Cooking pilot light will go off and ready pilot light will come on. Buzzer must be shut off by turning the timer to its off position.
CAUTION: An obstructed drain can cause personal injury or property damage.
Frequently check that the compartment drain and plumbing is free of all obstructions. Never place food containers, food or food portion bags in the cooking compartment in such a way that the compartment drain becomes obstructed.
IMPORTANT: Each compartment is equipped with a removable drain screen. Frequently check the drain screen for accumulation of food particles. Should food particles accumulate against, or clog the drain screen, remove it, clean it thoroughly and then replace it in its original position.
Shut Down
- To shut down cooking compartment, set timers to their OFF position and leave doors slightly open.
- At the end of the day, open the door of the cabinet base and turn off the power switch. Turn off external steam supply valve.
Cleaning
WARNING
- Never spray water into electric controls.
CAUTION
- Do not use cleaning agents that are corrosive.
- Live steam and accumulated hot water in the compartment may be released when the door is opened.
- Disconnect the power supply during cleaning or servicing.
- Keep exposed cleanable areas of unit clean at all times.
- Thoroughly wash oven cavities, door liners, and pan racks at the end of each day or as required with a mild detergent and water to prevent bacterial growth and odours.
- Remove drain screens from inside compartment drains. Using a plastic bottle brush and mild detergent, clean inside the drain opening ensuring there is no food residue or blockage. Clean the drain screen and replace in its original position.
- Wash gasket sealing surface with mild detergent to remove harmful food acids and rinse.
- Keep all exposed cleanable areas of unit clean at all times. DO NOT GET WATER IN ELECTRICAL BOX OR ANY ELECTRICAL COMPONENTS.
Troubleshooting
NOTICE
- Contact the factory, the factory representative or local service company to perform maintenance and repairs.
- Refer to warranty terms.
- At least twice a year have an authorized service person clean and adjust the unit for maximum performance.
Door Leaks
- Check for damage to door gasket.
- Gasket may be adjusted if necessary by turning the screws counter clockwise in the gasket plate.
Water Accumulates in the Compartment
- Compartment drain screen clogged. Remove and clean thoroughly and replace.
COOKING CHART
The following table lists suggested cooking times and weights. These times, which will vary depending on initial product temperature, size, shape, etc., are approximate and should be adjusted to suit your operation.
PRODUCTS TO BE COOKED IN SOLID PANS

Direct Steam Cabinet Base Convection Steamer
| PRODUCT | TIMER SETTING (MINUTES) | WEIGHT PER PAN |
| Hot Dogs or Wieners | 3 | 80 – 100 Count |
| Asparagus Spears Frozen Fresh | 10 – 12 5 | 3 Doz. 5 lb. |
| Beans Green, 2” Cut, Frozen/Fresh Lima, Frozen Baby Lima, Frozen | 6 8 5 | 5 lb. 5 lb. 5 lb. |
| Broccoli Spears, Frozen Spears, Fresh Florets, Frozen | 8 6 6 | 4 lb. 5 lb. 5 lb. |
| Brussel Sprouts, Frozen | 6 | 5 lb. |
| Cabbage, Fresh, 1/6 Cut | 8 | 5 lb. |
| Carrots Baby Whole, Frozen Crinkle Cut, Frozen Sliced, Fresh | 8 7 – 8 11 | 7 lb. 4 lb. 9 lb. |
| Cauliflower, Flowerettes Frozen Fresh | 6 7 – 8 | 4 lb. 5 lb. |
| Celery, 1” Diagonal Cut | 7 | 5 lb. |
| Corn Yellow Whole Kernel, Frozen Cobbettes, Frozen Corn-On-Cob, Fresh | 5 8 16 – 18 10 – 12 16 – 18 | 5 lb. 27 Ears 80 Ears 18 Ears 54 Ears |
| Peas, Green | 6 | 5 lb. |
| Potatoes, Whole Russet | 55 | 10 lb. |
| Spinach Chopped, Frozen Defrosted Fresh Cut | 17 5 3 | 6 lb. 6 lb. 2 lb. |
| Squash, Acorn Halves | 25 | 10 Halves |
| Zucchini, Slices | 8 | 10 lb. |
| Frozen Mixed Vegetables | 6 – 7 | 5 lb. |
| Fruit, Blanch for Peeling, Grapefruit Oranges | 3 | |
| Pineapple, Whole for Cutting | 4 |
Cooking Hints
- Where possible, spread food out evenly in pans. Do not allow food to protrude above pans, since this will interfere with steam circulation between pans in the compartment.
- Always preheat compartments for satisfactory results. When time does not allow for defrosting of frozen vegetables, such as loose-pack peas, corn, diced carrots, etc., they may be cooked at once provided just half of the suggested portions in the cooking chart are used.

A product with the Crown name incorporates the best in durability and low maintenance. We all recognize, however, that replacement parts and occasional professional service may be necessary to extend the useful life of this appliance. When service is needed, contact a Crown Authorized Service Agency, or your dealer. To avoid confusion, always refer to the model number, serial number, and type of your appliance.

CROWN FOOD SERVICE EQUIPMENT
A Middleby Company
- 70 Oakdale Road, Downsview (Toronto) Ontario, Canada, M3N 1V9
- Telephone: 919-762-1000
- www.crownsteamgroup.com
IMPORTANT FOR FUTURE REFERENCE
Please complete this information and retain this manual for the life of the equipment:
Model #: ___________________________
Serial #: ___________________________
Date Purchased: _____________________





















