Altronix T2428175C220 AC Power Supply Instruction Manual
Overview:
Altronix T2428175C220 AC Power Supply provides 24VAC with 47.25 or 28VAC with 6.25A of continuous supply current.
Specifications
- Input: 220-240VAC, 50/60Hz, 0.8A.
- Output: 24VAC @ 7.25A or 28VAC @ 6.25A supply current.
- In-line fuse is rated @ 3.5A/250V.
- Green grounding lead.
Installation Instructions
- Mount the AC power supply in desired location.
- Connect the AC (220-240VAC 50/60 Hz) to the black and white flying leads of the transformer (Fig. 1).
- Measure output voltage before connecting devices. This helps avoiding potential damage.
- Connect 24VAC devices to terminals marked [COM] and [24VAC] or 28VAC devices to terminals marked [COM] and [28VAC] on the terminal block on the inside back of the enclosure.
- Upon completion of the wiring secure enclosure door with screws (supplied).

WARNING: This installation should be made by qualified service personnel and should conform to the National Electrical Code and all local codes.
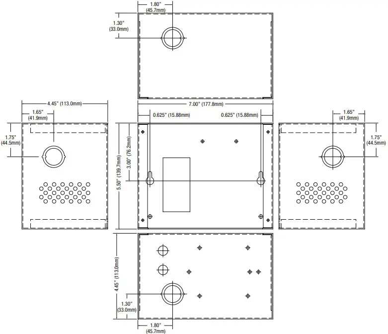
Enclosure Dimensions (H x W x D approximate):
5.625” x 7” x 4.5” (142.88mm x 177.8mm x 114.3mm)
Altronix is not responsible for any typographical errors. Product specifications are subject to change without notice
140 58th Street, Brooklyn, New York 11220 USA | phone: 718-567-8181 | fax: 718-567 9056 website: www.altronix.com | e-mail: [email protected] | Lifetime Warranty IIT2428175C220 – Rev. 090106





















