FAIR-PLAY FB-8145-2 Football Scoreboard

DIMENSIONS 

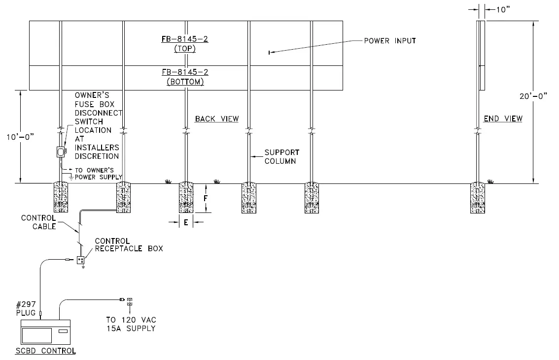
COMPLY COLUMNS WITH AND IBC FOOTINGS 2006 90 SHOWN MPH HERE, EXPOSURE PROVIDED B BY REQUIREMENTS. OTHERS ARE SIZED TO EXPOSURE MANUFACTURED B AS THE PRODUCT MOUNTED IN EXCEEDS THE DRAWING. REQUIREMENTS SOIL- OF AVERAGE IBC WITH 2006 90 ALLOWABLEMPH
STRESSES OF 2500 psf. DESIGN SHOULD BE ALTERED Y FOR ASSUMES DIFFERENT NO SOIL CONDITIONS, RESPONSIBILITIES CLEARANCE, FOR OR INSTALLATIONS LOCAL CODES. DONE BY FAIR PLANTERS. CONTROL CABLES- SUGGEST 3/ 4″ CONDUIT BE USED FOR BURIED CABLE WIRESIN AREAS SHOULD BE WHERE IT ROUTED MAY IN BE SEPARATE SUBJECT TO CONDUIT MECHANICAL FROM CONTROL DAMAGE. CABLE. PO ENGINEER INSTALLATION IN YOUR DRAWING AREA SHOULD PRIOR BE TO REVIEWED FOR CONSTRUCTION. BY A LICENSED PROFESSIONAL REFERENCE 01-0500-01 FOR INSTALLATION NOTES.
MY SIGNAl\JRE BELOW SIGNIFIES MY APPROVAL TO PROCEED WITH THE DESIGN WORK SPECIFIED HEREIN AND ACKNOWLEDGEMENT THAT I HAVE RECEIVED AND READ THE INSTALLATION SPECIFICATIONS CONTAINED IN FAIR-PLAY DOCUMENT NO. 01-0500-01. CONSULT YOUR FAIR-PLAY SALES ASSOCIATE IF YOU SHOULD HAVE ANY QUESTIONS OR REQUIRE ANY CHANGES TO THIS DOCUMENT. OR THIS OF ANY DOCUMENT INFORMATION CONTAINS CONTAINED FAIR-PLAY THEREIN PROPRIETARY FOR OTHER INFORMATION. THEN THE ANY SPECIFIC DISCLOSURE, PURPOSE USE, OR FOR WHICH DUPLICATION IT WAS OF THE DISCLOSED DOCUMENT IS
- UPDATED CABINET DEPTH,
- HANGERS
- UPDATED TmLE BLOCK
- ORIGINAL RELEASE




















