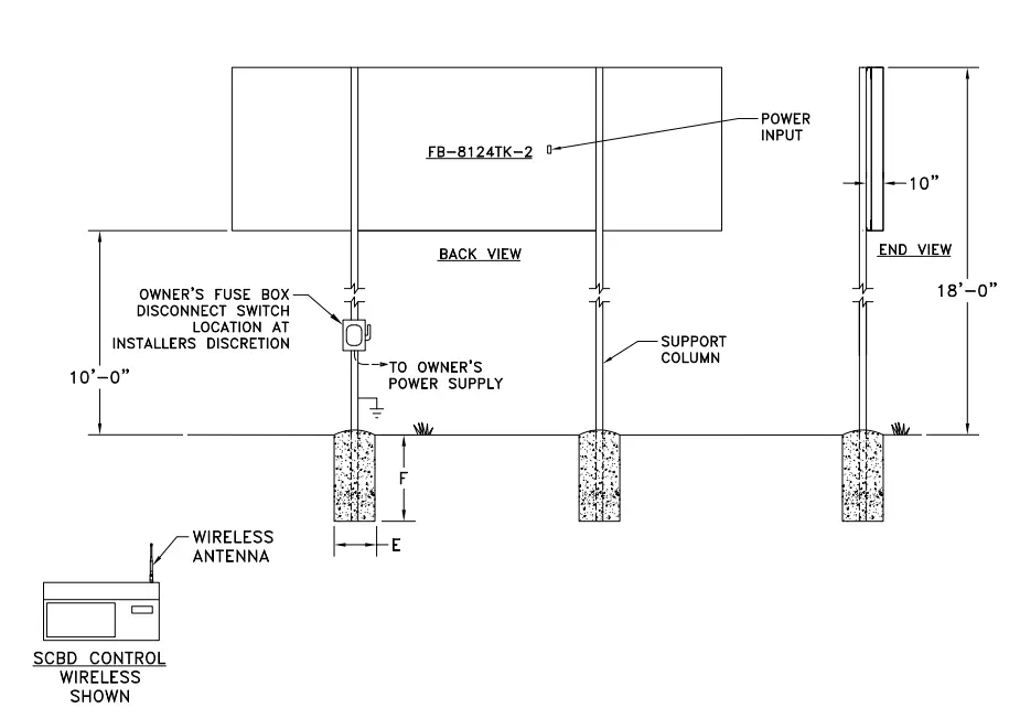
FAIR-PLAY FB-8124TK-2 Football Scoreboard
DIMENSIONS
- COLUMNS AND FOOTINGS SHOWN HERE, PROVIDED BY OTHERS, ARE SIZED TO COMPLY WITH 1BC 2006 90 MPH EXPOSURE B REQUIREMENTS.
- THE MANUFACTURED PRODUCT EXCEEDS THE REQUIREMENTS OF IBC 2006 90 MPH EXPOSURE
- AS MOUNTED HERE. DESIGN SHOULD BE ALTERED FOR DIFFERENT SOIL CONDITIONS, CLEARANCE, OR LOCAL CODES.
- FAR-PLAY ASSUMES NO RESPONSIBILITIES FOR INSTALLATIONS DONE BY OTHERS. CONTROL CABLES- SUGGEST 1/2″ CONDUIT BE USED FOR BURIED CABLE IN AREAS WHERE IT MAY BE SUBJECT TO MECHANICAL DAMAGE. POWER WIRES SHOULD BE ROUTED IN SEPARATE CONDUIT FROM CONTROL CABLE.
- INSTALLATION DRAWING SHOULD BE REVIEWED AND APPROVED BY A LICENSED PROFESSIONAL ENGINEER IN YOUR AREA PRIOR TO CONSTRUCTION
STANDARD BRACKET
HANGER DETAIL






















