LEDALITE MI NatureConnect Large Frame

Mounting Instructions
- Large frame
- NatureConnect
Frame trim

Recessed version only

Tools not included

Suspension kit

Large frame
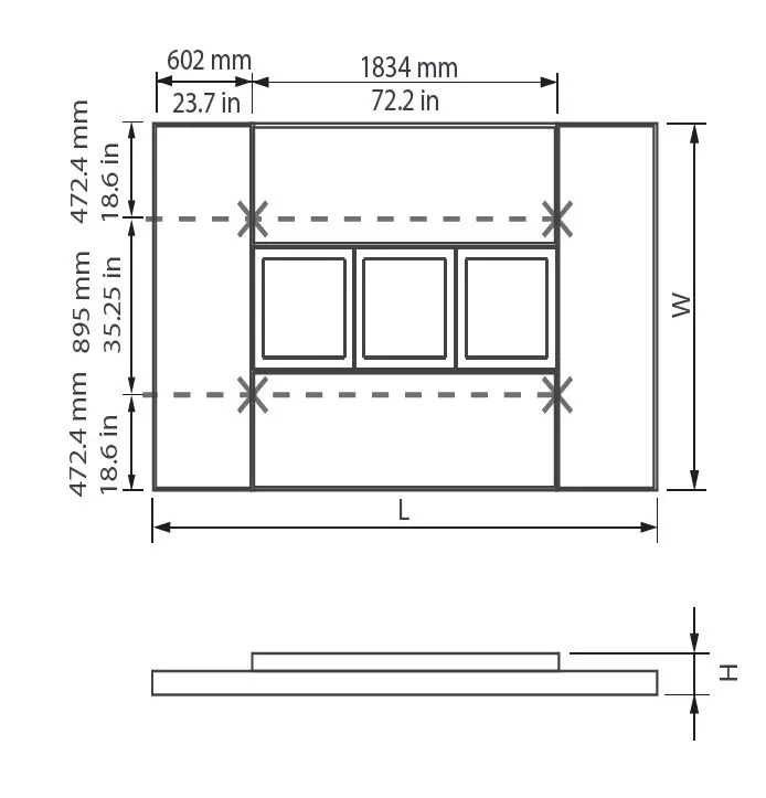
Suspended version dimensions LxWxH
- 3037x1838x141 mm
- 119.57x 72.36x 5.55 in
- 131 Kg (including luminaires)
- 290 Lb (including luminaires)
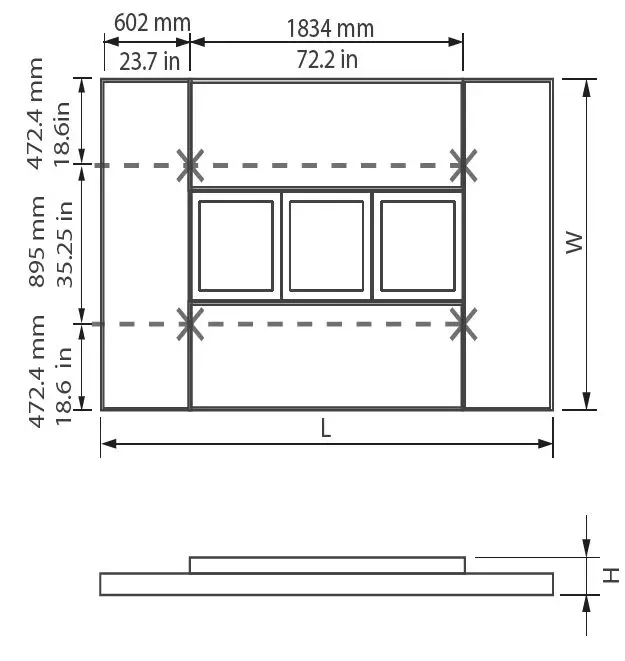
Recessed version dimensions LxWxH
- 3077x1878x141 mm
- 121.14x 73.93x 5.55 in
Suspended

Recessed

Suspended

Recessed

For more detailed mounting instruction, please consult your Signify representative for the NatureConnect system installation manual.
- During installation or maintaining the luminaire please use gloves to avoid spots on the cover.
- To remove dust and spots use the following:
- Dust: use micro fiber cloths only
- Fingerprints, etc.: use a cleaner for synthetic materials with antistatic properties.
© 2020 Signify Holding. All rights reserved Data subject to change without notice www.signify.com/natureconnect



















