FLCU-x30-110 FLCU Series High Watt LED Flood Lights
User Manual

Wiring Diagram

Specifications
| Specifications | FLCU-40K30-110 | FLCU-40K50-60 | FLCU-40K50-110 | FLCU-40K100-60 | FLCU-40K100-110 | FLCU-40K200-110 |
| Operating Temperature | -4-104°F (-20-40 °C) | |||||
| IP Rating | IP65 | |||||
| Fixture Weight | 2.6 lbs (1.17Kg) | 3.65 lbs (1.65Kg) | 8.36 lbs (3.79Kg) | 13.7 lbs (6.21Kg) | ||
Check the product labels for specific electrical specifications related to installation.
Improper installation will void the warranty.
Warnings
- This product should be installed by a fully certified electrician in accordance with local building and electrical codes.
- Due to the risk of electric shock, ensure that the main power source and circuit breakers are switched off before performing any installation or wiring procedures.
- Failure to properly support the fixture during installation may cause damage or injury, for which the manufacturer is not responsible. Ensure the light bracket is securely mounted and will support the weight of the fixture.
Instructions

- Use the mounting bracket to mark out bolt holes on the wall and then drill holes.(Fig 1)

- Drive the bolts into the holes with the threading facing outward.(Fig 2)

- Place the mounting bracket over the bolts and push it flush with the wall.(Fig 3)

- Fasten the nuts on the bolts to tighten the mounting bracket to the wall.(Fig 4)

- Rotate the light to the desired angle and tighten the screws with an Allen driver. (Fig 5)
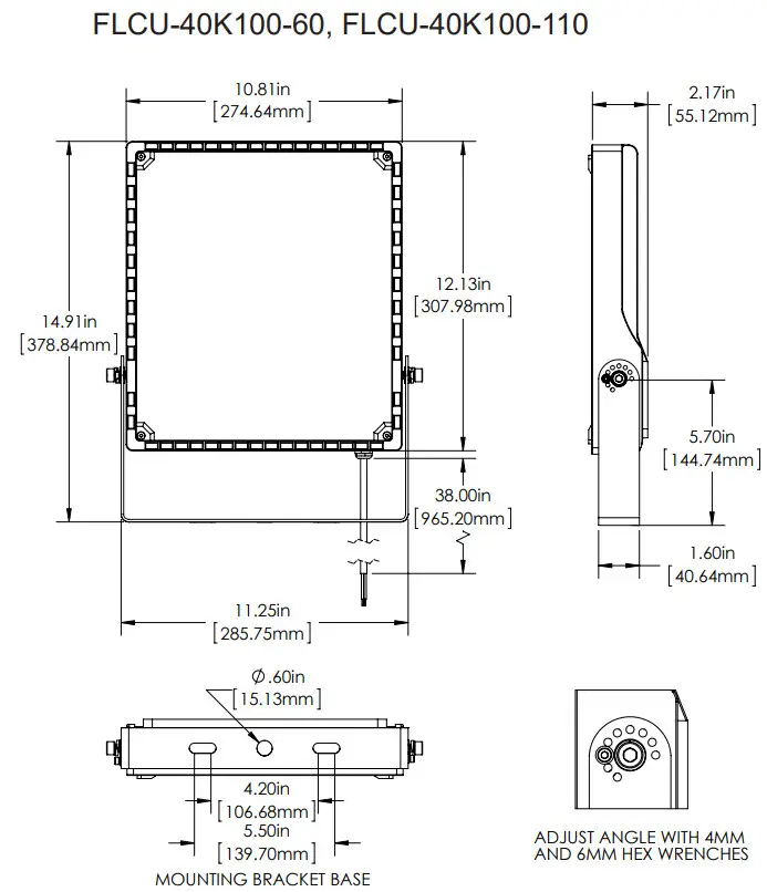
Dimensional Drawings
![]() | ![]() |
![]() | ![]() |
![]()
Rev Date: V1 09/30/2021
4400 Earth City Expy, St. Louis, MO 63045
866-590-3533
superbrightleds.com






















