WOLF Dual Fuel Ranges

Dual Fuel Ranges
Discover a new world of cooking—the best of two worlds, actually—with a Wolf dual fuel range. Topside, gas cooking in all its glory, with the fine control of dual-stacked, sealed burners and options that include the remarkable French top. Below, that marvel of culinary technology, the Wolf convection electric oven. Its two fans and four heating elements let you select from 10 cooking modes so you can choose the one precisely suited to the dish you’re preparing. The ovens are self-cleaning. With a variety of range widths to choose from, kitchens large and small become gateways to the exciting new world of dual fuel cooking. All models are constructed of stainless steel and can be ordered in natural or LP gas.
CONFIGURATIONS

Features and specifications are subject to change at any time without notice. Visit wolfappliance.com/specs for the most up-to-date information.
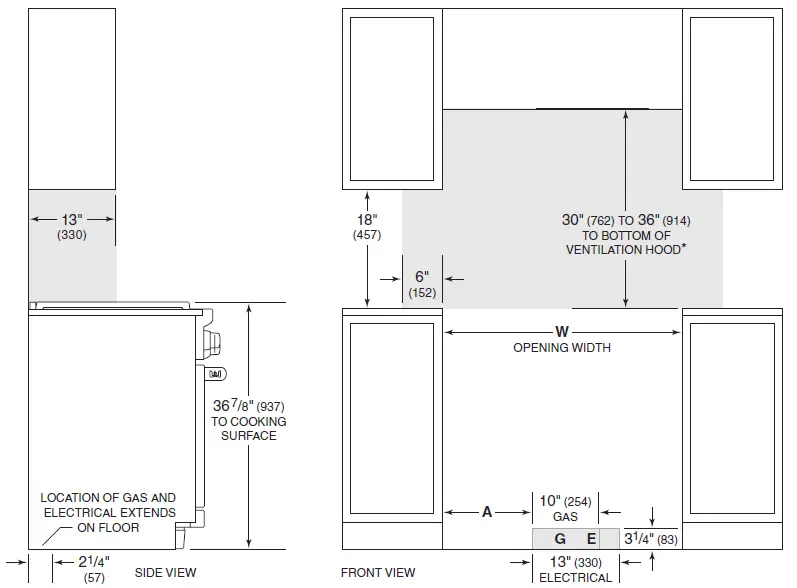
Throughout this guide, dimensions may vary by ± 1/8″ (3). Dimensions in parentheses are millimeters unless otherwise specified.
Dual Fuel Ranges


Planning Information
When installing against a combustible surface, a minimum 10″ (254) riser is required for a 36″ dual fuel range with charbroiler or griddle and all 48″ and 60″ models. Follow all minimum clearances to combustible surfaces shown in the illustration on the following page.
A Wolf pro ventilation hood is recommended with the dual fuel range. Refer to the Wolf Design Guide for Pro Ventilation.
ELECTRICAL REQUIREMENTS
Installation must comply with all applicable electrical codes.
Locate the electrical supply flush with the wall or floor and within the shaded area shown in the illustration on the following page. A separate circuit servicing only this appliance is required.
If a power supply cord is being used with models that require a 50 amp breaker, the cord must be designated for use with ranges and rated for 240/208, 50 amps and must include 3 or 4 conductors. A 4-conductor cord is required for installations where grounding through the neutral is prohibited.
Wolf dual fuel ranges have a terminal block that allows for a 3-wire or 4-wire installation.
ELECTRICAL REQUIREMENTS
SINGLE OVEN RANGE
Electrical Supply grounded, 240/208 VAC, 60 Hz
Service 30 amp dedicated circuit
Total Amps 21
DOUBLE OVEN RANGE
Electrical Supply grounded, 240/208 VAC, 60 Hz
Service 50 amp dedicated circuit
Total Amps 42.5
GAS SUPPLY
Installation must comply with all applicable gas codes.
If local codes permit, a certified, 3′ (.9 m) long, 1/2″ (13) or 3/4″ (19) ID flexible metal appliance connector is recommended.
Wolf natural gas ranges will function up to 10,250′ (3124 m) in altitude without adjustment and LP gas ranges will function up to 8,600′ (2621 m). If the installation exceeds these elevations, contact an authorized Wolf dealer for a high altitude conversion kit.
GAS REQUIREMENTS
Gas Supply 3/4″ ID line
Gas Inlet 1/2″ NPT female
NATURAL GAS WC
Supply Pressure 5″ (12.5 mb)
Min Line Pressure 7″ (17.5 mb)
Max Regulator Pressure 14″ (34.9 mb), .5 psi (3.5 kPa)
LP GAS WC
Supply Pressure 10″ (25 mb)
Min Line Pressure 11″ (27.4 mb)
Max Regulator Pressure 14″ (34.9 mb), .5 psi (3.5 kPa)
INSTALLATION

Without ventilation hood, 36″ (914) minimum clearance countertop to combustible materials, 44″ (1118) for charbroiler.
NOTE: Shaded area above countertop indicates minimum clearance to combustible surfaces, combustible materials cannot be located within this area.
For island installation, 12″ (305) minimum clearance back of range to combustible rear wall above countertop.
| OPENING WIDTH | W | A |
| 30″ Range | 30″ (762) | 81/2″ (216) |
| 36″ Range | 36″ (914) | 131/2″ (343) |
| 48″ Range | 48″ (1219) | 24″ (610) |
| 60″ Range | 601/4″ (1530) | 31″ (787) |
Sub-Zero, Sub-Zero & Design, Sub-Zero & Snowflake Design, Dual Refrigeration, The Living Kitchen, Great American Kitchens The Fine Art of Kitchen Design, Wolf, Wolf & Design, Wolf Gourmet, W & Design, red colored knobs, Cove, and Cove & Design are registered trademarks and service marks of Sub-Zero Group, Inc. and its subsidiaries.
All other trademarks are property of their respective owners in the United States and other countries.
Warranty
Wolf Appliance Residential Limited Warranty
FOR RESIDENTIAL USE
FULL TWO YEAR WARRANTY*
For two years from the date of original installation, this Wolf Appliance product warranty covers all parts and labor to repair or replace, under normal residential use, any part of the product that proves to be defective in materials or workmanship. All service provided by Wolf Appliance under the above warranty must be performed by Wolf Factory Certified Service, unless otherwise specified by Wolf Appliance, Inc. Service will be provided during normal business hours.
LIMITED FIVE YEAR WARRANTY
For five years from the date of original installation, Wolf Appliance will repair or replace the following parts that prove to be defective in materials or workmanship: gas burners (excludes appearance), electric heating elements, blower motors (ventilation hoods), electronic control boards, magnetron tubes and induction generators. If the owner uses Wolf Factory Certified Service, the service provider will repair or replace these parts with the owner paying for all other costs, including labor. If the owner uses a non-certified service, the owner must contact Wolf Appliance, Inc. (using the information below) to receive repaired or replacement parts. Wolf Appliance will not reimburse the owner for parts purchased from non-certified service or other sources.
TERMS APPLICABLE TO EACH WARRANTY
The warranty applies only to products installed for normal residential use. The warranty applies only to products installed in any one of the fifty states of the United States, the District of Columbia or the ten provinces of Canada. This warranty does not cover any parts or labor to correct any defect caused by negligence, accident or improper use, maintenance, installation, service or repair.
THE REMEDIES DESCRIBED ABOVE FOR EACH WARRANTY ARE THE ONLY ONES THAT WOLF APPLIANCE, INC. WILL PROVIDE, EITHER UNDER THIS WARRANTY OR UNDER ANY WARRANTY ARISING BY OPERATION OF LAW. WOLF APPLIANCE, INC. WILL NOT BE RESPONSIBLE FOR ANY CONSEQUENTIAL OR INCIDENTAL DAMAGES ARISING FROM THE BREACH OF THIS WARRANTY OR ANY OTHER WARRANTY, WHETHER EXPRESS, IMPLIED OR STATUTORY.
Some states do not allow the exclusion or limitation of incidental or consequential damages, so the above limitation or exclusion may not apply to you. This warranty gives you specific legal rights and you may also have other legal rights that vary from state to state.
To receive parts and/or service and the name of Wolf Factory Certified Service nearest you, contact Wolf Appliance, Inc., P.O. Box 44848, Madison, WI 53744; check the Product Support section of our website, wolfappliance.com, email us at [email protected] or call 800-222-7820.
- Stainless steel (doors, panels, handles, product frames and interior surfaces) are covered by a limited 60-day parts and labor warranty for cosmetic defects.
- Replacement filters for ventilation hood recirculating kits are not covered by the product warranty.















