Gas Range
Installation Guide![]()
SPECIFICATIONS, INSTALLATION, AND MORE
Features and specifications are subject to change at any time without notice. Visit wolfappliance.com/specs for the most up-to-date information.
Important Note
To ensure this product is installed and operated as safely and efficiently as possible, take note of the following types of highlighted information throughout this guide:
IMPORTANT NOTE highlights information that is especially important.
CAUTION indicates a situation where minor injury or product damage may occur if instructions are not followed.
WARNING states a hazard that may cause serious injury or death if precautions are not followed.
IMPORTANT NOTE: Throughout this guide, dimensions in parentheses are millimeters unless otherwise specified.
IMPORTANT NOTE: Save these instructions for the local electrical inspector.
Gas Range
Product Information
Important product information, including the model and serial number, are listed on the product rating plate. The rating plate is located on the bottom of the control panel, at the far right, just above the oven door. Refer to the illustration below.
If service is necessary, contact Wolf Factory Certified Service with the model and serial number. For the name of the nearest Wolf Factory Certified Service or for questions regarding the installation, visit the Product Support section of our website, wolfappliance.com, or call Wolf Customer Care at 800-222-7820.

Safety Precautions
IMPORTANT INSTRUCTIONS
WARNING
A child or adult can tip this appliance and be killed.
Verify the anti-tip device has been properly installed and engaged. Ensure the anti-tip device is re-engaged when this appliance is moved. Refer to the illustrations below for how to verify the correct installation.
Do not operate this appliance without the anti-tip device in place and engaged. Failure to do so can result in death or serious burns to children or adults.
To reduce the risk of burns, do not move this appliance while hot.

- This appliance is equipped with casters on two or more legs and must be installed on 1/8″ (3) thick commercial grade vinyl composition floor finishing materials or equivalent.
- This appliance is not approved for downward airflow ventilation or air curtain equivalent.
- A minimum 20″ (508) riser is required when installing against a combustible surface.
Specifications
Electrical Requirements
Installation must comply with all applicable electrical codes.
Locate the electrical supply flush with the wall or floor and within the shaded area shown in the illustration on page 7.
A separate circuit servicing only this appliance is required.
A ground fault circuit interrupter (GFCI) is not recommended and may cause interruption of operation.
ELECTRICAL REQUIREMENTS
| Electrical Supply | grounded, 110/120 VAC, 60 Hz |
| Service | 15 amp dedicated circuit |
| Receptacle | 3-prong grounding-type |
| Power Cord | 6′ (1.8 m) |
Gas Supply
Installation must comply with local codes, or in the absence of local codes, with the National Fuel Gas Code.
Locate the gas supply within the shaded area shown in the illustration on the following page.
The range is equipped for use with natural or liquid propane (LP) gas. The product rating plate has information on the type of gas that should be used. For rating plate location, refer to the illustration below. If this information does not agree with the type of gas available, check with the local gas supplier. The pressure regulator is built into the unit.
GAS REQUIREMENTS
| NATURAL GAS | WC |
| Supply Pressure | 5″ (12.5 mb) |
| Min Line Pressure | 7″ (17.5 mb) |
| Max Regulator Pressure | 14″ (34.9 mb), .5 psi (3.5 kPa) |
| LP GAS | WC |
| Supply Pressure | 10″ (25 mb) |
| Min Line Pressure | 11″ (27.4 mb) |
| Max Regulator Pressure | 14″ (34.9 mb), .5 psi (3.5 kPa) |

The range must be connected to a regulated gas supply.
The supply line must be equipped with an approved external gas shut-off valve located near the range in an accessible location. Do not block access to the
shut-off valve.
Refer to the illustration below.
A gas supply of 3/4″ (19) ID line must be provided to the range. If local codes permit, a certified, 3′ (.9 m) long, 1/2″ (13) or 3/4″ (19) ID flexible metal appliance connector is recommended to connect the units 1/2″ NPT female inlet to the gas supply line. Pipe joint compounds suitable for use with natural or LP gas should be used.
The appliance and its shut-off valve must be disconnected from the gas supply piping system during any pressure testing of the system at test pressures in excess of .5 psi (3.5 kPa). The appliance must be isolated from the gas supply piping system by closing its individual manual shutoff valve during any pressure testing of the system at test pressures equal to or less than .5 psi (3.5 kPa).
Wolf natural gas ranges will function up to 8,600′ (2621 m) in altitude without adjustment. If the installation exceeds these elevations, contact an authorized Wolf dealer for a high-altitude conversion kit. LP gas ranges do not require conversion.

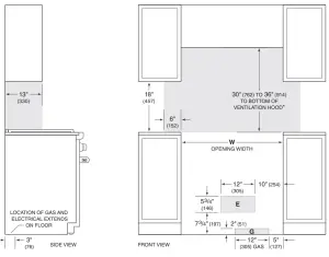
INSTALLATION

*Without ventilation hood, 42″ (1067) minimum clearance countertop to combustible materials, charbroiler, and GR488 require non-combustible materials.
NOTE: Shaded area above countertop indicates minimum clearance to combustible surfaces, combustible materials cannot be located within this area.
For island installation, 12″ (305) minimum clearance back of range to the combustible rear wall above the countertop.
| OPENING WIDTH | W |
| 30″ Model | 30″ (762) |
| 36″ Model | 36″ (914) |
| 48″ Model | 48″ (1219) |
| 60″ Model | 60 1/4″ (1530) |
Preparation
Before moving the range, protect any finished flooring and secure oven door(s) closed to prevent damage.
To lighten the load or to fit through a doorway, the oven door(s) can be removed. Remove only if necessary. Do not remove the griddle or any other component. Door removal should be done only by a certified installer or service technician.
For removal, a hinge pin will be inserted into the appropriate hinge shown in the illustrations below. The pin(s)are located inside the oven door. For single oven ranges, the hinge pin must be inserted in the right hinge. For double oven ranges, the pins must be placed in the outer two hinges.
CAUTION
Failure to insert the hinge pin in the appropriate hinge arm will cause damage to the range.

OVEN DOOR REMOVAL
- Insert the hinge pin into the appropriate hinge.
- Remove the lower kickplate assembly to access the lower hinge retainer mounting screws.
- Open the oven door and remove both upper and lower hinge retainer mounting screws. The oven gasket may have to be moved slightly to access the bottom screws.
- Move the hinge retainer plate forward slightly. The hinge retainer plate will remain on the door hinge after the mounting screws have been removed.
- Carefully close the oven door to approximately 60°, then lift the door up and out. A slight rocking motion may be required for removal.

Placement
Do not lift or carry the oven door by the door handle. The range has rear casters which allow for easy movement by lifting the front of the unit.
Use an appliance dolly to move the range near the opening. Remove and recycle packing materials. Do not discard the anti-tip bracket supplied with the range.
If a riser has been specified, refer to installation instructions packaged with the riser. The riser must be installed before the range is installed.
Leveling
Raise the range to its desired height by adjusting the front legs and rear casters. The front legs can be adjusted by rotating the hexagonal leg clockwise to raise and counterclockwise to lower. The rear casters can be adjusted by rotating the wheel assembly.
Anti-Tip Bracket
To prevent the range from tipping forward, the anti-tip bracket must be installed. To ensure the anti-tip bolt engages the bracket, position the bracket 3″ (76) from the left side of the opening. Refer to the illustration below.
INSTALL BRACKET
Drywall application: After properly positioning the anti-tip bracket, mark the holes, then use a Phillips screwdriver or a low rpm power drill to drive the wall anchor into the surface of the wallboard until flush. Pre-drill the holes if needed. For hard wallboard or double-board construction, use a 1/4″ drill bit. For solid plaster, use a 7/16″ drill bit. Refer to the illustration below. Use the #8 screws and flat washers to fasten the bracket to the wall.
Wood floor application: After properly positioning the anti-tip bracket, drill 3/16″ (5) pilot holes through the floor. Use the #12 screws and flat washers to secure the bracket to the floor.
Concrete floor application: After properly positioning the anti-tip bracket, drill 3/8″ (10) holes into the concrete a minimum of 1 1/2″ (38) deep. Use the /8″ wedge anchors to secure the bracket to the floor.

ANTI-TIP BOLT ADJUSTMENT
Once the bracket is secure, adjust the anti-tip bolt so the top of the washer is 7/8″ (22) maximum from the floor. Slide the range into the opening and verify the anti-tip bolt is engaged. Refer to the illustrations below.

Gas Supply Connection
All connections to the gas piping must be wrench-tightened. Do not overtighten or allow pipes to turn when tightening.
If a flexible metal connector is used, verify it is not kinked, then attach the gas supply line to the regulator on the range. Open the valve and check for leaks by placing a liquid detergent solution onto all gas connections. Bubbles around the connections indicate a gas leak. If a leak appears, close the shut-off valve and adjust the connections.
Troubleshooting
IMPORTANT NOTE: If the range does not operate properly, follow these troubleshooting steps:
- Verify electrical power is supplied to the range.
- Verify the gas supply shut-off valve is in the open position.
- If the range does not operate properly, contact Wolf Factory Certified Service. Do not attempt to repair the range. Wolf is not responsible for the service required to correct a faulty installation.
Sub-Zero, Sub-Zero & Design, Sub-Zero & Snowflake Design, Dual Refrigeration, The Living Kitchen, Great American Kitchens The Fine Art of Kitchen Design, Wolf, Wolf & Design, Wolf Gourmet, W & Design, red-colored knobs, Cove, and Cove & Design are registered trademarks and service marks of Sub-Zero Group, Inc. and its subsidiaries.
All other trademarks are property of their respective owners in the United States and other countries.
WOLF APPLIANCE, INC.
P.O.BOX 44848 MADISON,
WI 53744
WOLFAPPLIANCE.COM
800.222.7820
823550 REV-D
1/2021
wolfappliance.com



















