IKEA GRUNDAD Induction Hob

Product description

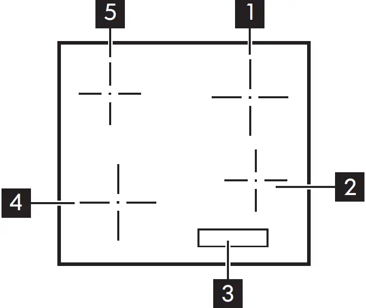
- Cooking zone
- Cooking zone
- Control panel
- Cooking zone
- Cooking zone
Residual heat
The indicator signals that a cooking zone is still hot. After you switch off the appliance, the cooking zones need some time to cool down.
Cookware indicator
The indicator signals that the cookware is incorrect or too small, or there is no cookware on the cooking zone.
Control panel

- On / Off.
- Lock / Child Lock / Cleaning mode.
- To select the cooking zone.
- Power setting display: , – .
- To increase or decrease the heat settings.
Functions
Lock / Child Lock / Cleaning mode The function locks / unlocks the control panel.
Automatic Switch Off
The function switches off the appliance automatically in certain conditions (e.g. when all cooking zones are deactivated).
Off Sound Control
The function deactivates and activates the sounds.
Power exchange function
The function divides the available power between the cooking zones to protect the fuses of the house installation.
Troubleshooting
If you encounter an issue with your appliance, check “Troubleshooting” chapter in the full version of the User Manual available on: www.ikea.com.
Technical data
Product Information Sheet according to Eco design Regulation

















