WMF coffeemachines
WMF 1300 S planning information
WMF 1300 S Fully Automatic Coffee Machines

Conditions for usage and installation
Any necessary on-site preparatory work for electricity, water, and drainage connections at the customer‘s premises is to be arranged by the machine owner/operator. The work must be carried out by authorized installation technicians in compliance with general, country-specific, and local regulations. The WMF service engineers may only connect the coffee machine to existing prepared connection points. WMF Service is neither authorized nor responsible for carrying out any on-site installation work prior to connection. The potential equalisation terminal is installed by WMF Service if needed.
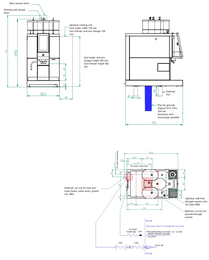
| Dimensions and empty weight | Width Height Depth Clearance height Weight | 325 mm 669 mm 561 mm 60 – 169 mm Approx. 35 kg (depending on the model) |
| Water supply | Water supply line Inlet temperature Water drain tube (optional) | 3/8 inch hose connector with mains tap and filter with 0.08 mm mesh size, on-site. At least 0.2 MPa (2 bar) flow pressure at 2 l/min (standard). Maximum 0.6 MPa (6 bar). Maximum 35 °C. Tube a minimum of DN 19, a minimum downward slope of 2 cm/m |
| For use at altitude above NN | < 2000 m | |
| Electrical data | Nominal power rating | 2.0 – 2.4 kW |
| Power supply | 220–240 V 50 / 60 Hz (1 / N / PE), country-specific power supply available | |
| Degree of protection | IP X0 | |
| Protection Class | I | |
| Installation Clearance | For operating, service, and safety reasons the machine should be installed with a clearance from the building or non-WMF components of not less than 50 mm at the sides and 60 mm at the back. A minimum working space of 800 mm in front of the coffee machine is recommended. Clearance of at least 200 mm above the product hopper is recommended. The height of the installation surface above the floor is at least 850 mm. If the coffee machine connections are to be run downwards through the counter, please make space for the lines, which can reduce the usable space below the machine. If the coffee machine is operated with a water filter the additional space under the machine depending on the filter size has to be considered. For further information see filter instructions. | |
| Installation surface/water spray | The device must be placed and leveled on a horizontal, sturdy, water-resistant, and heatproof base. The device must not be cleaned using a water jet. The device must be installed where it is protected against water spray. The device must not be located on a surface that is sprayed or cleaned with a water hose, steam jets, steam cleaner, or similar devices. | |
| Ventilation | If ventilation possibility is limited sufficient ventilation needs to be provided e.g machine on feet extension, active ventilation, and additional ventilation slots/ openings in the counter area. Ventilation slots must not be covered. Under certain circumstances forced ventilation on site is necessary to ensure heat dissipation. | |
| Electrical connection | These specifications for the electrical connection and the standards quoted apply to connecting the coffee machine in the EU. It may be necessary to also observe additional country-specific regulations. Outside the EU acceptance of the standards quoted is to be checked by the legal entity or natural person who wishes to use the coffee machine. |
| Water supply and drainage | The water supply must be located close to the machine (max. distance 800 mm). An anytime easily accessible and sufficiently dimensioned water tap (preferably ball tap) as well as a dirt filter with a mesh size of 0,080 mm must be installed below the counter in the water supply. |

| Miscellaneous | Ambient temperature | +5 °C to maximum +35 °C (empty the water system in case of frost). |
| Maximum humidity | 80 % relative humidity without condensation. Do not use the device outdoors. | |
| Heat dissipation | 0.056 kWh/h standby mode 2.3 kWh/h maximum use | |
| Continuous sound pressure level (Lpa) | < 70 dB(A) |
For more information as the instruction manual, safety data sheets, and certificates, see: http://mediacenter.wmf.com/servicecenter/
All information refers to coffee machines/ equipment as the standard versions. Individual solutions can differ from the standard version.
http://www.wmf-kaffeemaschinen.de/fachplaner
WMF Group GmbH | Eberhardstraße 35 | 73312 Geislingen (Steige)


















