WMF 9000 F Coffee Machine

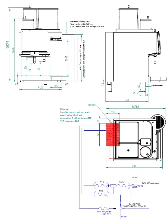
INTERNAL DIMENSION

Conditions for usage and installation
Any necessary on-site preparatory work for electricity, water and drainage connections at the customer‘s premises is to be arranged by the machine owner/operator. The work must be carried out by authorised installation technicians in compliance with general, country-specific and local regulations. The WMF service engineers may only connect the coffee machine to existing prepared connection points. WMF Service is neither authorised nor responsible for carrying out any on-site installation work prior to connection.
| Dimensions and empty weight | Width Height Depth Clearance heights
Weight | 450 mm 782 mm (with 4 mm feet, without lock) 605 mm (640 mm) 145 (coffee) 165 mm (206 mm removed hot water spout) Approx. 65 kg |
| Water supply | Water supply line
Inlet temperature | Onsite: 1/2 inch (TW12) hose connector with main shutoff valve and dirt filter with 250 sq.m mesh size, on-site. At least 0.36 MPa (3.6 bar) flow pressure at 6 l/min 1) 2) 3)
Machine site: Boiler feed ½ inch (TW12) Rinsing line 3/8 inch (TW8) At least 0.2 MPa (2 bar) flow pressure at 6 l/min. Maximum 0.6 MPa (6 bar). Maximum 35 °C. |
| Water drain tube (optional) | Hose a minimum of DN 40, minimum downward slope of 2 cm/m. If coffee machine is installed without grounds separator a 20 mm fall height is necessary. The fall height can be realised by using 352.389.08.1 from company Geberit or similar. | |
| Calibration pressure | Boiler | 0.32MPa (3.2 bar) |
| Use at elevation above sea level | <2000m | |
| Electrical data | Nominal power rating | 8.5 – 10.1 kW / 12.4 – 14.7 kW |
| Power supply | 380 / 415V 50 / 60 Hz (3 / N / PE) | |
| Degree of protection | IP X0 | |
| Protection Class | I |
- Under reconsideration of usual pressure loss caused by water connection set and water filter and to ensure max. hourly output at necessary machine side supply pressure of 0.2 Mpa (2bar) at 6 l/min
- Note: For effective operation of the setting routine of the pressure reducer, the system pressure at the machine connection needs to be at least 2,4bar at 6l/min. If the pressure is lower, the pressure difference might not be sufficient to set the pressure reducer according to the setting value
- Note: pressure loss cuased by an unpstream water filter. Further information can be found in the filter user manual
| Installation Clearance | For operating, service, and safety reasons the machine should be installed with a clearance from the building or non-WMF components of not less than 50 mm at the sides and 60 mm at the back. A minimum working space of 800 mm in front of the coffee machine is recommended. Clearance of at least 200 mm above the product hopper is recommended. The height of the installation surface above the floor is at least 850 mm. If the coffee machine connections are to be run downwards through the counter, please make space for the lines, which can reduce the usable space below the machine. Additional space for grounds through counter need to be considered on site if necessary. If the coffee machine is operated with a water filter the additional space under the machine depending on the fitler size has to be considered. For further information see filter instructions. Attention: Installation of the optional thermal container is on the right side (seen from the operating side). Space must be considered. |
| Ventilation | If ventilation possibility is limited sufficient ventilation need to be provided e.g machine on feet extension, active ventilation, additional ventilation slots/ openings in counter area. Ventilation slots must not be covered. Under certain circumstances a forced ventilation on site is necessary to ensure heat dissipation. |
| Installation surface / water spray | The device must be placed and leveled on a horizontal, sturdy, water-resistant, and heatproof base. The device must not be cleaned using a water jet. The device must be installed where it is protected against water spray. The device must not be located on a surface that is sprayed or cleaned with a water hose, steam jets, steam cleaner, or similar devices. |
| Electrical connection | These specifications for the electrical connection and the standards quoted apply for connecting the coffee machine in EU countries. It may be necessary to also observe additional country-specific regulations. Outside the EU countries acceptance of the standards quoted is to be checked by the legal entity or natural person who wishes to use the coffee machine. The customer’s on-site electrical system must be designed to meet countryspecific regulations per IEC 60364 and must match the information on the rating plate.
An isolated ground socket or a country-specific single-phase socket for single-phase connection, or a 5-pole CEE / CEKON socket per DIN EN 50310 VDE 0800–2-310 or a country- specific multi-pole socket for a three-phase connection, must be available near the machine. The sockets are part of the customer‘s on-site installation. The mains cable must not come into contact with hot surfaces. If the mains cable for this device is damaged then it must be replaced by our service personnel or a similarly qualified person, in order to prevent hazards. In order to avoid possible faults from arising in our shielded data lines due to potential equalisation currents between the devices, an additional potential equalisation unit should be planned for devices connected to the vending system (see DIN EN 50310 VDE 0800– 2-310). If the machine is intended to be installed in a large kitchen, it is recommended that it be equipped with a ground potential bonding conductor. The potential equalisation terminal is installed by WMF Service if needed. |
| Water supply and drainage | The water supply must be located close to the machine (max. distance 800 mm). An anytime easily accessible and sufficiently dimensioned water tap (preferably ball tap) as well as a dirt filter with mesh size 250 sq.m must be installed below the counter in the water supply. For connection from below through the counter a cut-out must be made in the hatched area on-site according to drawing (see top view). For drinking water with carbonate hardness above 5°dKH (carbonate hardness), a WMF water filter should be fitted upstream. If the coffee machine is connected to a drain connection, a funnel siphon must be installed in the drain pipe. Please observe that the free drain (funnel siphon with sheet metal angle) is fitted vertically. This means that it must always be vertical to the water back pressure level that is reached. It must be fitted in a way that the given gradient of the drain hoses (2%) is observed. Additionally, the free drain must always be below the drains of the coffee machine and above the actual drain pipe connections (HT40, HT50 or similar) with respect to its height. To a funnel siphon with sheet metal angle max. two coffee machines with DN19 hose and black silicone fabric hose should be connected. Other devices (dishwasher, sink etc.) should be installed elsewhere. The free drain incl. hoses must not be exposed to heavy tensile, pressure or torsional load. Hereby, damage might be caused at the mechanical components of the free drain. Consequently, its usability may get lost. The on-site preliminary works for the drainage connection must be commissioned by the operator of the machine. They must be carried out by concession plumbers in compliance with the prevailing, national as well as local regulations. The following drawings serve to illustrate the drains and do not include any other connections, such as power or water infeed! | |
| Miscellaneous | Ambient temperature | +5 °C to maximum +35 °C (empty the water system in case of frost). |
| Maximum humidity | 80 % relative humidity without condensation. Do not use device outdoors. | |
| Continuous sound pressure level (Lpa) | < 70 dB(A) | |
For more information as the instruction manual , safety data sheets and certificates , see: http://mediacenter.wmf.com/servicecenter/
All information refers to coffee machine equipment as standard version. Individual solutions can differ from the standard version.
http://www.wmf-kaffeemaschinen.de/fachplaner WMF GmbH | WMF Platz 1 | 73312 Geislingen (Steige)




















