WMF 1300 S Coffee Machine
WMF 1300 S planning information


Conditions for usage and installation
Any necessary on-site preparatory work for electricity, water and drainage connections at the customer‘s premises is to be arranged by the machine owner / operator. The work must be carried out
by authorised installation technicians in compliance with general, country-specific and local regulations. The WMF service engineers may only connect the coffee machine to existing prepared
connection points. WMF Service is neither authorized nor responsible for carrying out any on-site installation work prior to connection. The potential equalisation terminal is installed by WMF Service if needed.
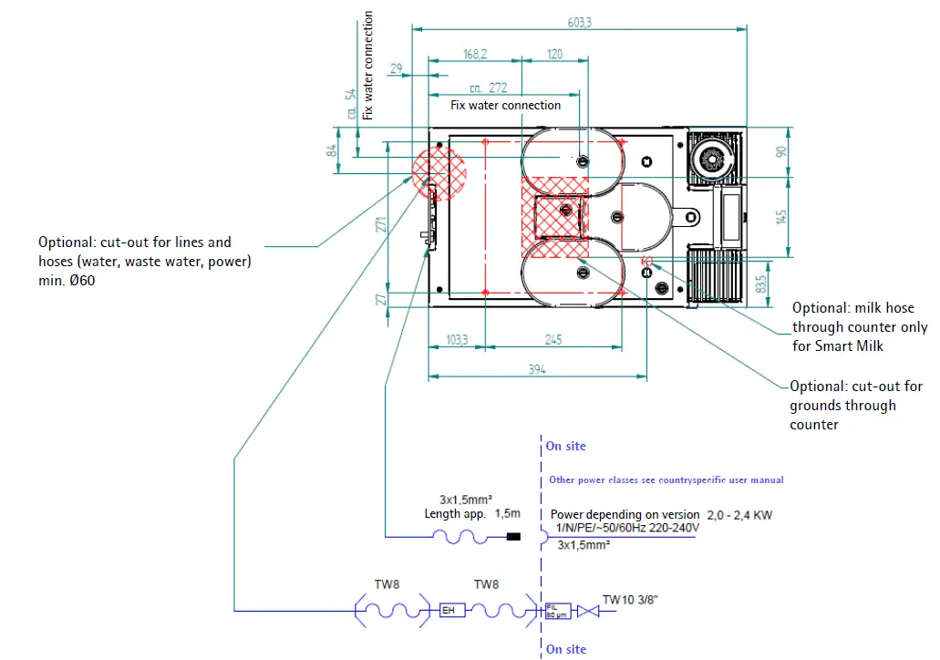
| Dimensions and empty weight | Width Height Depth Clearance height Weight | 325 mm 669 mm 561 mm 60 – 169 mm Approx. 35 kg (depending on the model) |
| Water supply | Water supply line
Inlet temperature
Water drain tube (optional) | 3/8 inch hose connector with mains tap, and filter with 0.08 mm mesh size, on site. At least 0.2 MPa (2 bar) flow pressure at 2 l/min (standard). Maximum 0.6 MPa (6 bar). Maximum 35 °C.
Tube a minimum of DN 19, minimum downward slope of 2 cm/m |
| For use at altitude above NN | < 2000 m | |
| Electrical data | Nominal power rating | 2.0 – 2.4 kW |
| Power supply | 220–240 V 50 / 60 Hz (1 / N / PE), country specific power supply available | |
| Degree of protection | IP X0 | |
| Protection Class | I | |
| Installation Clearance | For operating, service, and safety reasons the machine should be installed with a clearance from the building or non-WMF components of not less than 50 mm at the sides and 60 mm at the back. A minimum working space of 800 mm in front of the coffee machine is recommended. Clearance of at least 200 mm above the product hopper is recommended. The height of the installation surface above the floor is at least 850 mm. If the coffee machine connections are to be run downwards through the counter, please make space for the lines, which can reduce the usable space below the machine. If the coffee machine is operated with a water filter the additional space under the machine depending on the filter size has to be considered. For further information see filter instructions. | |
| Installation surface / water spray | The device must be placed and leveled on a horizontal, sturdy, water-resistant, and heatproof base. The device must not be cleaned using a water jet. The device must be installed where it is protected against water spray. The device must not be located on a surface that is sprayed or cleaned with a water hose, steam jets, steam cleaner, or similar devices. | |
| Ventilation | If ventilation possibility is limited sufficient ventilation need to be provided e.g machine on feet extension, active ventilation, additional ventilation slots/ openings in counter area. Ventilation slots must not be covered. Under certain circumstances a forced ventilation on site is necessary to ensure heat dissipation. | |
| Electrical connection | These specifications for the electrical connection and the standards quoted apply for connecting the coffee machine in EU. It may be necessary to also observe additional country-specific regulations. Outside the EU acceptance of the standards quoted is to be checked by the legal entity or natural person who wishes to use the coffee machine. The customer’s on-site electrical system must be designed to meet countryspecific regulations per IEC 60364 and must match the information on the rating plate. An isolated ground socket or a country-specific single-phase socket for single-phase connection, or a 5-pole CEE / CEKON socket per DIN EN 50310 VDE 0800–2-310 or a country-specific multi-pole socket for a three-phase connection, must be available near the machine. The sockets are part of the customer‘s on-site installation. The mains cable must not come into contact with hot surfaces. If the mains cable for this device is damaged then it must be replaced by our service personnel or a similarly qualified person, in order to prevent hazards. In order to avoid possible faults from arising in our shielded data lines due to potential equalisation currents between the devices, an additional potential equalisation unit should be planned for devices connected to the vending system (see DIN EN 50310 VDE 0800–2-310). If the machine is intended to be installed in a large kitchen, it is recommended that it be equipped with a ground potential bonding conductor. The potential equalisation terminal is installed by WMF Service if needed. Important advice regarding accounting systems: In case of operation with a card reader an additional and separately fuse-protected shockproof socket must be installed onsite if necessary depending on type of card reader. The supplier of the card reader is to be asked for the required fuse protection. In order to prevent possibly occurring disturbances of our screened data lines by potential equalization currents between the units, an additional potential equalization according to VDE should be provided for units connected to an accounting system. |
| Water supply and drainage | The water supply must be located close to the machine (max. distance 800 mm). An anytime easily accessible and sufficiently dimensioned water tap (preferably ball tap) as well as a dirt filter with mesh size 0,080 mm must be installed below the counter in the water supply.
For connection from below through the counter a cut-out must be made in the hatched area on-site according to drawing (see top view). For drinking water with carbonate hardness above 5°dKH (carbonate hardness), a WMF water filter should be fitted upstream. If the coffee machine is connected to a drain connection, a funnel siphon must be installed in the drain pipe. Please observe that the free drain (funnel siphon with sheet metal angle) is fitted vertically. This means that it must always be vertical to the water back pressure level that is reached. It must be fitted in a way that the given gradient of the drain hoses (2%) is observed. Additionally, the free drain must always be below the drains of the coffee machine and above the actual drain pipe connections (HT40, HT50 or similar) with respect to its height. To a funnel siphon with sheet metal angle max. two coffee machines with DN19 hose and black silicone fabric hose should be connected. Other devices (dishwasher, sink etc.) should be installed elsewhere. The free drain incl. hoses must not be exposed to heavy tensile, pressure or torsional load. Hereby, damage might be caused at the mechanical components of the free drain. Consequently, its usability may get lost. The on-site preliminary works for the drainage connection must be commissioned by the operator of the machine. They must be carried out by concession plumbers in compliance with the prevailing, national as well as local regulations. The following drawings serve to illustrate the drains and do not include any other connections, such as power or water infeed! |

| Miscellaneous | Ambient temperature | +5 °C to maximum +35 °C (empty the water system in case of frost). |
| Maximum humidity | 80 % relative humidity without condensation. Do not use device outdoors. | |
| Heat dissipation | 0.056 kWh/h standby mode 2.3 kWh/h maximum use | |
| Continuous sound pressure level (Lpa) | < 70 dB(A) |
For more information as the instruction manual , safety data sheets and certificates , see:
http://mediacenter.wmf.com/servicecenter/
All information refers to coffee machines/ equipment as standard version. Individual solutions can differ from the standard version.
http://www.wmf-kaffeemaschinen.de/fachplaner
WMF GmbH | WMF Platz 1 | 73312 Geislingen (Steige)
WMF 1300 S Coffee Machine






















