POTTER RA-6500F LCD Annunciator Flush Mount

RA-6500FLCD Annunciator Flush Mount
Features
- Industry leading 4 line by 40 Character LCD
- Common buttons for navigation
- Common LEDs for status indication
- 31 annunciator per panel
- Maximum wire length of 6,500 feet
- Available in 4 colors
- Product includes a 5 year warranty
- UUKL Listed for Smoke Control
Description
The RA-6500F is a flush mount LCD remote annunciator for various Potter fire control panels. The RA-6500F communicates using a RS-485 connection to the main panel providing common indication of Alarms, Supervisory, Trouble and other system status and control functions.
The RA-6500F features a 4×40 LCD display with LED’s for Power, Alarm, Supervisory, Trouble, Silence, Pre-Release, and Release conditions. It can be flush mounted or surface mounted. The annunciator is enclosed in a sheet metal enclosure and has a Potter lock securing the keypad.
Technical Specifications
| Standby Current | 20 mA |
| Alarm Current | 25 mA |
| Operating Temperature | 0°C-49°C (32°F-120°F) |
| Operating Humidity Range | 0 to 93% (non-condensing) |
| Maximum Wire Length | 6500 ft. |
| Maximum Annunciators | 31 |
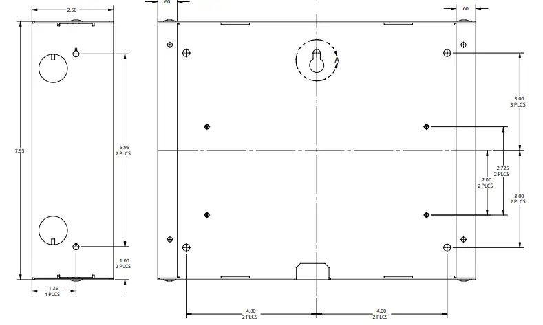
| Flush Mount Size (WxHxD) | 11 3/8” x 9-1/4” x 7/8” |
| Wire Gauge | 12 AWG-22 AWG |
|
Compatible Panels | IPA Series AFC/ARC Series PFC-4064 P-Series* PFC-6000 Series* |
Installation
The RA-6500F is connected to the PFC series or IPA series fire control panels using a four wire RS-485 connection. The connection is power limited and supervised. Up to thirty-one (31) RA-6500F LCD annunciators can be connected using Class B or Class A wiring. Class A wiring requires an optional Class A Expander.

Dimensions


Dip Switch Settings
Refer to the table below for dip switch settings per Annunciator Address.
| Annunciator Address | Dip Switch Settings | ||||
| SW-1 | SW-2 | SW-3 | SW-4 | SW-5 | |
| 1 | On | Off | Off | Off | Off |
| 2 | Off | On | Off | Off | Off |
| 3 | On | On | Off | Off | Off |
| 4 | Off | Off | On | Off | Off |
| 5 | On | Off | On | Off | Off |
| 6 | Off | On | On | Off | Off |
| 7 | On | On | On | Off | Off |
| 8 | Off | Off | Off | On | Off |
| 9 | On | Off | Off | On | Off |
| 10 | Off | On | Off | On | Off |
| 11 | On | On | Off | On | Off |
| 12 | Off | Off | On | On | Off |
| 13 | On | Off | On | On | Off |
| 14 | Off | On | On | On | Off |
| 15 | On | On | On | On | Off |
| 16 | Off | Off | Off | Off | On |
| Annunciator Address | Dip Switch Settings | ||||
| SW-1 | SW-2 | SW-3 | SW-4 | SW-5 | |
| 17 | On | Off | Off | Off | On |
| 18 | Off | On | Off | Off | On |
| 19 | On | On | Off | Off | On |
| 20 | Off | Off | On | Off | On |
| 21 | On | Off | On | Off | On |
| 22 | Off | On | On | Off | On |
| 23 | On | On | On | Off | On |
| 24 | Off | Off | Off | On | On |
| 25 | On | Off | Off | On | On |
| 26 | Off | On | Off | On | On |
| 27 | On | On | Off | On | On |
| 28 | Off | Off | On | On | On |
| 29 | On | Off | On | On | On |
| 30 | Off | On | On | On | On |
| 31 | On | On | On | On | On |
Ordering Information
| Model | Description | Stock No. |
| RA-6500F | LCD Annunciator Flush Mount – RED | 3992725 |
| RA-6500F | LCD Annunciator Flush Mount – BLACK | 3992741 |
| RA-6500F | LCD Annunciator Flush Mount – GRAY | 3992742 |
| RA-6500F | LCD Annunciator Flush Mount – LIGHT GRAY | 3992743 |
Potter Electric Signal Company, LLC
St. Louis, MO
Phone: 800-325-3936
www.pottersignal.com
firealarmresources.com




















