Quadrant Shower Enclosure
Installation Instrucations

Important Note on Safety Glass In order to comply with European Regulatory Requirements, all of our shower enclosures/bath screens undergo a thermal toughening process. This process makes the glass significantly stronger compared to standard glass, however in the unlikely event the glass should break during use,the glass in its entirety will shatter into small manageable fragments, the intention of this ensures avoiding large dangerously sharp shards of glass
Important – Please Read
- Important: The wall plugs included in this pack are for solid walls only. If the product is to be mounted on a partition or stud wall, specialized fixings should be purchased separately-your local building merchant should be able to ensure you have the correct fixings for the intended wall type.
- CAUTION! Before drilling into any walls check that there are no hidden cables or pipes. Exercise great care when using power tools near water. The use of a residual current device (RCD) or cordless drill is recommended. Always double-check the positioning and measurements before drilling holes.
- This product is heavy and requires two people during lifting and installation.
- Glass is delicate, supports on cardboard to minimize the risk of damage.
Product Information
- Opening wall adjustments 800mm Quadrant shower enclosure-adjustment 765-785mm
900mm Quadrant shower enclosure-adjustment 865-885mm
Installation Tips
- Fixing tips; A piece of insulating tape or a couple of layers of masking tape applied to the wall before marking out the fixing holes will help stop the drill from wandering, particularly on tiled surfaces.
- When working near a basin or bath insert the plug into the waste, this will help you avoid losing small parts. Also take care not to drop accessories or tools onto the bath or basin, use a towel or bathmat to protect delicate surfaces.
- Do not fix the wall profile to newly plastered, painted or papered walls as the chemical reaction may cause discoloration to surface finish.
- Check that the tray has been installed to the manufacturer’s instructions. Please note-All product is supplied without a tray
Legal statement
- We have taken great care to ensure that this product reaches you in perfect condition. However, should any parts be damaged or missing please contact your point of purchase. This does not affect your statutory rights. In addition, if you require replacement parts your point of purchase will be happy to assist.
IDENTIFICATION OF PARTS

Fixings & fittings supplied

Tools required(not supplied)

INSTALLATION OF THE SHOWER TRAY
Before shower enclosure installation, you must finish the tile installation. Check wall is straight using a spirit level.
IMPORTANT: Do not tile over the tray more than 10mm

- Install tray to manufacturer’s instructions.
- Ensure the Shower tray is level
INSTALLATION OF THE SHOWER ENCLOSURE
- Using a tape measure mark a line dimension (A&B) in pencil on the top face of tray. Dimension (A&B) will differ depending on the size of the shower tray.
- If the dimensions in chart below do not fit on tray, the tray has been tiled over too far and must be re-fitted.
| Shower tray size(mm) | A(mm) | B(mm) |
| 800×800 | 765-785 | 765-785 |
| 900×900 | 865-885 | 865-885 |

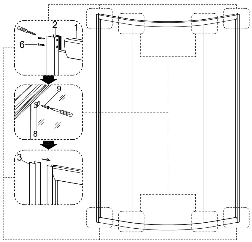
1. ASSEMBLY INSTRUCTIONS

- Connect the fixed glass side panels (2) to the lead rails (1) with screws (6).
- Fix the glass stoppers (8) onto the lead rails (1) with screws (9).
- Insert the wall profiles (3) onto fixed glass side panels (2).

2.ASSEMBLY INSTRUCTIONS
- Position EXTERNAL sides of the frame on the previously marked line on the shower tray(A&B).
- Tape measure to ensure alignment with a pencil.

3.ASSEMBLY INSTRUCTIONS

-Using a pencil, mark the positions of pre-drilled fixing holes on the wall profiles.
-Drill the marked holes using a 6mm masonry drill bit.
-Install supplied wall plugs (5). -Fix the wall profiles (3) onto the wall using the screws (6).
-Insert the door frame onto the wall profiles(3).

4.ASSEMBLY INSTRUCTIONS

-Install the upper rollers (11) and bottom rollers (16) onto the glass doors (13).
-Slide the glass doors onto the lead rail, slide the two seal strips (12) and seals (15) onto the glass doors(13), then fix the seals (14) onto the fixed glass doors (2).
-Secure handles (4) onto the glass doors (13).

Note: When fitting the handles, ensure the rubber washers are in placed on eaither side of the glass
5.ASSEMBLY INSTRUCTIONS

-There is 20mm of adjustment on each profile.
-Adjust the upper rollers and make the seal strips smooth.
-Drill holes into the wall channel using a 3mm HSS drill bit.CAREFUL
Do not drill all the walls through the wall profiles(3)Only enough to insert the screws(7).
-Use screws (7) and caps (10) to fix the frame to the wall profiles(3).
6.ASSEMBLY INSTRUCTIONS
- Clip into place the profile cover caps (17) on the top of each wall profile.
- Apply silicone sealant to the outside of the enclosure.
- Please note: Do not apply silicone sealant to the inside of the enclosure. This is to prevent water collection inside the enclosure.

CLEANING -general Use only warm soapy water and damp cloth/sponge on a regular basis. Do not use abrasive scouring powders, chemicals or aerosol cleaners-these may result in damage to the surfaces, in particular, the plated component parts.
sealant drying times may vary in cold damp conditions and will be extended where thicker beads of sealant are applied. Allow the sealant to dry completely before exposing to water.
We have taken great care to ensure that this product reaches you in perfect condition. However, should any parts be damaged or missing please contact your point of purchase. This does not affect your statutory rights. In addition, if you require replacement parts your point of purchase will be happy to assist.




















