Ballingslov Monitering Sanvisning Bright Less

Important!
- Use screws and wall plugs that are suitable for your wall.
- Fill all holes that penetrate the sealed surface with a suitable sealant.
- Install handles using a screwdriver.
- Use a screwdriver to adjust the fittings.
- Do not forget to apply sealant between the basin and cabinet.
- Do not forget to apply sealant between the basin and wall.
All electrical connections must be made by a qualified electrician.
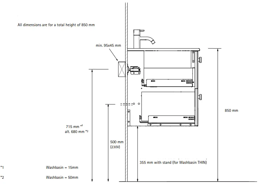
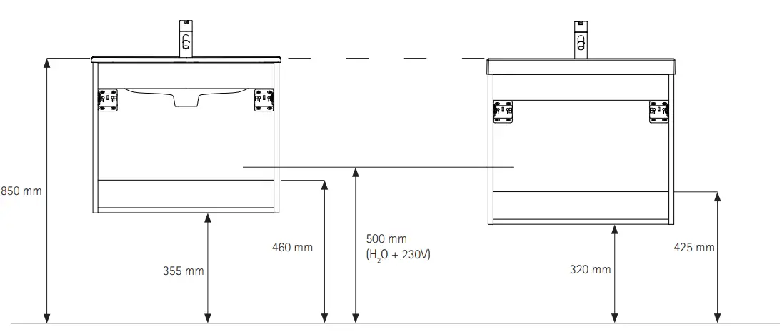
INSTRUCTION


INSTALLATION
Important!




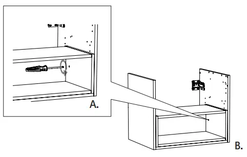
Dismantling of the open shelf

Installation of the wooden drawer

Adjustment of the wooden drawer

Removal of the wooden drawer

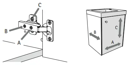
Adjustment of hinges

CARE
Painted surfaces
Use standard liquid detergents that will not damage the surfaces. Avoid abrasive cleansers or other cleaning agents that contain abrasives or ammonia, as these may scratch the surface and/or damage it in some other way.
Lacquered wood surfaces
Veneer and solid wood are porous to some degree. You should therefore avoid using too much water when cleaning. Use a slightly damp cloth and wipe down afterwards with a cloth that has been wrung out well. Use standard liquid detergents that will not damage the surfaces. Avoid abrasive cleansers or other detergents that contain abrasives or ammonia. Never use organic solvents to remove stains.
Laminate and melamine surfaces
Use standard liquid detergents that will not damage the surfaces. Avoid abrasive cleansers or other preparations that contain abrasives or ammonia. You should naturally avoid substances that could cause discolouration or damage the surface (iodine, hydrogen peroxide, ink, acids, ammonia, etc.).
Drawers, trays and interior fittings
After cleaning with suitable synthetic detergents, wipe down with a damp cloth to avoid the build-up of static electricity. Do not use white spirit, acetone or similar solvents, as these may damage plastic parts.
For leather parts, we recommend that you use Leather Clean & Protect. This is available from our dealers.
Porcelain basins
Use standard detergents. Do not use scouring products that contain harsh abrasives, such as steel wool and green scouring pads. Avoid using strong acids or strong alkalis such as sulphuric acid or caustic soda.
Composite stone basin
Use standard detergents. Do not use scouring products that contain harsh abrasives, such as steel wool and green scouring pads. Use Surface Cleaner or Q-action for deeper cleaning. Detergents such as descaler, chlorine and ethanol etc. should be wiped of immediately from the surface, if not the basin might get damaged.
WARRANTY / RETURNS
Ballingslöv bathroom fittings come with a 20-year materials guarantee that covers leather, hinges and fittings from Blum, and a 5-year materials guarantee for other interior fittings. The guarantees cover acknowledged manufacturing defects. It is essential that installation is carried out according to our installation instructions and that care instructions have been followed.
The guarantee does not cover accidental damage, improper use or overloading, incorrect cleaning, blade marks, impacts, scratches and the like, or wear that is due to incorrect installation. The guarantee applies to fittings purchased on or after 1 January 2006. Any claims should be notified to your Ballingslöv dealer, together with the order number. Freight damage must be reported within 10 working days. Do not sign the delivery note until you have inspected the delivered goods.




















