SEALEY MC401A 454KG Air-Hydraulic Motorcycle Lift

Thank you for purchasing a Sealey product. Manufactured to a high standard, this product will, if used according to these instructions, and properly maintained, give you years of trouble free performance.
IMPORTANT: PLEASE READ THESE INSTRUCTIONS CAREFULLY. NOTE THE SAFE OPERATIONAL REQUIREMENTS, WARNINGS & CAUTIONS. USE THE PRODUCT CORRECTLY AND WITH CARE FOR THE PURPOSE FOR WHICH IT IS INTENDED. FAILURE TO DO SO MAY CAUSE DAMAGE AND/OR PERSONAL INJURY AND WILL INVALIDATE THE WARRANTY. KEEP THESE INSTRUCTIONS SAFE FOR FUTURE USE.
- Refer to instructions
- Wear protective gloves
- Wear safety footwear
- Warning Crushing of Hands
SAFETY
- Disconnect lift from air supply before changing parts, servicing or performing any maintenance.
- WARNING! Ensure correct air pressure is maintained and not exceeded. Recommended pressure 100-120psi. Required air flow 9.5cfm.
- Keep air hose away from heat, oil and sharp edges. Check air hose for wear before each use, and ensure that all connections are secure.
- Ensure lift is kept clean and in good working order. Immediately repair or replace damaged parts.
- Use recommended parts only. Incorrect parts may be dangerous and will invalidate the warranty.
- Use a qualified person to lubricate and maintain the lift. DO NOT use brake fluid to top up system. Use Sealey hydraulic oil only.
- Locate lift in a suitable, well lit work area. Keep area clean and tidy and free from unrelated materials.
- Use lift on level and solid ground, preferably concrete. Avoid tarmacadam since lift may sink in.
- Ensure all non essential persons keep a safe distance.
- Always keep your hands and feet away from moving parts.
- DO NOT operate the lift if parts are missing or damaged.
- DO NOT use the lift for purposes other than that which it is designed for.
- DO NOT adjust the safety overload valve.
- Use a qualified person to maintain the lift in good condition. Keep it clean for best and safest performance.
- The maximum load is 454Kg. DO NOT exceed this rated capacity.
- Use this lift for lifting purpose only. DO NOT use it for any other purpose it is not designed to perform.
- Keep children and unauthorised persons away from the work area.
- Remove ill fitting clothing. Remove ties, watches, rings and other loose jewellry, and contain long hair.
- Keep proper balance and footing, do not overreach and wear nonslip footwear.
- Only use this lift on a surface that is stable, level, dry and capable of sustaining the load.
- Ensure the motorcycle is adequately secured to the lifting platform with appropriate straps.
- When the platform has been raised to the working height, ensure the locking bar is engaged to prevent accidental lowering.
- Before lowering lift ensure that there are no obstructions underneath and that all persons are standing clear.
- DO NOT attempt to transport a load on the lift. The lift must only be used in a static position for lifting and lowering loads. Ensure that the load remains stable at all times.
- DO NOT use the lift if damaged, any suspect parts are noted or it has been subjected to a shock load.
- DO NOT operate the lift when you are tired or under the influence of alcohol, drugs or any intoxicating medication.
- DO NOT allow untrained persons to operate the lift.
- DO NOT make any modifications to the lift.
- DO NOT get the lift wet.
- DO NOT snatch the hose from the air supply, and DO NOT direct air from the air hose at yourself or others.
- When not in use disconnect lift from the air supply, and store in the down position in a safe, dry, childproof area.
- WARNING: The warnings, cautions and instructions discussed in this instruction manual cannot cover all possible conditions and situations that may occur. It must be understood by the operator that common sense and caution are factors which cannot be built into this product, but must be applied by the operator.
INTRODUCTION
All steel construction with air pump or foot pedal for manual operation. Integral hydraulic pump and air motor assembly. Air Consumption 7.06cfm. Fitted with platform safety lock device to fix platform at two working heights of 490 and 710mm to prevent accidental lowering. Front wheel clamp for stability and sliding panel for easy rear wheel removal. Support platform fitted with full width loading ramp. Base assembly fitted with transport wheels and lock-downs to prevent lift from moving during use. Suitable for use with centre stand motorcycles or with paddock stand.
SPECIFICATION
- Model no……………………………………………………………..MC401A
- Capacity…………………………………………………………………454kg
- Min./max. height………………………………………………190/710mm
- Platform width/length………………………………………690/2200mm
- Air supply………………………………………min. 100psi/max. 120psi
ASSEMBLY
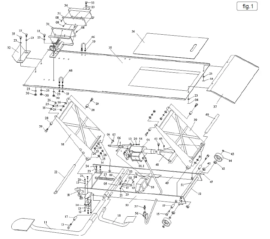
Unpack the lift and check contents with list below. Should there be any damaged or missing parts, contact your supplier immediately. NOTE! All numbers refer to fig.1.
- Main Assembly
- Sliding Plate
- Loading Plate
- Vice
- Lift Foot Pedal
- Release Foot Pedal
- Locking Bar
- Bolts, Washers, Nuts, Cotter-Pins.
- Place the sliding plate (36) on the platform (35) to cover the rear wheel removal aperture.
- Attach loading plate (37) to end of platform using washers (23) and Cotter-pins (04).
- Fit the front wheel vice assembly (34) to the front of the platform using bolts (33), washers (23) and nuts (30).
- Fit the baffle plate (32) using bolts (33), washers (23) and nuts (30).
- Fit the lift foot pedal (11) to the pump piston spindle (09) and fit the release foot pedal (10) to the release valve spindle (05).
AIR SUPPLY
- You will require an air pressure of minimum 100psi, maximum 120psi to get the best performance from this lift.
WARNING! Ensure the air supply does not exceed 120psi while operating the lift. Too high an air pressure and unclean air will shorten the product’s life due to excessive wear, and may be dangerous, causing possible damage and/or personal injury. - Drain the air tank daily
- Water in the air line will damage the lift.
- Clean the air inlet filter screen weekly
- Keep the air hose between the compressor and the lift as short as possible, and install an air filter and oiler
- Line pressure should be increased to compensate for unusually long air hoses (over 8 metres).
- The minimum hose diameter should be 1/4” I.D. and fittings must have the same inside dimensions.
- Keep hose away from heat, oil and sharp edges. Check hoses for wear,and make certain that all connections are secure
OPERATION
- Leave the pump for one hour to allow the oil to settle before purging the system.
NOTE! Failure to allow sufficient air supply hose quick coupler-female and fully press the release foot pedal (10), then turn on the air valve letting the pump work for 20 seconds to eliminate any air in the hydraulic system. - Test the lift, unladen, by raising it to full height and then lowering it. Depress release foot pedal (10) slowly to control the rate of descent.
WARNING! Ensure that you read, understand and apply the safety instructions and warnings before use.
WARNING! DO NOT attempt to overload the lift. - Position the lift in a suitable area, checking that the surface on which the lift will stand is solid and flat (preferably concrete).
- Turn the adjusting screw assy (18) down to raise the castors off the ground to prevent the lift from moving.
- Wheel the motorcycle up the loading plate and onto the platform.
NOTE: There is a choice of mounting holes for the vice to cater for various sizes of motorcycle. - Clamp front wheel in vice to prevent any movement of the motorcycle.
- Strap the motorcycle securely to the platform.
- Connect the quick coupler-male into the air supply hose quick coupler-female, then turn on the air valve to raise the lift. When air source
is not available, pump the lift foot pedal (11) to raise the lift. - When the platform has been raised to the working height, turn off the air valve (or stop pumping) and pass the locking bar (22) through the holes in the front lifting arm (38) so that the lift cannot be lowered inadvertently.
- When work is done, check under the lift to ensure that there are no obstructions and that it is safe to lower the unit. Remove the locking bar and then SLOWLY press the release foot pedal to GENTLY lower the lift.
NOTE! The speed of lowering is controlled by the release valve. The more the valve is opened the more rapidly the lift descends. Ensure the decent is slow and controlled. - When the lift is fully lowered, unstrap the motorcycle, open the vice jaws and remove the cycle from the lift.
MAINTENANCE
- Clean and lubricate on a regular basis.
- Regularly check oil level via filler hole. With piston fully down remove filler plug, oil should be level with bottom of filler hole. Top-up as
necessary - Use a good quality jack oil such as Sealey Hydraulic Jack Oil. DO NOT use brake fluid.
- Ensure no dirt enters hydraulic system when filling or removing/replacing components.
- Always dispose of waste oil according to local authority guidelines. If in doubt consult your local authority
- Keep the lift clean and wipe off any oil or grease. Lubricate all moving parts.
- Before each use check all parts. If any part of the lift is damaged or suspect, remove the lift from service and take necessary action to
repair.
IMPORTANT: NO RESPONSIBILITY IS ACCEPTED FOR INCORRECT USE OF THIS PRODUCT. - Hydraulic products are only repaired by local service agents. We have service/repair agents in all parts of the UK.
- DO NOT RETURN PRODUCT TO US. Please telephone us on 01284 757500 to obtain the address and phone number of your local agent. If product is under guarantee please contact your dealer
TROUBLESHOOTING
| Lift will not lift load. | 1. Release valve not fully closed. 2. Oil level low. 3. Air supply low. | 1. Close valve firmly. 2. Top-up to correct level. 3. Min. requirement 120psi. |
| Lift will not hold load. | 1. Release valve not fully closed. | 1. Close valve firmly. |
| Lift will not lift smoothly or to full height. | 1. Oil level low. 2. Air in hydraulic system. | 1. Top-up to correct level. 2. Bleed system. |
| Lift will not lower completely. | 1. Release valve not sufficiently open. | 1. Slowly open valve further. |
ENVIRONMENT PROTECTION
Recycle unwanted materials instead of disposing of them as waste. All tools, accessories and packaging should be sorted, taken to a recycling centre and disposed of in a manner which is compatible with the environment. When the product becomes completely unserviceable and requires disposal, drain any fluids (if applicable) into approved containers and dispose of the product and fluids according to local regulations.
Note: It is our policy to continually improve products and as such we reserve the right to alter data, specifications and component parts without prior notice.
Important: No Liability is accepted for incorrect use of this product.
Warranty: Guarantee is 12 months from purchase date, proof of which is required for any claim.
Sealey Group, Kempson Way, Suffolk Business Park, Bury St Edmunds, Suffolk. IP32 7AR
01284 757500
01284 703534
[email protected]
www.sealey.co.uk
© Jack Sealey Limited


















