AE-Air APHBC Horizontal Fan Coil with Plenum Chilled or Hot Water Owner's Manual

FEATURES / BENEFITS
Basic Unit
All fan coils are manufactured with heavy gauge galvanized steel to resist corrosion. All models are approved for installation with “0” clearance to combustible material.
Insulation
Plenums and cabinets are insulated with Tuf-Skin dual density fiber glass blanket insulation with an antimicrobial agent.
Ceiling Panels
Hinged access/return panels are manufactured with heavy gauge galvanized steel with captive mounting screws and an attractive white baked powder finish.
Condensate Pans
Positive sloped drain pans are galvanized steel, coated on the inside surface with insulation. Pan includes both primary and secondary drain connections.
Return Air Plenums
Return air plenums are manufactured from galvanized steel insulated with dual density fiber glass blanket insulation and a 1” TA fiber glass filter.
Coils
Constructed with seamless copper tubes and headers. The tubes are mechanically expanded into corrugated aluminum fin material for a permanent primary to secondary surface bond. Coils are tested under water at 450 PSI for operation at 300 PSI. Coils include manual air vents.
Fan Wheels-Housing
The fan wheels are double width, double inlet (DWDI) forward curved, centrifugal type. Wheels are statically and dynamically balanced for smooth, quite operation. The housing is constructed from heavy gauge galvanized steel with die-formed inlet cones.
Motors
Standard motors are PSC, permanently lubricated type with internal thermal overload protection.
Options
Factory mounted options include ECM motors stainless steel drain pans, foil faced cabinet insulation, Multi-24 3-speed 24V control, valve packages, thermostats, aqua stats, service switches. 120V, 208V/230V, 277V, 60hz
Return Air Plenums Return air plenums are manufactured from galvanized steel insulated with dual density fiber glass blanket insulation and a 1″ TA fiber glass filter.

MODEL NOMENCLATURE

*Coil Configurations
Rows Description
3 2-Pipe 3 Row
4 2-Pipe 4 Row
31 4-Pipe 3 Row Cooling, 1-Row Hot Water
32 4-Pipe 3 Row Cooling, 2-Row Hot Water
41 4-Pipe 4 Row Cooling, 1-Row Hot Water
**Coil Connection Side
RH Right Hand (default)
LH Left Hand
Hand connection is determined by
looking with airflow
Available Voltage (PSC Motors)
120V/1/60
208-230V/1/60
277V/1/60
Available Voltage (ECM Motors)
120V/1/60
277V/1/60
In keeping with its policy of continuous progress and product improvement, AE-Air reserves the right to make changes without notice. Maintenance for all AE-Air products is available under “Product Maintenance” at www.AE-Air.com.

NOTES:
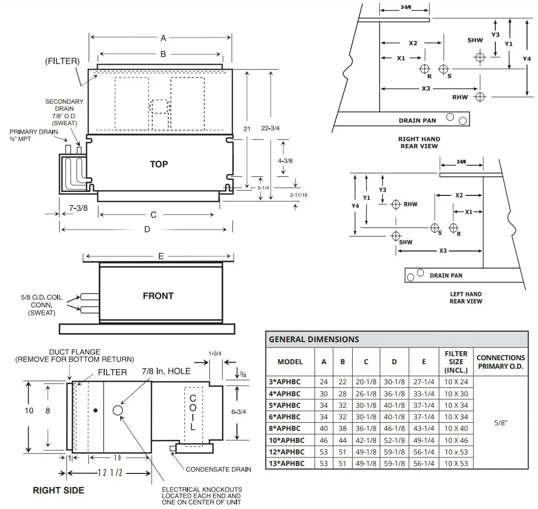
- ALL DIMENSIONS IN INCHES.
- COIL CONNECTION TOLERANCE ± 1/4”.
- RIGHT HAND UNIT SHOWN – LEFT HAND MODEL HAS DRAIN AND PIPING CONNECTIONS ON OPPOSITE SIDE OF THE FAN COIL. (HAND IS DETERMINED BY FACING THE BLOWER END)
NOTES:
- Return plenums are insulated.
- All plenums include throw-away filter.
- Standard plenums are end return and can be field converted to bottom return.
- Filter has separate access panel.

APHBC 120 VOLT PSC BLOWER PERFORMANCE


APHBC 277 VOLT PSC BLOWER PERFORMANCE


GUIDE SPECIFICATIONS
Part 1 — General
1.01 SECTION INCLUDES
A. Fan Coil Units
1.02 REFERENCES
AMCA 99 – Standards Handbook
AMCA 210 — Laboratory Methods for Testing Fans for Rating Purposes
AMCA 300 – Test Code for Sound Rating Air Moving Devices
ARI 440 – Room Fan-Coil Unit
ASTMB117 – Standard Practice for Operating Salt Spray Apparatus
NEMA MGI – Motors and Generators
NFPA 70 – National Electric Code
SMACNA – HVAC Duct Construction Standards – Metal and Flexible
UL 723 – Test for Surface Burning Characteristics of Building Materials
UL 900 – Test Performance of Air Filter Units
UL 1995 – Standard for Heating and Cooling Equipment
UL 94 – Test for Flammability of Plastic Materials for Parts in Devices and Appliances
1.03 SUBMITTALS
- A. Shop drawings: Indicate assembly, unit dimensions, weight loading, required clearances, construction details, field connection details, and electrical characteristics and connection requirements. A computer generated capacity selection shall be submitted for each cooling coil with design points and final operating point clearly noted.
- B. Product Data:
- 1. Provide literature that indicates dimensions, weights, capacities, ratings, fan performance, finishes of materials, and electrical characteristics and connection requirements.
- 2. Provide data of filter media, filter performance data.
- 3. Manufacturer’s installation instructions.
1.04 OPERATION AND MAINTENANCE DATA
A. Maintenance Data: Include instructions for lubrication, filter replacement and motor and drive replacement.
1.05 QUALIFICATIONS
A. Maintenance Data: Include instructions for lubrication, filter replacement and motor and drive replacement.
1.06 DELIVERY, STORAGE, AND HANDLING
A. Accept products on site on factory-installed shipping skids. Inspect for damage.
B. Store in clean dry place and protect from weather and construction traffic. Handle carefully to avoid damage to components, enclosures, and finish.
1.07 ENVIRONMENTAL REQUIREMENTS
A. Do not operate units for any purpose, temporary or permanent, until ductwork is clean, filters are in place, and fan has been test run under observation.
Part 2 — Products
2.01 MANUFACTURERS
A. The following manufacturers are approved for use. No substitutions will be permitted. 1. First Company, Dallas TX
2.02 CASING
A. Unit shall have corrosion resistant casing consisting of galvanized steel panels. Unit panels shall be fully insulated with 1.5lb fiberglass insulation with anti-microbial agent. Removable panels shall provide full access to unit components..
B. Drain pans shall be heavy gauge galvanized steel with an insulating coating. Optional stainless steel drain pan shall include an insulating coating. Drain pans shall be removable for cleaning or replacement without removing coils or disturbing coil connections.
2.03 SUPPLY FAN
A. Provide DWDI forward-curved supply fans. Fan assemblies shall be statically and dynamically balanced by manufacturer. The housings are constructed from heavy gauge galvanized steel with die-formed inlet cones.
B. Fan and motor mounting platform shall be a minimum of 12 gauge LFQ galvanized steel.
2.04 MOTORS
A. Direct drive motors to be PSC or ECM type, permanently lubricated type with internal thermal overload protection and mounted with rubber isolation bushings.
2.05 ELECTRICAL
A. Provide units with 115, 208-230, or 277V, 3-speed with 24v control transformer, and 15 amp service switch or optional ECM motor with 120/24V control transformer, 15 amp service switch, 4 speed taps. Controls to be factory mounted and tested.
2.07 COOLING AND HEATING COIL SECTIONS
A. Provide access to coils for service and cleaning..
B. Water Coils: fins shall have full drawn collars to provide a continuous surface cover over the entire tube for maximum heat transfer. Tubes shall be mechanically expanded into the fins to provide a continuous primary-to secondary compression bond over the entire finned length for maximum heat transfer rates. Bare copper tube shall not be visible between fins. Coil tubes shall be seamless copper, expanded into fins, and brazed at joints. Coil connections shall be copper with sweat connection size to be determined by manufacturer based upon the most efficient coil circuiting. Manual air vent connections shall be provided at the highest point to assure proper venting. Coils shall be tested with 350 pounds air pressure and suitable for 300 psig working pressure. Coil casings shall be a formed channel frame of galvanized steel.
2.08 FILTERS
A. Filter to be disposable type and media shall be UL 900 listed, Class I or Class II.
Part 3 — Execution
3.01 INSTALLATION
A. Install in accordance with manufacturer’s instructions.
ACCESS PANELS /FILTER

NOTES:
- The above is the actual laboratory test data or these panels.
- Glassfloss® Industries HV series Merv 8 filters were used to generate above data (filters must be field supplied)
- Alternate Merv 8 filters would be acceptable provided they have equal or less resistance.
- Refer to fan coil specification sheets for fan coil blower data.
ACCESSORIES






PIPING PACKAGE OPTIONS
TWO POSITION OR MODULATING
Manual air vents are standard and are factory mounted on all chilled water and hot water coils. All pre-piped on/off or modulating valve packages are factory assembled with sweat connections.


Add Options: Y-Strainers, Pete’s Plugs, Cleanout Blow-down, SS hose kits, Aquastats
Additional options and configurations may be available. Contact factory for availability.
Valve packages are available as kits or factory mounted on certain products. Contact factory for availability.
LOW VOLTAGE 24V CONTROLS

LINE VOLTAGE 120/230/277V CONTROLS

LOW VOLTAGE 24V CONTROLS

LINE VOLTAGE 120/230/277V CONTROLS


8273 MOBERLY LANE, DALLAS, TX 75227 · [email protected] · OFFICE: 214-388-5751 · FAX: 214-388-2255


















