Solplanet ASW 3-6K S G2 Series Our Upgraded Mid-Range Single Phase Inverter Installation Guide
GENERAL INFORMATION
This quick installation guide does not replace the description in the comprehensive operating instructions.
The contents of this guide may be updated or revised due to product development.
The information in this guide is subject to change without notice. The latest version of this document and the comprehensive manual for installation, commissioning, configuration and decommissioning are to be found in PDF format at www.solplanet.net.
SAFETY
INTENDED USE
The product is a transformerless PV inverter which converts the direct current of the PV generator into grid-compatible single-phase alternating current and then
feeds the single-phase alternating current into the public power grid.
The product is intended for indoor and outdoor applications.
The product must only be connected with PV modules of protection class II (in
accordance with IEC 61730, application class A). PV modules with a high capacitance to ground must only be used if their capacity does not exceed 1μF. Do not connect any sources of energy other than PV modules to the product. The product is not equipped with an integrated transformer and therefore has no galvanic isolation. The product must not be operated with PV modules whose outputs are grounded. This can cause the product to be destroyed. The product may be operated with PV modules whose frame is grounded. All components must remain within their permitted operating ranges and their installation requirements at all times.
Use the product only in accordance with the information provided in the operating instructions and with the locally applicable standards and directives. Any other
application may cause personal injury or property damage.
The product must only be used in countries for which it is approved or released by AISWEI and the grid operator. The type label must be permanently attached to the product and must be in legible condition.
This document does not replace any regional, state, provincial, federal or national laws, regulations or standards that apply to the installation, electrical safety and use of the product.
IMPORTANT SAFETY INSTRUCTIONS
The product has been designed and tested strictly according to the international safety requirements. As with all electrical or electronical devices, there are residual
risks despite careful construction. To prevent personal injury and property damage and to ensure long-term operation of the product, read this section carefully and observe all safety information at all times.
DANGER
Danger to life due to high voltages of the PV array When exposed to sunlight, the PV array generates dangerous DC voltage which is present in the DC conductors and the live components of the product. Touching the DC conductors or the live components can lead to lethal electric shocks. If you disconnect the DC connectors from the product under load, an electric arc may occur leading to electric shock and burns.
- Do not touch non-insulated cable ends.
- Do not touch the DC conductors.
- Do not touch any live components of the product.
- Do not open the product.
- All work on the product must only be carried out by qualified personnel who have read and fully understood all safety information contained in this document and the operating instructions.
- Disconnect the product from voltage sources and ensure it cannot be reconnected before working on the product.
- Wear suitable personal protective equipment for all work on the product.
DANGER
Danger to life due to electric shock when touching live system components in case of a ground fault
If a ground fault occurs, parts of the system may still be live. Touching live parts and cables results in death or lethal injuries due to electric shock.
- Disconnect the product from voltage sources and ensure it cannot be reconnected before working on the device.
- Only touch the cables of the PV modules on their insulation.
- Do not touch any parts of the substructure or frame of the PV array.
- Do not connect PV strings with ground faults to the product.
WARNING
Danger to life due to electric shock from destruction of the measuring device due to overvoltage
Overvoltage can damage a measuring device and result in voltage being present in the enclosure of the measuring device. Touching the live enclosure of the measuring device results in death or lethal injuries due to electric shock.
- Only use measuring devices with a DC input voltage range of or higher.
CAUTION
Risk of burns due to hot enclosure parts
Some parts of the enclosure can get hot during operation.
- During operation, do not touch any parts other than the enclosure lid of the product.
CAUTION
Risk of injury due to weight of product
Injuries may result if the product is lifted incorrectly or dropped while being transported or mounted.
- Transport and lift the product carefully. Take the weight of the product into account.
THE SARFTY SYMBOLS ON THE PRODUCT
![]()
Beware of a danger zone
This symbol indicates that the inverter must be additionally grounded if additional grounding or equipotential bonding is required at the installation site.
![]()
Beware of high voltage and operating current
The inverter operates at high voltage and current. Work on the inverter must only be carried out by skilled and authorized electricians.
![]()
Beware of hot surfaces
The inverter can get hot during operation. Avoid contact during operation.

Capacitor discharge
Danger to life due to high voltages in the inverter. Do not touch live parts for 5 minutes after disconnection from the power sources.

Observe the documentation
Observe all documentation supplied with the product.
DECLARATION OF CONFORMITY
within the scope of the EU directives
![]()
- within the scope of the EU directives
- Radio Equipment Directive 2014/53/EU (L 153/62-106. May 22. 2014) (RED)
- Restriction of the use of certain hazardous substances 2011/65/EU (L 174/88, June 8, 2011) and 2015/863/EU (L 137/10, March 31,2015) (RoHS)
confirms herewith that the products described in this document are in compliance with the fundamental requirements and other relevant provisions of the above mentioned directives. The entire EU Declaration of Conformity can be found at www.solplanet.net.
OVERVIEW

- DC SWITCH
- DC input
- COM1&COM2:RS485
- COM3: Meter
- COM4: WiFi/4G
- Connection point for an additional grounding
- AC OUTPUT
SCOPE OF DELIVERY
- inverter×1

- wall bracket

- DC connector 2+2

- AC connector ×1

- plug for meter ×1 (optional)

- document ×1

- mounting screw ×1

- WiFi stick×1

- RS485 COM plug×1 (optional)

MOUNTING ENVIRONMENT







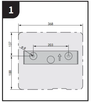
INVERTER’S MOUNTING







SECOND PROTECTIVE GROUNDING



AC CONNECTION






DC CONNECTION
TYPE 1





TYPE 2








COMMUNICATION SETUP
11.1 COM1&COM2: RS485






11.2 COM3: Meter




11.3 COM4:WiFi/4G





CONTACT
EMEA
Service email: service.[email protected]
APAC
Service email: service.[email protected]
LATAM
Service email: service.[email protected]
Aiswei Greater China
Service email: [email protected]
Hotline: +86 400 801 9996
Taiwan
Service email: [email protected]
Hotline: +886 809089212
https://solplanet.net/contact-us/
To download the Solplanet app, please scan the appropriate QR code below.
QR CODE:





























