HDKPD36, HDKPD48, HDKPD63, HDKPD72
COOL WALL ADVANTAGE TV KIT
HDKSD, HDKSVD,
HEAT DISTRIBUTION SIDEWALL KIT
HDKPD36 Cool Wall Advantage TV Kit
COMPATIBLE WITH:
DELRAY LINEAR, DELRAY SQUARE, DISTINCTION
- Refer to the chart below to detemine the length of 5’’ diameter flex pipe required for completion of installation (12′ or 24′). Flex pipe is available from Montigo as part # HDKPDFK and HDKPDFK-1.
- The installation of this fireplace must be done by a qualified and certified gas appliance installer.
- Check local codes and read all instructions prior to installation.
- See installation manual for clearances to combustible materials
- Minimum clearance to flexible ducting is 1″
UNIT COMPATIBILITY
| D3615NI-2 | D4815NI-2 | D6315NI-2 | D7215NI-2 | DRL3613NI-* | DRL4813NI-* | DRSQ34NI-* | DRSQ38NI-* | DRSQ42NI-* | DRSQ46NI-* | |
| HDKPD36 | ||||||||||
| HDKPD48 | ||||||||||
| HDKPD63 | ||||||||||
| HDKPD72 | ||||||||||
| HDKSD | ||||||||||
| HDKSVD | ||||||||||
| HDKPDFK-1 | ||||||||||
| HDKPDFK |
NOTICE
Installer: Leave this manual with the appliance.
Consumer: Retain this manual for future reference.
WARNING
Some materials used in the manufacturing process of this product can expose you to Benzene which is known in the State of California to cause cancer and birth defects or other reproductive harm. For more information go to www.P65warnings.ca.gov
Installation
Cool Wall Advantage Side Discharge Kit horizontal
HDKSD
[Includes 2 louvers , 2 plenums, requires flex kit]
Cool Wall Advantage Side Discharge Kit vertical
HDKSVD
[Includes 2 louvers , 2 plenums, requires flex kit]
Cool Wall Advantage Kit
HDKPD**
[Includes louver , plenum, requires flex kit]
Cool Wall Flex Kit
HDKPDFK HDKPDFK-1
[HDKPDFK-1 is 12’ of 5’’ Diameter flex pipe, HDKPDFK is 24’ of 5’’ Diameter flex pipe]

Dimensions
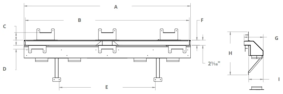
COOL WALL TV KIT DIMENSIONS
| A | B | C | D | E | F | G | H | I | |
| 36″ | 3913/16″ | 387/8″ | 3″ | 1½” | N/A | 2″ | 95/16″ | N/A | 71/16″ |
| 48″ | 517/8″ | 507/8″ | 3″ | 1½” | 30½” | 2″ | 95/16″ | 21″ | 71/16″ |
| 63″ | 661/16″ | 651/16″ | 3″ | 1½” | 383/16″ | 2″ | 95/16″ | 21″ | 65/16″ |
| 72″ | 7513/16″ | 7413/16″ | 3″ | 1½” | 397/16″ | 2″ | 95/16″ | 21″ | 71/16″ |

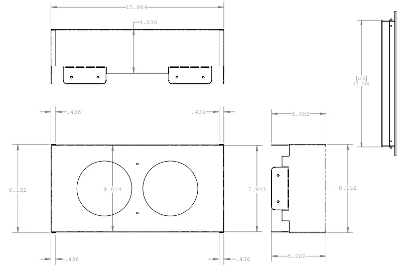
HDKSD PLENUM DIMENSIONS
GRSDH HORIZONTAL AND VERTICAL LOUVER DIMENSIONS
TV Kit Framing
- Unscrew Cap and replace with supplied Crimp Collars using the same hardware.

- Secure Heat Distribution kit to Framing at Desired Height and use supplied crimp collars to secure ducting with tek screws.
If using Montigo Flex Pipe Kit please ensure that the pipe is fully extended before cutting to desired length. Montigo flex pipe can be stretched 50% (e.g. 6’ pipe can be stretched to 9’)
Maintain 1” Clearance to combustibles from flex pipe.
- HDKPD FRAMING DIMENSIONS
The opening should be a minimum of 38” from the top of the fireplace and a minimum of 3” from the ceiling.
Secure with 12 wood screws(not provided)
- Install boards J and K first then secure the TV kit with the lower screws. Boards L will be cut to length depending on the height of the Heat Distribution Kit.
Then install the upper board J to secure the Heat Distribution Kit.
VENTING PORT COUNT
| Fireplaces | D3615NI-2 | D4815NI-2 | D6315NI-2 | D7215NI-2 | DRL3613NI-* | DRL4813NI-* | DRSQ34NI-* | DRSQ38NI-* | DRSQ42NI-* | DRSQ46NI-* |
| 2venting ports | ||||||||||
| 4 venting ports |
48″ 63″ and 72″ TV kits have stabilizing feet that must be attached to the framing. Refer to the TV Kit dimensional chart for measurements
WARNING
All venting ports must be connected to a plenum.
Faceplate can be painted with a high temperature paint to match room decor
Sidewall Kit Framing
- Unscrew Cap and replace with supplied Crimp Collars using the same hardware.

- Secure Heat Distribution kit to Framing at Desired Height and use supplied crimp collars to secure ducting with tek screws.
If using Montigo Flex Pipe Kit please ensure that the pipe is fully extended before cutting to desired length. Montigo flex pipe can be stretched 50% (e.g. 6’ pipe can be stretched to 9’)
- HDKSD FRAMING DIMENSIONS
Framing dimensions apply for both horizontal and vertical kits
Fireplaces D3615NI-2 D4815NI-2 D6315NI-2 D7215NI-2 DRL3613NI-* DRL4813NI-* DRSQ34NI-* DRSQ38NI-* DRSQ42NI-* DRSQ46NI-* 2venting ports 



4 venting ports 






- Attached plenums to framing with wood screws. Plenum tabs arebent based on vertical orhorizontal orientation.

The plenum has tabs as an aid in the installation of a finishing material. It is important not to encroach beyond these tabs with a finishing as this will prevent the attachment of the louver.
In order to ventilate a chase without the use of a cool wall kit, the louvers can be installed on the chase opening to finish the exposed area.


























