Instruction leaflet
For EM & MW LED Bulkhead 77896

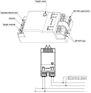
Microwave Movement Sensor
This product is fitted with a microwave movement sensor. Please see below detailed operating instructions.

Technical Specifications:
| Operating voltage | 220 ~ 240V AC 50/60Hz | |
| Rated load | 400W (Capacitive load) 800W (Resistive load) | |
| Stand-by power | ≤0.5W | |
| Sensitivity | Ceiling mounted height: 3m | 100% / 75% / 50% / 25% / 10% |
| Ceiling mounted height: 6m* | 100% / 75% / 50% | |
| Wall mounted height: 2m | 100% / 75% / 50% / 25% / 10% | |
| Hold-time | 5s / 30s / 90s / 3min / 20min / 30min | |
| Daylight sensor | 2Lux / 10Lux / 25Lux / 50Lux / Disable | |
| Microwave frequency | 5.8 GHz ±75MHz | |
| Transmitting power | 1mW Max. | |
| Detection range | Ceiling mounted height: 3m | 3- 6m (radius ) |
| Wall-mounted height: 1.5-2m | 12-15m | |
| Detection angle | 3600 (Ceiling) / 1200 (Wall) | |
| Working temperature | -200 C ~ 600 C | |
*50%, 75%, 100% detection sensitivity is workable when installed at 6m mounting height. Only 10%, 25% sensitivity is not able to detect motion signals.
Settings:
Troubleshooting:
| Malfunction Cause Remedy | Cause | Remedy |
| The light will not come on | Incorrect light-control setting selected | Adjust daylight threshold setting |
| Faulty lamp | Replace lamp | |
| No power supply | Check power to the sensor | |
| The lamp is always on | Continuous movement in the detection zone | Check detection area setting |
| The lamp is on without any identifiable movement | The sensor is not mounted for reliably detecting movement | Securely mount enclosure |
Movement occurred but was not identified by the sensor (Movement behind the wall, movement of a small object in immediate lamp vicinity, etc.) | 1. Reduce sensitivity. | |
| The lamp will not work despite movement | Rapid movements are being suppressed to minimize malfunctioning or the detection radius is too small. | Check detection area setting |
Care and Safety
- We recommend cleaning with a soft dry cloth. Do not use solvents or abrasive cleaners as these could damage the finish.
- For your safety, always switch off the power supply before
Installation:
Existing fittings must be completely removed before the installation of a new product. Before removing the existing fitting, carefully note the position of each set of wires.
- Remove the 4 fixing screws and detach the shade. Keep safe for refitting later.
- Hold the product in place and mark the position of the holes. Ensure the wall is capable of holding the weight of the product, or if fitting to a ceiling, ensure there is a joist at the point of fixing to support the weight of the product.
- Knock out the chosen fixing holes.
- Fix into position. Take care to avoid damaging any concealed wiring and pipes. The correct fixings should be used for brick, cavity walls, or plasterboard.
- Pierce a hole in the grommet, and pull the cable through.
- Wire as detailed below.
Wiring:
- This product is double insulated and must not be earthed. If there are any incoming earth cables, they must be joined together and well insulated with good quality insulation tape. This is to ensure earth continuity throughout your property.
- Having correctly identified the wiring from your existing light fitting, connect to the quick fit connection block in the following way, using the supplied link cables where necessary.

Check that…
- You have correctly identified the wires.
- The connections are tight.
- No loose strands have been left out of the connection block
Commissioning
- Ensure that the screws and cable entry points are sealed to maintain the IP rating of the product.
- Refit the shade, ensuring that the seals are correctly located.
- Gently push your chosen casing onto the shade until it clips in place.
- Replace fuse or circuit breaker and switch on. Your light is now ready for use.
Fitting/replacing bulbs
- This system contains non-replaceable parts and cannot be serviced. If damage occurs the part should be scrapped.
Thank you for purchasing this light fitting. Please read the instructions carefully before use to ensure the safe and satisfactory operation of this product. Please retain these instructions for future reference.
Warning:
This product is Class 2 (Double insulated) and must not be earthed.
Please read these instructions carefully before commencing any work.
This unit must be fitted by a competent and qualified electrician.
Install in accordance with IEE Wiring regulations and current
Building Regulations:
To prevent electrocution switch off at mains supply before installing or maintaining this fitting. Ensure other persons cannot restore the electrical supply without your knowledge. If you are in any doubt, please consult a qualified electrician.
This light fitting should be connected to a circuit with a 30mA RCD fit.
If replacing an existing fitting, make a careful note of the connections.
This product contains non-replaceable parts and cannot be serviced.
If damage occurs the part should be scrapped.
Waste electrical products should not be disposed of with household waste. Please recycle where facilities exist. Check with your local authority or retailer for recycling advice.
Technical data
| Supply Voltage: | 240V~, 50 Hz | Lumens: 120Lm in EM mode Change over time: Approximately 1s Duration: 3 hours (180 Minutes) Battery Specification: LifePO4 3.2V 1500mAh Operating Temperature: 0ºC – 50ºC Battery Charge Time: 24 Hours Maximum Operating Humidity: 90% Battery warranty: 2 years |
| Bulb Type: | 12W LED module – 4200K | |
| Conformity with all relevant EC Directive requirements. | ||
| Waste electrical products should not be disposed of with household waste. Please recycle where facilities exist. Check with your Local Authority or local store for recycling advice. | ||
| The power supply is Double Insulated and does not require connection to an Earth circuit. | ||
| This product is not suitable for dimming. | ||
IP65 | This product is rated at IP65. | |
Layout
- Plan the desired layout of this fitting carefully, ensuring the cables will reach the distance between the junction box and the light fitting.
- Avoid locating any cables in positions that would cause a hazard. Position cables and junction boxes (not supplied) away from areas where they may be at risk of being cut, trapped, or damaged.
- The main supply cable must have a minimum cross-sectional area of 1.0mm 2.
- Cables must be protected using a suitable conduit or plastic trunking.
- The products can be wall or ceiling-mounted. If wall mounting ensures that the power supply is at the bottom.
Individual casings
The following individual casings are available for purchase separately.
| 77904: White plain | 77907: Grey plain | 77910: Black plain |
| 77905: White eyelid | 77908: Grey eyelid | 77911: Black eyelid |
| 77906: White grill | 77909: Grey grill | 77912: Black grill |
| 77913: Chrome plain | ||









